Giskegata 33
2 150 000 kr
50 m²
1 soverom
Solgt

Aspøya
Eierleilighet med sentrumsnær beliggenhet | Vestvendt veranda
Prisantydning
2 150 000 krOmkostninger
64 790 krTotalpris
2 214 790 kr
Pris
Bruksareal
50 m²BRA-I (internt bruksareal)
50 m²TBA (terrasse-balkongareal)
7 m²
Areal
Etasje
2Byggeår
1913Soverom
1 soveromBad
1 badType
EierleilighetEierform
EierseksjonFasiliteter
Balkong/TerrasseFellesutgifter
1 503 krEnergimerke
Rød G
Nøkkelinfo
Unngå doble boligrenter
Vi tilbyr gunstig forsikring.
Vurderer du utleie?
Få et tilbud fra Utleie KrogsveenHva koster lånet?
Sjekk estimert lånekostnadBeskrivelse
Kort om eiendommen
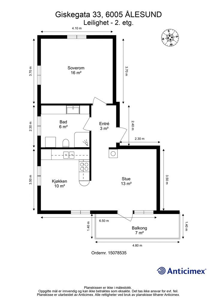
Krogsveen Sunnmøre v/Eiendomsmegler Geir Kristian Ødegård har gleden av å presentere en tiltalende eierleilighet med sentral og populær beliggenhet på Aspøya. Leiligheten er beliggende i 2. etasje og inneholder: Entre, stue, kjøkken, bad og soverom. I tillegg vestvendt veranda på 7 kvm.
Det er kort avstand til Ålesund sentrum, med kun 15 minutters gange via trygge gangfelt. Sentrum byr på et variert utvalg av restauranter, kaféer og kulturelle opplevelser. For den som søker rekreasjon i nærområdet, er Storhaugen og Helleborgparken perfekte alternativer, begge i gangavstand fra eiendommen. Dagligvarehandelen er godt dekket med både Kiwi og Rema 1000 i Skutvika samt Bunnpris i Torghallen. Offentlig transport er lett tilgjengelig, med busstopp i begge retninger langs Kirkegata.
Område
Legg til steder som er viktige for deg
På flyttefot? Tenk kjøp og salg samtidig.
Få din egen rådgiver gjennom hele kjøps- og salgsprosessen. Det starter med en verdivurdering.
Unngå doble boligrenter
Vi tilbyr gunstig forsikring.
Vurderer du utleie?
Få et tilbud fra Utleie KrogsveenHva koster lånet?
Sjekk estimert lånekostnadVil du varsles om lignende boliger?
Ved å lagre ditt boligsøk hos oss får du beskjed når vi har en bolig som ligner denne, før den legges ut på markedet!



























