Tostrup terrasse 3B
6 990 000 kr
59 m²
2 soverom
Solgt

Gimle/ Skarpsno
Hyggelig selveier i sveitservilla - Oppussingsobjekt med stort potentiale - Balkong med flotte solforhold og sjøutsikt.
Prisantydning
6 990 000 krOmkostninger
185 790 krTotalpris
7 175 790 kr
Pris
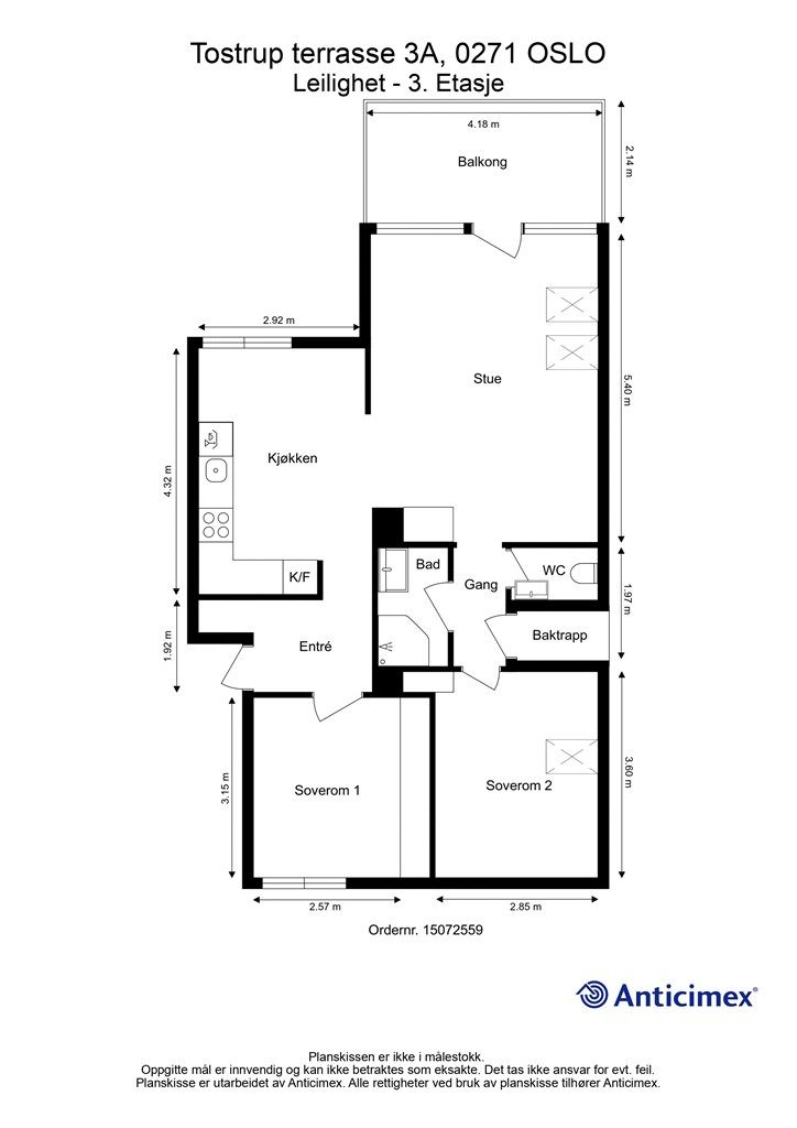
Bruksareal
61 m²BRA-I (internt bruksareal)
59 m²BRA-E (eksternt bruksareal)
2 m²TBA (terrasse-balkongareal)
9 m²
Areal
Etasje
3Byggeår
1892Soverom
2 soveromBad
1 badType
EierleilighetEierform
EierseksjonFasiliteter
Balkong/TerrasseFellesutgifter
3 106 krEnergimerke
Rød G
Nøkkelinfo
Unngå doble boligrenter
Vi tilbyr gunstig forsikring.
Vurderer du utleie?
Få et tilbud fra Utleie KrogsveenHva koster lånet?
Sjekk estimert lånekostnadBeskrivelse
Kort om eiendommen
En innholdsrik og stilfull leilighet med balkong og svært ettertraktet beliggenhet i Tostrups terrasse. Dette er en elegant sveitservilla som er oppdelt i seks leiligheter. Området oppleves rolig og fredelig, samtidig som det er kort vei til alt hovedstaden har å by på. Leiligheten har flotte lys- og solforhold og utgang til romslig balkong fra stue. Nydelig utsyn over nabolagets vakre fasader og over fjorden.
Boligen er utidsmessig med behov for rehabilitering. Leiligheten ligger i et ambassadestrøk, i et veletablert og rolig bomiljø i stille blindvei.
Kort fortalt:
- Oppussingsobjekt med stort potensial til å skape ditt eget drømmehjem
- Baderom + separat WC. Vaskerom.
- Stort oppholdsrom med stue og kjøkken i åpen løsning
- Romslig og hyggelig balkong med utsikt og flotte solforhol
Område
Legg til steder som er viktige for deg
På flyttefot? Tenk kjøp og salg samtidig.
Få din egen rådgiver gjennom hele kjøps- og salgsprosessen. Det starter med en verdivurdering.
Unngå doble boligrenter
Vi tilbyr gunstig forsikring.
Vurderer du utleie?
Få et tilbud fra Utleie KrogsveenHva koster lånet?
Sjekk estimert lånekostnadVil du varsles om lignende boliger?
Ved å lagre ditt boligsøk hos oss får du beskjed når vi har en bolig som ligner denne, før den legges ut på markedet!

