Mosserødveien 50A
6 790 000 kr
228 m²
3 soverom
Komplett salgsoppgave

Mosserød
Stor enebolig i meget populært boligområde - Solrikt - Barnevennlig - Garasje
Prisantydning
6 790 000 krOmkostninger
190 740 krTotalpris
6 980 740 kr
Pris
Bruksareal
293 m²BRA-I (internt bruksareal)
228 m²BRA-E (eksternt bruksareal)
65 m²TBA (terrasse-balkongareal)
100 m²
Areal
Etasje
2Byggeår
1969Soverom
3 soveromBad
1 badTomteareal
711 m² (eiet)Type
Enebolig - FrittliggendeEierform
EietFasiliteter
Garasje/P-plass og Balkong/Terrasse
Nøkkelinfo
Unngå doble boligrenter
Vi tilbyr gunstig forsikring.
Vurderer du utleie?
Få et tilbud fra Utleie KrogsveenHva koster lånet?
Sjekk estimert lånekostnadBeskrivelse
Kort om eiendommen
Velkommen til en romslig og innholdsrik familiebolig som kombinerer høy bokvalitet med en attraktiv beliggenhet. Boligen går over to etasjer samt en fullt innredet kjeller. Her får man flere oppholdsrom, romslige soverom og en gjennomtenkt planløsning som gir både sosiale soner og private fristeder. Her er det plass til hele familien og vel så det.
Boligen fremstår pen og velholdt med flotte kvaliteter og gode løsninger som gjør hverdagen både praktisk og komfortabel.
Området oppleves trygt og skjermet, med lite trafikk og minimal bil støy – perfekt for barnefamilier!
Boligen byr på flere fantastiske uteplasser med gode møbleringsmuligheter og rikelig med plass. Her kan du nyte solen gjennom hele dagen.
Velkommen til visning!
Innhold og byggemåte
Innhold og byggemåte
Eiendommen
Mosserødveien 50A, 3226 SANDEFJORD
Kommunenummer 3907, gårdsnummer 41, bruksnummer 424, ideell andel 1/1
Kommunenummer 3907, gårdsnummer 38, bruksnummer 153, ideell andel 1/1
Innhold
Totalt bruksareal BRA: 293 kvm
BRA-i:
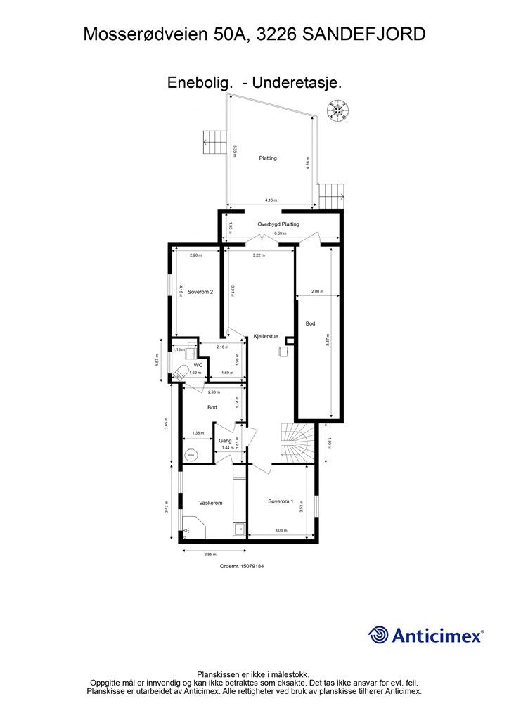
Underetasje 80 kvm: Kjellerstue, gang, bod, vaskerom, to soverom og toaletterom. [ rommene i kjeller, minus vaskerommet, er ikke godkjent for varig opphold/ godkjent / omsøkt hos kommunen ]
1. etasje 106 kvm: Entre, toaletterom, gang, bad, ett soverom, omkledningsrom, stue og kjøkken.
2. etasje 42 kvm: Loftstue og to soverom.
BRA-e:
Underetasje 17 kvm: Utvendig bod.
1. etasje 48 kvm: Garasje: 41 m2.
Bod: 7 m2.
Åpent areal:
Underetasje 27 kvm: Overbygget platting: 7 m2.
Platting: 20 m2.
1. etasje 66 kvm: Terrasse 1: 5 m2. Terrasse 2: 25 m2. Platting: 26 m2.Terrasse v/inng.parti: 10 m2
2. etasje 7 kvm: Balkong.
2.etasje: Etasjen har et totalt gulvareal (GUA) på 60 m2, men grunnet skråtak/lav takhøyde er kun 42 m2 av arealet måleverdig som bruksareal. De delene av
arealene som har lav himlingshøyde (ALH) utgjør 18 m2.
Bod v/garasje: Boden har et totalt gulvareal (GUA) på 11 m2, men grunnet skråtak/lav takhøyde er kun 7 m2 av arealet måleverdig som bruksareal. De delene av arealene
som har lav himlingshøyde (ALH) utgjør 4 m2.
Overbygget platting i underetasje: Kun deler av arealet på plattingen er måleverdig som bruksareal. Arealet har et totalt gulvareal (GUA) på 9 m2, men grunnet lav takhøyde er kun 7 m2 av
arealet måleverdig som bruksareal. De delene av arealene som har lav himlingshøyde (ALH) utgjør 2 m2.
Vedlagte plantegninger er ikke målbare. De oppgitte arealer er hentet fra rapport med befaringsdato 17.02.26 utført av Anticimex. Arealene er beregnet og rom er definert etter dagens faktiske bruk, uavhengig av hva som er godkjent av bygningsmyndighetene.
Byggemåte
Selger har fått utarbeidet en tilstandsrapport, dvs. en teknisk gjennomgang av boligen hvor eventuelle avvik, risiko for kjøper og prisoverslag for hva som bør gjøres av oppgradering, er skissert. Se særskilt TGIU (tilstandsgrad ikke undersøkt), samt TG2 og TG3 som viser hva som er boligens normale slitasje, alder og type, hva som er avvik fra dette og hva som bør/må utbedres. Rapporten og selgers egenerklæring er en del av salgsoppgaven og må leses nøye før bud inngis. Kjøper overtar ansvaret for de opplysninger som fremkommer av salgsdokumentasjonen, og kan ikke gjøre gjeldende som mangel noe som burde vært kjent eller som ikke kan anses å ha betydning for avtalen.
Bygningen er iht. tilstandsrapporten oppført i trekonstruksjon. Grunnmur av betongstein og stedvis i lettklinkerblokker. Bygget er oppført med støpt gulv mot grunn. Utvendige fasader er kledd med stående trekledning. Saltak i trekonstruksjoner. Yttertak er belagt med takstein. Les for øvrig mer om byggemåte og den tekniske tilstanden i rapporten.
Rapporten er en teknisk gjennomgang av boligen og angir eventuelle byggetekniske avvik. I rapportens sammendrag fremkommer det som takstmannen mener kjøper må være særskilt oppmerksom på, utover normal elde og slitasje, herunder:
TG3
- Ildsted: Ubrennbar plate foran ildsted i kjellerstue har ikke tilstrekkelig størrelse. Konsekvensen er at glør og gnister kan treffe brennbart materiale/gulvet når ildstedet brukes.
TG2
- Bad 1.etg: Tilluftsspalte eller lignende er ikke etablert.
- Vaskerom underetasje: Fallforhold utenfor sluksonen vurderes stedvis til å ikke være tilstrekkelig for å lede eventuelt lekkasjevann til sluk. Det er uklart om det er benyttet vanntett sjikt på våtrommets gulv- og på veggflater bak panelplater. Selv om våtrommet er oppgradert, er sluket ikke skiftet. Dette medfører risiko for utettheter i overgangen mellom sluk og vanntett sjikt. Det foreligger lite informasjon om arbeidet som er gjort i våtrommet. De deler av utførelsen som lar seg undersøke, bærer stedvis ikke preg av faglig god utførelse.
- Toalettrom Underetasje: Ventilasjonen vurderes som utilstrekkelig (kun naturlig ventilasjon).
- Toalettrom 1.etg: Tilluftsspalte eller lignende er ikke etablert.
- Tekniske anlegg: Det har ikke vært mulig å verifisere hvilken løsning som er valgt for lufting av avløpssystemet, foreslått tiltak er videre undersøkelser. Varmtvannsberederen står i et rom uten tilstrekkelig lekkasjesikring.
- Utvendig bod i underetasje: Det er benyttet isoporplater i himling mot overliggende etasje, noe som ikke er en anbefalt løsning ihht. dagens byggemetoder. Det observeres stedvis tegn til riss i veggflater og symtomer til saltutslag på grunnmur.
- Underetasje: Det er observert vindsperrepapp (svartpapp) inne i veggkonstruksjonen, en løsning som erfaringsmessig gir risiko for tilvekst av mikroorganismer. Etasjen har vegger under bakkenivå som er utlektet fra grunnmuren. Konstruksjonen er lukket, og det er ikke kjent hvordan oppbyggingen er utført.
- 2.etg: Etasjens skråtak er en lukket konstruksjon. Slike konstruksjoner betraktes erfaringsmessig som fuktrisikokonstruksjoner. Konsekvens er risiko for skjulte feil og skader.
- kaldt loft over garasje: Kaldtloftet ble kun inspisert fra takluken/døråpningen grunnet begrenset inspeksjonsmulighet som følge av lagrede gjenstander. Konsekvens er at tilstanden i store deler av loftet ikke er fullt ut kartlagt, med den risiko dette innebærer for forhold som ikke er avdekket.
- kaldt loft: Deler av kaldtloftet lot seg ikke undersøke grunnet redusert tilkomstmulighet. Stedvis misfarging/skjolder observeres ved pipe. Det ble likevel ikke målt høye fuktnivåer i berørte materialer i området. Det er ikke etablert dampsperre mellom underliggende etasje og loftet (varm og kald sone). Konsekvensen
er risiko for fuktskader grunnet kondensering. Isolasjon på loft er stedvis manglende/rotete.
- Ytterkledning: Materialer viser stedvise tegn til elde, med stedvise symptomer på begynnende råteskader. Det er vurdert å stedvis være begrenset spalte for lufting og drenering bak ytterkledningen.
- Grunnmur: Det registreres enkelte moderate tegn til riss i overflaten til grunnmuren blant annet i overgang bolig og tilbygget garasje.
- Drenering: Det registreres enkelte områder med fall inn mot grunnmuren (gårdsplass mot garasje og deler ved inngangsparti). Konsekvens er at forholdet kan være med å øke fuktbelastningen på grunnmuren.
TGIU
- Fundamentene var ikke tilgjengelige for undersøkelser grunnet manglende tilkomst.
- På grunn av snødekke er utvendige undersøkelser begrenset.
- Yttertaket er ikke fysisk inspisert grunnet is og snø (sikkerhetsmessige forhold).
- Det har ikke vært mulig å kontrollere om alle deler av ytterkledningen er sikret mot inntrekk av gnagere.
- Med bakgrunn i at våtrommets vegger er av mur/betong er det ikke praktisk mulig å gjennomføre fuktmåling/hulltaking i et område der det erfaringsmessig forekommer skader.
Vi anbefaler å se supplerende tekst i tilstandsrapporten for utfyllende informasjon. Kjøper overtar ansvar og risiko for dette.
Standard
Velkommen til en innholdsrik og familievennlig enebolig med attraktiv beliggenhet og en gjennomtenkt planløsning. Boligen er romslig og fordeler seg over to etasjer, i tillegg til en fullstendig innredet kjeller som gir ekstra fleksibilitet og mange bruksområder. I boligen finner du kjøkken og stue som naturlige samlingspunkter, en loftstue som gir ekstra oppholdsrom, samt en kjellerstue som skaper en egen sone for avslapning eller aktivitet. Boligen har fem gode soverom, bad, to toalettrom, vaskerom og en praktisk bod som gir god oppbevaringsplass. Uteområdene er fine og innbydende, og boligen holder god standard etter oppgraderinger og oppussing i senere tid.
Badet ble oppgradert i 2024 og fremstår som moderne og lettstelt med gjennomgående god standard. Gulvet er flislagt og har gulvvarme. Veggene er flislagt for et stilrent og holdbart uttrykk. Badet er innredet med vegghengt baderomsmøbel som gir et luftig og moderne preg, og dusjhjørnet har nedsenket gulv med elegante glassdører som både er praktisk og estetisk. Toalettrommet i underetasjen er fra 2022 og holder en god og tidsriktig standard. Gulvet er flislagt med gulvvarme, noe som gir komfort året rundt, og veggene er flislagte for et delikat uttrykk. Rommet er utstyrt med gulvstående toalett og fremstår som et praktisk og velholdt. Toalettrommet i 1. etasje har flislagt gulv og vegger med malte panelplater, som gir et lunt og samtidig lettstelt uttrykk. Rommet er utstyrt med gulvstående toalett og fungerer som et praktisk og innbydende tilleggsrom i boligen.
Kjøkkenet har innredning fra omkring 2010 med profilerte fronter som gir et klassisk og tidløst uttrykk. Benkeplaten har laminert overflate, og det er nedfelt kjøkkenvask med armatur. Kjøkkenet er utstyrt med integrert stekeovn, mikrobølgeovn og platetopp, mens det er nisje for både frittstående kjøleskap og frittstående oppvaskmaskin. Gulvvarme skaper en behagelig komfort, og veggflatene er både malte og flislagte.
Øvrige rom i boligen har en fin romfølelse med luftige og innbydende arealer. Store vindusflater sørger for rikelig med naturlig lys, noe som bidrar til en lys og behagelig atmosfære. Gulvflatene er belagt med laminat, parkett og fliser, som gir både variasjon og praktiske løsninger tilpasset rommenes bruk. Det er gulvvarme i entré og deler av stuen, noe som øker komforten og skaper en lun og behagelig opplevelse gjennom hele året. Veggflatene er utført med malte flater og malte panelplater.
Tekniske anlegg
* Varmtvannsberederen er på 198 liter og fra 2003 denne står i innvendig bod i underetasjen.
* Sentralstøvsuger er plassert i boden i underetasjen.
* I stuen er det installert varmepumpe
Løsøre og tilbehør
Vi viser til liste fra Norges Eiendomsmeglerforbund som gjelder fra 01.01.2020 angående løsøre og tilbehør.
Oppvarming
Oppvarming av boligen skjer i hovedsak ved bruk av elektrisk oppvarming. Varmekabler på bad, vaskerom, del av stue, kjøkken, gang, kjellerstue og begge soverom kjeller.
Ildsteder plassert i stue og i kjellerstue samt luft til luft varmepumpe montert i stue.
Dersom beboelsesrom ikke har vegg- eller fastmonterte varmekilder ved visning, følger dette heller ikke med.
Ferdigattest/brukstillatelse
Det foreligger ferdigattest på boligen, datert 02.12.1968.
Det foreligger også ferdigattest på tilbygg, datert 01.02.1983. Disse kan fås ved henvendelse til megler.
Det er ikke ferdigattest på påbygget fra 2008, men det foreligger tillatelse til påbygg.
Eneboligen er oppført i 1969 - og tilbygget i 1981( større stue ), samt påbygget i 2008.
Ut i fra tegninger fra byggeår og tilbygget i 1.etasje så er omkledningsrommet tegnet inn som et soverom. Der hvor badet ligger i dag er blitt utvidet, da det var trapp ned til underetasjen tidligere her. Trappen er flyttet til motsatt side av boligen, hvor det på opprinnelige tegninger var tegnet inn et soverom.
Kjelleretasjen er i følge originale byggetegninger tegnet inn med boder og vaskerom. Vaskerommet ligger iflg tegningene på samme sted som på originale tegninger. Resterende rom som soverom, wc-rom og kjellerstue er ikke søkt eller godkjent for varig opphold og er heller ikke godkjent av kommunen. Konsekvensen ved søknad kan være at rommet ikke godkjennes som varig opphold og at rommet da må brukes som bod/midlertidig oppbevaring.
Kjøper overtar alt ansvar, kostnad og risiko for dette videre.
Det gjøres oppmerksom på at det ikke lenger utstedes ferdigattest på tiltak det er søkt om før 1998 jf. plan- og bygningsloven § 21-10. Kommunen vil ikke kreve ferdigattest for disse tiltakene og vil avvise eventuelle søknader. Bestemmelsen innebærer ikke at tiltak med manglende søknad blir lovlige, men at man ikke trenger å avslutte gamle byggesaker. Normalt sett kreves ferdigattest for alle søknadspliktige tiltak som gjøres etter plan- og bygningsloven.
Tinglyste heftelser og rettigheter
På eiendommen er det tinglyst følgende heftelser og rettigheter som følger eiendommens matrikkel ved overskjøting til ny hjemmelshaver:
02.10.1970 - Dokumentnr: 5063 - Festekontrakt - vilkår
02.10.1970 - Dokumentnr: 5063 - Urådighet
Grunneier/kommunens samtykke til transport av feste kreves.
19.02.1970 - Dokumentnr: 1003 - Erklæring/avtale
Erklæring fra Nils Abol vedr.d.e m.f.l om at Sandefjord kommune skal kunne kjøpe ubebygget grunn til kommunalt eller annet off.bruk.vann og kloakk-ledninger-med flere bestemmelser.
Eventuell adgang til utleie
Eiendommen har ikke separat utleieenhet. Det vil normalt være anledning til utleie av hele eiendommen eller enkeltrom, såfremt utleiearealet er bygningsmessig godkjent for varig opphold og har forsvarlige radonnivåer.
Beliggenhet og tomteforhold
Beliggenhet og tomteforhold
Beliggenhet
Eiendommen ligger svært attraktivt til i Mosserød, et veletablert, rolig og barnevennlig boligområde. Området er kjent for sin familievennlige profil og nærhet til både skoler, barnehager, dagligvarebutikker og varierte fritidstilbud.
Boligen har en solrik og sentral beliggenhet med kort og trygg gangvei til Mosserød barneskole, som ligger kun ca. 300 meter unna. Det er også kort avstand til Breidablikk ungdomsskole, samt flere barnehager, lekeplasser og balløkker i nærområdet – ideelt for barnefamilier.
For den frilufts interesserte byr området på flotte turområder som Mokollen, Midtåsen og Hjertåsskogen, med vakre skogs partier og utsikt mot både by og sjø. På vinterstid prepareres det skiløyper på jordene ved Manveien, og lysløypene samt idrettsanleggene ved IL Runar er lett tilgjengelige året rundt.
Sandefjord sentrum nås enkelt kun 3 km unna, og tilbyr et rikt utvalg av butikker, serveringssteder, kulturtilbud og servicetjenester. For pendlere er beliggenheten svært gunstig med kort vei til E18, togstasjon og Torp Sandefjord lufthavn.
Velkommen til hyggelig visning!
Adkomst
Fra sentrum av Sandefjord kjører man opp Dølebakken ved Sandar kirke. Deretter tar man Ringveien til venstre mot Mosserød, før man tar Mosserødveien til høyre. Eiendommen ligger på venstre side.
Megler oppfordrer alle interessenter til å vise hensyn ved kjøring inn til eiendommen, da det bor og ferdes mange barn i området. Det er skiltet med Krogsveen plakat, samt med visningsskilt ved fellesvisning.
Barnehager, skoler og fritid
Mosserød barneskole ligger ca.300 meters gange fra boligen, da gangveien ved siden av boligen leder til skolen. Breidablikk ungdomsskole ligger ca. 1,5 km gange unna. Private skoler som Mokollen og Wang ung ligger også i gangavstand fra boligen. Flere barnehager ligger i nærheten.
Dersom skole- og barnehagetilbud er av betydning for kjøpet, ber vi om at det rettes en særskilt henvendelse til kommunen for oppdatert informasjon.
Beskrivelse av tomt
Boligen ligger på en romslig tomt på 710 kvm, perfekt tilpasset både aktivitet og avslapning. Her finner du fantastiske, usjenerte uteplasser hvor du kan nyte lange sommerdager i fred og ro. Tomten er flott opparbeidet og beplantet, med et innbydende og gjennomtenkt uteområde som både voksne og barn vil sette pris på. For barnefamilier byr tomten på store, trygge områder for lek og moro, samtidig som det finnes flere solrike og hyggelige soner for avslapning og sosiale sammenkomster.
Parkering
Dobbel garasje og god plass i gårdsplassen til flere biler.
Vei, vann og avløp
Eiendommen har adkomst via kommunal vei.
Eiendommen er tilknyttet kommunalt ledningsnett via private stikkledninger.
Eier er selv ansvarlig for private stikkledninger til boligen.
Regulerings-og arealplaner
Eiendommen ligger i et uregulert område, men er i kommuneplan datert 21.09.2023 er avsatt til boligbebyggelse.
Kommunen opplyser også at eiendommen ligger innenfor hensynssonene høyspenningsanlegg (inkl høyspentkabler) samt ras- og skredfare.
Utsnitt av plan med tilhørende bestemmelser kan fås ved henvendelse til megler.
Økonomi
Økonomi
Kommunale utgifter
Kommunale avgifter er kr 14 072,- for inneværende år. I dette inngår gebyr for vann, avløp, renovasjon og feiing/tilsyn.
Nåværende eier har et strømforbruk som tilsvarer ca. kr 25 600,- pr. år. / 25 000 kwh. pr. år.
Boligen har en årlig forsikringspremie på kr 17 000.
Boligen er tilknyttet Sandefjord bredbånd som leverandør av kabel-tv. Tv-tuner/dekoder medfølger.
Utgiftene er basert på nåværende eiers forbruk og avtaler.
Selger har avtalt Norgespris på strøm på eiendommen. Denne er på kr 50 øre inkl mva. Nettleie, avgifter og påslag fra kraftleverandøren kommer i tillegg.
Denne avtalen vil følge eiendommen i den avtalte perioden.
Les mer om Norgespris her: https://www.regjeringen.no/no/aktuelt/legg-fram-lov-om-norgespris-pa-straum-og-fjernvarme/id3102642/
Formuesverdi
Formuesverdi for 2024 var kr 1 226 927,- ifølge Skatteetaten. Beløpet forutsetter at eier bor fast i boligen (primærbolig).
Ved eventuell øvrig bruk av eiendommen (f.eks. fritidsbolig, pendlerbolig, utleieobjekt) var formuesverdien for 2023 kr 4 907 708,-.
Fra 2026 har Stortinget vedtatt en oppdatert modell for beregning av formuesverdi for primærbolig, så avvik kan forekomme.
For mer informasjon se skatteetaten.no
Omkostninger
6 790 000,00 Prisantydning
Omkostninger
169 750,00 Dokumentavgift til staten (2,5% av kjøpesum)
19 900,00 Gjensidige Boligkjøperpakke (valgfri)
545,00 Tinglysing panterettsdokument
545,00 Tinglysing skjøte
--------------------------------------------------------
190 740,00 Omkostninger totalt
--------------------------------------------------------
6 980 740,00 Totalpris inkl. omkostninger
--------------------------------------------------------
Tilbud om lånefinansiering
Megler formidler gjerne kontakt med rådgiver hos vår samarbeidspartner BN Bank. De har konkurransedyktige betingelser samt rask og løsningsorientert behandling av din lånesøknad. Krogsveen mottar et honorar dersom lån opprettes.
Betalingsbetingelser
Kjøpesum inkludert omkostninger, samt pantedokument tilknyttet eventuelt lån, skal være disponibelt hos megler 2 virkedager før overtagelsen.
Annen viktig informasjon
Annen viktig informasjon
Eier
Monica Syverud Nordvold og Kenneth Hagstrøm
Overtakelse
Etter nærmere avtale.
Boligselgerforsikring
Selger har i forbindelse med salget tegnet boligselgerforsikring levert av Gjensidige.
Boligselgerforsikringen dekker selgers ansvar etter avhendingsloven begrenset oppad til kr 14 millioner. Dersom kjøper oppdager forhold ved eiendommen som hen mener utgjør en mangel ved eiendommen, vil Gjensidige behandle reklamasjonen på vegne av selger. Forsikringsvilkår kan fås ved henvendelse til megler.
Vedlagt salgsoppgaven følger selgers egenerklæringsskjema og tilstandsrapport. Interessenter må sette seg inn i dokumentene før bud inngis.
Boligkjøperforsikring
Innen kontraktsmøtet må kjøper ta stilling til om det ønskes å bestille Boligkjøperpakken gjennom Gjensidige. I denne gunstige pakken er boligen ferdig forsikret og inkluderer rettshjelpsforsikring, også kalt Boligkjøperforsikring. Rettshjelpsforsikring gir trygghet og tilgang på profesjonell juridisk hjelp dersom det oppdages uventede feil eller mangler det første året etter overtagelse. Forsikringsselskapet behandler i så fall ethvert mangelskrav kjøper måtte ha overfor selger.
Boligkjøperpakken inkluderer bygningsforsikring for hus og hytte, innboforsikring, flytteforsikring og dobbel rentedekning - i situasjoner hvor kjøper ikke får solgt nåværende primærbolig.
Kjøper mottar ingen særskilt faktura for Boligkjøperpakken da kostnaden det første året legges til kjøpesummen for boligen. Det gjøres oppmerksom på Krogsveen mottar et honorar for denne formidlingen.
Produktark for Boligkjøperpakken ligger vedlagt i salgsoppgaven.
Dersom ikke boligkjøperpakke ønskes kan kun rettshjelpsforsikring, også kalt boligkjøperforsikring, tegnes særskilt via megler. Rettshjelpsforsikringen varer i 5 år fra overtagelse og leveres gjennom Gjensidige. Ta kontakt med megler for ytterligere informasjon.
Selskap og privatpersoner som driver med kjøp/salg/utvikling som ledd i egen næringsvirksomhet kan ikke tegne boligkjøperpakke eller rettshjelpsforsikring.
Budgivning
Forbrukerinformasjon om budgivning er vedlagt denne salgsoppgaven og er også på vår hjemmeside Krogsveen.no. Alle bud og budforhøyelser må inngis skriftlig. I tillegg må legitimasjon være fremlagt sammen med signatur fra budgiver.
Vi oppfordrer til å gi bud elektronisk via GI BUD-knappen på eiendommens hjemmeside på Krogsveen.no. Da vil samtlige vilkår bli oppfylt.
Eventuelle forhøyelser eller endringer av budet kan bekreftes pr SMS eller på e-post. Vi oppfordrer alltid til å kontakte megler pr. telefon i tillegg da forsinkelser i SMS og e-post kan forekomme.
For at budene skal kunne bli behandlet og videreformidlet skriftlig til alle involverte parter, må alle bud ha en tilstrekkelig lang akseptfrist, jf. eiendomsmeglingsforskriften § 6-3.
Selger må også skriftlig akseptere budet før aksept kan formidles til budgiver. Akseptfrist bør derfor være på minimum 30 minutter, og budforhøyelser må derfor skje i god tid før fristens utløp.
Bud i forbrukerforhold kan uansett ikke settes med kortere frist enn kl. 12.00 første virkedag etter siste annonserte visning. I tillegg kan ikke budet ha forbehold om at det skal holdes hemmelig ovenfor øvrige interessenter. Megler har iht lov om eiendomsmegling ikke anledning til å videreformidle disse budene, og de vil dermed heller ikke bli journalført.
Etter at eiendommen er solgt vil kjøper og selger få tilsendt budjournal. Øvrige budgivere kan få utlevert kopi av budjournalen i anonymisert form.
Hvitvaskingsreglene
I henhold til lov om hvitvasking og terrorfinansiering har megler plikt til å gjennomføre kontrolltiltak overfor kunder, herunder fullmektiger. Dette innebærer bl.a. å bekrefte kunders og reelle rettighetshaveres identitet på bakgrunn av fremvist gyldig legitimasjon eller på annen godkjent måte, samt å innhente opplysninger om kundeforholdets formål og tilsiktede art.
Dersom slike kundetiltak ikke kan gjennomføres, kan megler ikke etablere kundeforholdet eller utføre transaksjonen.
Hvis kjøper ikke bidrar til gjennomføring av kundekontrollen og dette fører til at transaksjonen blir forsinket eller ikke kan gjennomføres, vil dette ansees som mislighold av avtalen og gi selger rettigheter etter avhendingslova kapittel 5. I tilfeller der selger ikke bidrar til gjennomføring av løpende kundekontroll underveis i oppdraget, er det selger som misligholder sine forpliktelser etter avtalen og gi kjøper rettigheter etter avhendingslovens kapittel 4. Partene er selv ansvarlige for eventuelle kostnader og ansvar dette kan medføre. Eiendomsmegleren eller eiendomsmeglingsforetaket kan ikke holdes ansvarlig for de konsekvenser dette vil kunne få for partene eller andre som har interesser i eiendomshandelen.
Kjøper oppfordres til å innbetale kjøpesummen som ikke kommer fra låneinstitusjon i én samlet innbetaling fra egen konto i norsk bank. Megler har plikt til å melde fra til Økokrim om eiendomshandler som fremstår som mistenkelige. Melding sendes Økokrim uten at partene varsles.
Personopplysningsloven
I henhold til personopplysningsloven gjør vi oppmerksom på at interessenter kan bli registrert for videre oppfølging.
Lovanvendelse
Generelle bestemmelser
Salgsoppgaven er basert på de opplysningene selger har gitt til megler, den bygningssakyndiges tilstandsrapport, samt opplysninger innhentet fra kommunen, Kartverket og andre tilgjengelige kilder. Det er viktig at kjøper setter seg grundig inn i alle salgsdokumentene, herunder salgsoppgave, tilstandsrapport og selgers egenerklæring. Kjøper anses kjent med forhold som er tydelig beskrevet i salgsdokumentene, og slike forhold kan ikke påberopes som mangler. Dette gjelder uavhengig av om kjøper har lest dokumentene. Alle interessenter oppfordres til å undersøke eiendommen nøye, gjerne sammen med fagkyndig før bud inngis. Kjøper som velger å kjøpe usett kan ikke gjøre gjeldende som mangel noe han burde blitt kjent med ved undersøkelsen.
Dersom det er behov for avklaringer, anbefaler vi at interessenter rådfører seg med eiendomsmegler eller egne rådgivere før det legges inn bud.
En bolig som har blitt brukt i en viss tid, har vanligvis blitt utsatt for slitasje og skader kan ha oppstått. Slik bruksslitasje må kjøper regne med, og det kan avdekkes enkelte forhold etter overtakelse som nødvendiggjør utbedringer. Normal slitasje og skader som nødvendiggjør utbedring, er innenfor hva kjøper må forvente og vil ikke utgjøre en mangel.
Kjøper og selgers rettigheter og plikter reguleres av avtalen mellom partene, samt informasjonen som har vært tilgjengelig for kjøperen i forbindelse med handelen. Avtalen utfylles av avhendingsloven, og det gjelder ulike avtalevilkår avhengig av om kjøper er forbrukerkjøper eller ikke. Dette er nærmere beskrevet nedenfor.
På grunn av ulike avtalevilkår kan selger vurdere bud fra en som ikke er forbruker, ulikt fra en forbrukers bud. Dersom kjøper ikke er forbruker, er selger sitt mulige mangelsansvar begrenset fordi eiendommen selges "som den er". Selger kan ikke ta «som den er»- forbehold overfor en forbrukerkjøper. Selv et lavere bud fra en som ikke er forbruker kan foretrekkes fordi begrensningen i mulig mangelsansvar kan ha egenverdi for selger. Selger står fritt til å forkaste eller akseptere ethvert bud, og er for eksempel ikke forpliktet til å akseptere høyeste bud.
Budgiver skal i budskjema avgi egenerklæring om budgiver er forbruker eller næringsdrivende/ person som hovedsakelig handler som ledd i næringsvirksomhet. Budgivere får informasjon dersom andre bud er inngitt av en som ikke er forbruker.
Forbrukerkjøp - definisjon
Med forbrukerkjøp menes kjøp av eiendom når kjøperen er en fysisk person som ikke hovedsakelig handler som ledd i næringsvirksomhet.
Forbruker – avtalevilkår
Eiendommen har en mangel dersom den ikke er i samsvar med kravene som følger av avtalen, eller det foreligger brudd på bestemmelsene i avhendingsloven §§ 3-2 til 3-8. Hvis eiendommen ikke er i samsvar med det kjøperen må kunne forvente ut ifra alder, type og synlig tilstand, kan det være grunnlag for mangelskrav. Det samme gjelder hvis det er holdt tilbake eller gitt uriktige opplysninger om eiendommen. Dette gjelder likevel bare dersom man kan gå ut ifra at det virket inn på avtalen at opplysningen ikke ble gitt eller at mangelskravet ikke blir rettet i tide på en tydelig måte.
Boligen kan ha en mangel etter avhendingsloven § 3-3 andre ledd, dersom det er avvik mellom opplyst og faktisk innvendig areal, forutsatt at avviket er på 2% eller mer og minimum 1 kvm.
Ved beregning av et eventuelt prisavslag eller erstatning må kjøper selv dekke tap/kostnader opptil et beløp på kr 10 000 (egenandel).
Ikke-forbruker (næringsdrivende) – definisjon
Hvis kjøper er en juridisk person, eller en fysisk person som hovedsakelig handler som ledd i næringsvirksomhet, vil kjøpet ikke anses som et forbrukerkjøp.
Ikke-forbruker – avtalevilkår
Eiendommen har en mangel dersom den ikke er i samsvar med kravene som følger av avtalen.
Eiendommen selges «som den er», og selgers ansvar utover det konkret avtalte er da begrenset etter avhendingsloven § 3-9, første ledd andre setning.
Avhendingsloven § 3-3 andre ledd fravikes, og hvorvidt boligens arealsvikt utgjør en mangel vurderes etter avhendingsloven § 3-8.
Informasjon om kjøpers undersøkelsesplikt, herunder oppfordringen om å undersøke eiendommen nøye, gjelder også for kjøpere som ikke anses som forbrukere.
Det forutsettes at hjemmel overføres til kjøper. Hvis kjøper ikke ønsker hjemmelsoverføring av eiendommen, må det tas forbehold om dette i budet.
Meglers vederlag
Vi er opptatt av verdiskapning, og har knyttet til oss samarbeidspartnere som skal sikre våre kunder de beste produkter og tjenester;
• I forbindelse med forberedelse av salget, innhenter vi informasjon om eiendommen hovedsakelig fra vår samarbeidspartner Amibita.
• Gjensidige leverer boligselgerforsikring og tilbyr bygningsforsikring
• Boligkjøperforsikring leveres av Hiscox og med Sedgwick som skadebehandler, og er formidlet gjennom Gjensidige.
• BN bank tilbyr finansieringsløsninger
• Vår avdeling Krogsveen Pluss tilbyr flyttetjenester som utvask, visningsvask, lager, tømming og transport av flyttelass, i tillegg til å formidle kontakt med Flip for overflateoppussing.
• I forbindelse med overtagelse av eiendommen tilbyr Overo avtale om strøm, alarm og bredbånd.
• Krogsveen er, sammen med øvrige bransjeaktører, medeier i Bomega AS som tilbyr den digitale annonseringsplattformen Hjem.
Opplysninger om oppdraget
Oppdragsnummer 22-0032/26
Eiendomsmegler Krogsveen AS, avd. Sandefjord
Jernbanealléen 13, 3210, SANDEFJORD
950 007 613
Oppdragets KR-kode KR22.2632
Dato
Sist oppdatert: 14. mars 2026 kl. 00:32
Dokumenter
Dokumenter
PDF – 1009 KB
PDF – 7 MB
PDF – 1 MB
PDF – 1 MB
PDF – 682 KB
PDF – 312 KB
PDF – 29 KB
PDF – 127 KB
PDF – 392 KB
Område
Legg til steder som er viktige for deg
Visning
For å delta på visning, ber vi om at du melder deg på. Da sikrer vi at du får nødvendig informasjon og at det er satt av tilstrekkelig med tid. Kontakt megler dersom annet tidspunkt ønskes. Husk å lese salgsoppgaven før visningen, så du stiller forberedt. NB. Visning utgår dersom det ikke er noen påmeldte. Ønsker du kun å bli holdt orientert, kan du fra eiendommens hjemmeside få varsel om solgtpris, eller kontakte megler.
Lurer du på noe?
Unngå doble boligrenter
Vi tilbyr gunstig forsikring.
Vurderer du utleie?
Få et tilbud fra Utleie KrogsveenHva koster lånet?
Sjekk estimert lånekostnadVil du varsles om lignende boliger?
Ved å lagre ditt boligsøk hos oss får du beskjed når vi har en bolig som ligner denne, før den legges ut på markedet!

