Bjerkelundgata 6B
5 175 000 kr
46 m²
2 soverom
Komplett salgsoppgave

Grünerløkka
Lys og klassisk 3-roms i rolig gate – Solrik balkong mot bakgård - Varmtvann inkl - IN-ordning - Overflate oppusset 2025
Prisantydning
5 175 000 krAndel fellesgjeld
216 718 krOmkostninger
11 040 krTotalpris
5 402 758 kr
Pris
Bruksareal
46 m²BRA-I (internt bruksareal)
46 m²TBA (terrasse-balkongareal)
4 m²
Areal
Etasje
2Byggeår
1890Soverom
2 soveromBad
1 badType
AndelsleilighetEierform
AndelFasiliteter
Balkong/TerrasseFellesutgifter
5 284 kr
Nøkkelinfo
Unngå doble boligrenter
Vi tilbyr gunstig forsikring.
Vurderer du utleie?
Få et tilbud fra Utleie KrogsveenHva koster lånet?
Sjekk estimert lånekostnadBeskrivelse
Kort om eiendommen
Velkommen til Bjerkelundgata 6B!
En klassisk og lys 3-roms leilighet beliggende fantastisk til i enveiskjørt gate midt mellom Olaf Ryes plass og Birkelunden på urbane og populære Grünerløkka. Her har du virkelig alt av servicetilbud og kollektiv transport rett utenfor døren, men du er likevel skjermet fra bystøy.
- Balkong ut mot bakgård.
- Overflate oppusset i 2025
- Oppgradering av el anlegg i 2025
- Svært rolig beliggenhet.
- Gjennomgående med lys fra to sider.
- Effektiv planløsning.
- Store vinduer beriker leiligheten med naturlig lys.
- Varmtvann inkl. i felleskostnadene.
- Disponerer to kjellerboder
Her kan du virkelig skape ditt drømmehjem midt på "Løkka"!
Innhold og byggemåte
Innhold og byggemåte
Eiendommen
Bjerkelundgata 6B, 0553 OSLO
Kommunenummer 301, gårdsnummer 228, bruksnummer 8, ideell andel 1/1
Andelsnummer 8, BJERKELUNDSGATEN 6 BORETTSLAG, organisasjonsnummer 964 437 408
Innhold
Totalt bruksareal BRA: 46 kvm
BRA-i:
Leilighet:
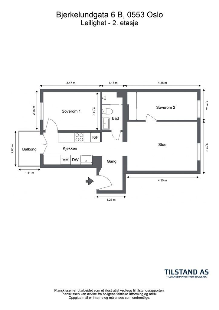
2. etasje 46 kvm: Entré, stue, kjøkken, bad og soverom.
Åpent areal:
Leilighet:
2. etasje 4 kvm: Balkong
Vedlagte plantegninger er ikke målbare. De oppgitte arealer er hentet fra rapport med befaringsdato 24.03.2026 utført av Tilstand AS. Arealene er beregnet og rom er definert etter dagens faktiske bruk.
Det gjøres oppmerksom på at boligens eksterne boder tilhører borettslagets fellesareal, og at boden således ikke eies av den enkelte andelseier.
Byggemåte
Selger har innhentet en tilstandsrapport av boligen. Av rapporten fremgår det at flere bygningsdeler har fått tilstandsgrad ikke undersøkt/ikke tilgjengelig for undersøkelse (TG IU), 2 (TG2) og/eller 3 (TG3). Rapporten beskriver også avvik på undersøkte bygningsdeler uten tilstandsgrad. Kjøper overtar ansvaret for de opplysninger som fremkommer av salgsdokumentasjonen, og kan ikke gjøre gjeldende som mangel noe som burde vært kjent eller som ikke kan anses å ha betydning for avtalen.
Les for øvrig mer om byggemåte og den tekniske tilstanden i rapporten.
Det gjøres spesielt oppmerksom på TG3 punktene:
Våtrom:
- Våtrommet må oppgraderes for å tåle normal bruk etter dagens krav. Basert på våtrommets alder (over 30 år) og påvist funksjonssvikt, må det påregnes totalrehabilitering av våtrommet. Det kan ikke utelukkes skader i etasjeskiller og/eller vegger som ikke lar seg avdekke før man river. Alle forhold med tettesjikt, våtsone, sluk m.m. må totalrenoveres. For mer informasjon, se side 9 i tilstandsrapporten.
- Tilliggende konstruksjoner våtrom. Det ble registrert muggsoppdannelse på gipsplaten som ligger på baderomssiden, bak plastsjikt. Årsaken til muggsoppdannelsen er ikke kjent, men kan tyde på utettheter i våtrommets tettesjikt. Fastsetting av tilstandsgrad 3 må sees i sammenheng med beskrivelsene av "Bad". Det er satt kostnadsestimat for totalrehabilitering av badet. For mer informasjon, se side 9 i tilstandsrapporten.
Det gjøres også oppmerksom på TG2 punktene:
Etasjeskille/gulv mot grunn:
- Lokal høydeforskjell ble målt til ca. 13 mm i stuen og ca. 18 mm på kjøkkenet. Høydeforskjellen som er målt på kjøkkenet overskrider bransjestandardens krav om planhet (> 15mm). De registrerte skjevhetene er lokale, og det er ikke påkrevet med utbedringstiltak. Har man forventninger til en helt plan gulvflate, må avretting påregnes. For mer informasjon, se side 8 i tilstandsrapporten.
Kjøkken:
- Det er ikke montert automatisk lekkasjevarsler på kjøkkenet. Det anbefales å installere lekkasjevarsler som et sikkerhetstiltak mot eventuelle lekkasjer. For mer informasjon, se side 10 i tilstandsrapporten.
Se utfyllende tekst i rapporten. Kjøper overtar ansvar og risiko for dette.
Tilstandsrapporten er inntatt i salgsoppgaven. Rapporten inneholder informasjon om avvikene og konsekvensen av disse. For avvik som er gitt TG3 har den bygningssakkyndige i tillegg gitt et anslag på hva det vil koste å utbedre disse avvikene. Ettersom kjøper regnes å være kjent med forhold som tydelig fremgår av tilstandsrapporten, oppfordres du til å sette deg grundig inn i rapporten i sin helhet.
Sammendrag av selgeres egenerklæring:
Våtrom:
- Har det vært feil på bad, vaskerom eller toalettrom?
Beskriv feilen og omfanget: "Brudd i varmekabel i gulv i 2025. Dette er punktreparert av M-Tek AS og har virket siden. Faktura fra M_Tek AS er datert 30.11.2025."
- Er det utført arbeid på bad, vaskerom eller toalettrom?
Svar: "Ja, ny baderomsinnredning og toalett fra 2019. Ble utført av faglært SK Rør AS. Satt inn ny baderomsinnredning/kran, kran i dusjen og nytt toalett. Har dokumentasjon på arbeidet"
- "Lagt ny silikonfuge i overgang gulv/veggflis samt rundt deler av nederste veggflis i bakvegg i dusjnisje. Gjort av ufaglært i 2025."
Kjeller:
- Har sameiet eller borettslaget hatt problemer med fukt, vann eller oversvømmelse i kjeller eller underetasje?
Svar: Ja, det er observert at det er litt fukt i kjeller/boder. Borettslaget har installert avfuktingsanlegg for å bedre situasjonen. Vi har fått opplysninger fra andre om at dreneringen har blitt utbedret for en del år siden. Utførelse ikke kjent av oss.
Elektrisitet:
- Er det utført arbeid på det elektriske anlegget?
Svar: "Det er lagt nye føringer fra eksisterende sikringsskap i hele leiligheten. Det er lagt ny kurs i forbindelse med induksjonstopp. Det er montert komfyrvakt. Ny termostat badgulv. Det er lagt opp nye stikkontakter/brytere og taklys/lys under kjøkkenbenk. Samsvarserklæringer fra elektriker. Tre stk nye panelovner er hengt opp. Arbeidet er gjort av faglært Roa Elektriske AS i 2025 og det er dokumentasjon på arbeidet."
Skjevheter og sprekker:
- Er det tegn på setningsskader eller sprekker i for eksempel grunnmur eller fliser?
Svar: "Ja, ser setning utvendig under soveromsvindu mot Bjerkelundgata. Små sprekker i flis vegg/gulv på badet mot dør."
Sopp og skadedyr:
- Har det vært skadedyr i fellesområdene til sameiet eller borettslaget?
Svar: "Borettslaget informerte i 2025 om at det var skadedyr i uteområder/kjeller/boder og de gjorde tiltak."
Informasjon fra styret "Borrettslaget har observert rotter i kjellere, men det blir jevnlig kontrollert av Pelias som følger opp dette. "
Standard
Entré:
Velkommen inn! Innbydende entré med plass til oppheng av ytterklær og skotøy. Sikringsskap er plassert i entré, utstyrt med automatsikringer.
Stue:
Stuen har en praktisk utforming som gjør den enkel å møblere og utnytte godt. Rommet oppleves som lyst og trivelig, med ett vindu som slipper inn naturlig lys og skaper en hyggelig atmosfære. Det er plass til sofahjørne og spisebord, og stuen fremstår som et funksjonelt oppholdsrom.
Kjøkken:
Kjøkkenet har en innredning med profilerte fronter fra ombyggingsåret og fremstår som funksjonelt og velholdt. Benkeplaten er i heltre, kombinert med oppvaskkum i stål og ettgreps armatur. Det er flislagt vegg mellom benkeplate og overskap, samt etablert belysning og stikkontakter under overskapene for god arbeidsbelysning og tilgjengelig strøm. Kjøkkeninnredningen fremstår i god stand. Benkeplate og oppvaskkum ble fornyet i ca. 2015. I 2025 er det utført oppgraderinger med maling av fronter, montering av fliser, samt etablering av belysning og stikkontakter. Stekeovn og platetopp er også nye fra 2025.
Hvitevarer inkluderer stekeovn, platetopp, oppvaskmaskin, vaskemaskin og kjøleskap med frysedel. Det er installert komfyrvakt over platetopp og brannslange i benkeskap under oppvaskkum, som bidrar til økt sikkerhet.
Utgang fra kjøkken til hyggelig balkong som vender ut mot bakgård. Selger opplyser om gode solforhold sommerstid fra ca kl 12.00-19.00. Her kan sommerdager nytes i skjermede omgivelser.
Bad:
Bad fra ombyggingsperioden 1992/1993, oppusset i regi av borettslaget. Det ble montert servant, toalett og dusjkran i 2019, samt i 2025 ble det montert nytt speil med LED-lys over servantinnredningen.
Soverom:
Hovedsoverom av god størrelse med plass til dobbeltseng, nattbord og mulig oppbevaring. Hovedsoverom vender mot lukket og stille bakgård.
Soverom II passer ypperlig som barnerom, gjesterom og/eller kontor, og vender mot enveiskjørt og rolig sidegate.
Tak/Vegger: Veggflater kledd med malt tapet. Innvendige overflater og listverk ble malt i 2025 av selger.
Gulv: Gulvbord av heltre og fliser på bad. Gulvene ble slipt og overflatebehandlet i 2025 av fagkyndig.
Dører/Vinduer: Leiligheten har en slett entrédør med sikkerhetslås, brannklassifisering B30 og lydklassifisering 35db. Balkongdør med karm av treverk og 2-lags glass fra 2006.
Løsøre og tilbehør
Vi viser til liste fra Norges Eiendomsmeglerforbund som gjelder fra 01.01.2020 angående løsøre og tilbehør.
Oppvarming
Varmekabel i gulv på bad, og panelovner i øvrige rom.
Det går pipeløp på soverommet ved stuen, med mulighet for å etablere peis.
Dersom beboelsesrom ikke har vegg- eller fastmonterte varmekilder ved visning, følger dette heller ikke med.
Ferdigattest/brukstillatelse
Det foreligger ferdigattest på eiendommen, datert 14.05.1993. Denne kan fås ved henvendelse til megler.
Sammenlignet byggetegninger og dagens løsning fremstår leiligheten lik, med unntak av:
- Lettvegg satt opp i stuen for å etablere et ekstra soverom.
Det ble gitt igangsettingstillatelse for nye balkonger, datert 15.05.2006. Videre foreligger det et sluttnotat fra kommunen, datert 12.11.2013 vedrørende henleggelse da igangsettingstillatelsen er eldre enn 3 år.
Tinglyste heftelser og rettigheter
Utover andel fellesgjeld overdras leiligheten fri for pengeheftelser.
Borettslaget har legalpant for forfalte felleskostnader og andre krav som følger av borettslagsforholdet iht. burettslagsloven § 5-20. Pantet er begrenset oppad til 2G (G = folketrygdens grunnbeløp).
Det er tinglyst 7 servitutter på borettslagets eiendom. Disse omhandler blant annet bestemmelser om adkomstrett, bruk av gårdsrom, bestemmelser om utbedring etter kommunens krav, rett til å anlegge og vedlikeholde tekn. ledninger, forbud mot parkering/lagring og bestemmelser om vedlikehold.
Servituttene vil følge eiendommen. Kjøpers bank vil få prioritet etter ovennevnte heftelser og servitutter.
Eventuell adgang til utleie
Andelseier kan ikke uten samtykke fra styret i borettslaget overlate bruken av boligen til andre. Med samtykke kan andelseier overlate boligen til andre i inntil tre år hvis andelseier har bodd i boligen i minst ett av de to siste år. Utleie i andre tilfeller kan godtas ved særlige grunner, jf. burettslagslova § 5-6. Godkjenning kan i disse tilfellene bare nektes dersom brukerens forhold gir saklig grunn til det. Godkjenning kan nektes dersom brukeren ikke kunne blitt andelseier.
Har borettslaget ikke sendt svar på skriftlig søknad om godkjenning av bruker innen en måned etter at søknaden har kommet frem til borettslaget, skal brukeren regnes som godkjent. Borettslagets kostnader til behandling og eventuell oppfølging av søknad om overlating av bruk betales av den andelseier som har søkt.
Utleie forutsetter at leiligheten har forsvarlige radonverdier. Se også borettslagets vedtekter og konferer megler ved spørsmål.
Beliggenhet og tomteforhold
Beliggenhet og tomteforhold
Beliggenhet
I Bjerkelundgata bor du på en av de mest ettertraktede adressene på Grünerløkka. Leiligheten har en sentral beliggenhet på Grünerløkka, med kort gangavstand til både Kuba og Akerselva – perfekte steder for turer og avslapning i grønne omgivelser. Du bor midt i det pulserende livet på "Løkka", omgitt av kaféer, barer, restauranter og butikker. Markveien, kjent for sine sjarmerende nisjebutikker, ligger like i nærheten.
Bare noen få minutters gange unna, på den andre siden av Akerselva, finner du Vulkan – et moderne og kreativt knutepunkt med Mathallen i sentrum. Her kan du utforske spennende råvarer, spise godt, eller besøke steder som BAR Vulkan, Døgnvill og Smelteverket – sistnevnte kjent som Nord-Europas lengste bar. I tillegg ligger Ringnes Park med kino, butikker og en stor Meny-butikk kun fem minutter unna. Oslo sentrum når du til fots på omtrent 15 minutter.
Grünerløkka er en av Oslos mest stemningsfulle bydeler, kjent for sitt levende byliv og grønne parker. Her finner du et bredt utvalg av spisesteder og barer – fra kvalitetskaffe hos Tim Wendelboe, til baskiske smaker på Txotx, italiensk pizza hos Villa Paradiso eller fransk mat på Le Benjamin. For noe godt i glasset kan du besøke steder som Territoriet, Aku Aku Tiki-bar, Nedre Løkka Cocktailbar eller Bettola.
Om du ikke nyter en rolig stund i parken eller på kafé, finnes det alltid noe å gjøre i nærområdet. Birkelunden byr ofte på markeder og kulturelle arrangementer, og langs Akerselva går det en idyllisk tursti som strekker seg fra Bjørvika i sør til Maridalen og Nordmarka i nord – perfekt for både sommer- og vinterturer.
I tillegg ligger Tøyenbadet, Botanisk hage, Zoologisk museum og det nye Munchmuseet innen gangavstand. For den treningsglade finnes både EVO og SATS rett i nærheten.
Adkomst
Det vil bli skiltet med Krogsveen visningsskilt ved fellesvisninger.
Barnehager, skoler og fritid
Informasjon om tilhørende skolekretser er hentet fra Prognosesenteret som dataleverandør, og tilhørigheten kan årlig endres av kommunen. Dersom skole- og barnehagetilbud er av betydning for kjøpet, ber vi om at det rettes en særskilt henvendelse til bydelsadministrasjonen for oppdatert informasjon.
Beskrivelse av tomt
Eiertomt på 406 kvm som tilhører borettslaget Bjerkelundsgaten 6, beliggende i bydel Grünerløkka i Oslo kommune.
Parkering
Det er innført beboerparkering i dette området (indre by). Dette betyr at du kan parkere fritt døgnet rundt på parkeringsplassene regulert til beboerparkering i området rundt din bolig for kun kr. 3.850- pr. år for fossile biler, dieselbil, hybridbil, ladbar hybrid.
Har du el-bil så betaler du kr. 1.300,- pr år, hydrogenbil og el-varebil er gratis.
Motorsykkel og moped kr 1.925,- pr år.
El-motorsykkel og el-moped kr 650,- pr år.
Se Oslo kommune sine nettsider for mer informasjon og priser for ytre by.
Vei, vann og avløp
Eiendommen har adkomst via kommunal vei.
Eiendommen er tilknyttet kommunalt ledningsnett via private stikkledninger.
Borettslaget er ansvarlig for private stikkledninger til bygningen.
Regulerings-og arealplaner
Eiendommen er regulert til bolig m.tilh anlegg i henhold til reguleringsplan S-2255 datert 28.07.1977 med tilhørende reguleringsbestemmelser, S-929. Planen er helt eller delvis opphevet som følge av bystyrets vedtak 23.09.2015 sak 262 gjennom ny "Kommuneplan 2015 - Oslo mot 2030 - Smart, trygg og grønn." Området blir berørt av endringer i reguleringsplan for Oslo Sentrum og indre sone i Oslo kommune som følge av dette. Denne nye planen får betydning for en rekke vedtatte reguleringsplaner i Oslo. Henviser til kommunens nettsider for ytterligere informasjon: https://www.oslo.kommune.no/politikk-og-administrasjon/politikk/kommuneplan/. Utsnitt av plan med tilhørende bestemmelser kan fås ved henvendelse til megler.
Utsnitt av plan med tilhørende bestemmelser kan fås ved henvendelse til megler.
Pågående byggesaker i området:
- Helgesens gate 17 - utskifting av vinduer og balkongdører
- Seilduksgata 17 - ulovlig utvidelse av uteservering - Los Tacos
- Seilduksgata 17 - endring av bygg - innvendig - Bærekonstruksjoner i bygg
- Toftes gate 58 - bruksendring av rom til bolig og fasadeendring
- Thorvald Meyers gate 36 C - bruksendring av loft og etablering av nye leiligheter og fasadeendringer
- Seilduksgata 28 - oppføring av tre balkonger
- Markveien 28 C - oppføring av enebolig
- Thorvald Meyers gate 49 - endring av brannvegg - Innsetting av dør - Etablering av platting og uteservering
- Markveien 32 F - endring av bygg og tilbygg på to etasjer
- Olaf Ryes plass 10 - oppføring av rekkehus med tre boenheter
Pågående plansaker i området:
- Saken gjelder: Toftes gate - Tilrettelegging for sykkel. Saksnr: 202308348
- Saken gjelder: Markveien - Gateopprustning. Saksnr: 202209792
- Saken gjelder: Vogts gate - Toftes gate - Fremkommelighetstiltak for trikk. Saksnr: 202315257
Eiendommen er verneverdig/SEFRAK-registrert. Dette kan medføre at større endringer av bygningen må godkjennes av kommunen eller fylket før igangsetting.
Kontakt megler for mer informasjon.
Økonomi
Økonomi
Boligens kostnader
Felleskostnadene er kr 5.284,- pr. mnd. og inkluderer: Varmtvann, internett/tv (basispakke), trappevask, vaktmester, byggforsikring, renter og avdrag på lån, forretningsførsel og kommunale avgifter.
Felleskostnadene fordeles slik:
Felleskostnader drift: 3.352,-
Renter IN-lån: 930,-
Avdrag IN-lån: 687,-
Tilleggsytelser: Fiber 315
Andel renter og avdrag på fellesgjelden reguleres månedlig i henhold til gjeldende rente i banken. Det sendes ikke ut spesielt varsel ved endring av lånekostnadene.
Fellesutgiftene justeres normalt en gang årlig i forhold til sameiets faktiske utgifter og ble sist justert januar 2025. Borettslaget kan endre felleskostnadene med en måneds skriftlig varsel. Styreleder opplyser pr 16.04.2026 at det ikke er planlagt noe ny økning av felleskostnadene.
Nåværende eier har et strømforbruk som tilsvarer ca. 5.000 kwh. pr. år.
Boligen er tilknyttet NextGen - tel (basispakke) igjennom felleskostnadene. Tv-tuner/dekoder medfølger ikke.
Boligen er ikke tilknyttet alarmselskap.
Utgiftene er basert på nåværende eiers forbruk. Kjøper må selv tegne innboforsikring.
Formuesverdi
Formuesverdi for 2024 var kr 1 189 518,- ifølge Skatteetaten. Beløpet forutsetter at eier bor fast i boligen (primærbolig).
Ved eventuell øvrig bruk av eiendommen (f.eks. fritidsbolig, pendlerbolig, utleieobjekt) var formuesverdien for 2024 kr 4 758 072,-.
Fra 2026 har Stortinget vedtatt en oppdatert modell for beregning av formuesverdi for primærbolig, så avvik kan forekomme.
For mer informasjon se skatteetaten.no
Opplysninger om fellesgjeld
Andel formue er kr 33 752,- pr. 31.12.2015
Andel fellesgjeld er kr 216 718,- pr. 07.04.2026
Total fellesgjeld for boligselskapet er kr 3.281.087,- pr. 07.04.2026 og lånevilkårene er:
Lånenummer: 16366587415, DNB Bank ASA
Annuitetslån, 4 terminer per år.
Rentesats per 07.04.2026: 5.15% pa.
Antall terminer til innfrielse: 67
Saldo per 07.04.2026: 3 281 087
Andel av saldo: 216 719
Første termin/første avdrag: 30.03.2023 ( siste termin 30.12.2042 )
Dette borettslaget har tilrettelagt for individuell nedbetaling av andel fellesgjeld (IN-ordning). Det vil si at hver enkelt andelseier helt eller delvis kan velge å nedbetale sin andel av borettslagets fellesgjeld til boligbyggelaget. Dette vil i så fall medføre en reduksjon av de månedlige felleskostnadene (andel av renter og avdrag på fellesgjelden). Nedbetalt andel av fellesgjeld knyttes til andelen og følger andelen ved et eventuelt salg. Det er anledning til å nedbetale lånet den 15. mars og 15. september, forutsatt flytende rente. Usbl må kontaktes senest to uker før nedbetaling.
Fellesgjelden kan innløses. Dette vil medføre en reduksjon i felleskostnadene med ca kr 1.600,-.
Omkostninger
5 175 000,00 Prisantydning
216 718,00 Andel av fellesgjeld
--------------------------------------------------------
5 391 718,00 Pris inkl. fellesgjeld
Omkostninger
9 950,00 Gjensidige Boligkjøperpakke* (valgfritt)
545,00 Tinglysing hjemmel
545,00 Tinglysing panterettsdokument
--------------------------------------------------------
1 090,00 (Omkostninger totalt (uten Gjensidige Boligkjøperpakke))
11 040,00 Omkostninger totalt (med Gjensidige Boligkjøperpakke))
--------------------------------------------------------
5 392 808,00 Totalpris inkl. omkostninger
5 402 758,00 Totalpris inkl. omkostninger (med Gjensidige Boligkjøperpakke)
--------------------------------------------------------
Dersom kjøper ikke er medlem av boligbyggelaget, må det påregnes en innmeldingsavgift og årlig medlemsgebyr pr. ny andelseier. Dette faktureres direkte fra boligbyggelaget.
Dersom borettslaget har fellesgjeld, vil leilighetens andel av fellesgjelden komme i tillegg til kjøpesummen. Denne gjelden skal ikke innbetales i oppgjøret, men følger leiligheten.
Det tas forbehold om endringer i avgifter og gebyrer.
Tilbud om lånefinansiering
Megler formidler gjerne kontakt med rådgiver hos vår samarbeidspartner BN Bank. De har konkurransedyktige betingelser samt rask og løsningsorientert behandling av din lånesøknad. Krogsveen mottar et honorar dersom lån opprettes.
Betalingsbetingelser
Kjøpesum inkludert omkostninger, samt pantedokument tilknyttet eventuelt lån, skal være disponibelt hos megler 2 virkedager før overtagelsen.
Annen viktig informasjon
Annen viktig informasjon
Eier
Steffen Strømnes og Mona Ryen Strømnes
Informasjon om borettslaget
Leiligheten er tilknyttet Bjerkelundsgaten 6 Borretslag. Borettslaget består av 18 leiligheter.
Forretningsfører er Usbl, tlf. 22 98 38 00.
Dugnad samt trappevask må påregnes.
Ved anskaffelse av husdyr, må dette meldes fra til styret og husdyrreglementet skal underskrives.
Planlagte påkostninger:
Styreleder opplyser 16.04.2026 at det pr dags dato ikke er planlagt noen større prosjekter. Det blir videre informert om at borrettslaget er i en prosess med å utarbeide en vedlikeholdsplan som vil følges fra 2027. Nødvendig vedlikehold vil bli budsjettert inn i 2027 og styreleder sier at hvordan disse prosjektene blir finansiert er ikke satt.
I henhold til borettslagets vedtekter må kjøper godkjennes av styret som ny andelseier. Det er kjøpers ansvar at styregodkjenning blir gitt, men styret kan ikke nekte godkjenning uten saklig grunn.
Iht. burettslagslova kan man bare eie én andel i borettslaget. Kun fysiske personer kan være andelseiere.
Borettslaget er tilknyttet Borettslagenes Sikringsordning AS som dekker manglende innbetaling av felleskostnader fra øvrige andelseiere. Avtalen om sikring er gyldig til avtalen sies opp av en av partene. Oppsigelsesfrist er 1 desember med gyldighet fra førstkommende årsskifte.
Overtakelse
Etter nærmere avtale. Overtakelse kan tidligst skje etter at forkjøpsretten for øvrige andelseiere i borettslaget og eventuelt medlemmer av boligbyggelaget er avklart, samt at styrets godkjennelse er avklart.
Boligselgerforsikring
Selger har i forbindelse med salget tegnet boligselgerforsikring levert av Gjensidige.
Boligselgerforsikringen dekker selgers ansvar etter avhendingsloven begrenset oppad til kr 14 millioner. Dersom kjøper oppdager forhold ved eiendommen som hen mener utgjør en mangel ved eiendommen, vil Gjensidige behandle reklamasjonen på vegne av selger. Forsikringsvilkår kan fås ved henvendelse til megler.
Vedlagt salgsoppgaven følger selgers egenerklæringsskjema og tilstandsrapport. Interessenter må sette seg inn i dokumentene før bud inngis.
Boligkjøperforsikring
Innen kontraktsmøtet må kjøper ta stilling til om det ønskes å bestille Boligkjøperpakken gjennom Gjensidige. I denne gunstige pakken er boligen ferdig forsikret og inkluderer rettshjelpsforsikring, også kalt Boligkjøperforsikring. Rettshjelpsforsikring gir trygghet og tilgang på profesjonell juridisk hjelp dersom det oppdages uventede feil eller mangler det første året etter overtagelse. Forsikringsselskapet behandler i så fall ethvert mangelskrav kjøper måtte ha overfor selger.
Boligkjøperpakken inkluderer bygningsforsikring for hus og hytte, innboforsikring, flytteforsikring og dobbel rentedekning - i situasjoner hvor kjøper ikke får solgt nåværende primærbolig.
Kjøper mottar ingen særskilt faktura for Boligkjøperpakken da kostnaden det første året legges til kjøpesummen for boligen. Det gjøres oppmerksom på Krogsveen mottar et honorar for denne formidlingen.
Produktark for Boligkjøperpakken ligger vedlagt i salgsoppgaven.
Dersom ikke boligkjøperpakke ønskes kan kun rettshjelpsforsikring, også kalt boligkjøperforsikring, tegnes særskilt via megler. Rettshjelpsforsikringen varer i 5 år fra overtagelse og leveres gjennom Gjensidige. Ta kontakt med megler for ytterligere informasjon.
Selskap og privatpersoner som driver med kjøp/salg/utvikling som ledd i egen næringsvirksomhet kan ikke tegne boligkjøperpakke eller rettshjelpsforsikring.
Budgivning
Forbrukerinformasjon om budgivning er vedlagt denne salgsoppgaven og er også på vår hjemmeside Krogsveen.no. Alle bud og budforhøyelser må inngis skriftlig. I tillegg må legitimasjon være fremlagt sammen med signatur fra budgiver.
Vi oppfordrer til å gi bud elektronisk via GI BUD-knappen på eiendommens hjemmeside på Krogsveen.no. Da vil samtlige vilkår bli oppfylt.
Eventuelle forhøyelser eller endringer av budet kan bekreftes pr SMS eller på e-post. Vi oppfordrer alltid til å kontakte megler pr. telefon i tillegg da forsinkelser i SMS og e-post kan forekomme.
For at budene skal kunne bli behandlet og videreformidlet skriftlig til alle involverte parter, må alle bud ha en tilstrekkelig lang akseptfrist, jf. eiendomsmeglingsforskriften § 6-3.
Selger må også skriftlig akseptere budet før aksept kan formidles til budgiver. Akseptfrist bør derfor være på minimum 30 minutter, og budforhøyelser må derfor skje i god tid før fristens utløp.
Bud i forbrukerforhold kan uansett ikke settes med kortere frist enn kl. 12.00 første virkedag etter siste annonserte visning. I tillegg kan ikke budet ha forbehold om at det skal holdes hemmelig ovenfor øvrige interessenter. Megler har iht lov om eiendomsmegling ikke anledning til å videreformidle disse budene, og de vil dermed heller ikke bli journalført.
Etter at eiendommen er solgt vil kjøper og selger få tilsendt budjournal. Øvrige budgivere kan få utlevert kopi av budjournalen i anonymisert form.
Hvitvaskingsreglene
I henhold til lov om hvitvasking og terrorfinansiering har megler plikt til å gjennomføre kontrolltiltak overfor kunder, herunder fullmektiger. Dette innebærer bl.a. å bekrefte kunders og reelle rettighetshaveres identitet på bakgrunn av fremvist gyldig legitimasjon eller på annen godkjent måte, samt å innhente opplysninger om kundeforholdets formål og tilsiktede art.
Dersom slike kundetiltak ikke kan gjennomføres, kan megler ikke etablere kundeforholdet eller utføre transaksjonen.
Hvis kjøper ikke bidrar til gjennomføring av kundekontrollen og dette fører til at transaksjonen blir forsinket eller ikke kan gjennomføres, vil dette ansees som mislighold av avtalen og gi selger rettigheter etter avhendingslova kapittel 5. I tilfeller der selger ikke bidrar til gjennomføring av løpende kundekontroll underveis i oppdraget, er det selger som misligholder sine forpliktelser etter avtalen og gi kjøper rettigheter etter avhendingslovens kapittel 4. Partene er selv ansvarlige for eventuelle kostnader og ansvar dette kan medføre. Eiendomsmegleren eller eiendomsmeglingsforetaket kan ikke holdes ansvarlig for de konsekvenser dette vil kunne få for partene eller andre som har interesser i eiendomshandelen.
Kjøper oppfordres til å innbetale kjøpesummen som ikke kommer fra låneinstitusjon i én samlet innbetaling fra egen konto i norsk bank. Megler har plikt til å melde fra til Økokrim om eiendomshandler som fremstår som mistenkelige. Melding sendes Økokrim uten at partene varsles.
Personopplysningsloven
I henhold til personopplysningsloven gjør vi oppmerksom på at interessenter kan bli registrert for videre oppfølging.
Lovanvendelse
Generelle bestemmelser
Salgsoppgaven er basert på de opplysningene selger har gitt til megler, den bygningssakyndiges tilstandsrapport, samt opplysninger innhentet fra kommunen, Kartverket og andre tilgjengelige kilder. Det er viktig at kjøper setter seg grundig inn i alle salgsdokumentene, herunder salgsoppgave, tilstandsrapport og selgers egenerklæring. Kjøper anses kjent med forhold som er tydelig beskrevet i salgsdokumentene, og slike forhold kan ikke påberopes som mangler. Dette gjelder uavhengig av om kjøper har lest dokumentene. Alle interessenter oppfordres til å undersøke eiendommen nøye, gjerne sammen med fagkyndig før bud inngis. Kjøper som velger å kjøpe usett kan ikke gjøre gjeldende som mangel noe han burde blitt kjent med ved undersøkelsen.
Dersom det er behov for avklaringer, anbefaler vi at interessenter rådfører seg med eiendomsmegler eller egne rådgivere før det legges inn bud.
En bolig som har blitt brukt i en viss tid, har vanligvis blitt utsatt for slitasje og skader kan ha oppstått. Slik bruksslitasje må kjøper regne med, og det kan avdekkes enkelte forhold etter overtakelse som nødvendiggjør utbedringer. Normal slitasje og skader som nødvendiggjør utbedring, er innenfor hva kjøper må forvente og vil ikke utgjøre en mangel.
Kjøper og selgers rettigheter og plikter reguleres av avtalen mellom partene, samt informasjonen som har vært tilgjengelig for kjøperen i forbindelse med handelen. Avtalen utfylles av avhendingsloven, og det gjelder ulike avtalevilkår avhengig av om kjøper er forbrukerkjøper eller ikke. Dette er nærmere beskrevet nedenfor.
På grunn av ulike avtalevilkår kan selger vurdere bud fra en som ikke er forbruker, ulikt fra en forbrukers bud. Dersom kjøper ikke er forbruker, er selger sitt mulige mangelsansvar begrenset fordi eiendommen selges "som den er". Selger kan ikke ta «som den er»- forbehold overfor en forbrukerkjøper. Selv et lavere bud fra en som ikke er forbruker kan foretrekkes fordi begrensningen i mulig mangelsansvar kan ha egenverdi for selger. Selger står fritt til å forkaste eller akseptere ethvert bud, og er for eksempel ikke forpliktet til å akseptere høyeste bud.
Budgiver skal i budskjema avgi egenerklæring om budgiver er forbruker eller næringsdrivende/ person som hovedsakelig handler som ledd i næringsvirksomhet. Budgivere får informasjon dersom andre bud er inngitt av en som ikke er forbruker.
Forbrukerkjøp - definisjon
Med forbrukerkjøp menes kjøp av eiendom når kjøperen er en fysisk person som ikke hovedsakelig handler som ledd i næringsvirksomhet.
Forbruker – avtalevilkår
Eiendommen har en mangel dersom den ikke er i samsvar med kravene som følger av avtalen, eller det foreligger brudd på bestemmelsene i avhendingsloven §§ 3-2 til 3-8. Hvis eiendommen ikke er i samsvar med det kjøperen må kunne forvente ut ifra alder, type og synlig tilstand, kan det være grunnlag for mangelskrav. Det samme gjelder hvis det er holdt tilbake eller gitt uriktige opplysninger om eiendommen. Dette gjelder likevel bare dersom man kan gå ut ifra at det virket inn på avtalen at opplysningen ikke ble gitt eller at mangelskravet ikke blir rettet i tide på en tydelig måte.
Boligen kan ha en mangel etter avhendingsloven § 3-3 andre ledd, dersom det er avvik mellom opplyst og faktisk innvendig areal, forutsatt at avviket er på 2% eller mer og minimum 1 kvm.
Ved beregning av et eventuelt prisavslag eller erstatning må kjøper selv dekke tap/kostnader opptil et beløp på kr 10 000 (egenandel).
Ikke-forbruker (næringsdrivende) – definisjon
Hvis kjøper er en juridisk person, eller en fysisk person som hovedsakelig handler som ledd i næringsvirksomhet, vil kjøpet ikke anses som et forbrukerkjøp.
Ikke-forbruker – avtalevilkår
Eiendommen har en mangel dersom den ikke er i samsvar med kravene som følger av avtalen.
Eiendommen selges «som den er», og selgers ansvar utover det konkret avtalte er da begrenset etter avhendingsloven § 3-9, første ledd andre setning.
Avhendingsloven § 3-3 andre ledd fravikes, og hvorvidt boligens arealsvikt utgjør en mangel vurderes etter avhendingsloven § 3-8.
Informasjon om kjøpers undersøkelsesplikt, herunder oppfordringen om å undersøke eiendommen nøye, gjelder også for kjøpere som ikke anses som forbrukere.
Det forutsettes at hjemmel overføres til kjøper. Hvis kjøper ikke ønsker hjemmelsoverføring av eiendommen, må det tas forbehold om dette i budet.
Meglers vederlag
Meglers vederlag betales av selger og er avtalt til:
Fastpris: 45 000,-
Vederlag:
Kontroll av hjemmel og heftelser kr 3 900,-
Markedsføringspakke kr 30 900,-
Oppgjør kr 8 900,-
Tilrettelegging kr 19 900,-
Visninger pr stk / Overtagelse kr 4 000,-
Utlegg:
Eierskiftegebyr forretningsfører -Usbl kr 6 725,-
Innhenting av informasjon forretningsfører - Usbl kr 5 138,-
Tinglysing sikring kr 545,-
Andre utgifter:
Foto (Iht. avtale med fotografen) kr 2 000,-
Vi er opptatt av verdiskapning, og har knyttet til oss samarbeidspartnere som skal sikre våre kunder de beste produkter og tjenester;
• I forbindelse med forberedelse av salget, innhenter vi informasjon om eiendommen hovedsakelig fra vår samarbeidspartner Ambita.
• Gjensidige leverer boligselgerforsikring og tilbyr bygningsforsikring
• Boligkjøperforsikring leveres av Hiscox og med Sedgwick som skadebehandler, og er formidlet gjennom Gjensidige.
• BN bank tilbyr finansieringsløsninger
• Vår avdeling Krogsveen Pluss tilbyr flyttetjenester som utvask, visningsvask, lager, tømming og transport av flyttelass, i tillegg til å formidle kontakt med Flip for overflateoppussing.
• I forbindelse med overtagelse av eiendommen tilbyr Overo avtale om strøm, alarm og bredbånd.
• Krogsveen er, sammen med øvrige bransjeaktører, medeier i Bomega AS som tilbyr den digitale annonseringsplattformen Hjem.
Opplysninger om oppdraget
Oppdragsnummer 40-0060/26
Eiendomsmegler Krogsveen AS, avd. Majorstuen og Oslo Vest
Hegdehaugsveien 31, 0352, OSLO
950 007 613
Oppdragets KR-kode KR40.2660
Dato
Sist oppdatert: 17. april 2026 kl. 18:23
Dokumenter
Dokumenter
PDF – 964 KB
PDF – 183 KB
PDF – 2 MB
PDF – 163 KB
PDF – 312 KB
PDF – 29 KB
PDF – 127 KB
PDF – 392 KB
Område
Legg til steder som er viktige for deg
Visning
Unngå doble boligrenter
Vi tilbyr gunstig forsikring.
Vurderer du utleie?
Få et tilbud fra Utleie KrogsveenHva koster lånet?
Sjekk estimert lånekostnadVil du varsles om lignende boliger?
Ved å lagre ditt boligsøk hos oss får du beskjed når vi har en bolig som ligner denne, før den legges ut på markedet!

