Gressrudveien 3
8 000 000 kr
221 m²
3 soverom
Solgt

Strømmen
Enebolig m/ frodig & velstelt, flat tomt og dobbelgarasje. Alt det nødvendige samlet på én flate. Nærhet til tog & buss!
Prisantydning
8 000 000 krOmkostninger
220 990 krTotalpris
8 220 990 kr
Pris
Bruksareal
264 m²BRA-I (internt bruksareal)
221 m²BRA-E (eksternt bruksareal)
43 m²TBA (terrasse-balkongareal)
18 m²
Areal
Etasje
2Byggeår
1976Soverom
3 soveromBad
2 badTomteareal
1 024 m² (eiet)Type
Enebolig - FrittliggendeEierform
EietFasiliteter
Garasje/P-plass og Balkong/TerrasseEnergimerke
Oransje F
Nøkkelinfo
Unngå doble boligrenter
Vi tilbyr gunstig forsikring.
Vurderer du utleie?
Få et tilbud fra Utleie KrogsveenHva koster lånet?
Sjekk estimert lånekostnadBeskrivelse
Kort om eiendommen
Velkommen til Gressrudveien 3 – en innholdsrik enebolig i et etablert og barnevennlig boligområde på Strømmen.
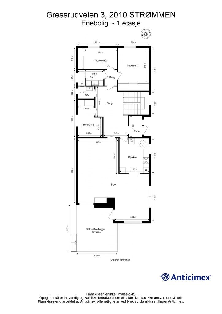
Boligen går over to plan, men har alt det nødvendige samlet på én flate – en praktisk løsning som gjør den godt egnet i alle livsfaser. Første etasje består av entré, to ganger, bad, separat toalettrom, tre soverom, stue og kjøkken.
Den flate tomten og enkle adkomsten gjør eiendommen barnevennlig og lett å trives i – både for barnefamilier og voksne i alle livssituasjoner. Varme dager kan nytes i den usjenerte og pent opparbeidede hagen – perfekt for lek, ballspill og hyggelige stunder med familie og venner.
- 3 soverom.
- Egen inngang til kjeller.
- Dobbelgarasje og godt med parkeringsmuligheter på egen tomt.
- Lettstelt, flat tomt med svært gode solforhold hele dagen.
Område
Legg til steder som er viktige for deg
På flyttefot? Tenk kjøp og salg samtidig.
Få din egen rådgiver gjennom hele kjøps- og salgsprosessen. Det starter med en verdivurdering.
Unngå doble boligrenter
Vi tilbyr gunstig forsikring.
Vurderer du utleie?
Få et tilbud fra Utleie KrogsveenHva koster lånet?
Sjekk estimert lånekostnadVil du varsles om lignende boliger?
Ved å lagre ditt boligsøk hos oss får du beskjed når vi har en bolig som ligner denne, før den legges ut på markedet!

