Hekkeløpveien 13
5 200 000 kr
188 m²
3 soverom
Solgt

Bugården
Bud innkommet - Innholdsrik og romslig enebolig i populært og barnevennlig område - nydelig og solrik tomt - garasje
Prisantydning
5 200 000 krOmkostninger
150 990 krTotalpris
5 350 990 kr
Pris
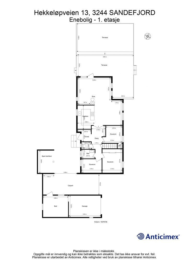
Bruksareal
218 m²BRA-I (internt bruksareal)
188 m²BRA-E (eksternt bruksareal)
30 m²TBA (terrasse-balkongareal)
81 m²
Areal
Etasje
1Byggeår
1967Soverom
3 soveromBad
2 badTomteareal
706 m² (eiet)Type
Enebolig - FrittliggendeEierform
EietFasiliteter
Garasje/P-plass og Balkong/TerrasseEnergimerke
Oransje F
Nøkkelinfo
Unngå doble boligrenter
Vi tilbyr gunstig forsikring.
Vurderer du utleie?
Få et tilbud fra Utleie KrogsveenHva koster lånet?
Sjekk estimert lånekostnadBeskrivelse
Kort om eiendommen
Velkommen til Hekkeløpveien 13 - en enebolig med en gjennomtenkt og praktisk planløsning, perfekt for deg som ønsker en funksjonell og familievennlig bolig i populære og etablerte omgivelser. Boligen fremstår som lys og innbydende, med lyse og tidsriktige fargevalg. Gulvene har for det meste laminat og fliser. Stuen har en god romfølelse og naturlig plass til både sofagruppe og stort spisebord. Herfra er det også direkte utgang til en solrik og stor terrasse, og videre til en skjermet og barnevennlig hage. Det er parkering i stor gårdsplass, samt i garasje og carport.
Veletablert og populært boligområde som særlig appellerer til barnefamilier. Her bor du i et rolig og trygt nabolag, samtidig som du har kort vei til både skoler, barnehager, butikker og fritidsaktiviteter.
Område
Legg til steder som er viktige for deg
På flyttefot? Tenk kjøp og salg samtidig.
Få din egen rådgiver gjennom hele kjøps- og salgsprosessen. Det starter med en verdivurdering.
Unngå doble boligrenter
Vi tilbyr gunstig forsikring.
Vurderer du utleie?
Få et tilbud fra Utleie KrogsveenHva koster lånet?
Sjekk estimert lånekostnadVil du varsles om lignende boliger?
Ved å lagre ditt boligsøk hos oss får du beskjed når vi har en bolig som ligner denne, før den legges ut på markedet!

