Furusethgata 8
7 800 000 kr
105 m²
2 soverom
Komplett salgsoppgave

Jessheim sentrum
Toppleilighet med utsøkt utsikt midt i sentrum av Jessheim-Luftig og meget god planløsning-Balkong og heis.
Prisantydning
7 800 000 krOmkostninger
206 040 krTotalpris
8 006 040 kr
Pris
Bruksareal
110 m²BRA-I (internt bruksareal)
105 m²BRA-E (eksternt bruksareal)
5 m²TBA (terrasse-balkongareal)
19 m²
Areal
Etasje
7Byggeår
2017Soverom
2 soveromBad
1 badType
EierleilighetEierform
EierseksjonFasiliteter
HeisFellesutgifter
5 335 krEnergimerke
Lysegrønn C
Nøkkelinfo
Unngå doble boligrenter
Vi tilbyr gunstig forsikring.
Vurderer du utleie?
Få et tilbud fra Utleie KrogsveenHva koster lånet?
Sjekk estimert lånekostnadBeskrivelse
Kort om eiendommen
Furusethgata 8 er en lekker leilighet midt i sentrum av Jessheim. Leiligheten ligger over Jessheim storsenter og byr på herlig utsikt fra balkong, tilgang til felles takhage og umiddelbar nærhet til alt du trenger i hverdagen.
Leiligheten har store vinduer, gjennomgående planløsning, og god takhøyde fremstår den som et attraktivt hjem med luftig atmosfære og smarte løsninger. Det er heis opp til leilighetsplan og sameiet gir mulighet for leie av garasjeplass.
Den store stuen ligger i åpen løsning med kjøkken i moderne design. Badet har dusjhjørne og toalett, og det er i tillegg et eget toalettrom. Videre har leiligheten en pen entré og to soverom med tilhørende skap. Gjennomgående enstavs parkett og lyse vegger gjør det enkelt å innrede etter egen smak og stil. Egen sportsbod i 3.etg.
Innhold og byggemåte
Innhold og byggemåte
Eiendommen
Furusethgata 8, 2050 JESSHEIM
Kommunenummer 3209, gårdsnummer 135, bruksnummer 912, seksjonsnummer 59, ideell andel 1/1
Innhold
Totalt bruksareal BRA: 110 kvm
BRA-i:
Leilighet:
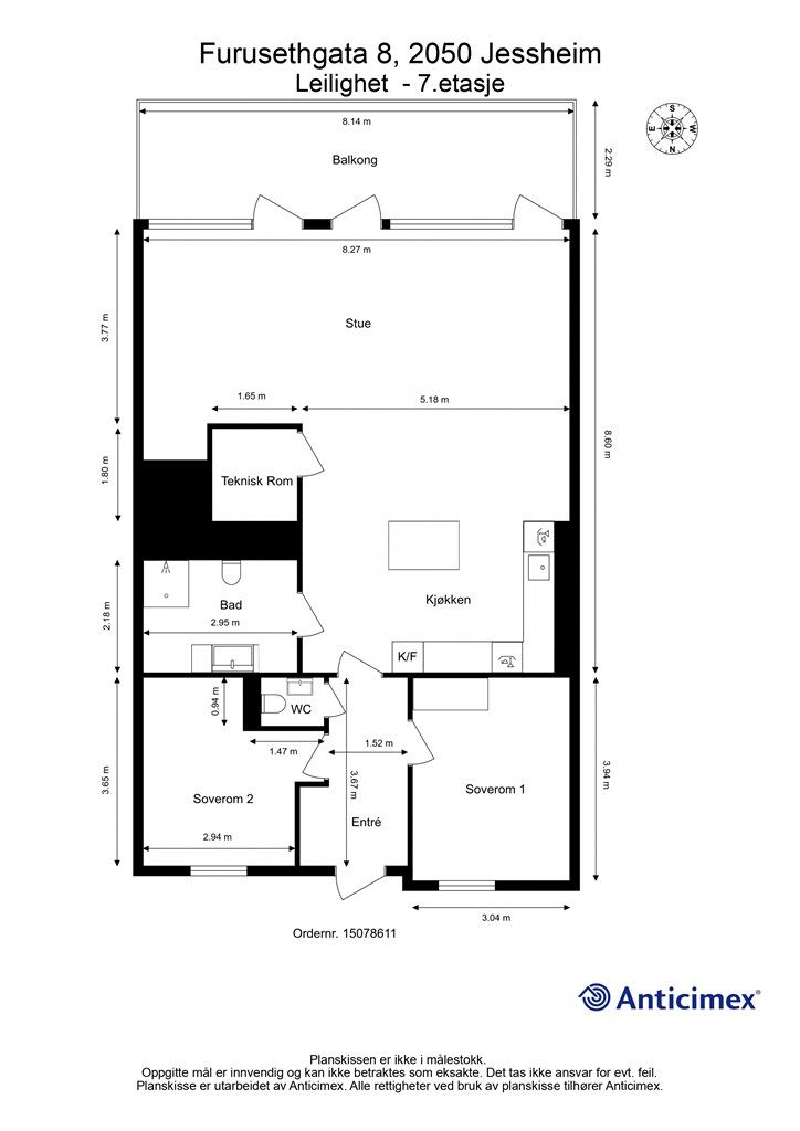
7. etasje 105 kvm: Entré, stue/kjøkken, baderom, toalettrom, to soverom og teknisk rom.
BRA-e:
Bod:
3. etasje 5 kvm: Bod
Åpent areal:
Leilighet:
7. etasje 19 kvm: Balkong
Boligen disponerer en bod i 3. etg.
Vedlagte plantegninger er ikke målbare. De oppgitte arealer er hentet fra rapport med befaringsdato 21.01.2026 utført av Anticimex AS.
Byggemåte
Selger har fått utarbeidet en tilstandsrapport, dvs. en teknisk gjennomgang av boligen hvor eventuelle avvik, risiko for kjøper og prisoverslag for hva som bør gjøres av oppgradering, er skissert. Se særskilt TGIU (tilstandsgrad ikke undersøkt), samt TG2 og TG3 som viser hva som er boligens normale slitasje, alder og type, hva som er avvik fra dette og hva som bør/må utbedres. Rapporten og selgers egenerklæring er en del av salgsoppgaven og må leses nøye før bud inngis. Kjøper overtar ansvaret for de opplysninger som fremkommer av salgsdokumentasjonen, og kan ikke gjøre gjeldende som mangel noe som burde vært kjent eller som ikke kan anses å ha betydning for avtalen.
Bygningen er iht. tilstandsrapporten oppført i tre/mur/betong. Boligbygg over 7 etasjer samt to underetasjer. Gulv mot grunn av betong. Grunnmur, bærende konstruksjoner og skillende dekker av stål og betong. Utvendige fasader i pussede/malte flater og fasadeplater. Tilnærmet flat takkonstruksjon utvendig tekket med papp/membran (taket er ikke
besiktiget). Les for øvrig mer om byggemåte og den tekniske tilstanden i rapporten.
Det gjøres spesielt oppmerksom på:
Følgende bygningsdeler har fått TG2 (vesentlig avvik) i tilstandsrapporten:
Våtrom - Baderom :
- Overflater gulv: Det er registrert en langsgående større sprekk i overgangen mellom gulv/vegg. Det kan ikke utelukkes skader i bakenforliggende konstruksjon. Ytterligere undersøkelser anbefales for å avdekke skadeomfang/skadeårsak. Forholdet må utbedres.
- Membran, tettesjikt og overgang til sluk.: Det er registrert en langsgående større sprekk i overgangen mellom gulv/vegg. Det kan ikke utelukkes skader i bakenforliggende membran/tettesjikt. Ytterligere undersøkelser anbefales for å avdekke skadeomfang/skadeårsak.
- Sanitærutstyr / innredning: Drenering fra innebygget sisterne er ikke registrert. Eventuell fukt i konstruksjonen vil derfor kunne medføre skader over tid før det oppdages.
Øvrige rom:
- Overflater gulv: Parkettbord er kappet med for stor avstand mot vegg og vinduer, det er derfor en glippe mellom lister og vegg/vindu. Eventuell utbedringer kan vurderes.
Følgende bygningsdeler har fått TG3 (store eller alvorlige avvik) i tilstandsrapporten:
Det ble ikke funnet noen punkter med denne tilstandsgraden i rapporten.
Kjøper overtar ansvar og risiko for dette.
Selger opplyser i egenerklæringsskjema:
Spørsmål: Har du andre opplysninger om boligen eller eiendommen utover det du har svart? Svar: Ja, på alle bad på Skovly skal gulv skiftes. Dette gjøres uten kostnad for hver seksjonseier.
Standard
Velkommen til Furusethgata 8!
Et meget attraktiv, stor og tiltalende 3-roms eierleilighet beliggende på Skovly rett over Jessheim storsenter. Leiligheten ligger i 7. etasje og har fantastisk vidstrakt utsikt over Jessheim.
Entré
Bygget har heisadkomst til etasjeplan og adkomst til leiligheten er via svalgang. Entreen har callinganlegg og er holdt i samme stil som øvrige rom med enstavs parkett på gulv og lyse vegger. Fra entreen er det inngang til begge soverom, separat toalettrom og en dør med glassfelt inn til kjøkken og stue.
Kjøkken
Kjøkkenet ligger i åpen løsning mot stuen og er holdt i et lyst, tiltalende design med glatte trefronter på underskap og hvite, glatte fronter på overskap. En pen kjøkkenøy gir både ekstra lagringsmuligheter, arbeidsrom og en fin spiseplass for to. Innredningen har også hvit benkeplate i laminat, oppvaskkum i stål, og aquastop montert i benken. Videre er det integrert platetopp, stekeovn, og oppvaskmaskin, samt kjøl- og fryseskap.
Stue
Stuen oppleves som svært tiltalende og har en god atmosfære med enstavs parkett, takhøyde på 2,90 meter, downlights og store vindusflater som slipper inn rikelig med naturlig lys. Fra stuen er det utgang til en meget pen balkong hvor den vidstrakte utsikten kan nytes. Stuen har for øvrig god plass til både sofagruppe, tv-løsning og et større spisebord.
Bad/wc
Det delikate badet har flislagte overflater, gulvvarme, mekanisk avtrekk og downlights. Innredningen har hvite, glatte skuffefronter, heldekkende servant og speil med integrert belysning. Badet har ellers veggmontert toalett og dusjhjørne med rette, innfellbare glassdører. Leiligheten har også et separat toalettrom med adkomst fra entré.
Soverom og garderobe
Leiligheten har to soverom med tilhørende hvite garderobeskap. Begge soverom er av god størrelse og har enstavs parkett på gulv, lysmalte vegger og store vinduer. Leiligheten har ekstra lagringsplass i en innvendig bod og det medfølger en sportsbod på ca. 5 kvm på sameiets fellesareal.
Det er kun de hvitevarene som er listet opp som følger med. Det gjøres oppmerksom på at hvitevarene er kjøpt for noen år tilbake, og kjøper må
forvente slitasje som følge alder og normal bruk.
Løsøre og tilbehør
Vi viser til liste fra Norges Eiendomsmeglerforbund som gjelder fra 01.01.2020 angående løsøre og tilbehør.
Oppvarming
Leiligheten blir oppvarmet med vannbåren gulvvarme og har balansert ventilasjon samt felles varmtvann. Dersom beboelsesrom ikke har vegg- eller fastmonterte varmekilder ved visning følger dette heller ikke med.
Ferdigattest/brukstillatelse
Det foreligger ferdigattest på eiendommen datert 23.03.2020. Denne kan fås ved henvendelse til megler.
Tinglyste heftelser og rettigheter
På eiendommen er det tinglyst følgende servitutter/rettigheter som følger eiendommens matrikkel ved overskjøting til ny hjemmelshaver:
3033/135/912/59:
24.02.1869 - Dokumentnr: 909194 - Utskifting
Overført fra gnr 135 bnr 19
Overført fra: Knr:3033 Gnr:135 Bnr:912
Gjelder denne registerenheten med flere
04.12.1919 - Dokumentnr: 900169 - Bestemmelse om veg
Rettighetshaver er den del av 135/298 som før
sammenføyningen utgjorde 135/113.
Overført fra: Knr:3033 Gnr:135 Bnr:912
Gjelder denne registerenheten med flere
04.12.1919 - Dokumentnr: 900170 - Bestemmelse om vannledn.
Rettighetshaver: Knr:3033 Gnr:135 Bnr:114
Overført fra: Knr:3033 Gnr:135 Bnr:912
Gjelder denne registerenheten med flere
20.03.1920 - Dokumentnr: 900286 - Elektriske kraftlinjer
Overført fra: Knr:3033 Gnr:135 Bnr:912
Gjelder denne registerenheten med flere
20.03.1920 - Dokumentnr: 900287 - Elektriske kraftlinjer
Overført fra gnr 135 bnr 10
Overført fra: Knr:3033 Gnr:135 Bnr:912
Gjelder denne registerenheten med flere
20.03.1920 - Dokumentnr: 900288 - Elektriske kraftlinjer
Overført fra: Knr:3033 Gnr:135 Bnr:912
Gjelder denne registerenheten med flere
27.06.1951 - Dokumentnr: 1687 - Bestemmelse om vannledn.
Vegvesenets betingelser vedtatt
Overført fra: Knr:3033 Gnr:135 Bnr:912
Gjelder denne registerenheten med flere
20.01.1961 - Dokumentnr: 904941 - Elektriske kraftlinjer
Overført fra: Knr:3033 Gnr:135 Bnr:912
Gjelder denne registerenheten med flere
22.10.1962 - Dokumentnr: 4469 - Rettigheter iflg. skjøte
Bestemmelse om veg
Bestemmelse om vannledning
Overført fra: Knr:3033 Gnr:135 Bnr:912
Gjelder denne registerenheten med flere
08.10.1970 - Dokumentnr: 7134 - Bestemmelse om veg
Overført fra: Knr:3033 Gnr:135 Bnr:912
Gjelder denne registerenheten med flere
09.09.1983 - Dokumentnr: 7908 - Bestemmelse om bebyggelse
Rett til å bygge inntil en nærmere angitt avstand.
Overført fra: Knr:3033 Gnr:135 Bnr:912
Gjelder denne registerenheten med flere
03.10.2016 - Dokumentnr: 896621 - Erklæring/avtale
Rettighetshaver: Elvia AS
Org.nr: 980 489 698
Rettigheter og plikter ved bygging, drift og vedlikehold av nettstasjon i bygg, 1. etasje (stedsevarig rett)
Bestemmelse om transport og ferdsel
Bestemmelse om byggeforbud og beplantning
Overført fra: Knr:3033 Gnr:135 Bnr:912
Gjelder denne registerenheten med flere
08.02.2018 - Dokumentnr: 416314 - Seksjonering
Opprettet seksjoner:
Snr: 59
Formål: Bolig
Sameiebrøk: 103/52053
Beliggenhet og tomteforhold
Beliggenhet og tomteforhold
Beliggenhet
Leiligheten ligger midt i Jessheim sentrum, rett over Jessheim storsenter, med gangavstand til alt av servicetilbud og fasiliteter. I kort avstand fra eiendommen finner du Jessheim idrettspark, samt idylliske Nordbytjernet. Området har også kort vei skoler, barnehager og offentlig kommunikasjon, samt et rikt utvalg av fasiliteter og servicetilbud.
Ved Jessheim stadion ligger flotte Jessheim is- og flerbrukshall. Hallen huser blant annet håndballbaner, innebandybaner, volleyballbaner, løpebaner og styrkerom for å nevne noe. Skøyter, curling og kjelkehockey er det også mulighet for.
Nordbytjernet er et av de flotteste friluftsområdene i Ullensaker. Rundt tjernet er det godt tilrettelagt med turveier for rullestolbrukere og folk med barnevogn. Nordbytjernet har flotte badeplasser med strender, volleyballbaner, badebrygger og fiskebrygger. Fra tjernet går det løyper i skogområdet Vestmoen og videre til Olaløkka på Sand og Ringbanen på Gardermoen.
Ca. 20-25 min. til Romeriksåsen som byr på gode tur- og rekreasjonsmuligheter både sommer og vinter. Romeriksåsen som er et av Romerikes mest varierte friluftsområder; som byr på alt fra tur- og sykkelstier, oppkjørte skiløyper, badeplasser, skiannlegg og mange gode fiskevann!
Offentlig kommunikasjon
Jessheim sentrum har både togstasjon og bussterminal med hyppige avganger til Oslo Lufthavn og gode togforbindelser videre. Nærmeste bussholdeplass ligger kun en rusletur fra boligen, og togstasjonen ligger også innen gangavstand. Togavgang til blant annet Kløfta, Lillestrøm og Oslo hver halvtime med en reisetid inn til hovedstaden på ca. 37 min. Parkering prioritert for pendlere. Ved å benytte bil fra eiendommen tar det ca. 9 min til Oslo Lufthavn, 23 min til Lillestrøm, samt 35 min til Oslo sentrum. Jessheim er ellers et viktig trafikknutepunkt med kort vei til nye E6, riksvei 174 og E16.
Adkomst
Det vil bli skiltet med Krogsveen visningsskilt ved fellesvisninger.
Barnehager, skoler og fritid
Informasjon om tilhørende skolekretser er hentet fra Prognosesenteret som dataleverandør, og tilhørigheten kan årlig endres av kommunen. Dersom skole- og barnehagetilbud er av betydning for kjøpet, ber vi om at det rettes en særskilt henvendelse til kommunen/bydelsadministrasjonen for oppdatert informasjon.
Beskrivelse av tomt
Eiet tomt på 8 934,4 kvm som tilhører sameiet. Tomten er fellesareal. Leiligheten har utgang fra stuen til en meget pen og noe overbygd balkong på ca.19 kvm med herlig, vidstrakt utsikt. Balkongen har støpt dekke, levegg mot nabo og rekkverk i stål og glass. Sameiet har også flotte fellesarealer med en skjermet takpark mellom byggene. Her er det pent opparbeidet med grøntarealer, gangstier og fine sittegrupper.
Vei, vann og avløp
Eiendommen har adkomst via kommunal vei.
Eiendommen er tilknyttet kommunalt ledningsnett via private stikkledninger. Sameiet er ansvarlig for private stikkledninger til bygningen.
Regulerings-og arealplaner
Eiendommen er regulert til sentrumsformål i reguleringsplan for «S4 Skovly» m/best. vedtatt 15.12.2014.
Avsatt i kommunedelplan for: Jessheim til: sentrumsformål - nåværende vedtatt 17.06.2025. Grenser inntil reguleringsplan for: «Jessheim nord» vedtatt 19.06.1981., «Del av Trondheimsvegen Jessheim» vedtatt 28.01.2008. og «Kvartal 5 og 6, Jessheim sentrum» vedtatt 25.02.2007.
Utsnitt av plan med tilhørende bestemmelser kan fås ved henvendelse til megler.
Økonomi
Økonomi
Boligens kostnader
Kommunale avgifter er kr 5 943,- for inneværende år. Det er kun renovasjon. Avgiftene for vann og avløp går direkte til sameie.
Fellesutgiftene er kr 5 335,- pr. mnd. og inkluderer: Bygningsforsikring, forretningsførsel, a konto fjernvarme, Kabel-TV og internett, vann- og avløp, drift og vedlikehold av sameiet. Fellesutgiftene justeres normalt en til to ganger årlig i forhold til sameiets faktiske utgifter.
Nåværende eier har et strømforbruk som tilsvarer ca. kr 0,- pr. år. / 0 kwh. pr. år.
Boligen er tilknyttet Telia som leverandør av kabel-tv. Tv-tuner/dekoder medfølger.
Boligen er tilknyttet alarmselskap. Abonnement på alarm medfølger ikke.
Utgiftene er basert på nåværende eiers forbruk. Kjøper må selv tegne innboforsikring.
Formuesverdi
Ved hjelp av skatteetatens boligkalkulator er boligens formuesverdi beregnet til kr. 1.493.179,- for 2024 når boligen benyttes som primærbolig.
Formuesverdien er en gitt prosent av den beregnede markedsverdien. Beregnet markedsverdi er basert på Statistisk sentralbyrå (SSB) sine opplysninger om omsatte boliger. I beregningen tas det hensyn til boligens beliggenhet, areal, byggeår og boligtype.
Det er eier av boligen som fastsetter formuesverdien, jf. skatteforvaltningsloven § 9-1 første ledd, men skattemyndighetene kan kontrollere at verdien er satt riktig.
Formuesverdi skal ikke overstige:
Primærbolig: 25 % av beregnet eller dokumentert markedsverdi opp til kr. 10 000 000, og deretter 70 % av den overskytende markedsverdi.
Sekundærbolig: 100 % av beregnet eller dokumentert markedsverdi.
Formuesverdier som overstiger disse grensene, kan kreves nedjustert av eier.
Fra 2026 har Stortinget vedtatt en oppdatert modell for beregning av formuesverdi for primærbolig, så avvik kan forekomme.
For mer informasjon se skatteetaten.no
Eiendomsskatt
Det er p.t ikke vedtatt eiendomsskatt for eiendommer i kommunen.
Omkostninger
7 800 000,00 Prisantydning
Omkostninger
195 000,00 Dokumentavgift til staten (2,5% av kjøpesum)
9 950,00 Gjensidige Boligkjøperpakke (valgfri)* (valgfritt)
545,00 Tinglysing panterettsdokument
545,00 Tinglysing skjøte
--------------------------------------------------------
196 090,00 (Omkostninger totalt (uten Gjensidige Boligkjøperpakke (valgfri)))
206 040,00 Omkostninger totalt (med Gjensidige Boligkjøperpakke (valgfri)))
--------------------------------------------------------
7 996 090,00 Totalpris inkl. omkostninger
8 006 040,00 Totalpris inkl. omkostninger (med Gjensidige Boligkjøperpakke (valgfri))
--------------------------------------------------------
Dersom sameiet har fellesgjeld, vil leilighetens andel av fellesgjelden komme i tillegg til kjøpesummen. Denne gjelden skal ikke innbetales i oppgjøret, men følger leiligheten.
Totalpris inkl. omkostninger forutsetter kjøp til prisantydning.
Det tas forbehold om endringer i avgifter og gebyrer.
Tilbud om lånefinansiering
Megler formidler gjerne kontakt med rådgiver hos vår samarbeidspartner BN Bank. De har konkurransedyktige betingelser samt rask og løsningsorientert behandling av din lånesøknad. Krogsveen mottar et honorar dersom lån opprettes.
Betalingsbetingelser
Kjøpesum inkludert omkostninger, samt pantedokument tilknyttet eventuelt lån, skal være disponibelt hos megler 2 virkedager før overtagelsen.
Annen viktig informasjon
Annen viktig informasjon
Eier
Sarhang Abdulrahman Ahmed
Informasjon om sameiet
Eiendommen er seksjonert, og leiligheten er tilknyttet Skovly Vest Eierseksjonsssameiet, med sameiebrøk 103/52053.
Sameiet består av 123 boligseksjoner og 4 næringsseksjoner.
Forretningsfører er Kongsvinger og Omegns Boligbyggelag A/L.
Dugnad må påregnes.
Dyrehold er tillatt under forutsetning av at dyret ikke sjenerer andre beboerne i sameiet. Det tillattes ikke lufting av dyr i takparken eller ved inngangspartier.
Foretatt påkostninger de senere år: Generelt vedlikehold.
Planlagte påkostninger: Generelt vedlikehold.
Iht. sameiets vedtekter må kjøper godkjennes av styret som ny sameier. Det er kjøpers ansvar at styregodkjenning blir gitt, men styret kan ikke nekte godkjenning uten saklig grunn.
Vi gjør videre oppmerksom på at det iht. eierseksjonsloven ikke er anledning å erverve mer enn 2 seksjoner i sameiet, her teller også eierskap via. firma, nærstående og familie. Kjøper har risikoen for at overskjøting på denne bakgrunn kan nektes av Statens Kartverk. I så fall vil kjøper uansett være forpliktet til å gjennomføre handelen, og oppgjør til selger vil finne sted tross manglende overskjøting. Konferer med megler for mer informasjon.
Dokumenter for sameiet og kopi av seksjonsbegjæringen kan fås ved henvendelse til megler.
Overtakelse
Etter nærmere avtale.
Boligselgerforsikring
Det gjøres oppmerksom på at selger ikke har tegnet boligselgerforsikring som dekker selgers ansvar etter avhendingsloven. Likevel foreligger selgers egenerklæring og godkjent tilstandsrapport som interessenter må sette seg inn i før bud inngis. Eventuelle reklamasjoner må rettes direkte til selger.
Boligkjøperforsikring
Innen kontraktsmøtet må kjøper ta stilling til om det ønskes å bestille Boligkjøperpakken gjennom Gjensidige. I denne gunstige pakken er boligen ferdig forsikret og inkluderer rettshjelpsforsikring, også kalt Boligkjøperforsikring. Rettshjelpsforsikring gir trygghet og tilgang på profesjonell juridisk hjelp dersom det oppdages uventede feil eller mangler det første året etter overtagelse. Forsikringsselskapet behandler i så fall ethvert mangelskrav kjøper måtte ha overfor selger.
Boligkjøperpakken inkluderer bygningsforsikring for hus og hytte, innboforsikring, flytteforsikring og dobbel rentedekning - i situasjoner hvor kjøper ikke får solgt nåværende primærbolig.
Kjøper mottar ingen særskilt faktura for Boligkjøperpakken da kostnaden det første året legges til kjøpesummen for boligen. Det gjøres oppmerksom på Krogsveen mottar et honorar for denne formidlingen.
Produktark for Boligkjøperpakken ligger vedlagt i salgsoppgaven.
Dersom ikke boligkjøperpakke ønskes kan kun rettshjelpsforsikring, også kalt boligkjøperforsikring, tegnes særskilt via megler. Rettshjelpsforsikringen varer i 5 år fra overtagelse og leveres gjennom Gjensidige. Ta kontakt med megler for ytterligere informasjon.
Selskap og privatpersoner som driver med kjøp/salg/utvikling som ledd i egen næringsvirksomhet kan ikke tegne boligkjøperpakke eller rettshjelpsforsikring.
Budgivning
Forbrukerinformasjon om budgivning er vedlagt denne salgsoppgaven og er også på vår hjemmeside Krogsveen.no. Alle bud og budforhøyelser må inngis skriftlig. I tillegg må legitimasjon være fremlagt sammen med signatur fra budgiver.
Vi oppfordrer til å gi bud elektronisk via GI BUD-knappen på eiendommens hjemmeside på Krogsveen.no. Da vil samtlige vilkår bli oppfylt.
Eventuelle forhøyelser eller endringer av budet kan bekreftes pr SMS eller på e-post. Vi oppfordrer alltid til å kontakte megler pr. telefon i tillegg da forsinkelser i SMS og e-post kan forekomme.
For at budene skal kunne bli behandlet og videreformidlet skriftlig til alle involverte parter, må alle bud ha en tilstrekkelig lang akseptfrist, jf. eiendomsmeglingsforskriften § 6-3.
Selger må også skriftlig akseptere budet før aksept kan formidles til budgiver. Akseptfrist bør derfor være på minimum 30 minutter, og budforhøyelser må derfor skje i god tid før fristens utløp.
Bud i forbrukerforhold kan uansett ikke settes med kortere frist enn kl. 12.00 første virkedag etter siste annonserte visning. I tillegg kan ikke budet ha forbehold om at det skal holdes hemmelig ovenfor øvrige interessenter. Megler har iht lov om eiendomsmegling ikke anledning til å videreformidle disse budene, og de vil dermed heller ikke bli journalført.
Etter at eiendommen er solgt vil kjøper og selger få tilsendt budjournal. Øvrige budgivere kan få utlevert kopi av budjournalen i anonymisert form.
Hvitvaskingsreglene
I henhold til lov om hvitvasking og terrorfinansiering har megler plikt til å gjennomføre kontrolltiltak overfor kunder, herunder fullmektiger. Dette innebærer bl.a. å bekrefte kunders og reelle rettighetshaveres identitet på bakgrunn av fremvist gyldig legitimasjon eller på annen godkjent måte, samt å innhente opplysninger om kundeforholdets formål og tilsiktede art.
Dersom slike kundetiltak ikke kan gjennomføres, kan megler ikke etablere kundeforholdet eller utføre transaksjonen.
Hvis kjøper ikke bidrar til gjennomføring av kundekontrollen og dette fører til at transaksjonen blir forsinket eller ikke kan gjennomføres, vil dette ansees som mislighold av avtalen og gi selger rettigheter etter avhendingslova kapittel 5. I tilfeller der selger ikke bidrar til gjennomføring av løpende kundekontroll underveis i oppdraget, er det selger som misligholder sine forpliktelser etter avtalen og gi kjøper rettigheter etter avhendingslovens kapittel 4. Partene er selv ansvarlige for eventuelle kostnader og ansvar dette kan medføre. Eiendomsmegleren eller eiendomsmeglingsforetaket kan ikke holdes ansvarlig for de konsekvenser dette vil kunne få for partene eller andre som har interesser i eiendomshandelen.
Kjøper oppfordres til å innbetale kjøpesummen som ikke kommer fra låneinstitusjon i én samlet innbetaling fra egen konto i norsk bank. Megler har plikt til å melde fra til Økokrim om eiendomshandler som fremstår som mistenkelige. Melding sendes Økokrim uten at partene varsles.
Personopplysningsloven
I henhold til personopplysningsloven gjør vi oppmerksom på at interessenter kan bli registrert for videre oppfølging.
Lovanvendelse
Generelle bestemmelser
Salgsoppgaven er basert på de opplysningene selger har gitt til megler, den bygningssakyndiges tilstandsrapport, samt opplysninger innhentet fra kommunen, Kartverket og andre tilgjengelige kilder. Det er viktig at kjøper setter seg grundig inn i alle salgsdokumentene, herunder salgsoppgave, tilstandsrapport og selgers egenerklæring. Kjøper anses kjent med forhold som er tydelig beskrevet i salgsdokumentene, og slike forhold kan ikke påberopes som mangler. Dette gjelder uavhengig av om kjøper har lest dokumentene. Alle interessenter oppfordres til å undersøke eiendommen nøye, gjerne sammen med fagkyndig før bud inngis. Kjøper som velger å kjøpe usett kan ikke gjøre gjeldende som mangel noe han burde blitt kjent med ved undersøkelsen.
Dersom det er behov for avklaringer, anbefaler vi at interessenter rådfører seg med eiendomsmegler eller egne rådgivere før det legges inn bud.
En bolig som har blitt brukt i en viss tid, har vanligvis blitt utsatt for slitasje og skader kan ha oppstått. Slik bruksslitasje må kjøper regne med, og det kan avdekkes enkelte forhold etter overtakelse som nødvendiggjør utbedringer. Normal slitasje og skader som nødvendiggjør utbedring, er innenfor hva kjøper må forvente og vil ikke utgjøre en mangel.
Kjøper og selgers rettigheter og plikter reguleres av avtalen mellom partene, samt informasjonen som har vært tilgjengelig for kjøperen i forbindelse med handelen. Avtalen utfylles av avhendingsloven, og det gjelder ulike avtalevilkår avhengig av om kjøper er forbrukerkjøper eller ikke. Dette er nærmere beskrevet nedenfor.
På grunn av ulike avtalevilkår kan selger vurdere bud fra en som ikke er forbruker, ulikt fra en forbrukers bud. Dersom kjøper ikke er forbruker, er selger sitt mulige mangelsansvar begrenset fordi eiendommen selges "som den er". Selger kan ikke ta «som den er»- forbehold overfor en forbrukerkjøper. Selv et lavere bud fra en som ikke er forbruker kan foretrekkes fordi begrensningen i mulig mangelsansvar kan ha egenverdi for selger. Selger står fritt til å forkaste eller akseptere ethvert bud, og er for eksempel ikke forpliktet til å akseptere høyeste bud.
Budgiver skal i budskjema avgi egenerklæring om budgiver er forbruker eller næringsdrivende/ person som hovedsakelig handler som ledd i næringsvirksomhet. Budgivere får informasjon dersom andre bud er inngitt av en som ikke er forbruker.
Forbrukerkjøp - definisjon
Med forbrukerkjøp menes kjøp av eiendom når kjøperen er en fysisk person som ikke hovedsakelig handler som ledd i næringsvirksomhet.
Forbruker – avtalevilkår
Eiendommen har en mangel dersom den ikke er i samsvar med kravene som følger av avtalen, eller det foreligger brudd på bestemmelsene i avhendingsloven §§ 3-2 til 3-8. Hvis eiendommen ikke er i samsvar med det kjøperen må kunne forvente ut ifra alder, type og synlig tilstand, kan det være grunnlag for mangelskrav. Det samme gjelder hvis det er holdt tilbake eller gitt uriktige opplysninger om eiendommen. Dette gjelder likevel bare dersom man kan gå ut ifra at det virket inn på avtalen at opplysningen ikke ble gitt eller at mangelskravet ikke blir rettet i tide på en tydelig måte.
Boligen kan ha en mangel etter avhendingsloven § 3-3 andre ledd, dersom det er avvik mellom opplyst og faktisk innvendig areal, forutsatt at avviket er på 2% eller mer og minimum 1 kvm.
Ved beregning av et eventuelt prisavslag eller erstatning må kjøper selv dekke tap/kostnader opptil et beløp på kr 10 000 (egenandel).
Ikke-forbruker (næringsdrivende) – definisjon
Hvis kjøper er en juridisk person, eller en fysisk person som hovedsakelig handler som ledd i næringsvirksomhet, vil kjøpet ikke anses som et forbrukerkjøp.
Ikke-forbruker – avtalevilkår
Eiendommen har en mangel dersom den ikke er i samsvar med kravene som følger av avtalen.
Eiendommen selges «som den er», og selgers ansvar utover det konkret avtalte er da begrenset etter avhendingsloven § 3-9, første ledd andre setning.
Avhendingsloven § 3-3 andre ledd fravikes, og hvorvidt boligens arealsvikt utgjør en mangel vurderes etter avhendingsloven § 3-8.
Informasjon om kjøpers undersøkelsesplikt, herunder oppfordringen om å undersøke eiendommen nøye, gjelder også for kjøpere som ikke anses som forbrukere.
Det forutsettes at hjemmel overføres til kjøper. Hvis kjøper ikke ønsker hjemmelsoverføring av eiendommen, må det tas forbehold om dette i budet.
Meglers vederlag
Vi er opptatt av verdiskapning, og har knyttet til oss samarbeidspartnere som skal sikre våre kunder de beste produkter og tjenester;
• I forbindelse med forberedelse av salget, innhenter vi informasjon om eiendommen hovedsakelig fra vår samarbeidspartner Amibita.
• Gjensidige leverer boligselgerforsikring og tilbyr bygningsforsikring
• Boligkjøperforsikring leveres av Hiscox og med Sedgwick som skadebehandler, og er formidlet gjennom Gjensidige.
• BN bank tilbyr finansieringsløsninger
• Vår avdeling Krogsveen Pluss tilbyr flyttetjenester som utvask, visningsvask, lager, tømming og transport av flyttelass, i tillegg til å formidle kontakt med Flip for overflateoppussing.
• I forbindelse med overtagelse av eiendommen tilbyr Overo avtale om strøm, alarm og bredbånd.
• Krogsveen er, sammen med øvrige bransjeaktører, medeier i Bomega AS som tilbyr den digitale annonseringsplattformen Hjem.
Opplysninger om oppdraget
Oppdragsnummer 63-0008/26
Eiendomsmegler Krogsveen AS, avd. Jessheim
Skovly Promenade 10, 2066, JESSHEIM
950 007 613
Oppdragets KR-kode KR63.268
Dato
Sist oppdatert: 22. april 2026 kl. 14:04
Dokumenter
Dokumenter
PDF – 939 KB
PDF – 688 KB
PDF – 312 KB
PDF – 29 KB
PDF – 127 KB
PDF – 392 KB
Område
Legg til steder som er viktige for deg
Visning
For å delta på visning, ber vi om at du melder deg på. Da sikrer vi at du får nødvendig informasjon og at det er satt av tilstrekkelig med tid. Kontakt megler dersom annet tidspunkt ønskes.
NB. Visning utgår dersom det ikke er noen påmeldte.
Lurer du på noe?
Unngå doble boligrenter
Vi tilbyr gunstig forsikring.
Vurderer du utleie?
Få et tilbud fra Utleie KrogsveenHva koster lånet?
Sjekk estimert lånekostnadVil du varsles om lignende boliger?
Ved å lagre ditt boligsøk hos oss får du beskjed når vi har en bolig som ligner denne, før den legges ut på markedet!

