Grålumveien 189
4 900 000 kr
213 m²
4 soverom
Solgt

Presenteres av
Atle HorveiGrålum
Påkostet enebolig med vid utsikt over landskapet. Godkjent hybel i underetasje = attraktiv utleiemulighet.
Prisantydning
4 900 000 krOmkostninger
143 490 krTotalpris
5 043 490 kr
Pris
Bruksareal
217 m²BRA-I (internt bruksareal)
213 m²BRA-E (eksternt bruksareal)
4 m²TBA (terrasse-balkongareal)
50 m²
Areal
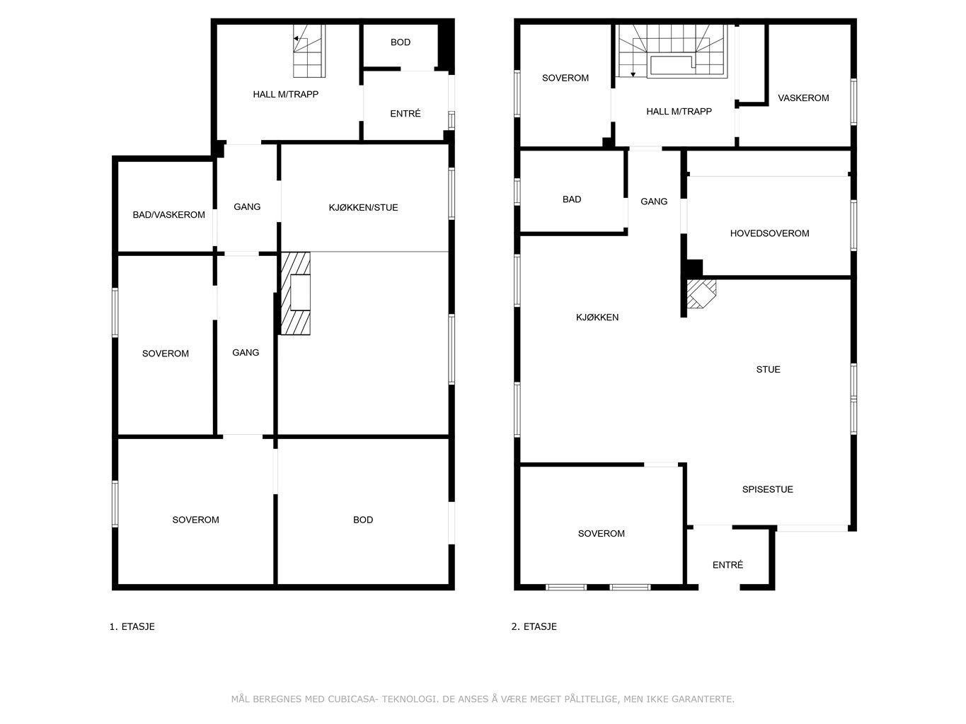
Etasje
2Byggeår
1963Soverom
4 soveromTomteareal
806 m² (eiet)Type
Enebolig - FrittliggendeEierform
EietEnergimerke
Gul F
Nøkkelinfo
Unngå doble boligrenter
Vi tilbyr gunstig forsikring.
Vurderer du utleie?
Få et tilbud fra Utleie KrogsveenHva koster lånet?
Sjekk estimert lånekostnadBeskrivelse
Kort om eiendommen
Enebolig oppført på luftig høydedrag med vid landskapsutsikt
- Godkjent hybel i underetasjen gir mulighet for attraktiv ekstrainntekt gjennom utleie
- Hoveddel med alle oppholdsrom på én flate, inkludert tre store soverom
- Nytt og velutstyrt Epoq-kjøkken installert i 2022
- Elektrisk anlegg oppgradert i senere år, gulvvarme i de fleste rom
- Ildsted i begge etasjer som varmer godt på kjølige dager
- Nylig påkostede utearealer med flere fine soner
- Stor terrasse med utepeis og pergola oppført i 2021
- Carport med plass til to biler rett utenfor hovedinngangen
- Umiddelbar nærhet til barneskole, ungdomsskole og idrettsanlegg
- Kun 10 min. med buss til byen, gangavstand til ekspressbusser mot Oslo og Gøteborg
- Nær E6 - 1 time til Oslo
Område
Legg til steder som er viktige for deg
På flyttefot? Tenk kjøp og salg samtidig.
Få din egen rådgiver gjennom hele kjøps- og salgsprosessen. Det starter med en verdivurdering.
Unngå doble boligrenter
Vi tilbyr gunstig forsikring.
Vurderer du utleie?
Få et tilbud fra Utleie KrogsveenHva koster lånet?
Sjekk estimert lånekostnadVil du varsles om lignende boliger?
Ved å lagre ditt boligsøk hos oss får du beskjed når vi har en bolig som ligner denne, før den legges ut på markedet!
På flyttefot? Slik gjør vi det enklere for deg
Skreddersydd flyttepakke
Vi fikser håndverkere, vask, pakking, lagring og transport, og legger ut for utgiftene underveis.
Hjelp med både kjøp og salg
Hos oss har du din egen rådgiver gjennom hele kjøps- og salgsprosessen.
Hjelp til finansiering
Vårt samarbeid med BN Bank sikrer deg rask og løsningsorientert hjelp, til konkurransedyktige betingelser.

