Margarethas vei 37
4 980 000 kr
76 m²
2 soverom
Solgt

Rolvsrud Park / Lørenskog
Lys og lekker 3-roms hjørneleilighet med terrasse | Garasjeplass | Gasspeis | Attraktiv beliggenhet
Prisantydning
4 980 000 krOmkostninger
135 540 krTotalpris
5 115 540 kr
Pris
Bruksareal
82 m²BRA-I (internt bruksareal)
76 m²BRA-E (eksternt bruksareal)
6 m²TBA (terrasse-balkongareal)
16 m²
Areal
Etasje
1Byggeår
2008Soverom
2 soveromBad
1 badType
EierleilighetEierform
EierseksjonFasiliteter
Garasje/P-plass, Heis og Balkong/TerrasseFellesutgifter
3 728 krEnergimerke
Rød D
Nøkkelinfo
Unngå doble boligrenter
Vi tilbyr gunstig forsikring.
Vurderer du utleie?
Få et tilbud fra Utleie KrogsveenHva koster lånet?
Sjekk estimert lånekostnadBeskrivelse
Kort om eiendommen
Velkommen til Margarethas vei 37!
Dette er en lys og lekker 3-roms selveierleilighet med en attraktiv beliggenhet. Her får man en velholdt leilighet med moderne fargevalg, gode vindusflater, gasspeis og romslige rom.
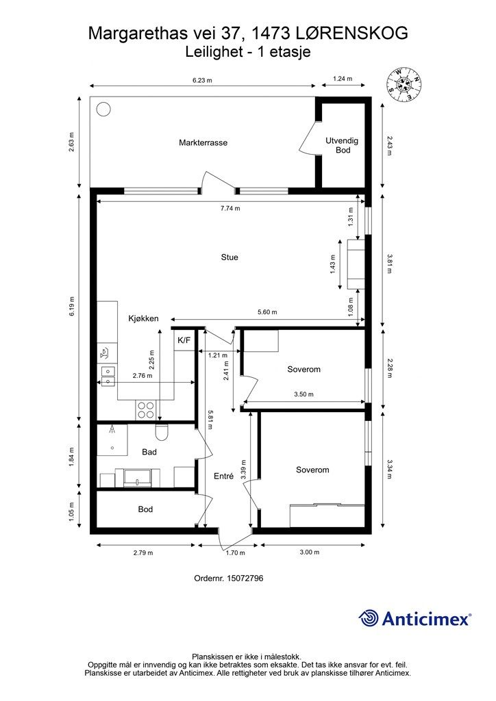
Leiligheten har en god planløsning som inneholder en entré/gang, bad, kjøkken, stue og to soverom.
I tillegg har leiligheten en herlig vestvendt terrasse, hage med hekk, tre boder og en garasjeplass i felles anlegg.
Leiligheten ligger i et populært boområde med kort vei til alt man trenger i hverdagen. Det er gangavstand til god offentlig kommunikasjon og alt av butikk- og servicetilbud.
Sameiet har et pent og velstelt fellesareal med benker og grønne områder.
Kontakt megler og bli med på en hyggelig visning!
Område
Legg til steder som er viktige for deg
På flyttefot? Tenk kjøp og salg samtidig.
Få din egen rådgiver gjennom hele kjøps- og salgsprosessen. Det starter med en verdivurdering.
Unngå doble boligrenter
Vi tilbyr gunstig forsikring.
Vurderer du utleie?
Få et tilbud fra Utleie KrogsveenHva koster lånet?
Sjekk estimert lånekostnadVil du varsles om lignende boliger?
Ved å lagre ditt boligsøk hos oss får du beskjed når vi har en bolig som ligner denne, før den legges ut på markedet!

