Skaktostien 62
3 990 000 kr
66 m²
3 soverom
Komplett salgsoppgave

Vesterøya/Mefjorden
Fritidseiendom med nydelig sjøutsikt og meget usjenert beliggenhet – kort vei til sjøen og bilvei fram - eget anneks
Prisantydning
3 990 000 krOmkostninger
120 740 krTotalpris
4 110 740 kr
Pris
Bruksareal
92 m²BRA-I (internt bruksareal)
66 m²BRA-E (eksternt bruksareal)
13 m²TBA (terrasse-balkongareal)
69 m²
Areal
Etasje
1Byggeår
1966Soverom
3 soveromBad
1 badTomteareal
904 m² (festet)Type
Fritidseiendom ved sjøenEierform
EietÅrlig velavgift
1 500 kr
Nøkkelinfo
Vurderer du utleie?
Få et tilbud fra Utleie KrogsveenHva koster lånet?
Sjekk estimert lånekostnadBeskrivelse
Kort om eiendommen
Velkommen til sommeridyll i Skaktostien 62. En sjarmerende fritidseiendom med flott utsikt til sjøen og en meget usjenert beliggenhet. Hytta ligger idyllisk og skjermet til på en naturtomt med kort vei til sjøen og nydelige badeplasser. Her kan du nyte rolige dager med utsikt og gode solforhold. Hytta har flott terrasseområder, inkludert en praktisk innglasset «utestue» som forlenger sesongen og beskytter for vært og vind. På eiendommen finnes også eget anneks.
Hytta har en fredelig beliggenhet på populære Vesterøya. Området byr på gode turområder og flere strender/badeplasser. Langeby og Vøra med flott sandstrand og kiosk er kun 5-10 minutter unna på sykkel. Rett til båtfeste i bryggelag. Kort bilvei til Sandefjord sentrum.
Velkommen til visning!
Innhold og byggemåte
Innhold og byggemåte
Eiendommen
Skaktostien 62, 3234 SANDEFJORD
Kommunenummer 3907, gårdsnummer 102, bruksnummer 44, ideell andel 1/1
Innhold
Totalt bruksareal BRA: 92 kvm
BRA-i:
Hytta:
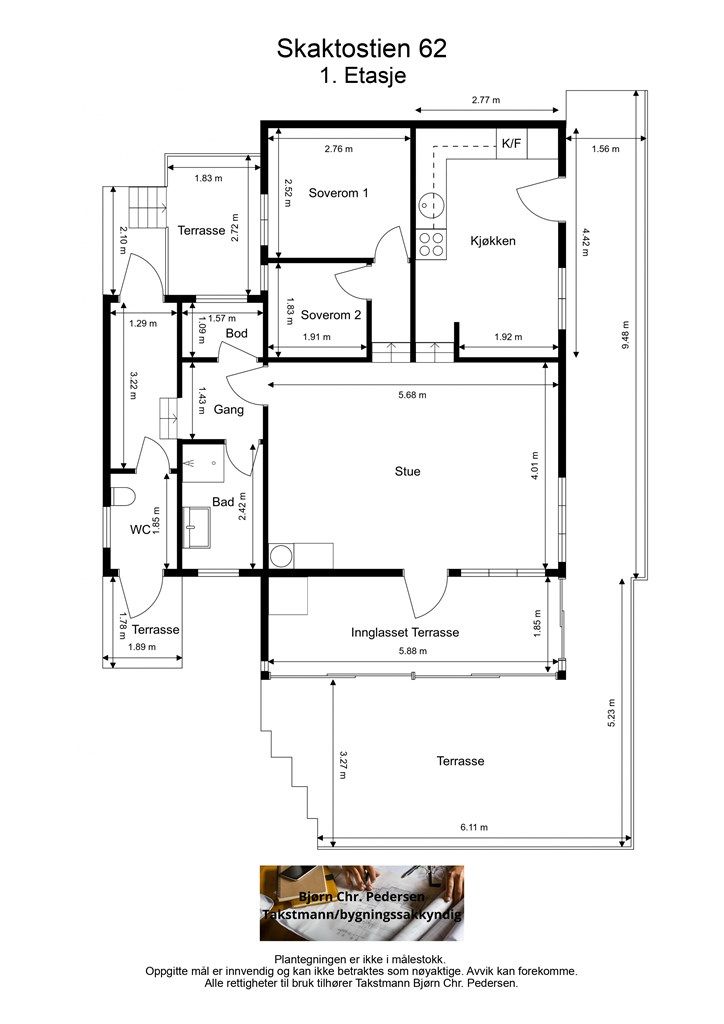
1. etasje 66 kvm: Gang, stue, kjøkken, bad, bod, toalettrom og to soverom.
BRA-e:
Anneks:
1. etasje 13 kvm: Overnatting for gjester.
BRA-b:
Hytta:
1. etasje 13 kvm: Innglasset og overbygd del av terrasse/utestue.
TBA (terrasse- og balkongareal):
Terrasseområde 49 kvm:
Terrasseområde rundt hytta er oppmålt til 38 kvm.
Nordvendt terrasse er oppmålt til 8 kvm.
Sydvendt terrasse er oppmålt til 3 kvm.
Annekset har tilliggende terrasse på 20 kvm.
Vedlagte plantegninger er ikke målbare. De oppgitte arealer er hentet fra rapport med befaringsdato 07.04.2026 utført av Takstmann Bjørn Chr. Pedersen. Arealene er beregnet og rom er definert etter dagens faktiske bruk, uavhengig av hva som er godkjent av bygningsmyndighetene. Takstmann opplyser at deler av hytta har laver takhøyde enn 2,00 meter (minstekrav til takhøyde i rom for varig opphold). På kjøkken ble takhøyden målt til 1,99 meter. Videre gjøres det oppmerksom på at terrasseområdene grenser til fjell og derfor er skjønnsmessig oppmålt. Avvik kan forekomme.
Byggemåte
Selger har innhentet en tilstandsrapport av eiendommen. Av rapporten fremgår det at flere bygningsdeler har fått tilstandsgrad ikke undersøkt/ikke tilgjengelig for undersøkelse (TG IU), 2 (TG2) og/eller 3 (TG3). Rapporten beskriver også avvik på undersøkte bygningsdeler uten tilstandsgrad. Kjøper overtar ansvaret for de opplysninger som fremkommer av salgsdokumentasjonen, og kan ikke gjøre gjeldende som mangel noe som burde vært kjent eller som ikke kan anses å ha betydning for avtalen.
Bygningen er iht. tilstandsrapport en frittliggende fritidsbolig oppført i 1966. Bygningen er oppført på grunnmur og søylefundamenter i betong på byggegrunn av fjell, med bærende bjelkelag i tre. Yttervegger er i trekonstruksjoner med fasader av natursteinsforblending og liggende kledning i tre. Etasjeskiller er av trebjelkelag. Taket er et saltak med takkonstruksjon i tre, tekket med asfaltbelegg/papp av ukjent alder. Deler av takkonstruksjonen er et kaldtloft. Bygningen har vinduer med koblede ett-lags glass og to-lags isolerglass i trekarmer. Observerte årstall fra 2004 til 2014. Terrassedører har to-lags isolerglass i trekarmer, og innvendige dører er profilerte. Det er en teglsteinspipe med åpen peis. Annekset er oppført på punktfundamenter i betongstein. Yttervegger og tak er i trekonstruksjoner, med fasader av liggende trekledning. Taket er et saltak tekket med takshingel. Les for øvrig mer om byggemåte og den tekniske tilstanden i rapporten.
Det gjøres spesielt oppmerksom på:
Følgende bygningsdeler er gitt Tilstandsgrad 2 (TG2):
- Drenering: Det er ikke etablert grunnmursplast. Det registreres salt/kalkutslag på innvendig grunnmursflater som indikerer fukttransport gjennom grunnmuren.
- Det er ikke adkomst til deler av krypkjelleren. Krypkjeller er kun vurdert i tilgjengelige deler. Krypkjeller regnes for å være en risikokonstruksjon som er utsatt for fukt- og råteskader i bunnsvill, trebjelkelaget og andre tilstøtende konstruksjoner, på grunn av fuktighet fra grunnen og kondensering ved temperaturforskjeller. Det er observert enkelte fuktmerker på grunnmur. Selv om det ikke er avdekket tegn på skader, betyr ikke dette nødvendigvis at det ikke foreligger skader i eller i forbindelse med krypkjelleren. Det mangler fuktsperre i form av plastfolie på bakken i krypkjelleren. Ventilering er vurdert å være noe mangelfull.
- Det registreres noe skjevheter i konstruksjonene på terrasse/platting. Deler av terrasser har direkte kontakt med jord/fjell. Økt fare for råteskader. Det er observert enkelte råteskader. Overflatebehandlingen er slitt enkelte steder.
- Enkelte vinduer er av eldre dato. Aldersslitasje er observert.
- Aldersslitasje er observert på kledningen. Sprekker i endeveden. Det registreres misfarging/svertesopp i overflater på deler av fasaden. Musetetting har behov for utbedringer. Oppbyggingen av yttervegger med natursteinsforblending er ukjent. Erfaringsmessig er denne type konstruksjon en risikokonstruksjon med hensyn til fukt og skjulte skader. Det er ikke observert symptomer på skader, men skjulte skader kan ikke utelukkes. Det anbefales å ivareta lufting av konstruksjonen for å unngå/forebygge skader.
- Det er registrert tegn til skjevheter og mindre nedbøyninger i konstruksjonen på loft. Forholdet vurderes å være innenfor det som kan oppstå over tid som følge av alder, setninger eller normal belastning. Funksjon og bæreevne vurderes foreløpig ikke som kritisk påvirket. Ventilasjonsspalter i takfot er stedvis tettet igjen med isolasjon. Det er registrert fuktmerker/svertesopp i undertak. Forholdet vurderes å kunne skyldes manglende ventilering eller kondensering, men dette kan ikke verifiseres uten observasjoner over tid. Det er utført fuktmåling med pigg i treverk. Det ble ikke registrert forhøyede verdier. Det er observert spor etter gnagere på kaldtloftet. Deler av takkonstruksjonen er en lukket konstruksjon. Inspeksjon ikke mulig. Skjulte skader kan ikke utelukkes. TG 2 er satt for å belyse risiko ved manglende inspeksjonsmulighet i henhold til NS3600.
- Det registreres stedvis noe mose på taket som anbefales fjernet som et vedlikeholdstiltak. Ukjent alder tilsier at fremtidig funksjon er ukjent/usikker. Det registreres buler i papptekking. Takgjennomføring har svakheter og bør utbedres.
- Etasjeskille og gulv på grunn: Med bruk av nivelleringslaser ble det registrert lokalt avvik innenfor 2 meter på mellom 10 og 20 mm. Det er registrert nivåforskjell på 18 mm på kjøkken. Nivåforskjell på 85 mm mellom stue og gang.
- Det mangler ubrennbar plate på gulv under ildsted.
- Kjøkkeninnredningen bærer preg av alder. Det er observert enkelte hakk/merker på innredningen.
- Varmtvannsbereder er plassert i rom uten sluk.
- Gulvet på bad er flatt og det er stedvis motfall. Det er ikke montert bunnlist under baderomsplater i våtsonen, noe som avviker fra monteringsanvisninger. Gulvbelegg benyttet som tettesjikt. Det kan ikke verifiseres at det er etablert tilstrekkelig tettesjikt på våtrommets vegger. Rommet har kun naturlig avtrekk og det er ikke etablert tilluft ved dør. Tilstandsgrad 2 er satt selv om løsningen tilfredsstiller forskriften ved byggeåret.
- Mindre frittstående bygninger på tomten/annekset har ikke vært gjenstand for en detaljert tilstandsvurdering. Det er foretatt en overordnet, forenklet vurdering av tilstanden, og det kan derfor være forhold som ikke er beskrevet. Bygningen bærer preg av alder. Det er gjort observasjoner som gjør at det anbefales utbedrende tiltak. Det kan eksempelvis nevnes følgende: Utvendige overflater har behov for overflatebehandling. Taktekking, vinduer, dører og terrassebord bærer preg av alder.
Følgende bygningsdeler er ikke undersøkt (TGIU):
- Deler av grunnmuren lar seg ikke inspisere grunnet terrasse. Det registreres mindre riss i grunnmur. Dette er ikke uvanlig og vurderes ikke å ha vesentlig konstruksjonsmessig betydning slik dette fremstår i dag.
- Avløpsrør: Avrenning er ikke undersøkt. Vann er ikke tilkoblet på befaringsdagen. Det er ikke etablert egne stakepunkter i avløpsanlegget. Rensing av rør kan kun utføres via sanitærinstallasjoner (f.eks. toalett eller sluk).
- Vannledninger: Avrenning er ikke undersøkt. Vann er ikke tilkoblet på befaringsdagen. Rørstrekk i krypkjeller er uisolerte og kan være utsatt for frost. Boligen er å anse som sommerhytte slik at forholdet er mindre relevant, men bør holdes under oppsyn.
- Bad har kun synlige rørføringer og ingen skjulte konstruksjoner. Hulltaking er derfor ikke utført.
Ellers slitasje grunnet alder. Tilstandsrapporten er inntatt i salgsoppgaven. Rapporten inneholder informasjon om avvikene og konsekvensen av disse. For avvik som er gitt TG3 har den bygningssakkyndige i tillegg gitt et anslag på hva det vil koste å utbedre disse avvikene. Ettersom kjøper regnes å være kjent med forhold som tydelig fremgår av tilstandsrapporten, oppfordres du til å sette deg grundig inn i rapporten i sin helhet.
Selger beskriver også i egenerklæringsskjema: Det har tidligere vært lekkasje ved pipen, som ble utbedret i 1997, og fukt i veggen under stuevinduet mot øst, som ble utbedret i 2006. Under et elektrisk tilsyn i 2022 ble det funnet en stikkontakt uten jording på kjøkkenet, som ble utbedret av elektriker. I 2018 ble det montert nye kurser for toalett og varmtvannsbereder, samt en ny jordskinne i sikringsskapet. Det er ikke innlagt vann i hytta, men det er montert et hyttevannopplegg med en vanntank som må fylles manuelt, med tilknyttet dusj. Det er også installert et forbrenningstoalett og urinal.
Moderniseringer og påkostninger
Følgende moderniseringer er foretatt de senere år:
- Vinduer er skiftet etappevis. Stuen i 2004, kjøkken i 2008, gang i 2009 og på bad/toalettrom i 2014. Enkelte vinduer er av eldre dato.
2018:
- Avløpsrør og vannrør på bad ble skiftet.
- Installert hyttevannopplegg med vanntank.
- Installert dusjkabinett på bad.
- Installert Cinderella forbrenningstoalett og urinal
- Montert ny kurs for toalett og ny kurs for varmtvannsbereder.
Standard
Velkommen til Skaktostien 62 - en sjarmerende fritidseiendom med flott utsikt til sjøen og en meget usjenert beliggenhet. Hytta ligger idyllisk og skjermet til på en naturtomt med kort vei til sjøen og nydelige badeplasser. Hytta holder en klassisk og fin "sommerhyttestandard" med blant annet laminat og belegg på gulv og panel og malte vegger. Hytta er lys og koselig innredet med sommerlige fargevalg. Stuen er romslig og med ekstra god takhøyde som sørger for en god romfølelse. Fra stuen er det også utgang til innglasset terrasse/utestue, som sørger for en naturlig forlengelse av utesesongen. Også en ypperlig plass å nyte utsikten i all slags vær eller sene sommerkvelder.
Kjøkken ligger i delvis åpen løsning mot stuen. Innredningen har profilerte fronter og laminert benkeplate og oppvaskkum i metall. Videre er det nisje for komfyr og kjøleskap. Nevnte hvitevarer medfølger ved salg. Det gjøres oppmerksom på at hvitevarene er kjøpt for noen år tilbake, og kjøper må forvente slitasje som følge av alder og normal bruk.
Bad har belegg på gulv og vegger med panel og våtromsplater. Himling/skråtak har trepanel. Av utstyr er det montert baderomsinnredning med slette fronter, heldekkende servant og ett-greps armatur. Overskap, speil, lys og stikkontakt er også montert. Dusjkabinett er fra 2018. Det er ikke innlagt vann i selve hytta, men vannpost med sommervann. Det er montert hyttevannopplegg med en vanntank som du fyller opp. Dusj er tilkoblet dette.
Toalett finnes i eget toalettrom hvor det er installert forbrenningstoalett og urinal fra Cinderella.
Hytta har også et eget praktisk anneks innredet med belegg på gulv og lyse fargevalg på vegger. En ypperlig plass for gjester eller storfamilien med behov for flere overnattingsmuligheter. Her får du også nydelig utsikt til sjøen. I tilknytning til annekset finnes det også en bod.
Kort oppsummert:
- Nydelig utsikt til sjøen i usjenerte omgivelser.
- Bilvei fram.
- Kort vei til sjøen og fine badeplasser (via sti).
- Eget anneks.
- Praktisk innglasset terrasse/utestue.
- Solrik og rolig.
Løsøre og tilbehør
Vi viser til liste fra Norges Eiendomsmeglerforbund som gjelder fra 01.01.2020 angående løsøre og tilbehør.
Oppvarming
Oppvarming med elektrisitet og vedfyring. Det er åpen peis i utestuen/innglasset balkong og i stuen. Dersom beboelsesrom ikke har vegg- eller fastmonterte varmekilder ved visning, følger dette heller ikke med.
Sandefjord kommune opplyser at det ikke er registrert ildsted på denne eiendommen i deres register. Det har dermed ikke vært foretatt tilsyn eller feiing. Det er dermed ikke kjent og det kan foreligge feil eller øvrige mangler knyttet til pipe og ildsteder. Kjøper overtar alt ansvar for dette samt eventuelle pålegg/mangler som avdekkes ved et eventuelt tilsyn.
Ferdigattest/brukstillatelse
Eiendommen har vært brukt til fritidsboligformål siden byggeår. Kommunen opplyser at det ikke foreligger ferdigattest eller midlertidig brukstillatelse for eiendommen. Det foreligger ikke ferdigattest for oppføring av bygning på eiendommen i kommunens arkiv. Det finnes av den grunn ikke dokumentasjon over eiendommens lovlighet.
Videre foreligger det godkjente tegninger for oppføring av opprinnelig hytte datert 1966. Det foreligger også søkte og godkjente tegninger i forbindelse med tilbygg av hytta mot vest datert 12.06.2009 (påbygg av ny gang og toalettrom). Tidligere toalettrom er i dag innredet som bad/dusjrom (det er ikke innlagt vann). Tegninger for utvidelse av tak over terrassen foreligger også fra 2009. Utvidelse/ombygging av annekset har tegninger fra 2001 og er søkt som bod samt ett oppholdsrom. Det foreligger ikke ferdigattest for disse tiltakene. Kjøper overtar eiendommen slik den fremstår på visning med risiko og ansvaret for eventuelle pålegg fra kommunen og kostnader forbundet med dette.
Det gjøres oppmerksom på at det ikke lenger utstedes ferdigattest på tiltak det er søkt om før 1998 jf. plan- og bygningsloven § 21-10. Kommunen vil ikke kreve ferdigattest for disse tiltakene og vil avvise eventuelle søknader. Bestemmelsen innebærer ikke at tiltak med manglende søknad blir lovlige, men at man ikke trenger å avslutte gamle byggesaker. Normalt sett kreves ferdigattest for alle søknadspliktige tiltak som gjøres etter plan- og bygningsloven.
Tinglyste heftelser og rettigheter
Eiendommen overdras fri for pengeheftelser med unntak av:
Dagboknr. 2789, tinglyst 02.05.1977: Festekontrakt med nye vilkår tinglyst den 16.04.1997 med dagbok nr. 2093. For kontraktens vilkår se salgsoppgavens punkt "regulering av festeavgift".
Det er tinglyst følgende servitutt på eiendommen. Dagboknr 2093, tinglyst 16.04.1997, bestemmelse om adkomstrett: I tomtens vestre grense går det en gangsti.
Servituttene vil følge eiendommen. Kjøpers bank vil få prioritet etter ovennevnte heftelser og servitutter.
Eiendommen har tinglyst rett til vei over hovedbruket og frem til hytta. Hytta har også rett til båtfeste på felles brygge. Auve Båtforening står i dag for fordeling av båtfester og bryggen. Se salgsoppgavens punkt "velforening" for mer informasjon. Rettigheten er tinglyst på gnr. 102, bnr. 1/75/76/77/78, dagboknr 2789, tinglys 02.05.1977.
Eventuell adgang til utleie
Fritidseiendommen har ikke separat utleiedel. Det vil normalt være anledning til utleie av hele eiendommen eller enkeltrom, såfremt utleiearealet er bygningsmessig godkjent for varig opphold.
Beliggenhet og tomteforhold
Beliggenhet og tomteforhold
Beliggenhet
Velkommen til Skaktostien 62! Hytta har en idyllisk og fredelig beliggenhet på vakre og populære Vesterøya mot Mefjorden. Her er det rikelig med sol, flotte uteplasser og en nydelig utsikt mot Mefjorden og havgapet i det fjernet. Dersom båtlivet med Mefjordens flotte holmer og skjær frister, er det kort vei til felles brygge, samt flott fellesområde (se salgsoppgavens punkt "velforening" for informasjon om mulighetene for båtplass). Her er det arealer ypperlig for lek og moro, samt gode bademuligheter. Både fra fellesbrygge eller strand som kan benyttes av områdets hytteeiere. Det er også kort vei til nydelig badestrand i Herreportveien. Området et lite sommerparadis for både store og små. Meget barnevennlig med lite trafikk og flotte tur -og rekreasjonsområder i umiddelbar nærhet. For ungdommen er det greit å vite at Vøra badestrand og Langeby ligger i sykkelavstand. Vøra er en av Vestfolds beste strender og her finnes volleyballbane, kiosk etc. Vesterøya's forøvrige flotte natur og turområder kan nytes via oppmerket kyststi som leder deg helt ut til Folehavna eller innover mot Asnes og Tangenområdet. Eller hva med en tur til Nalum gård for å kjøpe blomster eller sesongens grønnsaker og deilige jordbær? Vøra badestrand og barnevennlige Langeby når du på cirka 5-10 minutter med sykkel. Grubesand og Lille Grubesand når du på cirka 5-8 minutters gange. Det er heller ikke lange veien til Sandefjord sentrum med alle servicetilbud og gode kultur og utelivstilbud om sommeren. Alt ligger til rette for at du kan nyte lange og late sommerdager. Velkommen til en hyggelig visning!
Adkomst
Fra Sandefjord sentrum kjører du til Kilen og tar Vesterøyveien utover. Følg Vesterøyveien i ca. 7 km. Ta deretter Auveveien inn til venstre og følg denne rett frem og over i Skaktostien. Følg veien til enden og hytta ligger rett frem etter 650 - 700 meter (hold til høyre etter bommen). Se Google maps - det er enkelt å finne frem i kartet. Det vil bli skiltet med Krogsveen visningsskilt ved fellesvisninger.
Beskrivelse av tomt
Festetomt på 903,7 kvm. Tomten er meget lettstelt og består for det meste av fjellpartier og naturtomt. Fra hyttas flotte uteplass mot syd og øst kan solen nytes fra morgen til kveld. Her får du også en fantastisk utsikt mot Mefjorden og havgapet i horisonten. Med utgang fra stuen er det også bygget en meget praktisk innglasset terrasse. Perfekt for forlengelse av sesongen og god skjerming for vær og vind. For øvrig er det rikelig med plass til utemøbler på terrassen. Så alt ligger til rette for at både varme sommerdager og lange kvelden kan nytes.
Sandefjord kommune opplyser at tomten er ikke oppmålt i nyere tid og har noe usikre grenser. Kommunens grunnkart viser eiendommens estimerte grenser og disse kan avvike ved ny oppmåling. Se vedlagt kartutsnitt for tomtegrenser. Kjøper overtar risiko for avviket. Grunneier opplyser at det er opparbeidet noe beplanting av prydbusker/blomster samt en inngangsportal på utsiden av festetomten. Dette må fjernes av nye eier, eventuelt må nye eier inngå avtale med grunneier om utvidelse av festetomten.
Regulering av feste
Festeavgiften er kr 11 095,00 pr. år.
Festeavgiften reguleres hvert 10. år iht. konsumprisindeksen, og neste regulering av festeavgift er 02.05.2031.
Grunneier er Hans Christian Teien. Samtykke til overdragelse fra grunneier kreves. Det opplyses i festekontrakten at trær på tomten tilhører grunneier. Kopi av lov om tomtefeste kan få es ved henvendelse til megler.
Parkering
Parkering på grunneiers tomt. Grunneier opplyser at i henhold til festekontrakten er det ikke inkludert parkeringsplass på festetomten og dette må gjøres på grunneieres tomt måt en årlig avgift på kr. 1.250,- for sesongen 2026. Beløpet reguleres årlig etter KPI. Grunneier kan kontaktes for ytterligere informasjon rundt parkeringsleie.
Vei, vann og avløp
Eiendommen har adkomst via privat vei. Hytteeiere i området har bruksrett mot å delta i vedlikeholdet av veien. Vedlikeholdsutgifter administreres via Auve vel.
Eiendommen er tilknyttet kommunal sommervannledning via private stikkledninger (vannpost). Eier er selv ansvarlig for private stikkledninger til hytta. Eiendommen er ikke tilknyttet avløpssystem. Men det er avløp fra kjøkken som er koblet på avløpsledning lagt ved byggeår. Fra bad går det også avløpsrør fra servant og sluk ved dusj. Disse avløpene er ikke tilkoblet avløpssystem men kun en enkel ledning som leder vann ut under hytta i en fjellsprekk. Sandefjord kommune opplyser at dersom eiendommen får innlagt vann, vil det bli gitt pålegg om avløpsløsning på eiendommen. Kjøper overtar ansvaret for dette.
Videre så opplyses det om at det foreligger planer om oppgradering av vann/avløp for hele hytteområdet i samarbeid med Sandefjord kommune. Prosjektet er i planleggingsstadiet hvor det sees på forskjellige tekniske løsninger, valg av trasé og hvilke muligheter som finnes i området. Det må også avklares og samarbeides nærmere med Sandefjord kommune. I forbindelse med prosjektet er det naturlig at hytteeierne i områder går sammen om en felles løsning. Tilkobling til det kommunale nettet vil medføre en kostnad for hytteeieren i området og denne eiendommen. Pt. er det ikke innhentet tilbud, eller skissert noen kostnadsramme. Ved et normalt prosjekt med tilknytning til det som regel påløpe utgifter til feks. egenkapitalinnskudd til sameiet, driftstilskudd til et eventuelt SA ved etablering, kommunal tilknytningsavgift og kostnad for tiltak som kreves eller eier velger å forta på egen hytte (El. og Vann). I tillegg kommer hovedjobben knyttet til graving og den faktiske etablering av valg trasse. Tidsrammen på prosjektet er pt. ikke kjent, men pålegg om tilknytning vil komme fra Sandefjord kommune i fremtiden. Se Sandefjord kommunes nettsider for mer informasjon.
Regulerings-og arealplaner
Eiendommen ligger i et uregulert område, men er i kommuneplanens arealdel, vedtatt 21.09.2023, avsatt til LNRF areal for nødvendige tiltak for landbruk og reindrift og gårdstilknyttet næringsvirksomhet (nåværende). Eiendommen ligger i et LNFR-område (Landbruks-, natur-, frilufts- og reindriftsområde).
I LNFR-områder gjelder strenge restriksjoner for utbygging og bruksendring. I LNFR-område kan det være bygge- og deleforbud. For eksisterende fritidsbebyggelse i LNF-områder gjelder særskilte bestemmelser. I henhold til kommuneplanens retningslinjer kan det etter dispensasjon gis tillatelse til utvidelse av eksisterende fritidsbebyggelse utenfor 100-metersbeltet til inntil 130 kvm BYA.
Eiendommen berøres av hensynssone H530: Hensyn friluftsliv: Områder avmerket med hensynssone friluftsliv har, i tillegg til viktige landbruksinteresser, også stor verdi for friluftsliv. Ved lokalisering og utforming av tiltak i disse områdene skal hensynet til friluftsliv ivaretas så fremt dette ikke er i konflikt med landbruks- og næringsinteresser.
Utsnitt av plan med tilhørende bestemmelser kan fås ved henvendelse til megler.
Økonomi
Økonomi
Kommunale utgifter
Kommunale avgifter er kr 4 895,60 for 2026. I dette inngår gebyr for vann, renovasjon og feiing.
Nåværende eier har et strømforbruk som tilsvarer ca. kr 4 685,- pr. år / 273 kWh pr. år.
Hytta har en årlig forsikringspremie på kr 3.049,-.
Velavgift til Auve Vel er kr 1 500,- pr. år.
Hytta er i dag ikke tilknyttet noen leverandør av TV eller internett.
Selger har avtalt Norgespris på strøm på eiendommen for perioden til og med 31.12.2026 og denne er pt på kr 50 øre inkl mva. Nettleie, avgifter og påslag fra kraftleverandøren kommer i tillegg. Er det fjernvarme vil det også komme kostnader i tillegg. Denne avtalen vil følge eiendommen i den avtalte perioden.
Les mer om Norgespris her: https://www.regjeringen.no/no/aktuelt/legg-fram-lov-om-norgespris-pa-straum-og-fjernvarme/id3102642/
Utgiftene er basert på nåværende eiers forbruk og avtaler.
Formuesverdi
Formuesverdi for 2024 var kr 212 895,- ifølge Skatteetaten. Beløpet forutsetter at eier bruker eiendommen som fritidsbolig.
Fra 2026 har Stortinget vedtatt en oppdatert modell for beregning av formuesverdi for primærbolig, så avvik kan forekomme.
For mer informasjon se skatteetaten.no
Omkostninger
3 990 000,00 Prisantydning
Omkostninger
99 750,00 Dokumentavgift til staten (2,5% av kjøpesum)
19 900,00 Gjensidige Boligkjøperpakke* (valgfritt)
545,00 Tinglysing panterettsdokument
545,00 Tinglysing skjøte
--------------------------------------------------------
100 840,00 Omkostninger totalt (uten Gjensidige Boligkjøperpakke)
120 740,00 Omkostninger totalt (med Gjensidige Boligkjøperpakke)
--------------------------------------------------------
4 090 840,00 Totalpris inkl. omkostninger
4 110 740,00 Totalpris inkl. omkostninger (med Gjensidige Boligkjøperpakke)
--------------------------------------------------------
Totalpris inkl. omkostninger forutsetter kjøp til prisantydning.
Det tas forbehold om endringer i avgifter og gebyrer.
Tilbud om lånefinansiering
Megler formidler gjerne kontakt med rådgiver hos vår samarbeidspartner BN Bank. De har konkurransedyktige betingelser samt rask og løsningsorientert behandling av din lånesøknad. Krogsveen mottar et honorar dersom lån opprettes.
Betalingsbetingelser
Kjøpesum inkludert omkostninger, samt pantedokument tilknyttet eventuelt lån, skal være disponibelt hos megler 2 virkedager før overtagelsen.
Annen viktig informasjon
Annen viktig informasjon
Eier
Grete Haarseth
Overtakelse
Etter nærmere avtale.
Velforening
Eiendommen er tilknyttet velforeningen Auve Vel. Årlig kontingent er kr 1 500.
Videre medfølger det rett til båtplass/rett for mulighet til båtplass/båtfeste på fellesbrygge. Auve Båtforening står for drift av bryggeanlegg. Auve Båtforening har 23 medlemmer og 15 båtplasser. Det er ingen medlemmer som har fast båtplass. Fordeling av bryggens båtplasser gjøres hvert år (etter "første mann til mølla" prinsippet). Det er ingen fast båtplass som følger. Kontakt megler for mer informasjon rundt båtforeningen samt vedtekter og regler for bryggeanlegget.
Det er to nivåer for årsavgift ved brygga, kr 1.500 for aktive brukere og kr 750 for medlemmer som ikke benytter båtplass (Avgiften for sesongen 2026 er ikke satt). Nødvendige reparasjon og oppgraderinger av bryggen deles mellom lagets medlemmer. Dette skjer som hovedregel i form av en egen innbetaling av nødvendig beløp. Det er mulighet for vinteropplag for båt på fellesarealene nede ved sjøen (iflg. selger).
Boligselgerforsikring
Selger har i forbindelse med salget tegnet boligselgerforsikring levert av Gjensidige.
Boligselgerforsikringen dekker selgers ansvar etter avhendingsloven begrenset oppad til kr 14 millioner. Dersom kjøper oppdager forhold ved eiendommen som hen mener utgjør en mangel ved eiendommen, vil Gjensidige behandle reklamasjonen på vegne av selger. Forsikringsvilkår kan fås ved henvendelse til megler.
Vedlagt salgsoppgaven følger selgers egenerklæringsskjema og tilstandsrapport. Interessenter må sette seg inn i dokumentene før bud inngis.
Boligkjøperforsikring
Innen kontraktsmøtet må kjøper ta stilling til om det ønskes å bestille Boligkjøperpakken gjennom Gjensidige. I denne gunstige pakken er boligen ferdig forsikret og inkluderer rettshjelpsforsikring, også kalt Boligkjøperforsikring. Rettshjelpsforsikring gir trygghet og tilgang på profesjonell juridisk hjelp dersom det oppdages uventede feil eller mangler det første året etter overtagelse. Forsikringsselskapet behandler i så fall ethvert mangelskrav kjøper måtte ha overfor selger.
Boligkjøperpakken inkluderer bygningsforsikring for hus og hytte, innboforsikring, flytteforsikring og dobbel rentedekning - i situasjoner hvor kjøper ikke får solgt nåværende primærbolig.
Kjøper mottar ingen særskilt faktura for Boligkjøperpakken da kostnaden det første året legges til kjøpesummen for boligen. Det gjøres oppmerksom på Krogsveen mottar et honorar for denne formidlingen.
Produktark for Boligkjøperpakken ligger vedlagt i salgsoppgaven.
Dersom ikke boligkjøperpakke ønskes kan kun rettshjelpsforsikring, også kalt boligkjøperforsikring, tegnes særskilt via megler. Rettshjelpsforsikringen varer i 5 år fra overtagelse og leveres gjennom Gjensidige. Ta kontakt med megler for ytterligere informasjon.
Selskap og privatpersoner som driver med kjøp/salg/utvikling som ledd i egen næringsvirksomhet kan ikke tegne boligkjøperpakke eller rettshjelpsforsikring.
Budgivning
Forbrukerinformasjon om budgivning er vedlagt denne salgsoppgaven og er også på vår hjemmeside Krogsveen.no. Alle bud og budforhøyelser må inngis skriftlig. I tillegg må legitimasjon være fremlagt sammen med signatur fra budgiver.
Vi oppfordrer til å gi bud elektronisk via GI BUD-knappen på eiendommens hjemmeside på Krogsveen.no. Da vil samtlige vilkår bli oppfylt.
Eventuelle forhøyelser eller endringer av budet kan bekreftes pr SMS eller på e-post. Vi oppfordrer alltid til å kontakte megler pr. telefon i tillegg da forsinkelser i SMS og e-post kan forekomme.
For at budene skal kunne bli behandlet og videreformidlet skriftlig til alle involverte parter, må alle bud ha en tilstrekkelig lang akseptfrist, jf. eiendomsmeglingsforskriften § 6-3.
Selger må også skriftlig akseptere budet før aksept kan formidles til budgiver. Akseptfrist bør derfor være på minimum 30 minutter, og budforhøyelser må derfor skje i god tid før fristens utløp.
Bud i forbrukerforhold kan uansett ikke settes med kortere frist enn kl. 12.00 første virkedag etter siste annonserte visning. I tillegg kan ikke budet ha forbehold om at det skal holdes hemmelig ovenfor øvrige interessenter. Megler har iht lov om eiendomsmegling ikke anledning til å videreformidle disse budene, og de vil dermed heller ikke bli journalført.
Etter at eiendommen er solgt vil kjøper og selger få tilsendt budjournal. Øvrige budgivere kan få utlevert kopi av budjournalen i anonymisert form.
Hvitvaskingsreglene
I henhold til lov om hvitvasking og terrorfinansiering har megler plikt til å gjennomføre kontrolltiltak overfor kunder, herunder fullmektiger. Dette innebærer bl.a. å bekrefte kunders og reelle rettighetshaveres identitet på bakgrunn av fremvist gyldig legitimasjon eller på annen godkjent måte, samt å innhente opplysninger om kundeforholdets formål og tilsiktede art.
Dersom slike kundetiltak ikke kan gjennomføres, kan megler ikke etablere kundeforholdet eller utføre transaksjonen.
Hvis kjøper ikke bidrar til gjennomføring av kundekontrollen og dette fører til at transaksjonen blir forsinket eller ikke kan gjennomføres, vil dette ansees som mislighold av avtalen og gi selger rettigheter etter avhendingslova kapittel 5. I tilfeller der selger ikke bidrar til gjennomføring av løpende kundekontroll underveis i oppdraget, er det selger som misligholder sine forpliktelser etter avtalen og gi kjøper rettigheter etter avhendingslovens kapittel 4. Partene er selv ansvarlige for eventuelle kostnader og ansvar dette kan medføre. Eiendomsmegleren eller eiendomsmeglingsforetaket kan ikke holdes ansvarlig for de konsekvenser dette vil kunne få for partene eller andre som har interesser i eiendomshandelen.
Kjøper oppfordres til å innbetale kjøpesummen som ikke kommer fra låneinstitusjon i én samlet innbetaling fra egen konto i norsk bank. Megler har plikt til å melde fra til Økokrim om eiendomshandler som fremstår som mistenkelige. Melding sendes Økokrim uten at partene varsles.
Personopplysningsloven
I henhold til personopplysningsloven gjør vi oppmerksom på at interessenter kan bli registrert for videre oppfølging.
Lovanvendelse
Generelle bestemmelser
Salgsoppgaven er basert på de opplysningene selger har gitt til megler, den bygningssakyndiges tilstandsrapport, samt opplysninger innhentet fra kommunen, Kartverket og andre tilgjengelige kilder. Det er viktig at kjøper setter seg grundig inn i alle salgsdokumentene, herunder salgsoppgave, tilstandsrapport og selgers egenerklæring. Kjøper anses kjent med forhold som er tydelig beskrevet i salgsdokumentene, og slike forhold kan ikke påberopes som mangler. Dette gjelder uavhengig av om kjøper har lest dokumentene. Alle interessenter oppfordres til å undersøke eiendommen nøye, gjerne sammen med fagkyndig før bud inngis. Kjøper som velger å kjøpe usett kan ikke gjøre gjeldende som mangel noe han burde blitt kjent med ved undersøkelsen.
Dersom det er behov for avklaringer, anbefaler vi at interessenter rådfører seg med eiendomsmegler eller egne rådgivere før det legges inn bud.
En bolig som har blitt brukt i en viss tid, har vanligvis blitt utsatt for slitasje og skader kan ha oppstått. Slik bruksslitasje må kjøper regne med, og det kan avdekkes enkelte forhold etter overtakelse som nødvendiggjør utbedringer. Normal slitasje og skader som nødvendiggjør utbedring, er innenfor hva kjøper må forvente og vil ikke utgjøre en mangel.
Kjøper og selgers rettigheter og plikter reguleres av avtalen mellom partene, samt informasjonen som har vært tilgjengelig for kjøperen i forbindelse med handelen. Avtalen utfylles av avhendingsloven, og det gjelder ulike avtalevilkår avhengig av om kjøper er forbrukerkjøper eller ikke. Dette er nærmere beskrevet nedenfor.
På grunn av ulike avtalevilkår kan selger vurdere bud fra en som ikke er forbruker, ulikt fra en forbrukers bud. Dersom kjøper ikke er forbruker, er selger sitt mulige mangelsansvar begrenset fordi eiendommen selges "som den er". Selger kan ikke ta «som den er»- forbehold overfor en forbrukerkjøper. Selv et lavere bud fra en som ikke er forbruker kan foretrekkes fordi begrensningen i mulig mangelsansvar kan ha egenverdi for selger. Selger står fritt til å forkaste eller akseptere ethvert bud, og er for eksempel ikke forpliktet til å akseptere høyeste bud.
Budgiver skal i budskjema avgi egenerklæring om budgiver er forbruker eller næringsdrivende/ person som hovedsakelig handler som ledd i næringsvirksomhet. Budgivere får informasjon dersom andre bud er inngitt av en som ikke er forbruker.
Forbrukerkjøp - definisjon
Med forbrukerkjøp menes kjøp av eiendom når kjøperen er en fysisk person som ikke hovedsakelig handler som ledd i næringsvirksomhet.
Forbruker – avtalevilkår
Eiendommen har en mangel dersom den ikke er i samsvar med kravene som følger av avtalen, eller det foreligger brudd på bestemmelsene i avhendingsloven §§ 3-2 til 3-8. Hvis eiendommen ikke er i samsvar med det kjøperen må kunne forvente ut ifra alder, type og synlig tilstand, kan det være grunnlag for mangelskrav. Det samme gjelder hvis det er holdt tilbake eller gitt uriktige opplysninger om eiendommen. Dette gjelder likevel bare dersom man kan gå ut ifra at det virket inn på avtalen at opplysningen ikke ble gitt eller at mangelskravet ikke blir rettet i tide på en tydelig måte.
Boligen kan ha en mangel etter avhendingsloven § 3-3 andre ledd, dersom det er avvik mellom opplyst og faktisk innvendig areal, forutsatt at avviket er på 2% eller mer og minimum 1 kvm.
Ved beregning av et eventuelt prisavslag eller erstatning må kjøper selv dekke tap/kostnader opptil et beløp på kr 10 000 (egenandel).
Ikke-forbruker (næringsdrivende) – definisjon
Hvis kjøper er en juridisk person, eller en fysisk person som hovedsakelig handler som ledd i næringsvirksomhet, vil kjøpet ikke anses som et forbrukerkjøp.
Ikke-forbruker – avtalevilkår
Eiendommen har en mangel dersom den ikke er i samsvar med kravene som følger av avtalen.
Eiendommen selges «som den er», og selgers ansvar utover det konkret avtalte er da begrenset etter avhendingsloven § 3-9, første ledd andre setning.
Avhendingsloven § 3-3 andre ledd fravikes, og hvorvidt boligens arealsvikt utgjør en mangel vurderes etter avhendingsloven § 3-8.
Informasjon om kjøpers undersøkelsesplikt, herunder oppfordringen om å undersøke eiendommen nøye, gjelder også for kjøpere som ikke anses som forbrukere.
Det forutsettes at hjemmel overføres til kjøper. Hvis kjøper ikke ønsker hjemmelsoverføring av eiendommen, må det tas forbehold om dette i budet.
Meglers vederlag
Meglers vederlag betales av selger og er avtalt til:
Vederlag: 1,25 % av salgssummen. Minimumsprovisjon er kr 50 000,00
Vederlag:
Fotopakke kr 5 000,00
Kontroll av hjemmel og heftelser kr 3 900,00
Markedsføringspakke kr 29 900,00
Oppgjør kr 8 900,00
Tilrettelegging kr 19 900,00
Visninger pr stk. kr 4 500,00
Utlegg:
Innhenting av offentlig opplysninger Sandefjord kr 3 504,00
Tinglysing sikring kr 545,00
Andre utgifter:
Boligselgerforsikring Gjensidige Fritid regnes av prisant. kr 25 240,00
Tilstandsrapport fra takstmann kr 15 500,00
Vi er opptatt av verdiskapning, og har knyttet til oss samarbeidspartnere som skal sikre våre kunder de beste produkter og tjenester;
• I forbindelse med forberedelse av salget, innhenter vi informasjon om eiendommen hovedsakelig fra vår samarbeidspartner Ambita.
• Gjensidige leverer boligselgerforsikring og tilbyr bygningsforsikring
• Boligkjøperforsikring leveres av Hiscox og med Sedgwick som skadebehandler, og er formidlet gjennom Gjensidige.
• BN bank tilbyr finansieringsløsninger
• Vår avdeling Krogsveen Pluss tilbyr flyttetjenester som utvask, visningsvask, lager, tømming og transport av flyttelass, i tillegg til å formidle kontakt med Flip for overflateoppussing.
• I forbindelse med overtagelse av eiendommen tilbyr Overo avtale om strøm, alarm og bredbånd.
• Krogsveen er, sammen med øvrige bransjeaktører, medeier i Bomega AS som tilbyr den digitale annonseringsplattformen Hjem.
Opplysninger om oppdraget
Oppdragsnummer 22-0093/26
Eiendomsmegler Krogsveen AS, avd. Sandefjord
Jernbanealléen 13, 3210, SANDEFJORD
950 007 613
Oppdragets KR-kode KR22.2693
Dato
Sist oppdatert: 30. april 2026 kl. 17:39
Dokumenter
Dokumenter
PDF – 918 KB
PDF – 168 KB
PDF – 5 MB
PDF – 2 MB
PDF – 312 KB
PDF – 29 KB
PDF – 127 KB
PDF – 392 KB
Område
Legg til steder som er viktige for deg
Visning
For å delta på visning, ber vi om at du melder deg på. Da sikrer vi at du får nødvendig informasjon og at det er satt av tilstrekkelig med tid. Kontakt megler dersom annet tidspunkt ønskes. Husk å lese salgsoppgaven før visningen, så du stiller forberedt. NB. Visning utgår dersom det ikke er noen påmeldte. Ønsker du kun å bli holdt orientert, kan du fra eiendommens hjemmeside få varsel om solgtpris, eller kontakte megler.
Lurer du på noe?
Vurderer du utleie?
Få et tilbud fra Utleie KrogsveenHva koster lånet?
Sjekk estimert lånekostnadVil du varsles om lignende boliger?
Ved å lagre ditt boligsøk hos oss får du beskjed når vi har en bolig som ligner denne, før den legges ut på markedet!









































