Arilds vei 26B
17 800 000 kr
302 m²
5 soverom
Solgt

Kjelsås v/Myrerjordet
Eksklusiv og meget innholdsrik murvilla med godkjent utleiedel i et populært og barnevennlig boligområde. God standard!
Prisantydning
17 800 000 krOmkostninger
465 990 krTotalpris
18 265 990 kr
Pris
Bruksareal
316 m²BRA-I (internt bruksareal)
302 m²BRA-E (eksternt bruksareal)
14 m²TBA (terrasse-balkongareal)
33 m²
Areal
Etasje
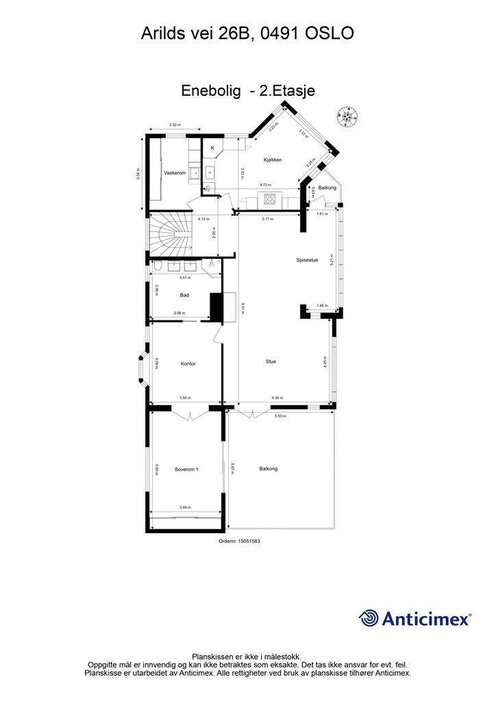
2Byggeår
1996Soverom
5 soveromBad
4 badType
Enebolig med utleiedelEierform
EierseksjonFasiliteter
Garasje/P-plass og Balkong/TerrasseEnergimerke
Oransje E
Nøkkelinfo
Unngå doble boligrenter
Vi tilbyr gunstig forsikring.
Vurderer du utleie?
Få et tilbud fra Utleie KrogsveenHva koster lånet?
Sjekk estimert lånekostnadBeskrivelse
Kort om eiendommen
Arilds vei 26B er en meget spennende og innholdsrik enebolig med godkjent utleiedel beliggende i et svært barnevennlig boligområde med kort vei til alt av fasiliteter.
Beliggenheten rett ved Myrerjordet, Spar, Coop Prix, offentlig kommunikasjon, barnehager, skoler og marka m.m gjør hverdagen enkel for den aktive familien.
Planløsningen er meget fleksibel og boligen holder en generelt meget god standard og er de senere år vesentlig oppgradert med blant annet tre nye bad og to kjøkken og fremstår med fine fargevalg både på malte flater og på fliser. Det er gulvvarme i de fleste gulv som hovedsakelig består av store gulvfliser og enstavs eikeparkett. Utleiedelen gir gode leieinntekter (pt. kr. 16.500,- inkl strøm), eller benyttes selv hvis ønskelig.
Deler av 1.etasje er bruksendret i 2025
Område
Legg til steder som er viktige for deg
På flyttefot? Tenk kjøp og salg samtidig.
Få din egen rådgiver gjennom hele kjøps- og salgsprosessen. Det starter med en verdivurdering.
Unngå doble boligrenter
Vi tilbyr gunstig forsikring.
Vurderer du utleie?
Få et tilbud fra Utleie KrogsveenHva koster lånet?
Sjekk estimert lånekostnadVil du varsles om lignende boliger?
Ved å lagre ditt boligsøk hos oss får du beskjed når vi har en bolig som ligner denne, før den legges ut på markedet!

