Kilenveien 8
6 950 000 kr
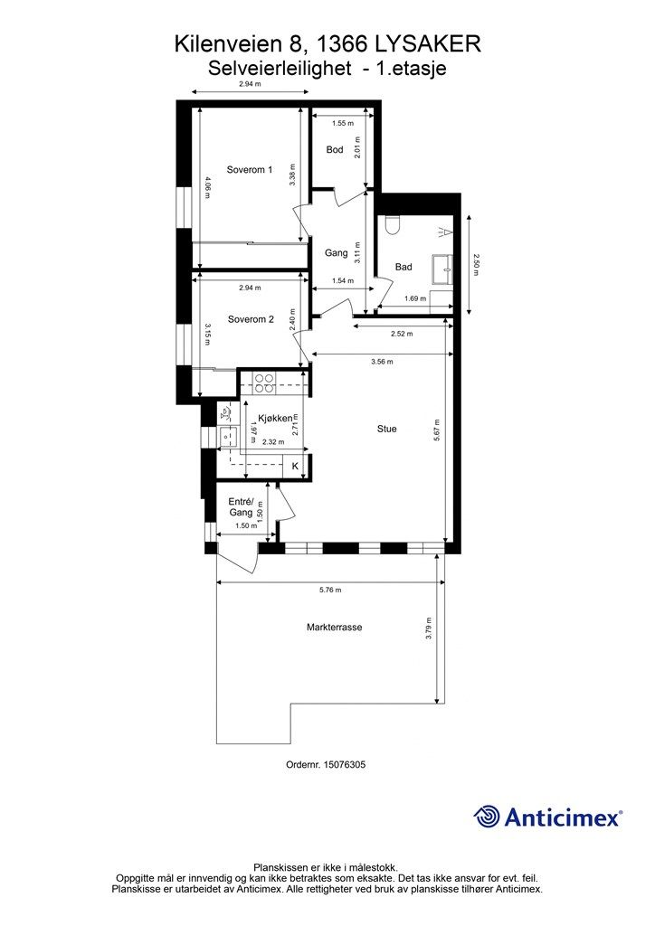
65 m²
2 soverom
Solgt

Fornebu/Lysaker
Lekker 3-r hjørneleilighet |Stor, solrik terrasse (24 m²) |Garasjeplass m/ lader |Sentralt |Stille og rolig beliggenhet
Prisantydning
6 950 000 krOmkostninger
184 790 krTotalpris
7 134 790 kr
Pris
Bruksareal
70 m²BRA-I (internt bruksareal)
65 m²BRA-E (eksternt bruksareal)
5 m²TBA (terrasse-balkongareal)
24 m²
Areal
Etasje
1Byggeår
2017Soverom
2 soveromBad
1 badType
EierleilighetEierform
EierseksjonFasiliteter
Garasje/P-plass og Balkong/TerrasseFellesutgifter
3 503 krEnergimerke
Grønn C
Nøkkelinfo
Unngå doble boligrenter
Vi tilbyr gunstig forsikring.
Vurderer du utleie?
Få et tilbud fra Utleie KrogsveenHva koster lånet?
Sjekk estimert lånekostnadBeskrivelse
Kort om eiendommen
En moderne og innbydende 3-roms hjørneleilighet i bygg fra 2017 med høy standard og gjennomført kvalitet. Her får du en unik kombinasjon av landlig ro og sentral beliggenhet – perfekt for både barnefamilier og de som ønsker enkel tilgang til bylivet. Leiligheten har vannbåren varme, balansert ventilasjon, samt kvalitetskjøkken/bad levert av Drømmekjøkkenet.
• Nyere leilighet fra 2017 med gjennomført design og takhøyde (2,6 m)
• Enkel adkomst og eget inngangsparti
• Walk-in garderobe
• Stor, solrik markterrasse på 24 kvm med kveldsol!
• 2 boder
• Garasjeplass m/ lader + gjesteparkering
• Kort vei til buss og tog – kun ca. 15 min til sentrum
• Frodige, grønne omgivelser og flott lekeplass rett ved
• Fantastiske turmuligheter rett utenfor døren
• Super sentral og ettertraktet beliggenhet!
Område
Legg til steder som er viktige for deg
På flyttefot? Tenk kjøp og salg samtidig.
Få din egen rådgiver gjennom hele kjøps- og salgsprosessen. Det starter med en verdivurdering.
Unngå doble boligrenter
Vi tilbyr gunstig forsikring.
Vurderer du utleie?
Få et tilbud fra Utleie KrogsveenHva koster lånet?
Sjekk estimert lånekostnadVil du varsles om lignende boliger?
Ved å lagre ditt boligsøk hos oss får du beskjed når vi har en bolig som ligner denne, før den legges ut på markedet!

