Storgaten 71B
3 625 000 kr
107 m²
2 soverom
Solgt
Svelvik sentrum
Moderne og delikat 3-roms endeleilighet fra 2021 med 2 etg. Balansert ventilasjon. Balkong. Egen inngang. Garasjeplass.
Prisantydning
3 625 000 krOmkostninger
101 660 krTotalpris
3 726 660 kr
Pris
Bruksareal
107 m²BRA-I (internt bruksareal)
107 m²TBA (terrasse-balkongareal)
8 m²
Areal
Etasje
2Byggeår
1960Soverom
2 soveromBad
1 badType
EierleilighetEierform
EierseksjonFasiliteter
Garasje/P-plass og Balkong/TerrasseFellesutgifter
4 600 krEnergimerke
Rød G
Nøkkelinfo
Selges med verdibevis
4 års garanti på deler av boligen.
Unngå doble boligrenter
Vi tilbyr gunstig forsikring.
Vurderer du utleie?
Få et tilbud fra Utleie KrogsveenHva koster lånet?
Sjekk estimert lånekostnadBeskrivelse
Kort om eiendommen
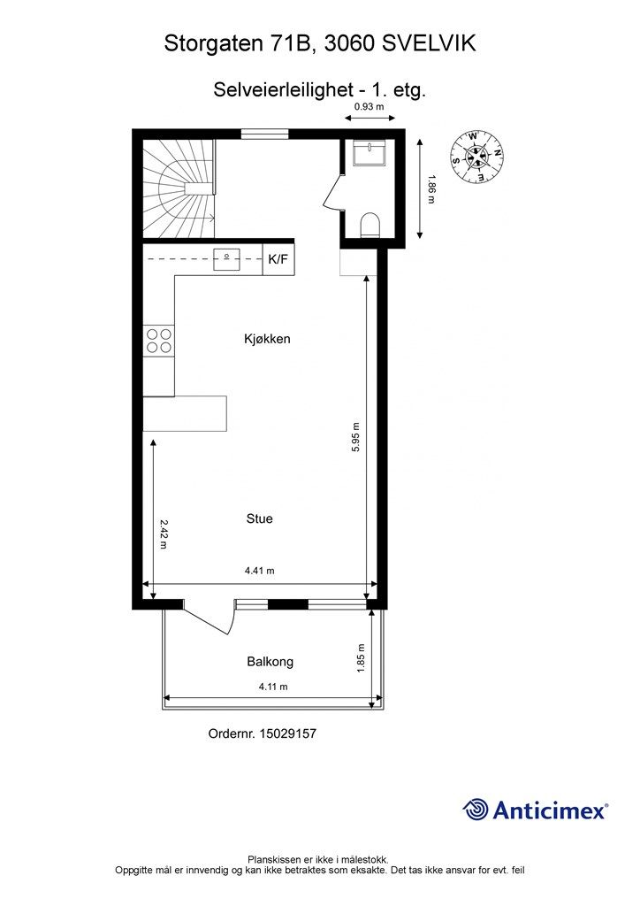
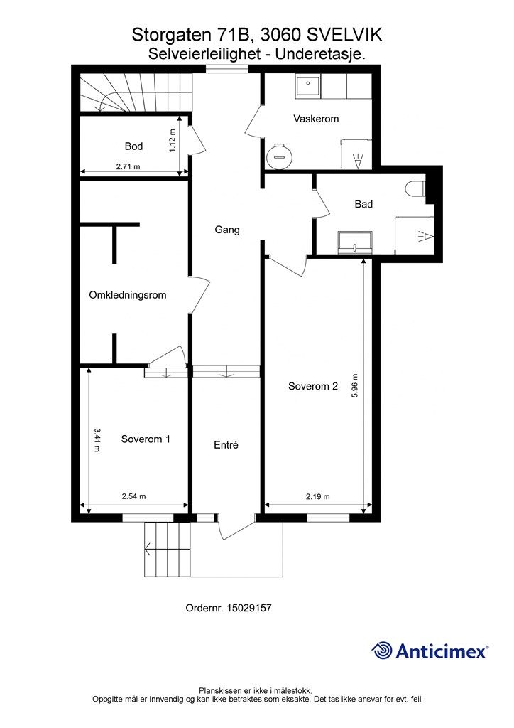
Moderne og delikat 3-roms endeleilighet beliggende i u. etg og 1. etg.
Denne seksjonen ble bruksendret/ombygget til leilighet i 2021
Leiligheten er gjennomgående og strekker seg over 2 plan
Luftig åpen kjøkken- og stueløsning med høy takhøyde samt store vindusflater
Moderne HTH kjøkkeninnredning med helintegrerte hvitevarer
Separat wc-rom og praktisk vaskerom med skapinnredning (ikke bruksendret)
Lekkert flislagt bad med regnfallsdusj og gulvvarme
Balansert ventilasjon med varmegjenvinning
Østvendt balkong på ca. 8 kvm med utsikt
Medfølgende parkering i felles garasje
Idyllisk og sentral beliggenhet langs sjøen
Kort gangavstand til bussholdeplass, butikker og brygge
Sentrumsområdet er et lite tettsted som bærer preg av sørlandsidyll
Område
Legg til steder som er viktige for deg
Meglere

Markus Alm Thoen
Eiendomsmegler / Partner
På flyttefot? Tenk kjøp og salg samtidig.
Få din egen rådgiver gjennom hele kjøps- og salgsprosessen. Det starter med en verdivurdering.
Selges med verdibevis
4 års garanti på deler av boligen.
Unngå doble boligrenter
Vi tilbyr gunstig forsikring.
Vurderer du utleie?
Få et tilbud fra Utleie KrogsveenHva koster lånet?
Sjekk estimert lånekostnadVil du varsles om lignende boliger?
Ved å lagre ditt boligsøk hos oss får du beskjed når vi har en bolig som ligner denne, før den legges ut på markedet!
På flyttefot? Slik gjør vi det enklere for deg
Skreddersydd flyttepakke
Vi fikser håndverkere, vask, pakking, lagring og transport, og legger ut for utgiftene underveis.
Hjelp med både kjøp og salg
Hos oss har du din egen rådgiver gjennom hele kjøps- og salgsprosessen.
Hjelp til finansiering
Vårt samarbeid med BN Bank sikrer deg rask og løsningsorientert hjelp, til konkurransedyktige betingelser.



