Bergsbygdavegen 58
2 990 000 kr
70 m²
2 soverom
Solgt

Porsgrunn - Døvika
INGEN BOPLIKT! Vestvendt enebolig med nytt kjøkken, fine uteplasser vinterhage og dobbelgarasje - Solrikt og fin utsikt
Prisantydning
2 990 000 krOmkostninger
95 740 krTotalpris
3 085 740 kr
Pris
Bruksareal
130 m²BRA-I (internt bruksareal)
70 m²BRA-E (eksternt bruksareal)
44 m²TBA (terrasse-balkongareal)
91 m²
Areal
Byggeår
1995Soverom
2 soveromBad
1 badTomteareal
821 m² (eiet)Type
Enebolig - FrittliggendeEierform
EietFasiliteter
Garasje/P-plass og Balkong/TerrasseEnergimerke
Oransje E
Nøkkelinfo
Unngå doble boligrenter
Vi tilbyr gunstig forsikring.
Vurderer du utleie?
Få et tilbud fra Utleie KrogsveenHva koster lånet?
Sjekk estimert lånekostnadBeskrivelse
Kort om eiendommen
Koselig liten enebolig med fantastiske uteområder og en meget attraktiv beliggenhet innerst i blindvei. Solrikt og flott utsikt mot fjorden, Olavsberget og Kattøya. Her får du en usjenert hverdag på de mange forskjellige uteområdene du kan boltre deg på. Det er totalt ca. 91kvm med terrasse fordelt på bassengområdet og rundt boligen. Bassenget behøver ny duk, men varmepumpe og sirkulasjonspumpen fungerer fint. Nytt EPOQ kjøkken i 2021 med integrerte hvitevarer i åpen løsning med stuen. Det ble samtidig lagt nytt gulv og himling på samme tid.
Praktisk vinterhage med skyvedører og varmepumpe er en flott forlengelse av stua.
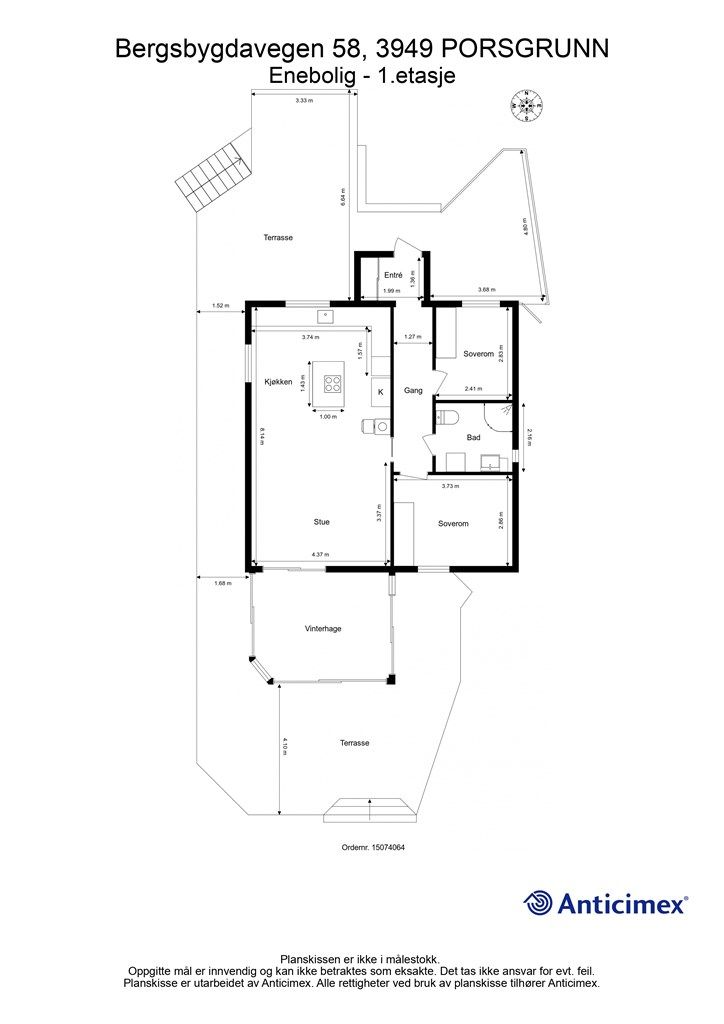
Inneholder:
Entre, gang, to soverom, bad, stue og kjøkken.
Garasje med lagringsloft.
Velkommen til Bergsbygdavegen 58!
Område
Legg til steder som er viktige for deg
På flyttefot? Tenk kjøp og salg samtidig.
Få din egen rådgiver gjennom hele kjøps- og salgsprosessen. Det starter med en verdivurdering.
Unngå doble boligrenter
Vi tilbyr gunstig forsikring.
Vurderer du utleie?
Få et tilbud fra Utleie KrogsveenHva koster lånet?
Sjekk estimert lånekostnadVil du varsles om lignende boliger?
Ved å lagre ditt boligsøk hos oss får du beskjed når vi har en bolig som ligner denne, før den legges ut på markedet!

