Vålaugsvegen 123
4 590 000 kr
167 m²
3 soverom
Solgt

Eldre enebolig med stor tomt på ca. 3.389 kvm sentralt i Maura | Gangavstand til skole og bhg. | 15 min. til OSL
Prisantydning
4 590 000 krOmkostninger
135 740 krTotalpris
4 725 740 kr
Pris
Bruksareal
300 m²BRA-I (internt bruksareal)
167 m²BRA-E (eksternt bruksareal)
133 m²TBA (terrasse-balkongareal)
20 m²
Areal
Etasje
1Byggeår
1968Soverom
3 soveromBad
1 badTomteareal
3 389 m² (eiet)Type
Enebolig - FrittliggendeEierform
EietFasiliteter
Garasje/P-plass og Balkong/Terrasse
Nøkkelinfo
Unngå doble boligrenter
Vi tilbyr gunstig forsikring.
Vurderer du utleie?
Få et tilbud fra Utleie KrogsveenHva koster lånet?
Sjekk estimert lånekostnadBeskrivelse
Kort om eiendommen
Drømmer du om en flott eiendom med stor tomt? Da er Vålaugsvegen 123 noe du bør se nærmere på. Denne eiendommen byr på en sentral beliggenhet i et rolig og idyllisk boområde - perfekt for både familieliv og avslapning. Eiendommen består av en godt vedlikeholdt enebolig, anneks/gammelhuset, stabbur og vedskjul - og den store tomten gir rikelig med plass til hage, lek eller fremtidige prosjekter.
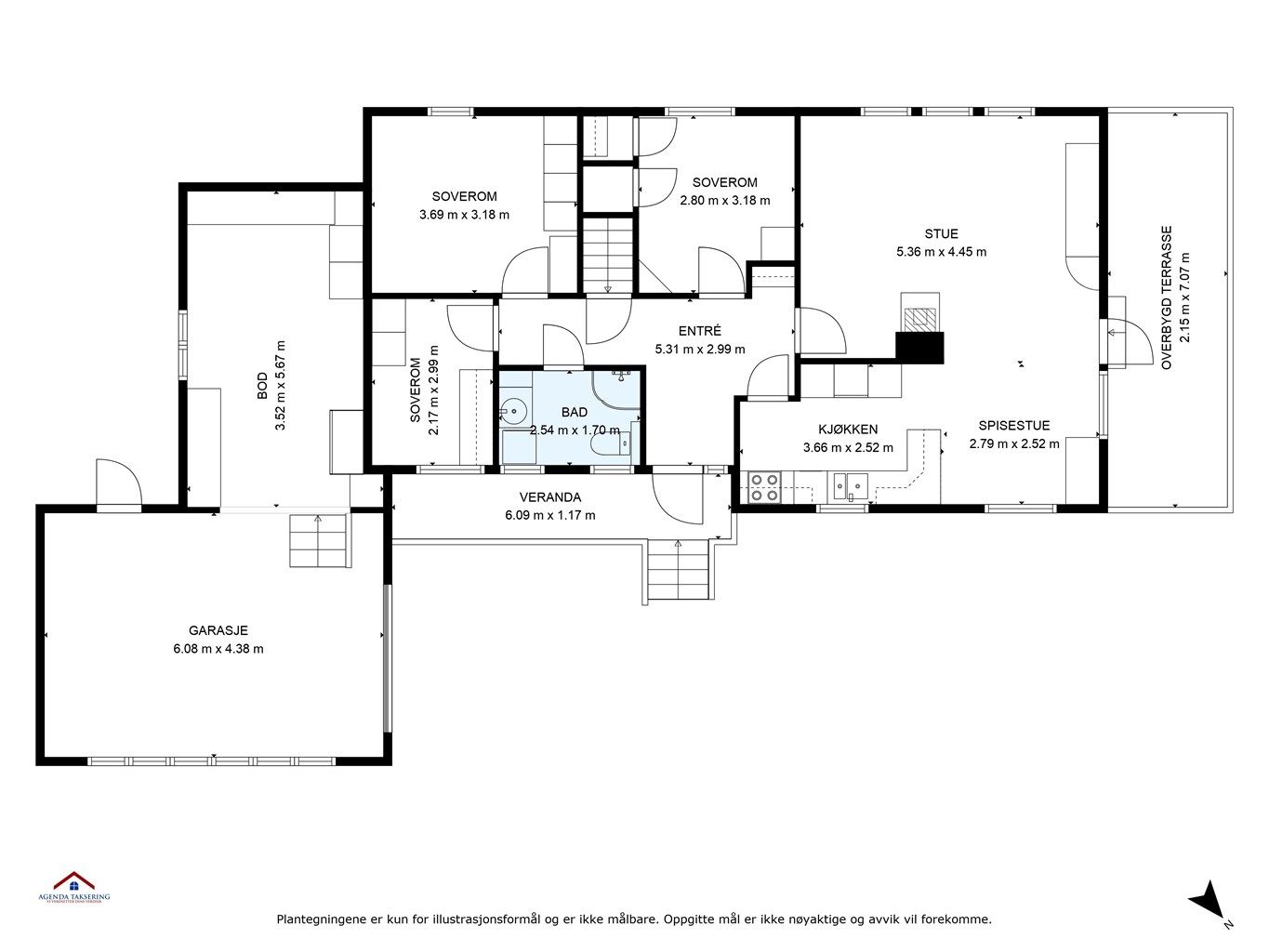
Boligen går over et plan og inneholder gang, stue, kjøkken, bad og tre soverom. Kjellerrom for lagring. Parkering i enkeltgarasje.
Eiendommen ligger sentralt til i Maura, samt med umiddelbar nærhet til flotte rekreasjonsområder. Her har du alt det beste naturen kan by på rett utenfor døren! Flotte ski- og tur løyper, gode jakt og ride muligheter, perfekte forhold for fine sopp og bær turer.
Område
Legg til steder som er viktige for deg
Megler

Kine Johansen Ruud
Eiendomsmegler
På flyttefot? Tenk kjøp og salg samtidig.
Få din egen rådgiver gjennom hele kjøps- og salgsprosessen. Det starter med en verdivurdering.
Unngå doble boligrenter
Vi tilbyr gunstig forsikring.
Vurderer du utleie?
Få et tilbud fra Utleie KrogsveenHva koster lånet?
Sjekk estimert lånekostnadVil du varsles om lignende boliger?
Ved å lagre ditt boligsøk hos oss får du beskjed når vi har en bolig som ligner denne, før den legges ut på markedet!
