Sperrevigveien 82
3 750 000 kr
137 m²
4 soverom
Komplett salgsoppgave

Kolbjørnsvik
Sørlandsidyll i Kolbjørnsvik - Fantastisk utsikt fra terrasse på tre nivåer- 4 soverom
Prisantydning
3 750 000 krOmkostninger
114 740 krTotalpris
3 864 740 kr
Pris
Bruksareal
140 m²BRA-I (internt bruksareal)
137 m²BRA-E (eksternt bruksareal)
3 m²TBA (terrasse-balkongareal)
74 m²
Areal
Etasje
2Byggeår
1725Soverom
4 soveromBad
1 badTomteareal
289 m² (eiet)Type
Enebolig - FrittliggendeEierform
EietFasiliteter
Balkong/TerrasseEnergimerke
Gul G
Nøkkelinfo
Unngå doble boligrenter
Vi tilbyr gunstig forsikring.
Vurderer du utleie?
Få et tilbud fra Utleie KrogsveenHva koster lånet?
Sjekk estimert lånekostnadBeskrivelse
Kort om eiendommen
Sperrevigveien 82 er en helårsbolig som byr på fine løsninger, fantastiske uteplasser på flere nivåer med vakker utsikt og gode solforhold. Det er få meter til fots til badeplasser og rutebåt bl.a. Boligen er påkostet opp igjennom årene og byr blant annet på varmepumpe, nytt kjøkken, nyere peis, tilbygg, rekkverk ute, redskapsbod mv. Det er en romslig kjeller med lagringsmuligheter. Her kan man bo ca. 10 minutter fra Arendal sentrum, med muligheter for leie av båtplass like ved. Her får man flere praktiske rom hvor hele fire rom er brukt som soverom i dag. Det er i tillegg to stuer, romslig bad, samt eget toalettrom i boligen, m.m. Dette er en helt unik bolig som er passe tilbaketrukket, med en sentral beliggenhet i Kolbjørnsvik på Hisøy! Gangavstand til offentlige biloppstillingsplasser!
Innhold og byggemåte
Innhold og byggemåte
Eiendommen
Sperrevigveien 82, 4816 KOLBJØRNSVIK
Kommunenummer 4203, gårdsnummer 307, bruksnummer 113, ideell andel 1/1
Kommunenummer 4203, gårdsnummer 307, bruksnummer 169, ideell andel 1/1
Innhold
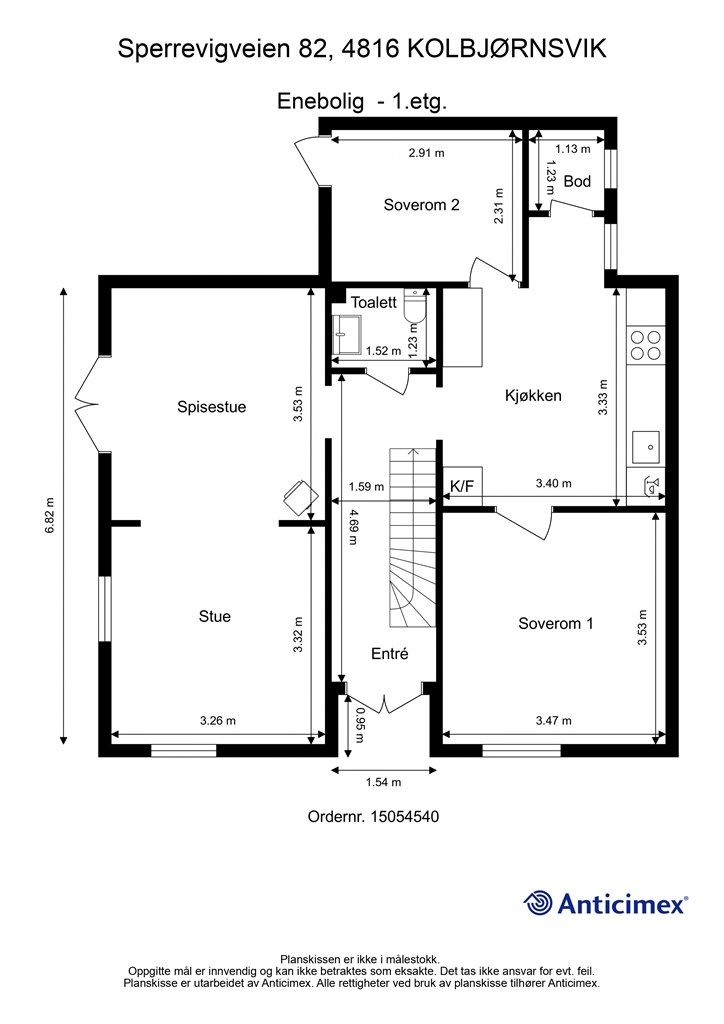
Totalt bruksareal: 140 kvm
Totalt primærrom: 117 kvm
Primærrom:
Enebolig:
1. etasje 117 kvm: Primærrom gjelder for hele boligen.
BRA-i:
Enebolig:
Kjeller: 18 kvm: Råkjeller og to boder.
1. etasje 70 kvm: Entré, stue/spisestue, toalettrom, kjøkken, to soverom og bod.
2. etasje 49 kvm: Stue, to soverom og bad/vaskerom.
BRA-e:
Redskapsbod:
1. etasje 3 kvm: Bod.
Åpent areal:
1. etasje 38 kvm: Terrasse på bakkeplan.
2. etasje 36 kvm: Terrasse på to nivåer til.
Vedlagte plantegninger er ikke målbare. De oppgitte arealer er hentet fra rapport datert 01.11.2024 utført av Anticimex v/Halvard Grina. Arealene er beregnet og rom er definert etter dagens faktiske bruk, uavhengig av hva som er godkjent av bygningsmyndighetene.
Byggemåte
Selger har fått utarbeidet en tilstandsrapport, dvs. en teknisk gjennomgang av boligen hvor eventuelle avvik, risiko for kjøper og prisoverslag for hva som bør gjøres av oppgradering, er skissert. Se særskilt TGIU (tilstandsgrad ikke undersøkt), samt TG2 og TG3 som viser hva som er avvik fra boligens normale slitasje, alder og type, eller som bør/må utbedres. Rapporten og selgers egenerklæring er en del av salgsoppgaven og må leses nøye før bud inngis. Kjøper overtar ansvaret for de opplysninger som fremkommer av salgsdokumentasjonen, og kan ikke gjøre gjeldende som mangel noe som burde vært kjent eller som ikke kan anses å ha betydning for avtalen.
Bygningen er iht. tilstandsrapporten oppført i tre. Les forøvrig mer om byggemåte og den tekniske tilstanden i rapporten.
Følgende punkter har fått tilstandsgrad 3:
Krypekjeller - Tiltak må iverksettes: Se utfyllende informasjon om dette på s. 12. Sjablongmessig prisanslag kr. 50.000-100.000,-. I forbindelse med denne tilstandsrapporten har selger innhentet tilbud på utbedring. Totalpris for krypgrunnsavfukter er kr. 75.038,-.
Skjevhetsmåling - Det er merkbare skjevheter i boligen. Se s. 14. Sjablongmessig prisanslag kr. 0-10-000,-.
Følgende punkter har fått tilstandsgrad 2:
Bad/vaskerom 2. etasje: Ventilasjon (for lite), drenering fra innebygget sisterne er ikke registrert, overflater vegger og gulv (risiko, fuger), alder på tettesjikt og fallforhold er mindre enn anbefalt. Se mer på s. 9.
Kjøkken: Det er registrert korrosjon e.l. i nedre del av vannrør, jevnlig ettersyn anbefales, automatisk vannstopper bør etableres, se s. 10.
Toalettrom: Manglende ventilasjon, vannrør (korrosjon) og drenering fra innebygget sisterne er ikke registrert. Automatisk vannstopper bør etableres.
Øvrige rom: For lite ventilert generelt, det er stedvis registrert spor etter treskadeinsekter på gulv. Enkelte steder er det registrert forhøyde fuktverdier.
Rom under terreng: Kjelleren bærer preg av fuktproblematikk, det er registrert spor etter treskadeinsekter på vegger og himling/etasjeskille og registrert forhøyet fuktverdier, årsak er nevnt som svakheter ved drenering og/eller fuktoppsug fra grunnen. Se s. 11.
Loft: Ventilasjon er ikke tilfredsstillende. Utettheter på dampsperre ved sikringsskap soverom 1, tiltak bør påregnes. Takkonstruksjonen er lukket og det er ikke kjent hvordan oppbyggingen er utført. TG2 er satt for å belyse risiko, se mer info på s. 13.
Innvendige trapper: Rekkverk på en side og åpninger i rekkverk/spiler og i trappen er på mer enn anbefalt.
Tekniske anlegg, vvs: Varmtvannbereder står på rom uten sluk. Enkelte vannrør er vurdert til å ha en alder som tilsier at anbefalt brukstid er passert. Det er registrert åpning i avløpsrør for avrenning fra avfukter i kjeller som resulterer i lukt/fuktighet. Avløpsrør bør tettes. Ikke alt er kontrollert, se s. 4.
Radon: Det er ikke målt etter radon, det må gjennomføres radonmåling for å ev. få tilstandsgrad 1.
Elektrisk anlegg: Takstmann setter TG2 på dette grunnet eldre dokumentasjon, det anbefales generelt en utvidet kontroll på bakgrunn av dette og at takstmann ikke innehar nødvendig elektrofaglig bakgrunn.
Yttervegger/konstruksjon: Observasjon på råteskader på ytterkledning kan ha skade i bakenforliggende konstruksjon, ytterligere undersøkelser anbefales. Kledningen er malingsslitt og det er ingen luftespalte bak trekledning. Det kan ikke verifiseres om det er benyttet musesikring bak kledning av nyere dato, svertesopp er stedvis registrert og vegger av lettklinkerblokker på tilbygg kan ikke ses å være pusset utvendig. Se utfyllende info på s. 16 i rapporten.
Vinduer: Ett par vinduer av eldre dato som har behov for oppgraderinger/overflatebehandling. Innsettingsdetaljer på vinduer i vegger av lettklinkerblokker har uheldige løsninger, fare for fukt, tiltak bør påregnes.
Ytterdører: Av eldre dato og behov for oppgraderinger/overflatebehandling. Se mer info på s. 16.
Yttertak: Tekking, ødelagte takstein bør skiftes og mose bør fjernes. Taket er en lukket konstruksjon fra innsiden, det kan ikke verifiseres om det er etablert tilstrekkelig med ventilering av takkonstruksjonen. Taket er inspisert fra bakkeplan, TG2 settes for å belyse risiko. Snøfangerutstyr ikke etablert, tiltak anbefales. Gesims har ikke fått verifisert nok lufting i/ved gesims. Dekkbord på vindskier bærer preg av slitasje og bør skiftes, ev. erstattes med vindskiebeslag.
Terrasser: Terrasse på øverste plan bærer preg av høy slitasjegrad og det er ikke etablert rekkverk. Oppgradering av dette bør påregnes.
Utvendige trapper: Trappen er malingsslitt, overflatebehandling anbefales.
Grunnmur: Det er registrert sprekker i sementfuger til grunnmur, skader bør utbedres og jevnlig ettersyn anbefales slik at ytterligere undersøkelser og utbedringstiltak kan iverksettes ved ev. negativ utvikling. Stedvis registrert saltutslag, åpninger kan resultere i inntrengning av gnagere bl.a. Se hele teksten på s. 18.
Drenering: Drenering er av eldre dato og det må ses i sammenheng med fukt i kjelleren som er nevnt i andre punkter. Bør påregnes utbedringer/utskiftninger.
Frittstående bod: Det er registrert en mindre skade på taktekking i nærheten av forkantbord. Utbedring anbefales. Gulvkonstruksjon inkl. vegger/kledning er i kontakt/ligger nært terreng, risikoutsatt med hensyn til fukt, anbefales å holdes under oppsyn.
Annet: Høyder med fjell: Det er flere høyder på tomten, dette anbefales sikret med rekkverk fra trapper og terrasser (sikkerhet).
Selgers egenerklæringsskjema er vedlagt salgsoppgaven, men summeres kort her med svarene selger har avgitt i denne:
4. Oppkobling av vann i forb. med nytt kjøkken november 21. Firma utførte dette.
5. Luftavfukter står på i kjeller året rundt som forebyggende tiltak.
7. Noe skjevheter som følge av gamle originale tregulv.
9. Har hatt et tilfelle av maur, forsvant raskt med bruk av maurpulver.
13. Hisøy elektro: Jobb i forbindelse med nytt kjøkken.
13.1 Foreligger samsvarerklæring: ja.
18. Boligen brukes i dag som hytte, men det planlegges å gjeninnføre boplikt som prøveprosjekt. (fylt ut før boplikten ble aktiv)
Selger har tegnet boligselgerforsikring.
Standard
Boligens standard anses som velholdt basert på byggeår og "nyere" tilbygg. Dette er en enebolig som opprinnelig er fra rundt 1725, men er i nyere tid bygget på. Det standarden er gjennomgående god, men det er behov for utbedringer av krypekjeller. Tilbud på krypgrunnsavfukter kan mottas av megler ved henvendelse. Tilbud er gitt av Anticimex etter befaring.
Det er satt inn helt nytt og tilpasset kjøkken til huset fra Ikea med nye hvitevarer. Ny varmpeumpe satt inn i desember 2022. Selger har opparbeidet uteområdet med nytt gjerde/trapp ved uteplassen. Det er malt innvendig i flere rom og mye mer.
Løsøre og tilbehør
Hvitevarer som inkluderes i handelen er følgende: Komfyr, oppvaskmaskin og kjøleskap.
Vi viser til liste fra Norges Eiendomsmeglerforbund som gjelder fra 01.01.2020 angående løsøre og tilbehør.
Oppvarming
Oppvarming: Elektrisk og vedfyring. Varmepumpe og vedovn i stue 1. etasje.
Det er varmekabler i gang, bad 2. etg og på toalettrom i 1. etasje.
Ferdigattest/brukstillatelse
Eiendommen har vært brukt til boligformål antatt siden sin opprinnelse.
Kommunen opplyser at det ikke var krav til ferdigattest eller midlertidig brukstillatelse på den tiden eiendommen ble oppført.
Ut fra informasjon fra kommunen har vi mottatt følgende dokumenter:
Tegning datert 02.04.1986 merket "før utbedring".
Tegning datert 12.11.2003/2004 vedr. tilbygg. Tegningen er vedlagt salgsoppgaven.
Matrikkelrapport som viser til en boenhet i boligen slik det er i dag. Tilbygg er registrert i denne, med "tatt i bruk" i 2012. Det foreligger ikke ferdigattest på dette.
Basert på innsendt tegning om boligens planløsning så ser rommene ut til å være ok slik inndelingen/bruken er i dag. Ut i fra tilbyggstegning datert 04.09.2004 mottatt fra kommunen så vises det til udefinert rom kalt tilbygg på det nyere soverommet ved kjøkken. Utover det rommet ser resterende løsninger innvendig ut til å stemme med dagens løsning. Vi har lagt ved byggetegning i salgsoppgaven for ordens skyld slik at interessenter kan gjøre seg kjent med dette.
Det gjøres oppmerksom på at det ikke lenger utstedes ferdigattest på tiltak det er søkt om før 1998 jf. plan- og bygningsloven § 21-10. Kommunen vil ikke kreve ferdigattest for disse tiltakene og vil avvise eventuelle søknader. Bestemmelsen innebærer ikke at tiltak med manglende søknad blir lovlige, men at man ikke trenger å avslutte gamle byggesaker. Normalt sett kreves ferdigattest for alle søknadspliktige tiltak som gjøres etter plan- og bygningsloven.
Kjøper overtar eiendommen slik den framstår på visning.
Tinglyste heftelser og rettigheter
På eiendommen er det tinglyst følgende heftelser og rettigheter som følger eiendommens matrikkel ved overskjøting til ny hjemmelshaver:
4203/307/113: Ingen.
4203/307/169: Ingen.
Eventuell adgang til utleie
Eiendommen har ikke separat utleieenhet. Det vil normalt være anledning til utleie av hele eiendommen eller enkeltrom, såfremt utleiearealet er bygningsmessig godkjent for varig opphold og har forsvarlige radonnivåer.
Diverse
Det er nedgravde søppelsystem i Kolbjørnsvik langs Sperrevigveien.
Selger har leid ut hele eiendommen i Arendalsuka og fått inn ca. 50.000,- for utleie den uka.
Båtplassen selger leier i dag kan overføres til kjøper. Selger har betalt for denne ut sesongen. Det betales kr. 4.900,- for hele 2024 sesongen. Båtplassen befinner seg på Gimle brygge.
______________________________________________________________________________________________________________________________________________________________________________________
Krogsveen:
Vi er opptatt av verdiskapning, og har knyttet til oss samarbeidspartnere som skal sikre våre kunder de beste produkter og tjenester;
• Gjensidige leverer boligselgerforsikring og tilbyr bygningsforsikring
• Boligkjøperforsikring leveres av Hiscox og med Sedgwick som skadebehandler, og er formidlet gjennom Gjensidige.
• BN bank tilbyr finansieringsløsninger
• Vår avdeling Krogsveen Pluss tilbyr flyttetjenester som utvask, visningsvask, lager, tømming og transport av flyttelass, i tillegg til å formidle kontakt med Flip for overflateoppussing.
• I forbindelse med overtagelse av eiendommen tilbyr Overo avtale om strøm, alarm og bredbånd.
• Krogsveen er, sammen med øvrige bransjeaktører, medeier i den digitale annonseringsplattformen Hjem.
Energimerking
Megler har fylt ut en forenklet energiattest. Det tas forbehold om feil i denne.
Beliggenhet og tomteforhold
Beliggenhet og tomteforhold
Beliggenhet
Sperrevigveien er en koselig vei som går gjennom Kolbjørnsvik på Hisøya i Arendal. Her har man koselige, hvite, gule og røde, eldre trehus på rad og rekke med tilhørende skjønne hager. Det tar knappe ti minutter til Arendal sentrum i bil. Området byr på populære turveier gjennom ren Sørlandsidyll og i skogen. Det er gangavstand til rutebåten i Kolbjørnsvik som tar deg trygt over fjorden og inn til sentrum. Rutebåten går hyppig gjennom hele dagen, samt også lørdager/natt til søndag for en fin tur hjem fra byen hvis man har tatt seg et glass eller to.
Boligen er fra rundt 1725, men den kan absolutt være eldre enn dette uten at vi har eksakt byggeår registrert. Arendal fikk sin bystatus i 1723 og da ble Kolbjørnsvik et senter for sorenskriverembetet. Det var både handelsaktivitet, sjøfart og stor aktivitet i området gjennom de neste årene. Dette er hentet fra nett (arendal300.no). Det er fantastiske badeplasser rett ved som kan nås til fots i morgenkåpa (Geideholmen), alternativt er det kort vei til både Stølsvika, Havsøysund, EB stranda og mange vakre steder man kan nå en kjapp tur unna. Her er flotte turveier opp i heiene og mange flotte steder å oppdage.
Selger leier i dag en båtplass ved brygga på Geideholmen til ca. 4.000,- pr år. Det kan undersøkes nærmere om denne kan overtas av nye eiere etter ønske.
Adkomst
Se kart eller kontakt megler for veibeskrivelse.
Beskrivelse av tomt
Eiendommens tomt består av to parseller. Totalt areal er 289,4 kvm. Gårdsnummer 307 for begge og bruksnummer 113 og bruksnummer 169 medfølger handelen. Eiendomsgrenser oppgitt i kommunens grunnkart er merket som usikker.
Parkering
Det medfølger ingen parkeringsplass. Det er flere muligheter for parkering i området, blant annet gateparkering mv. Der bilveien stopper rett nedenfor eiendommen er det kun snuplass, den kan man benytte til avlemping av diverse matvarer mv, og deretter kjøre bilen til parkeringsplass i nærområdet.
Vei, vann og avløp
Eiendommen har adkomst via kommunal vei.
Eiendommen er tilknyttet kommunalt ledningsnett via private stikkledninger. Eier er selv ansvarlig for private stikkledninger til boligen.
Regulerings-og arealplaner
Eiendommen er regulert til frittliggende boligbebyggelse/hensynssone i henhold til reguleringsplan. Hensynssone gjelder bevaring av området.
"Planbestemmelser for Guldsmedenga - Kolbjørnsvik - Gimle". Det er begrensninger i denne i forbindelse med utvidelse av eiendommen mv.
Utsnitt av plan med tilhørende bestemmelser kan fås ved henvendelse til megler.
Eiendommen er SEFRAK-registrert. Dette kan medføre at større endringer av bygningen må godkjennes av kommunen eller fylket før igangsetting. Eiendommen er ikke opplyst fredet. Kontakt megler for mer informasjon.
Økonomi
Økonomi
Kommunale utgifter
I årlige kommunale avgifter inngår følgende:
Renovasjon kr 4.589,-
Vann, avløp, feie og tilsynsgebyr kr. 8.184,-.
Eiendomsskatt kr. 6.424,-.
Totalt i året inkl. eiendomsskatt kr. 19.197,-. Forbruk vann/avløp vil kunne variere.
Det er installert vannmåler på eiendommen.
I tillegg til dette må følgende påregnes:
Husforsikring - Selger betaler i dag kr. 8.400,- til If for husforsikring.
Strøm - Selger opplyser om et årlig strømforbruk på ca. 9.300 kWh/kr. 11.300,- i 2023 til strøm.
Boligen er tilknyttet Verisure alarmselskap som koster kr 4.200,- pr. år. Alarmutstyr er eid av alarmselskapet, ny eier kan da enten overta abonnement etter avtale med Verisure. Det understrekes at kjøper må slippe inn alarmselskapet ila. sin eiertid dersom de ikke ønsker å overta dette, slik at utstyret fjernes, dersom alarmselskapet velger å hente dette.
TV/internett: Boligen er tilknyttet fiber fra Telenor, men selger har pt. ikke et aktivt abonnement.
Utgiftene er basert på nåværende eiers forbruk og avtaler.
Formuesverdi
Formuesverdi for 2022 var kr 662.360,- ifølge skatteetaten. Beløpet forutsetter at eier bor fast i boligen (primærbolig).
Ved eventuell øvrig bruk av eiendommen (f.eks. fritidsbolig, pendlerbolig, utleieobjekt) var formuesverdien for 2022 kr 2.516.969,-.
Formuesverdien justeres normalt årlig. Se skatteetaten.no for mer informasjon om fastsettelse av formuesverdien.
Eiendomsskatt
Det er eiendomsskatt i Arendal kommune.
Omkostninger
3 750 000,00 Prisantydning
Omkostninger
93 750,00 Dokumentavgift til staten (2,5% av kjøpesum)
19 900,00 Gjensidige Boligkjøperpakke (valgfri)
545,00 Tinglysing panterettsdokument
545,00 Tinglysing skjøte
--------------------------------------------------------
114 740,00 Omkostninger totalt
--------------------------------------------------------
3 864 740,00 Totalpris inkl. omkostninger
--------------------------------------------------------
Totalpris inkl. omkostninger forutsetter kjøp til prisantydning.
Det tas forbehold om endringer i avgifter og gebyrer.
Betalingsbetingelser
Kjøpesum inkludert omkostninger, samt pantedokument tilknyttet eventuelt lån, skal være disponibelt hos megler 2 virkedager før overtagelsen.
Annen viktig informasjon
Annen viktig informasjon
Eier
Lisa Sandberg Iversen og Ivar Verdich Boland
Konsesjon
Eiendommen er ikke konsesjonspliktig, men det er boplikt i Kolbjørnsvik i Arendal kommune. For at eiendommen skal kunne overskjøtes må kjøper derfor signere på egenerklæring om konsesjonsfrihet.
Boplikten oppfylles ved at noen har folkeregistrert adresse på eiendommen, man kan bo der selv, eller leie ut.
Overtakelse
Etter nærmere avtale.
Boligselgerforsikring
Selger har i forbindelse med salget tegnet boligselgerforsikring hos Anticimex. Vedlagt salgsoppgaven følger selgers egenerklæringsskjema og tilstandsrapport. Interessenter må sette seg inn i dokumentene før bud inngis.
Boligselgerforsikringen dekker selgers ansvar etter avhendingsloven. Dersom kjøper oppdager forhold ved eiendommen som man mener utgjør en mangel ved eiendommen, vil Claims Handling AS behandle reklamasjonen på vegne av selger. Forsikringsvilkår kan fås ved henvendelse til megler.
Boligkjøperforsikring
Innen kontraktsmøtet må kjøper ta stilling til om det ønskes å bestille Boligkjøperpakken gjennom Gjensidige. I denne gunstige pakken er boligen ferdig forsikret og inkluderer rettshjelpsforsikring, også kalt Boligkjøperforsikring. Rettshjelpsforsikring gir trygghet og tilgang på profesjonell juridisk hjelp dersom det oppdages uventede feil eller mangler det første året etter overtagelse. Forsikringsselskapet behandler i så fall ethvert mangelskrav kjøper måtte ha overfor selger.
Boligkjøperpakken inkluderer bygningsforsikring for hus og hytte, innboforsikring, flytteforsikring og dobbel rentedekning - i situasjoner hvor kjøper ikke får solgt nåværende primærbolig.
Kjøper mottar ingen særskilt faktura for Boligkjøperpakken da kostnaden det første året legges til kjøpesummen for boligen. Det gjøres oppmerksom på Krogsveen mottar et honorar for denne formidlingen.
Produktark for Boligkjøperpakken ligger vedlagt i salgsoppgaven.
Dersom ikke boligkjøperpakke ønskes kan kun rettshjelpsforsikring, også kalt boligkjøperforsikring, tegnes særskilt via megler. Rettshjelpsforsikringen varer i 5 år fra overtagelse og leveres gjennom Gjensidige. Ta kontakt med megler for ytterligere informasjon.
Selskap og privatpersoner som driver med kjøp/salg/utvikling som ledd i egen næringsvirksomhet kan ikke tegne boligkjøperpakke eller rettshjelpsforsikring.
Budgivning
Forbrukerinformasjon om budgivning er vedlagt denne salgsoppgaven og er også på vår hjemmeside Krogsveen.no. Alle bud og budforhøyelser må inngis skriftlig. I tillegg må legitimasjon være fremlagt sammen med signatur fra budgiver.
Vi oppfordrer til å gi bud elektronisk via GI BUD-knappen på eiendommens hjemmeside på Krogsveen.no. Da vil samtlige vilkår bli oppfylt.
Eventuelle forhøyelser eller endringer av budet kan bekreftes pr SMS eller på e-post. Vi oppfordrer alltid til å kontakte megler pr. telefon i tillegg da forsinkelser i SMS og e-post kan forekomme.
For at budene skal kunne bli behandlet og videreformidlet skriftlig til alle involverte parter, må alle bud ha en tilstrekkelig lang akseptfrist, jf. eiendomsmeglingsforskriften § 6-3.
Selger må også skriftlig akseptere budet før aksept kan formidles til budgiver. Akseptfrist bør derfor være på minimum 30 minutter, og budforhøyelser må derfor skje i god tid før fristens utløp.
Bud i forbrukerforhold kan uansett ikke settes med kortere frist enn kl. 12.00 første virkedag etter siste annonserte visning. I tillegg kan ikke budet ha forbehold om at det skal holdes hemmelig ovenfor øvrige interessenter. Megler har iht lov om eiendomsmegling ikke anledning til å videreformidle disse budene, og de vil dermed heller ikke bli journalført.
Etter at eiendommen er solgt vil kjøper og selger få tilsendt budjournal. Øvrige budgivere kan få utlevert kopi av budjournalen i anonymisert form.
Hvitvaskingsreglene
I henhold til lov om hvitvasking og terrorfinansiering har megler plikt til å gjennomføre kontrolltiltak overfor kunder, herunder fullmektiger. Dette innebærer bl.a. å bekrefte kunders og reelle rettighetshaveres identitet på bakgrunn av fremvist gyldig legitimasjon eller på annen godkjent måte, samt å innhente opplysninger om kundeforholdets formål og tilsiktede art.
Dersom slike kundetiltak ikke kan gjennomføres, kan megler ikke etablere kundeforholdet eller utføre transaksjonen.
Hvis kjøper ikke bidrar til gjennomføring av kundekontrollen og dette fører til at transaksjonen blir forsinket eller ikke kan gjennomføres, vil dette ansees som mislighold av avtalen og gi selger rettigheter etter avhendingslova kapittel 5. I tilfeller der selger ikke bidrar til gjennomføring av løpende kundekontroll underveis i oppdraget, er det selger som misligholder sine forpliktelser etter avtalen og gi kjøper rettigheter etter avhendingslovens kapittel 4. Partene er selv ansvarlige for eventuelle kostnader og ansvar dette kan medføre. Eiendomsmegleren eller eiendomsmeglingsforetaket kan ikke holdes ansvarlig for de konsekvenser dette vil kunne få for partene eller andre som har interesser i eiendomshandelen.
Kjøper oppfordres til å innbetale kjøpesummen som ikke kommer fra låneinstitusjon i én samlet innbetaling fra egen konto i norsk bank. Megler har plikt til å melde fra til Økokrim om eiendomshandler som fremstår som mistenkelige. Melding sendes Økokrim uten at partene varsles.
Personopplysningsloven
I henhold til personopplysningsloven gjør vi oppmerksom på at interessenter kan bli registrert for videre oppfølging.
Lovanvendelse
Generelle bestemmelser
Salgsoppgaven er basert på de opplysningene selger har gitt til megler, den bygningssakyndiges tilstandsrapport, samt opplysninger innhentet fra kommunen, Kartverket og andre tilgjengelige kilder. Det er viktig at kjøper setter seg grundig inn i alle salgsdokumentene, herunder salgsoppgave, tilstandsrapport og selgers egenerklæring. Kjøper anses kjent med forhold som er tydelig beskrevet i salgsdokumentene, og slike forhold kan ikke påberopes som mangler. Dette gjelder uavhengig av om kjøper har lest dokumentene. Alle interessenter oppfordres til å undersøke eiendommen nøye, gjerne sammen med fagkyndig før bud inngis. Kjøper som velger å kjøpe usett kan ikke gjøre gjeldende som mangel noe han burde blitt kjent med ved undersøkelsen.
Dersom det er behov for avklaringer, anbefaler vi at interessenter rådfører seg med eiendomsmegler eller egne rådgivere før det legges inn bud.
En bolig som har blitt brukt i en viss tid, har vanligvis blitt utsatt for slitasje og skader kan ha oppstått. Slik bruksslitasje må kjøper regne med, og det kan avdekkes enkelte forhold etter overtakelse som nødvendiggjør utbedringer. Normal slitasje og skader som nødvendiggjør utbedring, er innenfor hva kjøper må forvente og vil ikke utgjøre en mangel.
Kjøper og selgers rettigheter og plikter reguleres av avtalen mellom partene, samt informasjonen som har vært tilgjengelig for kjøperen i forbindelse med handelen. Avtalen utfylles av avhendingsloven, og det gjelder ulike avtalevilkår avhengig av om kjøper er forbrukerkjøper eller ikke. Dette er nærmere beskrevet nedenfor.
På grunn av ulike avtalevilkår kan selger vurdere bud fra en som ikke er forbruker, ulikt fra en forbrukers bud. Dersom kjøper ikke er forbruker, er selger sitt mulige mangelsansvar begrenset fordi eiendommen selges "som den er". Selger kan ikke ta «som den er»- forbehold overfor en forbrukerkjøper. Selv et lavere bud fra en som ikke er forbruker kan foretrekkes fordi begrensningen i mulig mangelsansvar kan ha egenverdi for selger. Selger står fritt til å forkaste eller akseptere ethvert bud, og er for eksempel ikke forpliktet til å akseptere høyeste bud.
Budgiver skal i budskjema avgi egenerklæring om budgiver er forbruker eller næringsdrivende/ person som hovedsakelig handler som ledd i næringsvirksomhet. Budgivere får informasjon dersom andre bud er inngitt av en som ikke er forbruker.
Forbrukerkjøp - definisjon
Med forbrukerkjøp menes kjøp av eiendom når kjøperen er en fysisk person som ikke hovedsakelig handler som ledd i næringsvirksomhet.
Forbruker – avtalevilkår
Eiendommen har en mangel dersom den ikke er i samsvar med kravene som følger av avtalen, eller det foreligger brudd på bestemmelsene i avhendingsloven §§ 3-2 til 3-8. Hvis eiendommen ikke er i samsvar med det kjøperen må kunne forvente ut ifra alder, type og synlig tilstand, kan det være grunnlag for mangelskrav. Det samme gjelder hvis det er holdt tilbake eller gitt uriktige opplysninger om eiendommen. Dette gjelder likevel bare dersom man kan gå ut ifra at det virket inn på avtalen at opplysningen ikke ble gitt eller at mangelskravet ikke blir rettet i tide på en tydelig måte.
Boligen kan ha en mangel etter avhendingsloven § 3-3 andre ledd, dersom det er avvik mellom opplyst og faktisk innvendig areal, forutsatt at avviket er på 2% eller mer og minimum 1 kvm.
Ved beregning av et eventuelt prisavslag eller erstatning må kjøper selv dekke tap/kostnader opptil et beløp på kr 10 000 (egenandel).
Ikke-forbruker (næringsdrivende) – definisjon
Hvis kjøper er en juridisk person, eller en fysisk person som hovedsakelig handler som ledd i næringsvirksomhet, vil kjøpet ikke anses som et forbrukerkjøp.
Ikke-forbruker – avtalevilkår
Eiendommen har en mangel dersom den ikke er i samsvar med kravene som følger av avtalen.
Eiendommen selges «som den er», og selgers ansvar utover det konkret avtalte er da begrenset etter avhendingsloven § 3-9, første ledd andre setning.
Avhendingsloven § 3-3 andre ledd fravikes, og hvorvidt boligens arealsvikt utgjør en mangel vurderes etter avhendingsloven § 3-8.
Informasjon om kjøpers undersøkelsesplikt, herunder oppfordringen om å undersøke eiendommen nøye, gjelder også for kjøpere som ikke anses som forbrukere.
Det forutsettes at hjemmel overføres til kjøper. Hvis kjøper ikke ønsker hjemmelsoverføring av eiendommen, må det tas forbehold om dette i budet.
Rett til fritt å velge megler
Valg av eiendomsmeglingsforetak skal være frivillig. Eiendomsmeglingsforetak kan ikke inngå oppdrag om eiendomsmegling dersom inngåelsen av oppdraget er satt som vilkår i avtale om annet enn eiendomsmegling, f.eks. tilbud om lån eller andre banktjenester, jf. Lov om eiendomsmegling § 6-3 (3)
Meglers vederlag
Meglers vederlag betales av selger og er avtalt til:
Vederlag: 1,13% av salgssummen inkl. eventuell fellesgjeld.
Tilrettelegging fra kr 7.900,-
Oppgjør: kr 7.500,-
Markedspakke: kr 23.750,-
Visninger: kr 500,- pr. visning
Oppslag eiendomsregister: kr 2.900,-
Megler har i tillegg krav på dekning av utlegg. Kr. 8.950,- (meglerpakke, sikring og foto inkl. drone).
Opplysninger om oppdraget
Oppdragsnummer 47-0051/24
Eiendomsmegler Krogsveen AS, avd. Arendal
Kystveien 14, 4841, ARENDAL
950 007 613
Oppdragets KR-kode KR47.2451
Dato
Sist oppdatert: 20. mars 2026 kl. 17:05
Dokumenter
Dokumenter
PDF – 229 KB
PDF – 176 KB
PDF – 404 KB
PDF – 937 KB
PDF – 959 KB
PDF – 312 KB
PDF – 29 KB
PDF – 127 KB
PDF – 392 KB
Område
Legg til steder som er viktige for deg
Visning
For å delta på visning, ber vi om at du melder deg på. Da sikrer vi at du får nødvendig informasjon og at det er satt av tilstrekkelig med tid. Kontakt megler dersom annet tidspunkt ønskes. Husk å lese salgsoppgaven før visningen, så du stiller forberedt. NB. Visning utgår dersom det ikke er noen påmeldte.
Ønsker du kun å bli holdt orientert, kan du fra eiendommens hjemmeside få varsel om solgtpris, eller kontakte megler.
Lurer du på noe?
Unngå doble boligrenter
Vi tilbyr gunstig forsikring.
Vurderer du utleie?
Få et tilbud fra Utleie KrogsveenHva koster lånet?
Sjekk estimert lånekostnadVil du varsles om lignende boliger?
Ved å lagre ditt boligsøk hos oss får du beskjed når vi har en bolig som ligner denne, før den legges ut på markedet!

