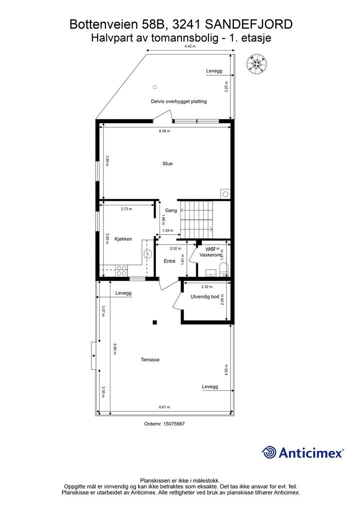
Bottenveien 58B
3 350 000 kr
94 m²
3 soverom
Solgt

NYHET!
Halvpart av tomannsbolig med landlig utsikt! 3 soverom - 2 solrike uteplasser - sentral beliggenhet - parkering
Prisantydning
3 350 000 krOmkostninger
104 740 krTotalpris
3 454 740 kr
Pris
Bruksareal
99 m²BRA-I (internt bruksareal)
94 m²BRA-E (eksternt bruksareal)
5 m²TBA (terrasse-balkongareal)
58 m²
Areal
Etasje
2Byggeår
2001Soverom
3 soveromBad
1 badTomteareal
2 853 m² (festet)Type
Halvpart vertikaldelt boligEierform
EietFasiliteter
Balkong/TerrasseEnergimerke
Rød D
Nøkkelinfo
Unngå doble boligrenter
Vi tilbyr gunstig forsikring.
Vurderer du utleie?
Få et tilbud fra Utleie KrogsveenHva koster lånet?
Sjekk estimert lånekostnadBeskrivelse
Kort om eiendommen
Velkommen til Bottenveien 58B!
Boligen er praktisk innredet med 3 soverom, flislagt bad, stue med adkomst til uteområde mot vest, gjestetoalett i 1.etg og separat kjøkken.
På kjøkkenet er det rikelig med skap og benkeplass, og i stuen er det flere soner med gode møbleringsmuligheter og plass til et stort spisebord inn mot kjøkkenet slik at familie og venner kan samles til hyggelige stunder. Fra stuen er det også direkte utgang til terrasse der solen kan nytes utover ettermiddag/kveld. Det er også en stor og koselig uteplass på fremsiden av boligen mot øst med plass til flere sittegrupper i en lun omgivelse, en perfekt plass for å nyte morgenkaffen i sola og nyte den landlige utsikten!
Velkommen til visning!
Område
Legg til steder som er viktige for deg
På flyttefot? Tenk kjøp og salg samtidig.
Få din egen rådgiver gjennom hele kjøps- og salgsprosessen. Det starter med en verdivurdering.
Unngå doble boligrenter
Vi tilbyr gunstig forsikring.
Vurderer du utleie?
Få et tilbud fra Utleie KrogsveenHva koster lånet?
Sjekk estimert lånekostnadVil du varsles om lignende boliger?
Ved å lagre ditt boligsøk hos oss får du beskjed når vi har en bolig som ligner denne, før den legges ut på markedet!

