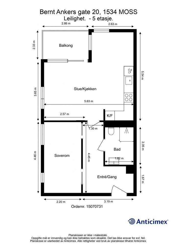
Bernt Ankers gate 20
4 350 000 kr
52 m²
1 soverom
Solgt

MOSS / VERKET BRYGGE II
Helt ny, solrik og delikat 2-roms hjørneleilighet med 7 kvm sydvendt balkong og sjøutsikt! Høyt og fritt i 5.etg m/heis.
Prisantydning
4 350 000 krOmkostninger
119 790 krTotalpris
4 469 790 kr
Pris
Bruksareal
57 m²BRA-I (internt bruksareal)
52 m²BRA-E (eksternt bruksareal)
5 m²TBA (terrasse-balkongareal)
7 m²
Areal
Etasje
5Byggeår
2025Soverom
1 soveromBad
1 badType
EierleilighetEierform
EierseksjonFasiliteter
Heis og Balkong/TerrasseFellesutgifter
3 177 krEnergimerke
Grønn B
Nøkkelinfo
Unngå doble boligrenter
Vi tilbyr gunstig forsikring.
Vurderer du utleie?
Få et tilbud fra Utleie KrogsveenHva koster lånet?
Sjekk estimert lånekostnadBeskrivelse
Kort om eiendommen
Velkommen til Bernt Ankers gate 20!
En meget lys og nyoppført 2-roms hjørneleilighet fra 2025! Leiligheten ligger nydelig til ved sjøkanten på Verket Brygge som er et idyllisk og attraktivt område i Moss med kort vei til sentrum. Leiligheten har en arealeffektiv planløsning og utgang fra stue til en solrik, sydvendt balkong på 7 kvm som du garantert vil sette pris på i hverdagen! Høydepunkter:
Kort om eiendommen:
- Vannbåren gulvvarme og balansert ventilasjon
- Kun TG1 - flytt rett inn!
- Innbydende fellesarealer
- Høyt og fritt i 5.etg med lite innsyn og heisadkomst
- Solrik, sydvendt balkong på 7 kvm
- Restauranter, båthavn, strand og brygge i nærheten
- Kjellerbod på 5 kvm
- Gunstig for utleie
- Lekker en-stavs parkett
- Solskjerming ved kjøkken og soverom
Denne bør oppleves!
Område
Legg til steder som er viktige for deg
På flyttefot? Tenk kjøp og salg samtidig.
Få din egen rådgiver gjennom hele kjøps- og salgsprosessen. Det starter med en verdivurdering.
Unngå doble boligrenter
Vi tilbyr gunstig forsikring.
Vurderer du utleie?
Få et tilbud fra Utleie KrogsveenHva koster lånet?
Sjekk estimert lånekostnadVil du varsles om lignende boliger?
Ved å lagre ditt boligsøk hos oss får du beskjed når vi har en bolig som ligner denne, før den legges ut på markedet!

