Trallegangen 99
4 920 000 kr
112 m²
3 soverom
Komplett salgsoppgave

Bjørkåsen
Innflytningsklar familiebolig m/ garasje - 3 sov, 2 bad og 2 stuer!
Prisantydning
4 920 000 krOmkostninger
134 040 krTotalpris
5 054 040 kr
Pris
Bruksareal
141 m²BRA-I (internt bruksareal)
112 m²BRA-E (eksternt bruksareal)
29 m²TBA (terrasse-balkongareal)
64 m²
Areal
Etasje
2Byggeår
2021Soverom
3 soveromBad
2 badType
RekkehusEierform
EierseksjonFasiliteter
Garasje/P-plass og Balkong/TerrasseFellesutgifter
1 487 krEnergimerke
Oransje B
Nøkkelinfo
Unngå doble boligrenter
Vi tilbyr gunstig forsikring.
Vurderer du utleie?
Få et tilbud fra Utleie KrogsveenHva koster lånet?
Sjekk estimert lånekostnadBeskrivelse
Kort om eiendommen
Trallegangen 99 er en moderne og innbydende bolig med integrert garasje og hellelagt uteplass. Boligen har en flott intern beliggenhet på Bjørkåsen i svært barnevennlig boligområde. Eiendommen har et skjermet uteområde opparbeidet med beplantning og uteplasser i to etasjer. Kort vei til skole, barnehage, kollektivtilbud, svømmehall og turmuligheter - perfekt for både friluftsliv og familier!
Høydepunkter:
- Flere uteplasser i hver sin etasje.
- 3 soverom, 2 stuer og 2 bad.
- Høy standard.
- Lagt opp til elbillader.
- Pent opparbeidet uteområde.
- Svært familievennlig med felles lekeplass.
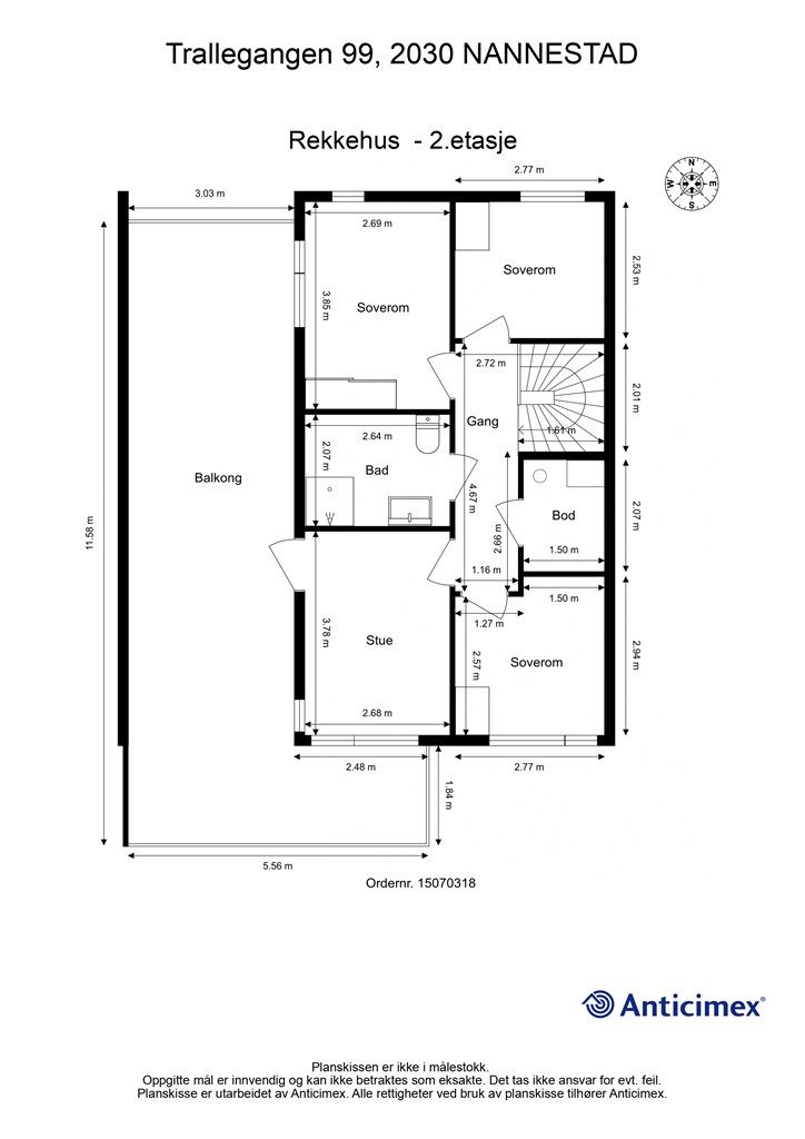
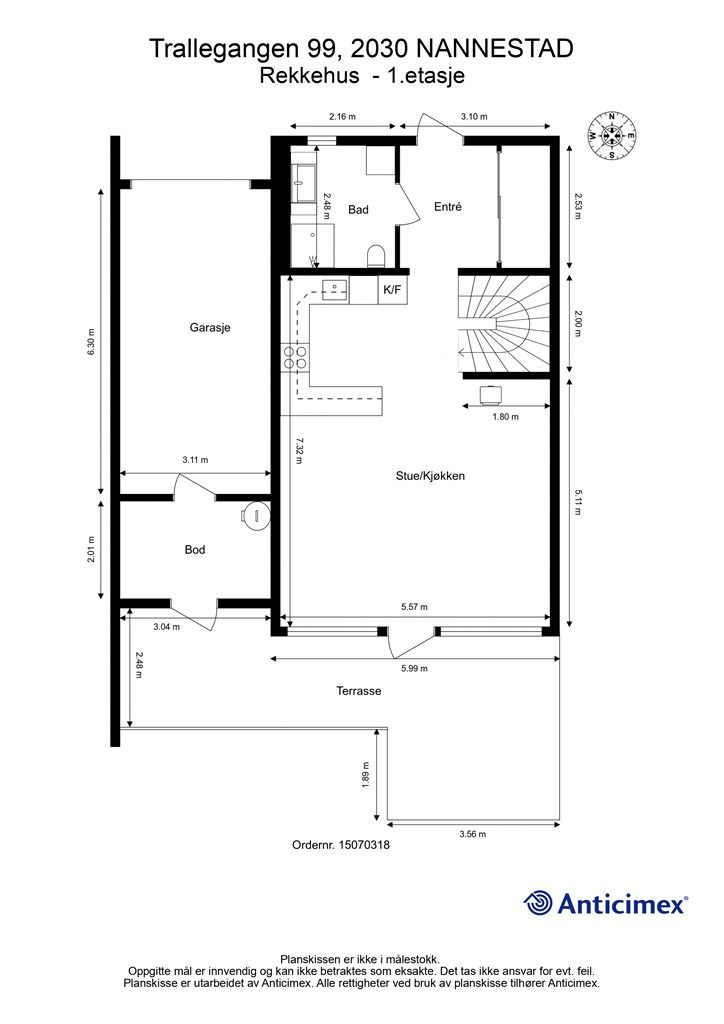
Innhold og byggemåte
Innhold og byggemåte
Eiendommen
Trallegangen 99, 2030 NANNESTAD
Kommunenummer 3238, gårdsnummer 151, bruksnummer 27, seksjonsnummer 9
Innhold
Totalt bruksareal BRA: 141 kvm
BRA-i:
Rekkehus:
1. etasje 56 kvm: Entré, bad, stue og kjøkken.
2. etasje 56 kvm: Gang, 3 soverom, stue, bad og bod.
BRA-e:
Rekkehus:
1. etasje 29 kvm: Tilliggende bod og garasje.
Åpent areal:
Rekkehus:
1. etasje 24 kvm: Terrasser.
2. etasje 40 kvm: Balkong.
Kommentar til areal:
- Balkong i 2.etasje oppmålt til 40 m2 (TBA).
- Terrasse i 1.etasje oppmålt til 24 m2 (TBA).
- Boligen har en tilliggende bod og garasje på 29 m2, yttervegg mellom bolig og garasje/bod er medregnet som (BRA-E).
Vedlagte plantegninger er ikke målbare. De oppgitte arealer er hentet fra rapport med befaringsdato 06.05.2025 utført av Anticimex AS.
Byggemåte
Selger har fått utarbeidet en tilstandsrapport, dvs. en teknisk gjennomgang av boligen hvor eventuelle avvik, risiko for kjøper og prisoverslag for hva som bør gjøres av oppgradering, er skissert. Se særskilt TGIU (tilstandsgrad ikke undersøkt), samt TG2 og TG3 som viser hva som er boligens normale slitasje, alder og type, hva som er avvik fra dette og hva som bør/må utbedres. Rapporten og selgers egenerklæring er en del av salgsoppgaven og må leses nøye før bud inngis. Kjøper overtar ansvaret for de opplysninger som fremkommer av salgsdokumentasjonen, og kan ikke gjøre gjeldende som mangel noe som burde vært kjent eller som ikke kan anses å ha betydning for avtalen.
Bygningen er iht. tilstandsrapporten oppført i tre. Les forøvrig mer om byggemåte og den tekniske tilstanden i rapporten.
Oppsummering av avvik med tilstandsgrad 2 (TG2) og tilstandsgrad 3 (TG3) fra vedlagt tilstandsrapport:
Følgende bygningsdeler har fått TG2 (vesentlig avvik) i tilstandsrapporten:
Øvrige rom:
- Overflater gulv: Det registreres stedvise riper/hakk/merker i gulvets overflatemateriale. Tiltak kan iverksettes ved behov. Det registreres moderate tegn til bomlyd (tegn til hulrom) under enkelte gulvfliser. Eksakt årsak er ikke kjent. Tiltak vurderes ikke til å være nødvendig, men bør holdes under oppsikt.
Følgende bygningsdeler har fått TG3 (store eller alvorlige avvik) i tilstandsrapporten:
Det ble ikke funnet noen punkter med denne tilstandsgraden i rapporten.
Se supplerende tekst i tilstandsrapporten. Kjøper overtar ansvar og risiko for dette.
Selger informerer iht. egenerklæringsskjema:
- Kjenner du til om det har vært utført arbeider på terrasse/garasje/tak/fasade? SVAR: Ja. Et års kontroll: Sparkling og maling. Firmanavn: Bakke.
Moderniseringer og påkostninger
- Solskjerming på flere vinduer.
- Utvidet markterrasse.
- Opparbeidet med heller på fremsiden av boligen, samt beplantning ved markterrasse.
Standard
For den utfyllende tekniske standard for øvrig, henvises det til vedlagte tilstandsrapport.
Løsøre og tilbehør
Viser til liste fra Norges Eiendomsmeglerforbund som gjelder fra 01.01.2020 angående løsøre og tilbehør.
Det er kun de hvitevarer som er listet opp som følger med. Disse hvitevarene følger med: kun integrerte hvitevarer på kjøkkenet, herunder stekeovn, platetopp, oppvaskmaskin og kjøleskap. Persienner på diverse rom følger handelen.
Særskilte møbler kan kjøpes etter nærmere avtale mellom partene.
Følgende løsøre følger ikke handelen:
- Vannslange som er festet på yttervegg.
- Lampe i trappegang.
- Lampe i stue 2. etasje.
- Gardiner som henger i skinne i stue 1. etasje.
Det gjøres oppmerksom på at hvitevarene er kjøpt og brukt, kjøper må forvente slitasje som følger alder og normal bruk.
Oppvarming
Eiendommen oppvarmes av elektrisitet. Følgende rom har varmekabler i gulv: begge bad og inngangsparti.
Dersom beboelsesrom ikke har vegg- eller fastmonterte varmekilder ved visning, følger dette heller ikke med.
Ferdigattest/brukstillatelse
Det foreligger ferdigattest på rekkehus, kjedehus og småhus, datert 13.12.2024. Denne kan fås ved henvendelse til megler.
Eventuell adgang til utleie
Eiendommen har ikke separat utleieenhet. Det vil normalt være anledning til utleie av hele eiendommen eller enkeltrom, såfremt utleiearealet er bygningsmessig godkjent for varig opphold og har forsvarlige radonnivåer.
Diverse
Varmepumpe kan bestilles etter kontakt med styret i sameiet.
Vi er opptatt av verdiskapning, og har knyttet til oss samarbeidspartnere som skal sikre våre kunder de beste produkter og tjenester;
• Gjensidige leverer boligselgerforsikring og tilbyr bygningsforsikring
• Boligkjøperforsikring leveres av Hiscox og med Sedgwick som skadebehandler, og er formidlet gjennom Gjensidige.
• BN bank tilbyr finansieringsløsninger
• Vår avdeling Krogsveen Pluss tilbyr flyttetjenester som utvask, visningsvask, lager, tømming og transport av flyttelass, i tillegg til å formidle kontakt med Flip for overflateoppussing.
• I forbindelse med overtagelse av eiendommen tilbyr Overo avtale om strøm, alarm og bredbånd.
• Krogsveen er, sammen med øvrige bransjeaktører, medeier i den digitale annonseringsplattformen Hjem.
Beliggenhet og tomteforhold
Beliggenhet og tomteforhold
Beliggenhet
Trallegangen 99 ligger i et rolig og barnevennlig boligområde i Nannestad kommune. Her får man en flott kombinasjon av naturnær beliggenhet og gode servicetilbud i nærområdet, som gjør dette til et attraktivt sted å bo for både familier og friluftsinteresserte.
Området byr på flotte turmuligheter i skog og mark, med Romeriksåsene og flere oppmerkede turstier i nærheten. Her kan man nyte naturen året rundt, enten man vil gå tur, jogge eller ta med ski på vinterstid. Det finnes også flere vann i området som egner seg godt til bading og fisking på sommeren. Nærheten til marka gjør det enkelt å koble av med friluftsaktiviteter rett utenfor døren. Nannestad Svømmehall ligger i nærheten og tilbyr moderne bade- og treningsfasiliteter for både barn og voksne – et flott tilbud for hele familien. Svømmehallen er ny fra 2023 og er tilknyttet eksisterende idrettshall i Nannestad sentrum.
Det er kort vei til både dagligvarebutikker og servicetilbud. Kiwi og Rema 1000 ligger sentralt i Nannestad sentrum, som er bare noen få minutters kjøretur unna. Der finner man også apotek, bakeri, frisører og andre nødvendige tjenester. Jessheim Storsenter ligger omtrent 15-20 minutter unna med bil, og byr på et bredt utvalg av butikker, spisesteder og underholdningstilbud.
Nannestadhallen er et knutepunkt for idrett og fysisk aktivitet, med tilbud innen håndball, fotball og andre aktiviteter. I tillegg finnes det et aktivt idrettslag med bredt aktivitetstilbud for barn og ungdom. Om vinteren er det populære alpinbakker og langrennsløyper lett tilgjengelig i nærområdet. For de som liker golf eller frisbeegolf, finnes det også tilbud i rimelig nærhet.
Adkomst
Det vil bli skiltet med Krogsveen visningsskilt ved fellesvisninger. Velkommen!
Beskrivelse av tomt
Eiertomt på 103 kvm.
Parkering
Parkeringsplass i garasje og på hellelagt uteplass (en parkering i garasje og plass til tre bilder utendørs). Det lagt til rette for elbillader i garasjen, denne må kobles på dersom det er aktuelt med lading til bil. Øvrig parkering etter områdets gjeldende bestemmelser.
Vei, vann og avløp
Eiendommen er tilknyttet privat vei.
Eiendommen er tilknyttet offentlig vann. Vannmåler er montert.
Eiendommen er tilknyttet offentlig avløp.
Regulerings-og arealplaner
Eiendommen er regulert til Boligbebyggelse i henhold til reguleringsplan Bjørkeåsen datert 26.11.2007 med tilhørende kommuneplan 2018-2035 datert 14.05.2019. Området er under utbygging.
Utsnitt av plan med tilhørende bestemmelser kan fås ved henvendelse til megler.
Økonomi
Økonomi
Boligens kostnader
Fellesutgiftene er kr 1.487,- pr. mnd. (fra 01.01.26). og inkluderer: Kabel-tv/ Bredbånd, forsikringer, drift- og vedlikeholdskostnader, forretningsfører- og styrehonorar mm.
Fellesutgiftene justeres normalt en til to ganger årlig i forhold til sameiets faktiske utgifter.
Det tas forbehold om at felleskostnadene kan justeres fortløpende pga renteøkninger.
Informasjon fra styret 25.11.25: Sameiet er i prosess med en fusjon med Bjørkeåsen BK 1–2, planlagt gjennomført fra 01.01.2026. Dersom fusjonen trer i kraft som forventet, vil felleskostnadene reduseres til ca. kr 1 500 per måned. Dersom fusjonen blir forsinket, kan det oppstå en midlertidig økning i felleskostnadene på ca. 21 % i én til to måneder før fusjonen er på plass.
Iht. forretningsfører per 05.05.25 blir det informert følgende: Sameiet har ennå ikke avholdt årsmøte for inneværende år, og årsregnskapet, som også inkluderer budsjettet er derfor ikke formelt godkjent. Det er videre planlagt at boligsameiet i løpet av året skal fusjonere med et nærliggende sameie, slik at BJØRKÅSEN BK 1 BOLIGSAMEIE 1 og BJØRKEÅSEN BK 1 BOLIGSAMEIE 2 slås sammen.
Nåværende eier har et strømforbruk som tilsvarer 10.000 kwh. pr. år.
Boligen er tilknyttet Fiber/ Telenor som leverandør av kabel-tv og internett. Tv-tuner/dekoder medfølger ikke.
Utgiftene er basert på nåværende eiers forbruk. Kjøper må selv tegne innboforsikring.
Kommunale utgifter
Kommunale avgifter er kr 22.942,09,- for inneværende år. I dette inngår gebyr for vann, avløp, renovasjon og feiing/tilsyn.
Nannestad kommune har ikke eiendomsskatt.
Utgiftene er basert på nåværende eiers forbruk og avtaler.
Formuesverdi
Formuesverdi for 2023 var kr 1 410 000,- ifølge skatteetaten. Beløpet forutsetter at eier bor fast i boligen (primærbolig).
Ved eventuell øvrig bruk av eiendommen (f.eks. fritidsbolig, pendlerbolig, utleieobjekt) var formuesverdien for 2023 kr 5 642 165,-.
Formuesverdien justeres normalt årlig. Se skatteetaten.no for mer informasjon om fastsettelse av formuesverdien.
Omkostninger
4 920 000,00 Prisantydning
Omkostninger
123 000,00 Dokumentavgift til staten (2,5% av kjøpesum)
9 950,00 Gjensidige Boligkjøperpakke (valgfri)
545,00 Tinglysing panterettsdokument
545,00 Tinglysing skjøte
--------------------------------------------------------
134 040,00 Omkostninger totalt
--------------------------------------------------------
5 054 040,00 Totalpris inkl. omkostninger
--------------------------------------------------------
Tilbud om lånefinansiering
Megler formidler gjerne kontakt med rådgiver hos vår samarbeidspartner BN Bank. De har konkurransedyktige betingelser samt rask og løsningsorientert behandling av din lånesøknad. Krogsveen mottar et honorar for denne formidlingen.
Betalingsbetingelser
Kjøpesum inkludert omkostninger, samt pantedokument tilknyttet eventuelt lån, skal være disponibelt hos megler 2 virkedager før overtagelsen.
Annen viktig informasjon
Annen viktig informasjon
Eier
Vygandas Kononovas og Daiva Kononove
Informasjon om sameiet
Eiendommen er seksjonert, og leiligheten er tilknyttet Bjørkåsen Bk 1 Boligsameie.
Sameiet består av 20 seksjoner.
Forretningsfører er Bori BBL.
Dugnad samt trappevask må påregnes.
Dyrehold er tillatt, så lenge det ikke er til sjenanse for andre beboere.
Informasjon fra styret 25.11.25: Sameiet er i prosess med en fusjon med Bjørkeåsen BK 1–2, planlagt gjennomført fra 01.01.2026. Dersom fusjonen trer i kraft som forventet, vil felleskostnadene reduseres til ca. kr 1 500 per måned. Dersom fusjonen blir forsinket, kan det oppstå en midlertidig økning i felleskostnadene på ca. 21 % i én til to måneder før fusjonen er på plass.
Iht. forretningsfører per 05.05.25 blir det informert følgende: Sameiet har ennå ikke avholdt årsmøte for inneværende år, og årsregnskapet, som også inkluderer budsjettet er derfor ikke formelt godkjent. Det er videre planlagt at boligsameiet i løpet av året skal fusjonere med et nærliggende sameie, slik at BJØRKÅSEN BK 1 BOLIGSAMEIE 1 og BJØRKEÅSEN BK 1 BOLIGSAMEIE 2 slås sammen. Videre informerer styreleder i sameiet per 05.05.25 følgende: Det er pr dags dato ingen planlagte påkostninger på fellesgjeld for sameiet. Det pågår en sak nå om sammenslåing av de to sameiene på Bjørkåsen (BK1 og BK2). Avstemming skal opp på årsmøtene i mai og juni. Dersom det blir flertall for sammenslåing, vil fellesutgiftene for boenhetene i BK 1 bli redusert med ca 300,- pr måned.
Iht. sameiets vedtekter må kjøper godkjennes av styret som ny sameier. Det er kjøpers ansvar at styregodkjenning blir gitt, men styret kan ikke nekte godkjenning uten saklig grunn.
Vi gjør videre oppmerksom på at det iht. eierseksjonsloven ikke er anledning å erverve mer enn 2 seksjoner i sameiet, her teller også eierskap via. firma, nærstående og familie. Kjøper har risikoen for at overskjøting på denne bakgrunn kan nektes av Statens Kartverk. I så fall vil kjøper uansett være forpliktet til å gjennomføre handelen, og oppgjør til selger vil finne sted tross manglende overskjøting.
Konferer med megler for mer informasjon.
I tillegg følger det av sameiets vedtekter at juridiske personer (selskaper) ikke kan eie seksjoner i sameiet.
Dokumenter for sameiet og kopi av seksjonsbegjæringen kan fås ved henvendelse til megler.
Overtakelse
Etter nærmere avtale.
Velforening
Boligen er tilknyttet velforening. Selger informerer at det ikke er forpliktelser i forbindelse med betaling.
Boligselgerforsikring
Selger har i forbindelse med salget tegnet boligselgerforsikring levert av Gjensidige.
Boligselgerforsikringen dekker selgers ansvar etter avhendingsloven begrenset oppad til kr 14 millioner. Dersom kjøper oppdager forhold ved eiendommen som hen mener utgjør en mangel ved eiendommen, vil Gjensidige behandle reklamasjonen på vegne av selger. Forsikringsvilkår kan fås ved henvendelse til megler.
Vedlagt salgsoppgaven følger selgers egenerklæringsskjema og tilstandsrapport. Interessenter må sette seg inn i dokumentene før bud inngis.
Boligkjøperforsikring
Innen kontraktsmøtet må kjøper ta stilling til om det ønskes å bestille Boligkjøperpakken gjennom Gjensidige. I denne gunstige pakken er boligen ferdig forsikret og inkluderer rettshjelpsforsikring, også kalt Boligkjøperforsikring. Rettshjelpsforsikring gir trygghet og tilgang på profesjonell juridisk hjelp dersom det oppdages uventede feil eller mangler det første året etter overtagelse. Forsikringsselskapet behandler i så fall ethvert mangelskrav kjøper måtte ha overfor selger.
Boligkjøperpakken inkluderer bygningsforsikring for hus og hytte, innboforsikring, flytteforsikring og dobbel rentedekning - i situasjoner hvor kjøper ikke får solgt nåværende primærbolig.
Kjøper mottar ingen særskilt faktura for Boligkjøperpakken da kostnaden det første året legges til kjøpesummen for boligen. Det gjøres oppmerksom på Krogsveen mottar et honorar for denne formidlingen.
Produktark for Boligkjøperpakken ligger vedlagt i salgsoppgaven.
Dersom ikke boligkjøperpakke ønskes kan kun rettshjelpsforsikring, også kalt boligkjøperforsikring, tegnes særskilt via megler. Rettshjelpsforsikringen varer i 5 år fra overtagelse og leveres gjennom Gjensidige. Ta kontakt med megler for ytterligere informasjon.
Selskap og privatpersoner som driver med kjøp/salg/utvikling som ledd i egen næringsvirksomhet kan ikke tegne boligkjøperpakke eller rettshjelpsforsikring.
Budgivning
Forbrukerinformasjon om budgivning er vedlagt denne salgsoppgaven og er også på vår hjemmeside Krogsveen.no. Alle bud og budforhøyelser må inngis skriftlig. I tillegg må legitimasjon være fremlagt sammen med signatur fra budgiver.
Vi oppfordrer til å gi bud elektronisk via GI BUD-knappen på eiendommens hjemmeside på Krogsveen.no. Da vil samtlige vilkår bli oppfylt.
Eventuelle forhøyelser eller endringer av budet kan bekreftes pr SMS eller på e-post. Vi oppfordrer alltid til å kontakte megler pr. telefon i tillegg da forsinkelser i SMS og e-post kan forekomme.
For at budene skal kunne bli behandlet og videreformidlet skriftlig til alle involverte parter, må alle bud ha en tilstrekkelig lang akseptfrist, jf. eiendomsmeglingsforskriften § 6-3.
Selger må også skriftlig akseptere budet før aksept kan formidles til budgiver. Akseptfrist bør derfor være på minimum 30 minutter, og budforhøyelser må derfor skje i god tid før fristens utløp.
Bud i forbrukerforhold kan uansett ikke settes med kortere frist enn kl. 12.00 første virkedag etter siste annonserte visning. I tillegg kan ikke budet ha forbehold om at det skal holdes hemmelig ovenfor øvrige interessenter. Megler har iht lov om eiendomsmegling ikke anledning til å videreformidle disse budene, og de vil dermed heller ikke bli journalført.
Etter at eiendommen er solgt vil kjøper og selger få tilsendt budjournal. Øvrige budgivere kan få utlevert kopi av budjournalen i anonymisert form.
Hvitvaskingsreglene
I henhold til lov om hvitvasking og terrorfinansiering har megler plikt til å gjennomføre kontrolltiltak overfor kunder, herunder fullmektiger. Dette innebærer bl.a. å bekrefte kunders og reelle rettighetshaveres identitet på bakgrunn av fremvist gyldig legitimasjon eller på annen godkjent måte, samt å innhente opplysninger om kundeforholdets formål og tilsiktede art.
Dersom slike kundetiltak ikke kan gjennomføres, kan megler ikke etablere kundeforholdet eller utføre transaksjonen.
Hvis kjøper ikke bidrar til gjennomføring av kundekontrollen og dette fører til at transaksjonen blir forsinket eller ikke kan gjennomføres, vil dette ansees som mislighold av avtalen og gi selger rettigheter etter avhendingslova kapittel 5. I tilfeller der selger ikke bidrar til gjennomføring av løpende kundekontroll underveis i oppdraget, er det selger som misligholder sine forpliktelser etter avtalen og gi kjøper rettigheter etter avhendingslovens kapittel 4. Partene er selv ansvarlige for eventuelle kostnader og ansvar dette kan medføre. Eiendomsmegleren eller eiendomsmeglingsforetaket kan ikke holdes ansvarlig for de konsekvenser dette vil kunne få for partene eller andre som har interesser i eiendomshandelen.
Kjøper oppfordres til å innbetale kjøpesummen som ikke kommer fra låneinstitusjon i én samlet innbetaling fra egen konto i norsk bank. Megler har plikt til å melde fra til Økokrim om eiendomshandler som fremstår som mistenkelige. Melding sendes Økokrim uten at partene varsles.
Personopplysningsloven
I henhold til personopplysningsloven gjør vi oppmerksom på at interessenter kan bli registrert for videre oppfølging.
Lovanvendelse
Generelle bestemmelser
Salgsoppgaven er basert på de opplysningene selger har gitt til megler, den bygningssakyndiges tilstandsrapport, samt opplysninger innhentet fra kommunen, Kartverket og andre tilgjengelige kilder. Det er viktig at kjøper setter seg grundig inn i alle salgsdokumentene, herunder salgsoppgave, tilstandsrapport og selgers egenerklæring. Kjøper anses kjent med forhold som er tydelig beskrevet i salgsdokumentene, og slike forhold kan ikke påberopes som mangler. Dette gjelder uavhengig av om kjøper har lest dokumentene. Alle interessenter oppfordres til å undersøke eiendommen nøye, gjerne sammen med fagkyndig før bud inngis. Kjøper som velger å kjøpe usett kan ikke gjøre gjeldende som mangel noe han burde blitt kjent med ved undersøkelsen.
Dersom det er behov for avklaringer, anbefaler vi at interessenter rådfører seg med eiendomsmegler eller egne rådgivere før det legges inn bud.
En bolig som har blitt brukt i en viss tid, har vanligvis blitt utsatt for slitasje og skader kan ha oppstått. Slik bruksslitasje må kjøper regne med, og det kan avdekkes enkelte forhold etter overtakelse som nødvendiggjør utbedringer. Normal slitasje og skader som nødvendiggjør utbedring, er innenfor hva kjøper må forvente og vil ikke utgjøre en mangel.
Kjøper og selgers rettigheter og plikter reguleres av avtalen mellom partene, samt informasjonen som har vært tilgjengelig for kjøperen i forbindelse med handelen. Avtalen utfylles av avhendingsloven, og det gjelder ulike avtalevilkår avhengig av om kjøper er forbrukerkjøper eller ikke. Dette er nærmere beskrevet nedenfor.
På grunn av ulike avtalevilkår kan selger vurdere bud fra en som ikke er forbruker, ulikt fra en forbrukers bud. Dersom kjøper ikke er forbruker, er selger sitt mulige mangelsansvar begrenset fordi eiendommen selges "som den er". Selger kan ikke ta «som den er»- forbehold overfor en forbrukerkjøper. Selv et lavere bud fra en som ikke er forbruker kan foretrekkes fordi begrensningen i mulig mangelsansvar kan ha egenverdi for selger. Selger står fritt til å forkaste eller akseptere ethvert bud, og er for eksempel ikke forpliktet til å akseptere høyeste bud.
Budgiver skal i budskjema avgi egenerklæring om budgiver er forbruker eller næringsdrivende/ person som hovedsakelig handler som ledd i næringsvirksomhet. Budgivere får informasjon dersom andre bud er inngitt av en som ikke er forbruker.
Forbrukerkjøp - definisjon
Med forbrukerkjøp menes kjøp av eiendom når kjøperen er en fysisk person som ikke hovedsakelig handler som ledd i næringsvirksomhet.
Forbruker – avtalevilkår
Eiendommen har en mangel dersom den ikke er i samsvar med kravene som følger av avtalen, eller det foreligger brudd på bestemmelsene i avhendingsloven §§ 3-2 til 3-8. Hvis eiendommen ikke er i samsvar med det kjøperen må kunne forvente ut ifra alder, type og synlig tilstand, kan det være grunnlag for mangelskrav. Det samme gjelder hvis det er holdt tilbake eller gitt uriktige opplysninger om eiendommen. Dette gjelder likevel bare dersom man kan gå ut ifra at det virket inn på avtalen at opplysningen ikke ble gitt eller at mangelskravet ikke blir rettet i tide på en tydelig måte.
Boligen kan ha en mangel etter avhendingsloven § 3-3 andre ledd, dersom det er avvik mellom opplyst og faktisk innvendig areal, forutsatt at avviket er på 2% eller mer og minimum 1 kvm.
Ved beregning av et eventuelt prisavslag eller erstatning må kjøper selv dekke tap/kostnader opptil et beløp på kr 10 000 (egenandel).
Ikke-forbruker (næringsdrivende) – definisjon
Hvis kjøper er en juridisk person, eller en fysisk person som hovedsakelig handler som ledd i næringsvirksomhet, vil kjøpet ikke anses som et forbrukerkjøp.
Ikke-forbruker – avtalevilkår
Eiendommen har en mangel dersom den ikke er i samsvar med kravene som følger av avtalen.
Eiendommen selges «som den er», og selgers ansvar utover det konkret avtalte er da begrenset etter avhendingsloven § 3-9, første ledd andre setning.
Avhendingsloven § 3-3 andre ledd fravikes, og hvorvidt boligens arealsvikt utgjør en mangel vurderes etter avhendingsloven § 3-8.
Informasjon om kjøpers undersøkelsesplikt, herunder oppfordringen om å undersøke eiendommen nøye, gjelder også for kjøpere som ikke anses som forbrukere.
Det forutsettes at hjemmel overføres til kjøper. Hvis kjøper ikke ønsker hjemmelsoverføring av eiendommen, må det tas forbehold om dette i budet.
Meglers vederlag
Meglers vederlag betales av selger og er avtalt til:
Vederlag: 1,1% av salgssummen.
Tilrettelegging fra kr 17.000,-
Oppgjør: kr 7.500,-
Markedspakke: kr 27.400,-
Visninger: kr 4.000,- pr. visning
Oppslag eiendomsregister: kr 2.900,-
Megler har i tillegg krav på dekning av følgende utlegg:
Tinglysing sikring kr 545,-
Eierskiftegebyr kr. 6.570,-,-
Innhenting av informasjon forretningsfører: 5.000,-
Boligfotografering kr 5.000,-
Boligselgerforsikring/ valgfritt (4,42 promille av salgssum ved inngåelse).
Tilstandsrapport kr. 19.950,-
Opplysninger om oppdraget
Oppdragsnummer 24-0060/25
Eiendomsmegler Krogsveen AS, avd. Årnes
Rådhusgata 26, 2150, ÅRNES
950 007 613
Oppdragets KR-kode KR24.2560
Dato
Sist oppdatert: 29. april 2026 kl. 15:35
Dokumenter
Dokumenter
PDF – 403 KB
PDF – 687 KB
PDF – 957 KB
PDF – 312 KB
PDF – 29 KB
PDF – 127 KB
PDF – 392 KB
Område
Legg til steder som er viktige for deg
Visning
For å delta på visning, ber vi om at du melder deg på. Da sikrer vi at du får nødvendig informasjon og at det er satt av tilstrekkelig med tid. Kontakt megler dersom annet tidspunkt ønskes. Husk å lese salgsoppgaven før visningen, så du stiller forberedt.
Ønsker du kun å bli holdt orientert, kan du fra eiendommens hjemmeside få varsel om solgtpris, eller kontakte megler.
Lurer du på noe?
Unngå doble boligrenter
Vi tilbyr gunstig forsikring.
Vurderer du utleie?
Få et tilbud fra Utleie KrogsveenHva koster lånet?
Sjekk estimert lånekostnadVil du varsles om lignende boliger?
Ved å lagre ditt boligsøk hos oss får du beskjed når vi har en bolig som ligner denne, før den legges ut på markedet!






























