Ullevålsveien 56C
6 800 000 kr
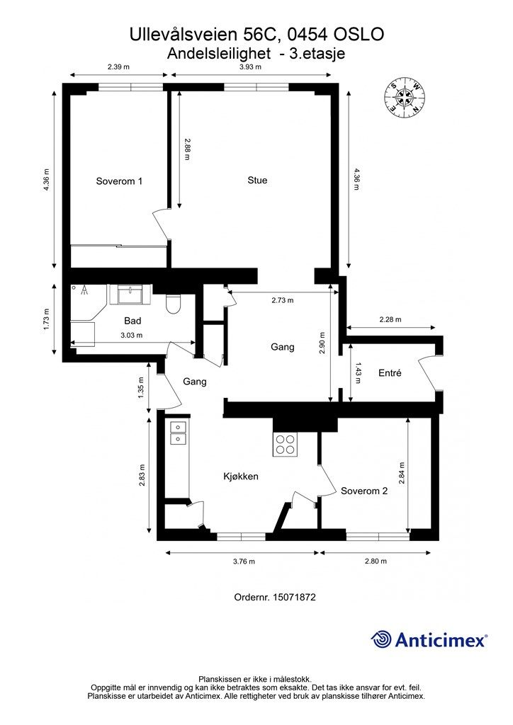
72 m²
2 soverom
Solgt

Bislett
3-roms med stort potensial og god planløsning- Sentral og rolig beliggenhet - Varmtvann+ fyring inkl. Ingen dok.avg.
Prisantydning
6 800 000 krAndel fellesgjeld
283 724 krOmkostninger
11 040 krTotalpris
7 094 764 kr
Pris
Bruksareal
83 m²BRA-I (internt bruksareal)
72 m²BRA-E (eksternt bruksareal)
11 m²
Areal
Etasje
3Byggeår
1929Soverom
2 soveromBad
1 badType
AndelsleilighetEierform
AndelFellesutgifter
5 536 krEnergimerke
Grønn F
Nøkkelinfo
Unngå doble boligrenter
Vi tilbyr gunstig forsikring.
Vurderer du utleie?
Få et tilbud fra Utleie KrogsveenHva koster lånet?
Sjekk estimert lånekostnadBeskrivelse
Kort om eiendommen
Velkommen til Ullevålsveien 56C, en leiligheten med god planløsning og stort potensialet til å lage din drømmeleilighet. Leiligheten ligger sentralt til på Valleløkken med umiddelbar nærhet til alt du måtte trenge i hverdagen.
Høydepunkter:
- Ingen dokumentavgift eller forkjøpsrett!
- Oppvarming og varmtvann (bergvarme) inkludert i felleskostnadene
- Sentral beliggenhet nær St. Hanshaugen
- Store vinduer og brede vinduskarmer
- Kort vei til buss og trikk
- Godt med bodplass: Både i leiligheten og i kjelleren
- Mulighet for leie av av parkeringsplass etter ansiennitet i bakgården + gjesteparkering
- Veldrevet borettslag
- Store og fine felles uteområder. Pergola og opparbeidet hage.
Velkommen til visning!
Område
Legg til steder som er viktige for deg
På flyttefot? Tenk kjøp og salg samtidig.
Få din egen rådgiver gjennom hele kjøps- og salgsprosessen. Det starter med en verdivurdering.
Unngå doble boligrenter
Vi tilbyr gunstig forsikring.
Vurderer du utleie?
Få et tilbud fra Utleie KrogsveenHva koster lånet?
Sjekk estimert lånekostnadVil du varsles om lignende boliger?
Ved å lagre ditt boligsøk hos oss får du beskjed når vi har en bolig som ligner denne, før den legges ut på markedet!

