Eldshovden 6E
6 390 000 kr
115 m²
3 soverom
Komplett salgsoppgave

Flott og moderne familiebolig over 3 plan med carport og biloppstillingsplass i et attraktivt og barnevennlig område
Prisantydning
6 390 000 krOmkostninger
180 740 krTotalpris
6 570 740 kr
Pris
Bruksareal
120 m²BRA-I (internt bruksareal)
115 m²BRA-E (eksternt bruksareal)
5 m²TBA (terrasse-balkongareal)
40 m²
Areal
Etasje
3Byggeår
2007Soverom
3 soveromBad
2 badTomteareal
176 m² (eiet)Type
Halvpart vertikaldelt boligEierform
EietFasiliteter
Balkong/TerrasseÅrlig velavgift
3 000 krEnergimerke
Gul C
Nøkkelinfo
Unngå doble boligrenter
Vi tilbyr gunstig forsikring.
Vurderer du utleie?
Få et tilbud fra Utleie KrogsveenHva koster lånet?
Sjekk estimert lånekostnadBeskrivelse
Kort om eiendommen
Velkommen til visning av en moderne halvpart av vertikaldelt tomannsbolig, beliggende med gangavstand til de fleste servicetilbud. Kort avstand til fine tur- og treningsområder. Eiendommen er opparbeidet med carport, gjesteparkering og terrasser fra både u. og 1. etg. Fra overbygget inngangsparti er det utv. bod og inngang til gang med bad og bod. Utg. fra bod til carport. Trapp fra gang til stue med åpen kjøkkenløsning i 1. etg. Utg. til terrasse i bakkant og veranda i front. Trapp videre opp til 2. etg. med gang, 3 stk. soverom og bad/wc.
- Barnevennlig gate
- Fine lys- og utsiktsforhold
- Utgang fra kjøkken til bakplass og terrasse
- Utgang til veranda fra stue
- Carport og biloppstillingsplass
- Nær kollektivtransport ved Dolvikskiftet
Innhold og byggemåte
Innhold og byggemåte
Eiendommen
Eldshovden 6E, 5252 SØREIDGREND
Kommunenummer 4601, gårdsnummer 35, bruksnummer 715
Innhold
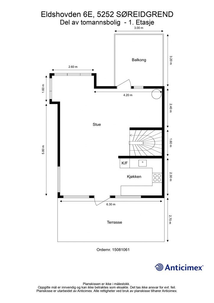
Totalt bruksareal BRA: 120 kvm
BRA-i:
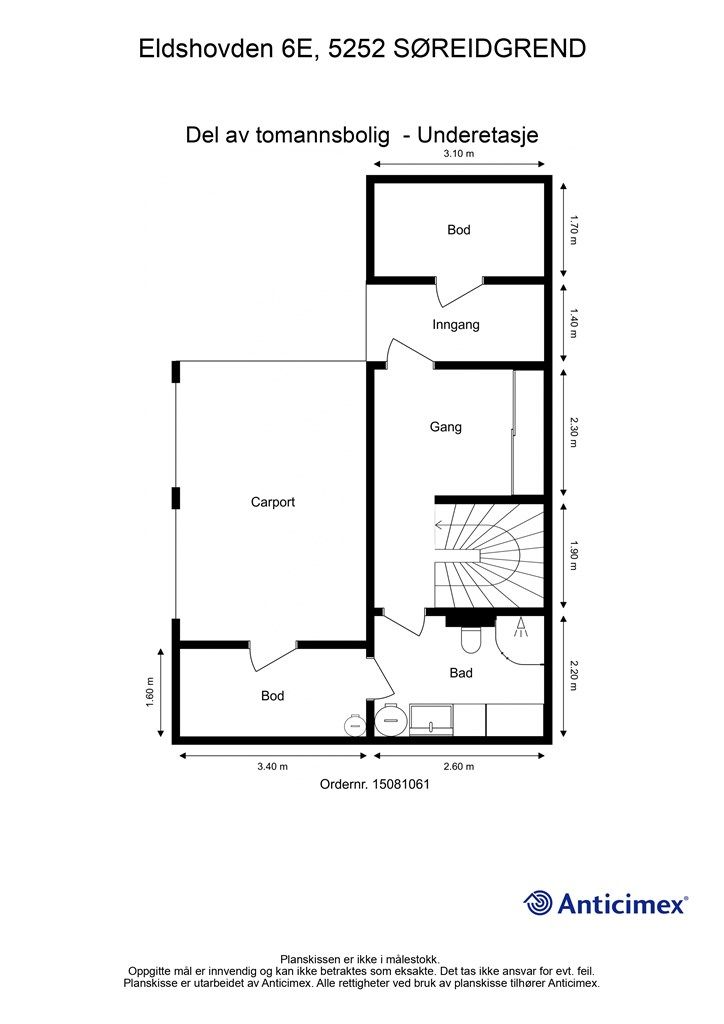
Underetasje: 24 kvm: Gang, bad og bod
1. etasje 47 kvm: Stue og kjøkken
2. etasje 44 kvm: 3 soverom, bad og gang
BRA-e:
Underetasje: 5 kvm: Utvendig bod
Åpent areal:
Underetasje: 14 kvm: Terrasse
1. etasje 26 kvm: Balkong og terrasse
Vedlagte plantegninger er ikke målbare. De oppgitte arealer er hentet fra rapport med befaringsdato 15.04.2026 utført av Atle Simon Kallestad.
Byggemåte
Selger har innhentet en tilstandsrapport av boligen/eiendommen. Av rapporten fremgår det at flere bygningsdeler har fått tilstandsgrad ikke undersøkt/ikke tilgjengelig for undersøkelse (TG IU), 2 (TG2) og/eller 3 (TG3). Rapporten beskriver også avvik på undersøkte bygningsdeler uten tilstandsgrad. Kjøper overtar ansvaret for de opplysninger som fremkommer av salgsdokumentasjonen, og kan ikke gjøre gjeldende som mangel noe som burde vært kjent eller som ikke kan anses å ha betydning for avtalen.
Boligen er iht. tilstandsrapporten oppført i 2007 med grunnmur og bærende konstruksjoner i hovedsak av betong. Bygget er oppført med støpt gulv mot grunn og yttervegger av trekonstruksjoner. Utvendige fasader er kledd med både liggende og stående trekledning. Etasjeskillere er av trekonstruksjoner. Taket er flatt og yttertak er belagt med asfaltpapp. Entrédør med glassfelter. Vinduer med karmer av tre. Balkongdør med karmer av tre.
Det gjøres spesielt oppmerksom på følgende punkter som har fått TG2 (alder, slitasje, skader mv)
Bad i underetasje:
- Det er registrert bruk av materialer i våtsonen (rundt dusj/badekar) som vurderes å ikke være fuktbestandige.
- Gulvet i sluksonen er tilnærmet flatt.
- Fallforhold utenfor sluksonen vurderes ikke til å være tilstrekkelig for å lede eventuelt lekkasjevann til sluk
- Det er ikke påvist at vanntett sjikt har tilstrekkelig oppkant ved dørterskel for å kompensere for dette.
- Vanntett sjikt har en alder som tilsier at fremtidig funksjon er usikker.
- Bygningsdelen er skjult, så den faktiske tilstanden og dagens tettefunksjon er ukjent.
- Overgang mellom sluk og vanntett sjikt er uoversiktlig.
Bad i 2. etasje:
- Det observeres riss i veggfliser ved dør.
- Lokalfallet i sluksonen er mindre enn anbefalt.
- Fallforhold utenfor sluksonen vurderes ikke til å være tilstrekkelig for å lede eventuelt lekkasjevann til sluk
- Det er ikke påvist at vanntett sjikt har tilstrekkelig oppkant ved dørterskel for å kompensere for dette.
- Vanntett sjikt har en alder som tilsier at fremtidig funksjon er usikker.
- Bygningsdelen er skjult, så den faktiske tilstanden og dagens tettefunksjon er ukjent.
- Grunnet plassering av badekar er det ikke mulig å foreta en fullgod undersøkelse av sluket.
-Varmtvannsbereder:
Det er registrert drypplekkasje fra rør tilkoblet berederen.
- Yttertak:
Det er valgt å vurdere yttertaket med en samlet helhetsvurdering da taket er ikke fysisk inspisert grunnet sikkerhetsmessige forhold.
-Balkongen:
Balkongen er vurdert å utgjøre tettesjikt mot underliggende areal. Vanntett sjikt har en alder som tilsier at fremtidig funksjon er usikker.
Det gjøres oppmerksom på følgende punkter som har fått TGIU (ikke er undersøkt):
- Terrasse/platting. Konstruksjon og fundamenter
Fundamentene var ikke tilgjengelige for undersøkelser, noe som gjorde at utførelsen/tilstanden ikke lot seg kontrollere.
Det elektriske anlegget er fra byggeår og takstmann har kun tatt en forenklet vurdering. I taksten står det at det er registrert forhold som tyder på at det er behov for en utvidet kontroll av det elektriske anlegget. Grunnen til at det er behov for en utvidet kontroll er at selger ikke finner dokumentasjon
på at dette er blitt gjort. Det er ikke noe som tyder på at det er noe gale med anlegget.
Det anbefales alltid på et generelt grunnlag å kartlegge radonnivåer, i de tilfeller dette ikke er gjort.
Tilstandsrapporten er inntatt i salgsoppgaven. Rapporten inneholder informasjon om avvikene og konsekvensen av disse. For avvik som er gitt TG3 har den bygningssakkyndige i tillegg gitt et anslag på hva det vil koste å utbedre disse avvikene. Ettersom kjøper regnes å være kjent med forhold som tydelig fremgår av tilstandsrapporten, oppfordres du til å sette deg grundig inn i rapporten i sin helhet.
Standard
Vi i Krogsveen har gleden av å kunne presentere en fin og moderne familiebolig i et skjermet og populært boligområde. Fin utsikt fra stue og veranda i front i tillegg til hovedsoverom i 2. etg. Eiendommen har kort avstand til dagligvarebutikker rundt Dolviken og ved Fanatorget, barnehage i gaten og skoler innenfor gangavstand. Fine turområder med treningsmuligheter i umiddelbar nærhet enten rundt Skranevannet, Storrinden eller langs fortau og sykkelveier i Ytrebygda bydel. Kjøreavstand til Lagunen og Bergen sentrum innenfor 10-15 minutter. Eiendommen passer godt til en barnefamilie som ønsker å bo sentralt, og med andre barnefamilier i umiddelbar nærhet. Boligen har gjennomgående gode kvaliteter, og er en god del påkostet i forhold til opprinnelig levering fra utbygger. Huset har god planløsning.
Inngang via overbygget inngangsparti med dør til sportsbod og entrédør til gang i underetasjen.
Gang har fliser med varmekabler på gulv, malte vegger og plater med spotter i tak. Speil skyvedørsgarderobe og varmepumpe på motsatt vegg. Hvitmalt trapp med eiketrinn, og stålspiler til stue i 1. etasje.
Bad/wc fra byggeår har flislagt gulv med gulvvarme, flislagte og malte vegger, malte vegger og malte flater i himling.
Gulvstående servantinnredning med ovenpåliggende servant med armatur. Speil med sidelys og stikkontakt over servant. Dusjhjørne med dører. Vegghengt dusjarmatur. Vegghengt toalett. Mekanisk avtrekksvifte i vegg. Opplegg for vaskemaskin. Varmtvannsbereder plassert i hjørne. Vannrør av type rør-i-rør med fordelerskap.
Gjennomgang fra bad til bod. Her er det utgang til carport. Enhet for sentralstøvsuger er plassert i bod.
Fra trapp i underetasjen kommer du opp til 1. etg. og stue med åpen kjøkkenløsning. Stue og kjøkken har parkett på gulv, malte vegger og malte flater i himling med spotter. Stuen har åpen løsning mot spisestue med delvis tilbaketrukket kjøkkeninnredning. I stuedel er det flott integrert peisovn og utgang til veranda i front med flott utsikt og gode lysforhold. Stilrent og flott HTH kjøkkeninnredning fra byggeår har glatte fronter og benkeplate med laminert overflate og nedfelt kjøkkenvask med armatur. Benkeskapsbelysning og stikkontakt over kjøkkenbenk. Integrert stekeovn, platetopp, oppvaskmaskin og kjøleskap med fryser. Ventilator i overskap. Vannrør av typen rør-i-rør. Fra kjøkken og spisestuedel er det utgang til terrasse med port og gangvei ned til lekeplass. Trapp fra stue til 2. etasje.
Via trapp fra stue er det oppgang til gang i 2. etg.
Gang har parkett på gulv, malte vegger og malt tak.
Soverom 1 har parkett på gulv, malte vegger og malt tak. Skyvedørsgarderobe. Panelovn på vegg.
Soverom 2 har parkett på gulv, malte vegger og malt tak. Gjennomføringsrør for pipe.
Soverom 3 har parkett på gulv, malte vegger og malt tak.
Bad/wc fra byggeår har flislagt gulv med gulvvarme, flislagte vegger og malte flater i himling. Vegghengt servantinnredning med ovenpåliggende servant med armatur. Speil med sidelys og stikkontakt over servant. Badekar med vegghengt badekararmatur. Vegghengt toalett. Vannrør av type rør-i-rør. Mekanisk avtrekksvifte i vegg.
Løsøre og tilbehør
Vi viser til liste fra Norges Eiendomsmeglerforbund som gjelder fra 01.01.2020 angående løsøre og tilbehør.
Det er kun de hvitevarene som er listet opp som følger med. Disse hvitevarene følger med: Integrerte hvitevarer på kjøkken.
Det gjøres oppmerksom på at hvitevarene er kjøpt for noen år tilbake, og kjøper må forvente slitasje som følge alder og normal bruk.
Oppvarming
Oppvarming av boligen skjer i hovedsak ved bruk av gulvvarme/varmekabler og det finnes på begge badene, vaskerommet og i gangen i 1. etasje.
I stuen er det peisovn med glassdør og det er montert helt ny varmepumpe i gang i underetasje.
Selger har avtalt Norgespris på strøm på eiendommen ut 2026, og denne er pt på 50 øre inkl mva. Nettleie, avgifter og påslag fra kraftleverandøren kommer i tillegg. Er det fjernvarme vil det også komme kostnader i tillegg.
Denne avtalen vil følge eiendommen i den avtalte perioden.
Les mer om Norgespris her: https://www.regjeringen.no/no/aktuelt/legg-fram-lov-om-norgespris-pa-straum-og-fjernvarme/id3102642/
Ferdigattest/brukstillatelse
Det foreligger ferdigattest på nybygg, datert 24.02.09. Denne kan fås ved henvendelse til megler.
Byggetegningene stemmer overens med slik boligen fremstår i dag, med unntak av wc som er tegnet inn i entreen i underetasjen.
Tinglyste heftelser og rettigheter
Eiendommen overdras fri for pengeheftelser.
På eiendommen er det tinglyst følgende rettigheter som følger eiendommens matrikkel ved overskjøting til ny hjemmelshaver:
30.11.2009 - Dokumentnr: 914727 - Best. om vann/kloakkledn.
Meglers forklaring: Denne eiendommen med flere, har rett til å anlegge vann og avløpsledninger over gnr 35 bnr 28.
30.11.2009 - Dokumentnr: 914727 - Bestemmelse om veg
Meglers forklaring: Denne eiendommen med flere har rett til å benytte veien areal avsatt til fellesareal/lekeareal på gnr 35 bnr 28 og vei på gnr 34 bnr 15 frem til offentlig vei. Brukerne har proratarisk ansvar for drift og vedlikehold av veien.
Kopi av dokumentet kan fås ved henvendelse til megler.
Eventuell adgang til utleie
Eiendommen har ikke separat utleieenhet. Det vil normalt være anledning til utleie av hele eiendommen eller enkeltrom, såfremt utleiearealet er bygningsmessig godkjent for varig opphold og har forsvarlige radonnivåer.
Diverse
Det er obligatorisk deltakelse i Skranehagen Huseierlag.
Beliggenhet og tomteforhold
Beliggenhet og tomteforhold
Beliggenhet
Boligen ligger i et meget attraktivt og etablert boligområde på Søreide/Sandsli. Barnevennlige omgivelser uten gjennomgangstrafikk og det er kort vei til barnehager, skoler og lekeplasser. Aurdalslia skole er nærskole fra første trinn med trygg skolevei mot Fanatorget. Flotte turområder like i nærheten med bl.a. Storrinden og tur/sykkelstier rundt Skranevannet. Det er lekeplass og en liten kunstgressbane i gaten til boligen. Kort vei til de fleste servicetilbud som blant annet dagligvarebutikk (Meny), Fanatorget og Lagunen Storsenter. Ca. 5 minutters gange til Dolvik terminal, med ekspressbussrute til sentrum. Det er 13 minutters gange til Bybanen. Meget sentralt i forhold til store arbeidsplasser på Sandsli og Kokstad hvor man kan gå på 10-20 minutter, og Flesland er kun noen minutters kjøring unna.
Adkomst
Følg mot Sandsli gjennom Knappetunnelen. Ta av mot Sandsli og følg veien opp forbi Dolvik terminal. Ta første avkjørsel i rundkjøringen (til høyre) ved Meny, og ta så av til venstre etter ca. 50 meter. Følg Skranevegen oppover og ta av rett frem mot Eldshovden. Før barnehage tar man inn til venstre. Kjør videre innover og ved liten bakke er boligen på høyre side.
Barnehager, skoler og fritid
Barnehager:
- Eldshovden barnehage - 2 min å gå / 0.2 km
- Eldsbakkane barnehage - 7 min å gå / 0.6 km
- Skranevegen barnehage - 9 min å gå / 0.8 km
Skoler:
- Aurdalslia skole (1-7 kl.) - 9 min å gå / 600 m
- Skranevatnet skole (1-10 kl.) - 15 min å gå / 1.3 km
- Søreide skole (1-7 kl.) 5 min med bil / 1.9 km
- Sandsli videregående skole - 8 min å kjøre / 4.1 km
- Nordahl Grieg videregående skole - 9 min med bil / 6.3 km
Informasjon om tilhørende skolekretser er hentet fra Prognosesenteret som dataleverandør, og tilhørigheten kan årlig endres av kommunen. Dersom skole- og barnehagetilbud er av betydning for kjøpet, ber vi om at det rettes en særskilt henvendelse til kommunen/bydelsadministrasjonen for oppdatert informasjon.
Beskrivelse av tomt
Eiertomt på 176 kvm som er opparbeidet med blant annet asfalterte veier, belegningsstein, terrasse på terreng og biloppstillingsplass.
Parkering
Det er carport med el-bil lader, samt biloppstillingsplass på egen tomt.
Vei, vann og avløp
Eiendommen har adkomst via privat vei med felles vedlikeholdsansvar.
Eiendommen er tilknyttet kommunalt ledningsnett via private stikkledninger. Eier er selv ansvarlig for private stikkledninger til boligen.
Regulerings-og arealplaner
Eiendommen er regulert til konsentrert småhusbebyggelse og felles lekeareal i henhold til reguleringsplan Ytrebygda gnr 34 bnr 11, Dolvik datert 20.03.06 med tilhørende reguleringsbestemmelser.
Bestemmelsesområder i kommuneplanen.
- Forhold som skal avklares og belyses med dekningsgrad 77,1%.
Utsnitt av plan med tilhørende bestemmelser kan fås ved henvendelse til megler.
Økonomi
Økonomi
Kommunale utgifter
Kommunale avgifter er kr 11.483,- for inneværende år. I dette inngår gebyr for vann, avløp, renovasjon og feiing/tilsyn. Det tas forbehold om at kommunen kan justere gebyrene i løpet av året.
Nåværende eier har et strømforbruk som tilsvarer ca. kr 25.400,- pr. år. / 15.725 kwh. pr. år.
Boligen har en årlig forsikringspremie på kr 8.700,-.
Velavgift er kr 3.000,- pr. år.
Boligen er tilknyttet Telenor som leverandør av kabel-tv og har avgift på kr 998,- pr. mnd. 500 mbps. Tv-tuner/dekoder medfølger.
Utgiftene er basert på nåværende eiers forbruk og avtaler.
Formuesverdi
Formuesverdi for 2024 var kr 1 414 338,- ifølge selgers Skatteetaten. Beløpet forutsetter at eier bor fast i boligen (primærbolig).
Ved eventuell øvrig bruk av eiendommen (f.eks. fritidsbolig, pendlerbolig, utleieobjekt) var formuesverdien for 2024 kr 5 657 350,-.
Fra 2026 har Stortinget vedtatt en oppdatert modell for beregning av formuesverdi for primærbolig, så avvik kan forekomme.
For mer informasjon se skatteetaten.no
Eiendomsskatt
Eiendomsskatten utgjør kr. 7.808,- pr år.
Omkostninger
6 390 000,00 Prisantydning
Omkostninger
159 750,00 Dokumentavgift til staten (2,5% av kjøpesum)
19 900,00 Gjensidige Boligkjøperpakke* (valgfritt)
545,00 Tinglysing panterettsdokument
545,00 Tinglysing skjøte
--------------------------------------------------------
160 840,00 (Omkostninger totalt (uten Gjensidige Boligkjøperpakke))
180 740,00 Omkostninger totalt (med Gjensidige Boligkjøperpakke))
--------------------------------------------------------
6 550 840,00 Totalpris inkl. omkostninger
6 570 740,00 Totalpris inkl. omkostninger (med Gjensidige Boligkjøperpakke)
--------------------------------------------------------
Totalpris inkl. omkostninger forutsetter kjøp til prisantydning.
Det tas forbehold om endringer i avgifter og gebyrer.
Tilbud om lånefinansiering
Megler formidler gjerne kontakt med rådgiver hos vår samarbeidspartner BN Bank. De har konkurransedyktige betingelser samt rask og løsningsorientert behandling av din lånesøknad. Krogsveen mottar et honorar dersom lån opprettes.
Betalingsbetingelser
Kjøpesum inkludert omkostninger, samt pantedokument tilknyttet eventuelt lån, skal være disponibelt hos megler 2 virkedager før overtagelsen.
Annen viktig informasjon
Annen viktig informasjon
Eier
Endre Tunold Rasmussen og Linn Rønelv Henrikssen
Overtakelse
Etter nærmere avtale.
Velforening
Boligen er tilknyttet Skranehagen Huseierlag.
Eiendommen har privat brøyting som dekkes av velavgiften.
Boligselgerforsikring
Selger har i forbindelse med salget tegnet boligselgerforsikring levert av Gjensidige.
Boligselgerforsikringen dekker selgers ansvar etter avhendingsloven begrenset oppad til kr 14 millioner. Dersom kjøper oppdager forhold ved eiendommen som hen mener utgjør en mangel ved eiendommen, vil Gjensidige behandle reklamasjonen på vegne av selger. Forsikringsvilkår kan fås ved henvendelse til megler.
Vedlagt salgsoppgaven følger selgers egenerklæringsskjema og tilstandsrapport. Interessenter må sette seg inn i dokumentene før bud inngis.
Boligkjøperforsikring
Innen kontraktsmøtet må kjøper ta stilling til om det ønskes å bestille Boligkjøperpakken gjennom Gjensidige. I denne gunstige pakken er boligen ferdig forsikret og inkluderer rettshjelpsforsikring, også kalt Boligkjøperforsikring. Rettshjelpsforsikring gir trygghet og tilgang på profesjonell juridisk hjelp dersom det oppdages uventede feil eller mangler det første året etter overtagelse. Forsikringsselskapet behandler i så fall ethvert mangelskrav kjøper måtte ha overfor selger.
Boligkjøperpakken inkluderer bygningsforsikring for hus og hytte, innboforsikring, flytteforsikring og dobbel rentedekning - i situasjoner hvor kjøper ikke får solgt nåværende primærbolig.
Kjøper mottar ingen særskilt faktura for Boligkjøperpakken da kostnaden det første året legges til kjøpesummen for boligen. Det gjøres oppmerksom på Krogsveen mottar et honorar for denne formidlingen.
Produktark for Boligkjøperpakken ligger vedlagt i salgsoppgaven.
Dersom ikke boligkjøperpakke ønskes kan kun rettshjelpsforsikring, også kalt boligkjøperforsikring, tegnes særskilt via megler. Rettshjelpsforsikringen varer i 5 år fra overtagelse og leveres gjennom Gjensidige. Ta kontakt med megler for ytterligere informasjon.
Selskap og privatpersoner som driver med kjøp/salg/utvikling som ledd i egen næringsvirksomhet kan ikke tegne boligkjøperpakke eller rettshjelpsforsikring.
Budgivning
Forbrukerinformasjon om budgivning er vedlagt denne salgsoppgaven og er også på vår hjemmeside Krogsveen.no. Alle bud og budforhøyelser må inngis skriftlig. I tillegg må legitimasjon være fremlagt sammen med signatur fra budgiver.
Vi oppfordrer til å gi bud elektronisk via GI BUD-knappen på eiendommens hjemmeside på Krogsveen.no. Da vil samtlige vilkår bli oppfylt.
Eventuelle forhøyelser eller endringer av budet kan bekreftes pr SMS eller på e-post. Vi oppfordrer alltid til å kontakte megler pr. telefon i tillegg da forsinkelser i SMS og e-post kan forekomme.
For at budene skal kunne bli behandlet og videreformidlet skriftlig til alle involverte parter, må alle bud ha en tilstrekkelig lang akseptfrist, jf. eiendomsmeglingsforskriften § 6-3.
Selger må også skriftlig akseptere budet før aksept kan formidles til budgiver. Akseptfrist bør derfor være på minimum 30 minutter, og budforhøyelser må derfor skje i god tid før fristens utløp.
Bud i forbrukerforhold kan uansett ikke settes med kortere frist enn kl. 12.00 første virkedag etter siste annonserte visning. I tillegg kan ikke budet ha forbehold om at det skal holdes hemmelig ovenfor øvrige interessenter. Megler har iht lov om eiendomsmegling ikke anledning til å videreformidle disse budene, og de vil dermed heller ikke bli journalført.
Etter at eiendommen er solgt vil kjøper og selger få tilsendt budjournal. Øvrige budgivere kan få utlevert kopi av budjournalen i anonymisert form.
Hvitvaskingsreglene
I henhold til lov om hvitvasking og terrorfinansiering har megler plikt til å gjennomføre kontrolltiltak overfor kunder, herunder fullmektiger. Dette innebærer bl.a. å bekrefte kunders og reelle rettighetshaveres identitet på bakgrunn av fremvist gyldig legitimasjon eller på annen godkjent måte, samt å innhente opplysninger om kundeforholdets formål og tilsiktede art.
Dersom slike kundetiltak ikke kan gjennomføres, kan megler ikke etablere kundeforholdet eller utføre transaksjonen.
Hvis kjøper ikke bidrar til gjennomføring av kundekontrollen og dette fører til at transaksjonen blir forsinket eller ikke kan gjennomføres, vil dette ansees som mislighold av avtalen og gi selger rettigheter etter avhendingslova kapittel 5. I tilfeller der selger ikke bidrar til gjennomføring av løpende kundekontroll underveis i oppdraget, er det selger som misligholder sine forpliktelser etter avtalen og gi kjøper rettigheter etter avhendingslovens kapittel 4. Partene er selv ansvarlige for eventuelle kostnader og ansvar dette kan medføre. Eiendomsmegleren eller eiendomsmeglingsforetaket kan ikke holdes ansvarlig for de konsekvenser dette vil kunne få for partene eller andre som har interesser i eiendomshandelen.
Kjøper oppfordres til å innbetale kjøpesummen som ikke kommer fra låneinstitusjon i én samlet innbetaling fra egen konto i norsk bank. Megler har plikt til å melde fra til Økokrim om eiendomshandler som fremstår som mistenkelige. Melding sendes Økokrim uten at partene varsles.
Personopplysningsloven
I henhold til personopplysningsloven gjør vi oppmerksom på at interessenter kan bli registrert for videre oppfølging.
Lovanvendelse
Generelle bestemmelser
Salgsoppgaven er basert på de opplysningene selger har gitt til megler, den bygningssakyndiges tilstandsrapport, samt opplysninger innhentet fra kommunen, Kartverket og andre tilgjengelige kilder. Det er viktig at kjøper setter seg grundig inn i alle salgsdokumentene, herunder salgsoppgave, tilstandsrapport og selgers egenerklæring. Kjøper anses kjent med forhold som er tydelig beskrevet i salgsdokumentene, og slike forhold kan ikke påberopes som mangler. Dette gjelder uavhengig av om kjøper har lest dokumentene. Alle interessenter oppfordres til å undersøke eiendommen nøye, gjerne sammen med fagkyndig før bud inngis. Kjøper som velger å kjøpe usett kan ikke gjøre gjeldende som mangel noe han burde blitt kjent med ved undersøkelsen.
Dersom det er behov for avklaringer, anbefaler vi at interessenter rådfører seg med eiendomsmegler eller egne rådgivere før det legges inn bud.
En bolig som har blitt brukt i en viss tid, har vanligvis blitt utsatt for slitasje og skader kan ha oppstått. Slik bruksslitasje må kjøper regne med, og det kan avdekkes enkelte forhold etter overtakelse som nødvendiggjør utbedringer. Normal slitasje og skader som nødvendiggjør utbedring, er innenfor hva kjøper må forvente og vil ikke utgjøre en mangel.
Kjøper og selgers rettigheter og plikter reguleres av avtalen mellom partene, samt informasjonen som har vært tilgjengelig for kjøperen i forbindelse med handelen. Avtalen utfylles av avhendingsloven, og det gjelder ulike avtalevilkår avhengig av om kjøper er forbrukerkjøper eller ikke. Dette er nærmere beskrevet nedenfor.
På grunn av ulike avtalevilkår kan selger vurdere bud fra en som ikke er forbruker, ulikt fra en forbrukers bud. Dersom kjøper ikke er forbruker, er selger sitt mulige mangelsansvar begrenset fordi eiendommen selges "som den er". Selger kan ikke ta «som den er»- forbehold overfor en forbrukerkjøper. Selv et lavere bud fra en som ikke er forbruker kan foretrekkes fordi begrensningen i mulig mangelsansvar kan ha egenverdi for selger. Selger står fritt til å forkaste eller akseptere ethvert bud, og er for eksempel ikke forpliktet til å akseptere høyeste bud.
Budgiver skal i budskjema avgi egenerklæring om budgiver er forbruker eller næringsdrivende/ person som hovedsakelig handler som ledd i næringsvirksomhet. Budgivere får informasjon dersom andre bud er inngitt av en som ikke er forbruker.
Forbrukerkjøp - definisjon
Med forbrukerkjøp menes kjøp av eiendom når kjøperen er en fysisk person som ikke hovedsakelig handler som ledd i næringsvirksomhet.
Forbruker – avtalevilkår
Eiendommen har en mangel dersom den ikke er i samsvar med kravene som følger av avtalen, eller det foreligger brudd på bestemmelsene i avhendingsloven §§ 3-2 til 3-8. Hvis eiendommen ikke er i samsvar med det kjøperen må kunne forvente ut ifra alder, type og synlig tilstand, kan det være grunnlag for mangelskrav. Det samme gjelder hvis det er holdt tilbake eller gitt uriktige opplysninger om eiendommen. Dette gjelder likevel bare dersom man kan gå ut ifra at det virket inn på avtalen at opplysningen ikke ble gitt eller at mangelskravet ikke blir rettet i tide på en tydelig måte.
Boligen kan ha en mangel etter avhendingsloven § 3-3 andre ledd, dersom det er avvik mellom opplyst og faktisk innvendig areal, forutsatt at avviket er på 2% eller mer og minimum 1 kvm.
Ved beregning av et eventuelt prisavslag eller erstatning må kjøper selv dekke tap/kostnader opptil et beløp på kr 10 000 (egenandel).
Ikke-forbruker (næringsdrivende) – definisjon
Hvis kjøper er en juridisk person, eller en fysisk person som hovedsakelig handler som ledd i næringsvirksomhet, vil kjøpet ikke anses som et forbrukerkjøp.
Ikke-forbruker – avtalevilkår
Eiendommen har en mangel dersom den ikke er i samsvar med kravene som følger av avtalen.
Eiendommen selges «som den er», og selgers ansvar utover det konkret avtalte er da begrenset etter avhendingsloven § 3-9, første ledd andre setning.
Avhendingsloven § 3-3 andre ledd fravikes, og hvorvidt boligens arealsvikt utgjør en mangel vurderes etter avhendingsloven § 3-8.
Informasjon om kjøpers undersøkelsesplikt, herunder oppfordringen om å undersøke eiendommen nøye, gjelder også for kjøpere som ikke anses som forbrukere.
Det forutsettes at hjemmel overføres til kjøper. Hvis kjøper ikke ønsker hjemmelsoverføring av eiendommen, må det tas forbehold om dette i budet.
Meglers vederlag
Meglers vederlag betales av selger og er avtalt til:
Vederlag: 1,00 % av salgssummen inkl. eventuell fellesgjeld. Minimumsprovisjon er kr 60 000,00
Vederlag:
Fotopakke inkl rådgivning stylist: kr 6 900,00
Kontroll av hjemmel og heftelser: kr 3 900,00
Markedsføringspakke Kampanje: kr 19 900,00
Oppgjør: kr 8 900,00
Salgsoppgaver vanlige: kr 5 500,00
Tilrettelegging: kr 16 990,00
Visninger pr stk / Overtagelse: kr 3 900,00
Utlegg:
Innhenting av offentlig opplysninger: kr 3 600,00
Tinglysing sikring: kr 545,00
Andre utgifter:
AX tilstandsrapport rekkehus/tomannsbolig: kr 17 500,00
Boligselgerforsikring Gjensidige Eiet - regnes av prisantydning: kr 34 260,00
Markedsføring, helside i Hus og Hjem: kr 5 000,00
Vi er opptatt av verdiskapning, og har knyttet til oss samarbeidspartnere som skal sikre våre kunder de beste produkter og tjenester;
• I forbindelse med forberedelse av salget, innhenter vi informasjon om eiendommen hovedsakelig fra vår samarbeidspartner Amibita.
• Gjensidige leverer boligselgerforsikring og tilbyr bygningsforsikring
• Boligkjøperforsikring leveres av Hiscox og med Sedgwick som skadebehandler, og er formidlet gjennom Gjensidige.
• BN bank tilbyr finansieringsløsninger
• Vår avdeling Krogsveen Pluss tilbyr flyttetjenester som utvask, visningsvask, lager, tømming og transport av flyttelass, i tillegg til å formidle kontakt med Flip for overflateoppussing.
• I forbindelse med overtagelse av eiendommen tilbyr Overo avtale om strøm, alarm og bredbånd.
• Krogsveen er, sammen med øvrige bransjeaktører, medeier i Bomega AS som tilbyr den digitale annonseringsplattformen Hjem.
Opplysninger om oppdraget
Oppdragsnummer 79-0021/26
Eiendomsmegler Krogsveen AS, avd. Bergen Sentrum
Nøstetorget 5, 5011, BERGEN
950 007 613
Oppdragets KR-kode KR79.2621
Dato
Sist oppdatert: 20. april 2026 kl. 22:33
Dokumenter
Dokumenter
PDF – 680 KB
PDF – 964 KB
PDF – 312 KB
PDF – 29 KB
PDF – 127 KB
PDF – 392 KB
Område
Legg til steder som er viktige for deg
Visning
Det er ingen planlagte visninger. Meld deg på for å avtale en tid som passer.
Lurer du på noe?
Unngå doble boligrenter
Vi tilbyr gunstig forsikring.
Vurderer du utleie?
Få et tilbud fra Utleie KrogsveenHva koster lånet?
Sjekk estimert lånekostnadVil du varsles om lignende boliger?
Ved å lagre ditt boligsøk hos oss får du beskjed når vi har en bolig som ligner denne, før den legges ut på markedet!

















































