Dverdalsveien 25
5 590 000 kr
170 m²
4 soverom
Solgt
Dverdalsåsen/Unneberg
BUD INNKOMMET -Ny bolig på 170 kvm med 3 bad i tillegg til separat vaskerom og ekstra stue/praktikantdel - Carport - Lave kjøpsomkost.
Prisantydning
5 590 000 krOmkostninger
86 965 krTotalpris
5 676 965 kr
Pris
Bruksareal
170 m²BRA-I (internt bruksareal)
170 m²
Areal
Byggeår
2025Soverom
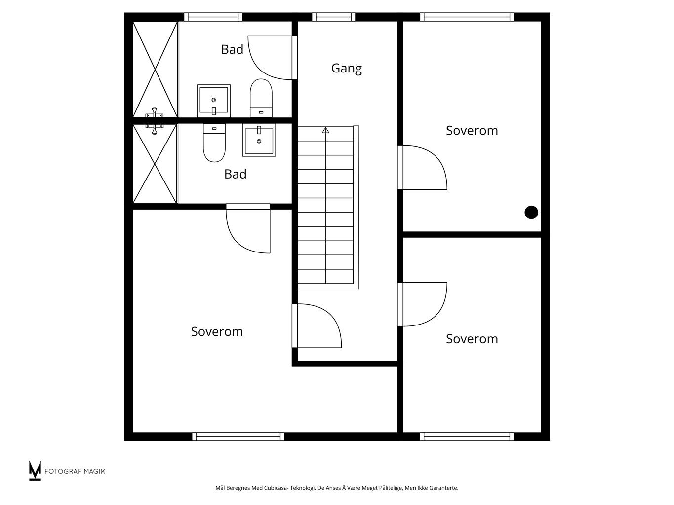
4 soveromBad
3 badTomteareal
320 m² (eiet)Type
Enebolig i kjedeEierform
EietFasiliteter
Balkong/TerrasseEnergimerke
Oransje B
Nøkkelinfo
Unngå doble boligrenter
Vi tilbyr gunstig forsikring.
Vurderer du utleie?
Få et tilbud fra Utleie KrogsveenHva koster lånet?
Sjekk estimert lånekostnadBeskrivelse
Kort om eiendommen
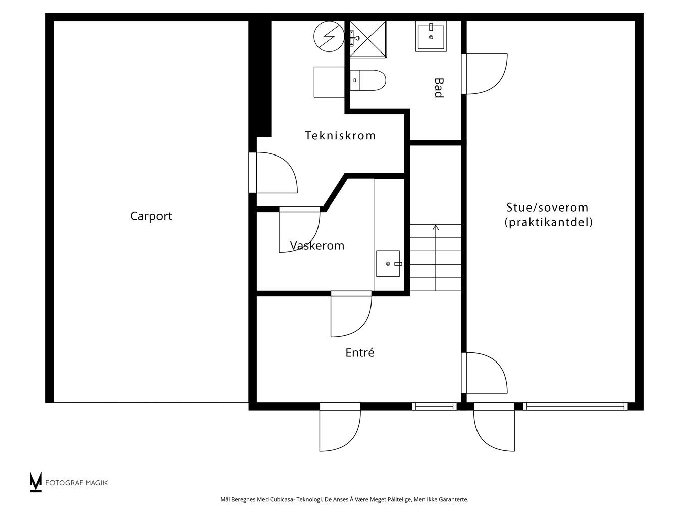
Ny enebolig med 3(4) soverom i Sandefjord med kort vei til sentrum og barneskole. Hovedsoverom har privat bad, underetasjen har egen praktikantdel. Vaskerom med direkte adkomst fra carport.
Her får du en moderne, innflyttingsklar familiebolig med høy komfort og fleksibel planløsning, til en pris som er betydelig lavere enn tilsvarende nybygg. Hele 170 kvm fordelt på 3 bad, separat vaskerom og romslige oppholdsarealer gir en kombinasjon av størrelse, standard og verdi som sjelden dukker opp i dagens marked.
Et ekstra pluss er de lave kjøpsomkostningene: du betaler kun dokumentavgift av tomteverdien, noe som gjør dette til et svært gunstig kjøp sammenlignet med bruktboliger i samme prisklasse.
Nytt boligfelt i Sandefjord med et særdeles barnevennlig og trygt bomiljø.
Område
Legg til steder som er viktige for deg
På flyttefot? Tenk kjøp og salg samtidig.
Få din egen rådgiver gjennom hele kjøps- og salgsprosessen. Det starter med en verdivurdering.
Unngå doble boligrenter
Vi tilbyr gunstig forsikring.
Vurderer du utleie?
Få et tilbud fra Utleie KrogsveenHva koster lånet?
Sjekk estimert lånekostnadVil du varsles om lignende boliger?
Ved å lagre ditt boligsøk hos oss får du beskjed når vi har en bolig som ligner denne, før den legges ut på markedet!




