Stadionveien 3A
2 650 000 kr
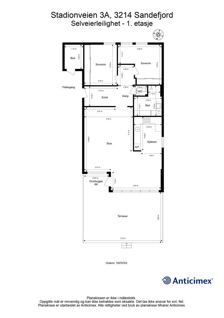
93 m²
2 soverom
Solgt

Bugården
BUD INNKOMMET - Romslig eierleilighet på 93 kvm med 2 soverom, luftig planløsning og solrik balkong i attraktivt område
Prisantydning
2 650 000 krOmkostninger
77 290 krTotalpris
2 727 290 kr
Pris
Bruksareal
97 m²BRA-I (internt bruksareal)
93 m²BRA-E (eksternt bruksareal)
4 m²TBA (terrasse-balkongareal)
38 m²
Areal
Etasje
1Byggeår
1977Soverom
2 soveromBad
1 badType
EierleilighetEierform
EierseksjonFasiliteter
Balkong/TerrasseFellesutgifter
3 975 krEnergimerke
Rød F
Nøkkelinfo
Unngå doble boligrenter
Vi tilbyr gunstig forsikring.
Vurderer du utleie?
Få et tilbud fra Utleie KrogsveenHva koster lånet?
Sjekk estimert lånekostnadBeskrivelse
Kort om eiendommen
Lys og romslig eierleilighet på 93 kvm med 2 soverom, praktisk planløsning og stor balkong med gode solforhold.
Leiligheten ligger i et populært og barnevennlig område på Bugården, og ved utgangsdøren starter kanskje Sandefjords mest populære turområde, Bugårdsparken, med flotte stier, grøntområder og rekreasjonsmuligheter for både små og store. Her bor man rolig, samtidig som det er kort vei til barnehager, skoler, butikker og Sandefjord sentrum.
Boligen har et visst oppussingsbehov, noe som gir en unik mulighet til å sette eget preg, modernisere etter egen stil og skape et hjem som passer egne ønsker og behov.
En sjelden mulighet til å kombinere sentral beliggenhet, gode solforhold og et hjem med potensial.
Velkommen til visning.
Område
Legg til steder som er viktige for deg
På flyttefot? Tenk kjøp og salg samtidig.
Få din egen rådgiver gjennom hele kjøps- og salgsprosessen. Det starter med en verdivurdering.
Unngå doble boligrenter
Vi tilbyr gunstig forsikring.
Vurderer du utleie?
Få et tilbud fra Utleie KrogsveenHva koster lånet?
Sjekk estimert lånekostnadVil du varsles om lignende boliger?
Ved å lagre ditt boligsøk hos oss får du beskjed når vi har en bolig som ligner denne, før den legges ut på markedet!

