Garmovegen 8D
5 890 000 kr
126 m²
3 soverom
Komplett salgsoppgave

Vestvang/Eidsvoll
Ny og meget tiltalende enebolig fra 2025 med høy standard, moderne preg og gjennomtenkte detaljer. Flytt rett inn!
Prisantydning
5 890 000 krOmkostninger
168 240 krTotalpris
6 058 240 kr
Pris
Bruksareal
150 m²BRA-I (internt bruksareal)
126 m²BRA-E (eksternt bruksareal)
24 m²TBA (terrasse-balkongareal)
46 m²
Areal
Etasje
2Byggeår
2025Soverom
3 soveromBad
1 badTomteareal
435 m² (eiet)Type
Enebolig - FrittliggendeEierform
EietFasiliteter
Garasje/P-plassEnergimerke
Oransje C
Nøkkelinfo
Unngå doble boligrenter
Vi tilbyr gunstig forsikring.
Vurderer du utleie?
Få et tilbud fra Utleie KrogsveenHva koster lånet?
Sjekk estimert lånekostnadBeskrivelse
Kort om eiendommen
Garmovegen 8D er en moderne enebolig over 2 plan beliggende på Garmotunet i Eidsvoll. Boligen er nylig oppført og fremstår som ny . Her kan du flytte rett inn og nyte et hjem med lyse, åpne løsninger og smakfulle materialvalg. Perfekt for deg som ønsker det lille ekstra i hverdagen. Inneholder åpen stue/kjøkkenløsning, 3 romslige soverom, tv-stue, bad, wc, vaskerom. Fra stuen har du utgang til terrasse, og fra det ene soverommet har du utgang til en flott takterrasse. Carport med mye lagringsplass. På fellesområdet finner du lekeplass for barna og flotte uteplasser. Her bor du i et attraktivt område med kort gangavstand til skole, barnehage og dagligvare. Det er få minutter kjøring enten du tar turen til Råholt eller Sundet. Velkommen til visning.
Innhold og byggemåte
Innhold og byggemåte
Eiendommen
Garmovegen 8D, 2080 EIDSVOLL
Kommunenummer 3240, gårdsnummer 61, bruksnummer 55, seksjonsnummer 4, ideell andel 1/1
Innhold
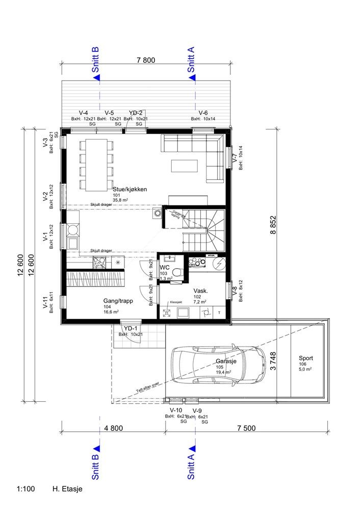
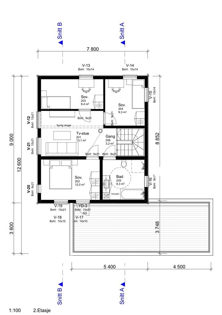
Totalt bruksareal BRA: 150 kvm
BRA-i:
1. etasje 63 kvm: Gang, vaskerom, toalett, stue/kjøkken
2. etasje 63 kvm: Bad, 3 soverom, tv-stue og gang
BRA-e:
Carport:
1. etasje 24 kvm: Carport med mye lagringsplass.
Åpent areal:
1. etasje 23 kvm: Terrasse
2. etasje 23 kvm: Takterrasse
Standard
Velkommen til Garmovegen 8D. En moderne enebolig over to plan beliggende på Garmotunet i Eidsvoll. Boligen er nylig oppført og fremstår som ny. Den er innbydende og lekker og bør passe perfekt for de fleste familier. Her kan du flytte rett inn og nyte et hjem med lyse, åpne løsninger og smakfulle materialvalg. Supert for deg som ønsker det lille ekstra i hverdagen. Inneholder åpen stue/kjøkkenløsning, 3 romslige soverom, tv-stue, bad, wc, vaskerom. Parkering i carport og på egen tomt. Her bor du i et attraktivt område med kort gangavstand til skole, barnehage og dagligvare.
Kjøkken har åpen løsning mot stue. Det er funksjonabelt og tidløst og du har både god skap og benkeplass. Kjøkkeninnredning fra Sigdal med slette fronter, integrert hvitevarer som kjøleskap m/frysedel og komfyr med nedfelt keramisk platetopp og ventilator. God skap- og benkeplass. Nedfelt oppvaskkum med et-greps armatur. Stue/kjøkken har lyse panelplater på vegg, parkett på gulv type Maxwood lodge ek natur vit, takessplater i himling. Store vindusflater og rikelig med dagslys. Utgang til hage fra stuen. Oppvarming med peis i stue
Bad i 2. etg. har vegghengt servantskap med heldekkende servant og ett-greps armatur, vegghengt toalett, dusjhjørne, flislagte vegger og gulv. Takessplater i himling. Varmekabler i gulv. Det er stilrent og romslig og oppfyller kravene til den kresne.
Boligen har tre gode og romslige soverom i 2. etg. Hovedsoverommet har direkte utgang til takterrasse på ca 23 kvm. Alle har gode lysforhold.
Loftsstuen i 2.etasje er genial for en barnefamilie. En stue nr 2 som kan brukes etter behov om det er tv-stue, lekerom eller kontor for de voksne.
Øvrige rom: Hvite, slette innerdører. Gulvflater belagt med parkett type Maxwood lodge ek natur hvit. Panelplater på vegger. Taksessplater i tak. Balansert ventilasjon. Det er varmekabler på bad i 2. etg og vaskerom og gang i 1. etg.
Mye lagringsplass i bakkant av carport.
Løsøre og tilbehør
Vi viser til liste fra Norges Eiendomsmeglerforbund som gjelder fra 01.01.2020 angående løsøre og tilbehør.
Oppvarming
Peis i stue/kjøkken. Det er varmekabler i gang og vaskerom i 1. etg. og bad i 2. etg.
Ferdigattest/brukstillatelse
Det foreligger ikke ferdigattest på eiendommen, men midlertidig brukstillatelse ble gitt 01.09.25. Tillatelsen er gitt på følgende vilkår: Midlertidig brukstillatelse for del av tiltaket – For fem eneboliger, bolig 4, 6, 7, 8 og 9 gis i samsvar med plan- og bygningsloven § 21-10 og byggesaksforskriften (SAK10) § 8-1. Gjenstående arbeid må ferdigstilles innen 30.06.2026.
Ifølge ansvarlig søker er det registrert mindre vesentlig mangler: Støyskjermen er ikke ferdigstilt, skjermen ferdigstilles i september/oktober. Internvegen er klargjort for asfaltering med bærelag av grus. Det søkes ikke midlertidig brukstillatelse for bolig 1-3, 5 og 10-12. Kommunen påpeker at det må være en tydeligere markering av lekearealet som er vist på utomhusplanen i syd, slik at det blir et tydeligere skille mellom privat hage/fellesareal lek. Det er innsendt revidert tegning av bolig 8, som er speilvendt. Det er opplyst i søknaden at det skal søkes om ferdigattest 30.06.2026. Gjenstående arbeid må ferdigstilles innen denne dato. Dersom gjenstående arbeider ikke blir gjennomført innen fristen, skal kommunen gi pålegg om ferdigstillelse, som kan gjennomføres ved sanksjoner etter kapittel 32, se plan- og bygningsloven § 21-10 tredje ledd.
Sluttrapport for avfallsbehandling skal innsendes.
Tinglyste heftelser og rettigheter
3240/61/55/6:
21.10.1950 - Dokumentnr: 3248 - Erklæring/avtale
Bestemmelse om spillvann/drensvann/overvann/stikkrenner m.m.
for bnr. 32.
Overført fra gnr 152 bnr 12
Overført fra: Knr:3240 Gnr:61 Bnr:55
Gjelder denne registerenheten med flere
22.02.1979 - Dokumentnr: 1602 - Erklæring/avtale
Rettighetshaver: Televerket
Bestemmelser om grøfter m.v.
Overført fra: Knr:3240 Gnr:61 Bnr:55
Gjelder denne registerenheten med flere
29.07.1986 - Dokumentnr: 7471 - Best. om vann/kloakkledn.
Rett for kommunen til å anlegge og vedlikeholde ledninger m.m.
Overført fra: Knr:3240 Gnr:61 Bnr:55
Gjelder denne registerenheten med flere
06.08.1901 - Dokumentnr: 900047 - Registrering av grunn
Denne matrikkelenhet opprettet fra:
Knr:3240 Gnr:59 Bnr:5
Hovedbruket 61/1 er sammenføyd med 59/5
06.07.1944 - Dokumentnr: 972 - Registrering av grunn
Utskilt fra denne matrikkelenhet:
Knr:0237 Gnr:152 Bnr:24
Hovedbruket 152/12 er sammenføyd med 61/14
31.10.1949 - Dokumentnr: 3090 - Registrering av grunn
Utskilt fra denne matrikkelenhet:
Knr:3240 Gnr:152 Bnr:32
Hovedbruket 152/12 er sammenføyd med 61/14
31.10.1949 - Dokumentnr: 3091 - Registrering av grunn
Utskilt fra denne matrikkelenhet:
Knr:3240 Gnr:152 Bnr:33
Hovedbruket 152/12 er sammenføyd med 61/14
21.08.1954 - Dokumentnr: 2808 - Registrering av grunn
Utskilt fra denne matrikkelenhet:
Knr:3240 Gnr:61 Bnr:49
02.04.1976 - Dokumentnr: 911625 - Sammenslått med denne matrikkelenhet:
Gnr. 152/12.
09.12.1991 - Dokumentnr: 9049 - Registrering av grunn
Utskilt fra denne matrikkelenhet:
Knr:0237 Gnr:61 Bnr:136
09.12.1991 - Dokumentnr: 9075 - Målebrev
Areal: 4576,0 m2
01.01.2020 - Dokumentnr: 1780944 - Omnummerering ved kommuneendring
Tidligere: Knr:0237 Gnr:61 Bnr:14
01.01.2024 - Dokumentnr: 236259 - Omnummerering ved kommuneendring
Tidligere: Knr:3035 Gnr:61 Bnr:14
18.10.1993 - Dokumentnr: 7248 - Bruksrett
Rettighet hefter i: Knr:3240 Gnr:61 Bnr:6
Over vegparsell
21.10.1950 - Dokumentnr: 3248 - Erklæring/avtale
Bestemmelse om spillvann/drensvann/overvann/stikkrenner m.m.
for bnr. 32.
Overført fra gnr 152 bnr 12
Overført fra: Knr:3240 Gnr:61 Bnr:55
Gjelder denne registerenheten med flere
08.08.1955 - Dokumentnr: 2581 - Bestemmelse om veg
Vegvesenets betingelser vedtatt
Overført fra: Knr:3240 Gnr:61 Bnr:55
Gjelder denne registerenheten med flere
26.11.1964 - Dokumentnr: 5611 - Erklæring/avtale
Bestemmelse om samvirke vedkommende vertikalt delt bolig
Sameiet kan ikke oppløses og avtalen ikke slettes uten
samtykke av Husbanken.
Med flere bestemmelser
Overført fra: Knr:3240 Gnr:61 Bnr:55
Gjelder denne registerenheten med flere
22.02.1979 - Dokumentnr: 1602 - Erklæring/avtale
Rettighetshaver: Televerket
Bestemmelser om grøfter m.v.
Overført fra: Knr:3240 Gnr:61 Bnr:55
Gjelder denne registerenheten med flere
22.02.1979 - Dokumentnr: 1603 - Erklæring/avtale
Rettighetshaver: Televerket
Bestemmelser om grøfter m.v.
Overført fra: Knr:3240 Gnr:61 Bnr:55
Gjelder denne registerenheten med flere
29.11.1983 - Dokumentnr: 10696 - Bestemmelse om vannledn.
Med flere bestemmelser
Overført fra: Knr:3240 Gnr:61 Bnr:55
Gjelder denne registerenheten med flere
29.07.1986 - Dokumentnr: 7471 - Best. om vann/kloakkledn.
Rett for kommunen til å anlegge og vedlikeholde ledninger m.m.
Overført fra: Knr:3240 Gnr:61 Bnr:55
Gjelder denne registerenheten med flere
24.02.1989 - Dokumentnr: 2033 - Erklæring/avtale
Rettighetshaver: Knr:3240 Gnr:59 Bnr:59
Bestemmelse om vann/kloakkledning
Bestemmelse om veg
Overført fra: Knr:3240 Gnr:61 Bnr:55
Gjelder denne registerenheten med flere
19.03.1990 - Dokumentnr: 2844 - Best. om vann/kloakkledn.
Bestemmelse om anlegg og vedlikehold av ledninger m.m.
Rettighetshaver
Parsell fradelt fra 59/59.
Begrensing i råderett
Overført fra: Knr:3240 Gnr:61 Bnr:55
Gjelder denne registerenheten med flere
02.04.1990 - Dokumentnr: 3319 - Best. om adkomstrett
Rettighetshaver
Evt. fremtidige tomter på d.e.
Uten senere refusjonskrav.
Overført fra: Knr:3240 Gnr:61 Bnr:55
Gjelder denne registerenheten med flere
02.08.1990 - Dokumentnr: 6875 - Skjønn
Ekspropriasjonsskjønn nr. 22/85 B vedr. gang-/sykkelveg
langs E-6. Best. om rett til adkomstveg for gnr. 61/55.
Overført fra: Knr:3240 Gnr:61 Bnr:55
Gjelder denne registerenheten med flere
22.08.1990 - Dokumentnr: 7508 - Erklæring/avtale
Best. om at det blir utbetalt erstatning med kr. 60.000,-
for næringsulemper. Avgitt av Eidsvoll kommune.
Med flere bestemmelser
Overført fra: Knr:3240 Gnr:61 Bnr:55
Gjelder denne registerenheten med flere
22.01.1992 - Dokumentnr: 553 - Bestemmelse om veg
Rettighetshaver: Knr:3240 Gnr:61 Bnr:55
Bestemmelse om bruksrett-tillatelse på vegparsell
Overført fra: Knr:3240 Gnr:61 Bnr:55
Gjelder denne registerenheten med flere
06.11.1992 - Dokumentnr: 8381 - Erklæring/avtale
Rettighetshaver: Knr:3240 Gnr:59 Bnr:77
Bestemmelse om vannledning og avløpsledning og til å foreta
reparasjoner m.v.
Overført fra: Knr:3240 Gnr:61 Bnr:55
Gjelder denne registerenheten med flere
05.08.2022 - Dokumentnr: 860028 - Bestemmelse om vann/kloakk
Rettighetshaver: Knr:3240 Gnr:59 Bnr:59
Kan ikke slettes uten samtykke fra: Eidsvoll Kommune
Org.nr: 964 950 113
Overført fra: Knr:3240 Gnr:61 Bnr:55
Gjelder denne registerenheten med flere
13.11.2024 - Dokumentnr: 2234039 - Bestemmelse om veg
Rettighetshaver: Knr:3240 Gnr:59 Bnr:20
Rettighetshaver: Knr:3240 Gnr:59 Bnr:77
Rettighetshaver: Knr:3240 Gnr:59 Bnr:82
Kan ikke slettes uten samtykke fra: Eidsvoll Kommune
Org.nr: 964 950 113
Overført fra: Knr:3240 Gnr:61 Bnr:55
Gjelder denne registerenheten med flere
20.08.2025 - Dokumentnr: 972904 - Bestemmelse om veg
Rettighetshaver: Knr:3240 Gnr:61 Bnr:49
Kan ikke slettes uten samtykke fra: Eidsvoll Kommune
Org.nr: 964 950 113
Overført fra: Knr:3240 Gnr:61 Bnr:55
Gjelder denne registerenheten med flere
Eventuell adgang til utleie
Eiendommen har ikke separat utleieenhet. Det vil normalt være anledning til utleie av hele eiendommen eller enkeltrom, såfremt utleiearealet er bygningsmessig godkjent for varig opphold og har forsvarlige radonnivåer.
Diverse
- Boligen er ikke oppmålt og arealene som er oppgitt er basert på godkjente byggetegninger. Noe avvik på oppgitte arealer må derfor kunne påregnes.
Tilbud av produkter og tjenester fra våre samarbeidspartnere
Vi er opptatt av verdiskapning, og har knyttet til oss samarbeidspartnere som skal sikre våre kunder de beste produkter og tjenester;
• Gjensidige leverer boligselgerforsikring og tilbyr bygningsforsikring
• Boligkjøperforsikring leveres av Hiscox og med Sedgwick som skadebehandler, og er formidlet gjennom Gjensidige.
• BN bank tilbyr finansieringsløsninger
• Vår avdeling Krogsveen Pluss tilbyr flyttetjenester som utvask, visningsvask, lager, tømming og transport av flyttelass, i tillegg til å formidle kontakt med Flip for overflateoppussing.
• I forbindelse med overtagelse av eiendommen tilbyr Overo avtale om strøm, alarm og bredbånd.
• Krogsveen er, sammen med øvrige bransjeaktører, medeier i den digitale annonseringsplattformen Hjem.
Beliggenhet og tomteforhold
Beliggenhet og tomteforhold
Beliggenhet
Boligen ligger på et helt nytt boområde, men samtidig ligger det tett på et etablert felt med noe eldre bebyggelse. Beliggenheten er sentralt i Eidsvoll med nærhet til butikk, skole og friområde/turmuligheter sommer som vinter. Kort vei til Sundet som er sentrum av Eidsvoll. Sundet har en flott beliggenhet langs Vorma med en rekke fasiliteter og gode kollektivtilbud. Det er bare en kort spasertur til idylliske omgivelser på Eidsvoll bygdetun. Det er også en av kommunens flotteste turmuligheter i Åsleia og Mistberget. Mistberget, som ligger 663 moh, er den nest høyeste toppen i Eidsvoll kommune. Kort vei til Eidsvoll Turn's idrettsanlegg som har fotballbane om sommeren og skøytebane om vinteren. Eidsvollsbygningen kun få km fra boligen med kafè og fine turstier. Flotte bademuligheter ved Hurdalssjøen i Hurdal. Råholt Bad med 25 meters basseng med 6 baner, terapibasseng, kafeteria, stupetårn med høyde 5 meter, vannsklie med tidtaking, kaldkulp, plaskebasseng for barn, boblebad, badstue og steambad. For båtfolket er det kort vei til Mjøsa og idylliske Vorma med gjestehavner og båtforeninger. Områdene har også grønne lunger og fine, barnevennlige sandstrender. Kommunen har milevis med spennende skogsveier, skiløyper og sykkelstier med fine turmuligheter i umiddelbar nærhet. Hurdal skisenter med flotte nedfarter ligger kun en liten kjøretur unna. Skal du til Gardermoen, Jessheim eller Oslo er det rett ned på E6 og strake veien innover, enklere blir det ikke.
Adkomst
Det vil bli skiltet med Krogsveen visningsskilt ved fellesvisninger.
Barnehager, skoler og fritid
Informasjon om tilhørende skolekretser er hentet fra Prognosesenteret som dataleverandør, og tilhørigheten kan årlig endres av kommunen. Dersom skole- og barnehagetilbud er av betydning for kjøpet, ber vi om at det rettes en særskilt henvendelse til kommunen/bydelsadministrasjonen for oppdatert informasjon.
Beskrivelse av tomt
Eiertomt på 435 kvm. Flat, opparbeidet tomt med plen og asfaltert gårdsplass. Her får du en solrik og lettstelt tomt med gode muligheter for videre utvikling.
Vei, vann og avløp
Eiendommen har adkomst via privat vei med felles vedlikeholdsansvar.
Eiendommen er tilknyttet kommunalt ledningsnett via private stikkledninger. Eier er selv ansvarlig for private stikkledninger til boligen.
Regulerings-og arealplaner
Eiendommen er regulert til bolig i henhold til reguleringsplan for "Gang-/sykkelveg Siggerudtoppen - Hammerstad" datert 05.02.1980, sist rev. 26.02.1991 med tilhørende reguleringsbestemmelser datert 01.12.1982.
Utsnitt av plan med tilhørende bestemmelser kan fås ved henvendelse til megler.
Økonomi
Økonomi
Kommunale utgifter
Kommunale avgifter og eiendomsskatt er ikke fastsatt av kommunen, og det tas derfor forbehold om størrelsen på de kommunale avgiftene og eiendomsskatten.
Felleskostnadene er ikke endelig fastsatt, dette vil gjøres i forbindelse med stiftelsesmøte for sameiet.
Foreløpige estimerte månedlige felleskostnader kr 1.900,-.
Selger har ikke bebodd eiendommen og har således ikke kjennskap til øvrige løpende utgifter for eiendommen.
Sameiets navn er Garmotunet. Eiendomsretten til fellesarealet tilhører sameiet, herunder interne veger, gjesteparkering og lekeplass . Gnr. 61 bnr. 55 i Eidsvoll kommune tilhører eiendommene som omfattes av sameiet. Sameiet har i tillegg bruksrett og vedlikeholdsansvar for vegareal over gnr. 61 bnr. 6, gnr. 59 bnr 59 og 60, i henhold til reguleringsplan og situasjonsplan, selv om disse arealene eies av tredjepart.
Sameiets formål er å drifte og vedlikeholde fellesarealer, herunder interne veger, gjesteparkering og lekeplass på gnr. 61 bnr. 55 i Eidsvoll kommune.
Formuesverdi
Ved hjelp av Skatteetatens kalkulator er formuesverdien for 2025 beregnet til kr 1 149 470,- når eier er fast bosatt på eiendommen.(primærbolig).
Formuesverdien er hentet fra Skatteetatens kalkulator da boligen er nyoppført.
Ved eventuell øvrig bruk av eiendommen (f.eks. fritidsbolig, pendlerbolig, utleieobjekt) var formuesverdien for 2025 kr 4 597 880,-.
Formuesverdien justeres normalt årlig. Se skatteetaten.no for mer informasjon om fastsettelse av formuesverdien.
Omkostninger
5 890 000,00 Prisantydning
Omkostninger
147 250,00 Dokumentavgift til staten (2,5% av kjøpesum)
19 900,00 Gjensidige Boligkjøperpakke (valgfri)
545,00 Tinglysing panterettsdokument
545,00 Tinglysing skjøte
--------------------------------------------------------
168 240,00 Omkostninger totalt
--------------------------------------------------------
6 058 240,00 Totalpris inkl. omkostninger
--------------------------------------------------------
Betalingsbetingelser
Kjøpesum inkludert omkostninger, samt pantedokument tilknyttet eventuelt lån, skal være disponibelt hos megler 2 virkedager før overtagelsen.
Annen viktig informasjon
Annen viktig informasjon
Eier
Martin Vestreng
Overtakelse
Etter nærmere avtale.
Boligselgerforsikring
Det gjøres oppmerksom på at selger ikke har tegnet boligselgerforsikring som dekker selgers ansvar etter avhendingsloven. Likevel foreligger selgers egenerklæring som interessenter må sette seg inn i før bud inngis. Eventuelle reklamasjoner må rettes direkte til utbygger/selger.
Boligkjøperforsikring
Innen kontraktsmøtet må kjøper ta stilling til om det ønskes å bestille Boligkjøperpakken gjennom Gjensidige. I denne gunstige pakken er boligen ferdig forsikret og inkluderer rettshjelpsforsikring, også kalt Boligkjøperforsikring. Rettshjelpsforsikring gir trygghet og tilgang på profesjonell juridisk hjelp dersom det oppdages uventede feil eller mangler det første året etter overtagelse. Forsikringsselskapet behandler i så fall ethvert mangelskrav kjøper måtte ha overfor selger.
Boligkjøperpakken inkluderer bygningsforsikring for hus og hytte, innboforsikring, flytteforsikring og dobbel rentedekning - i situasjoner hvor kjøper ikke får solgt nåværende primærbolig.
Kjøper mottar ingen særskilt faktura for Boligkjøperpakken da kostnaden det første året legges til kjøpesummen for boligen. Det gjøres oppmerksom på Krogsveen mottar et honorar for denne formidlingen.
Produktark for Boligkjøperpakken ligger vedlagt i salgsoppgaven.
Dersom ikke boligkjøperpakke ønskes kan kun rettshjelpsforsikring, også kalt boligkjøperforsikring, tegnes særskilt via megler. Rettshjelpsforsikringen varer i 5 år fra overtagelse og leveres gjennom Gjensidige. Ta kontakt med megler for ytterligere informasjon.
Selskap og privatpersoner som driver med kjøp/salg/utvikling som ledd i egen næringsvirksomhet kan ikke tegne boligkjøperpakke eller rettshjelpsforsikring.
Budgivning
Forbrukerinformasjon om budgivning er vedlagt denne salgsoppgaven og er også på vår hjemmeside Krogsveen.no. Alle bud og budforhøyelser må inngis skriftlig. I tillegg må legitimasjon være fremlagt sammen med signatur fra budgiver.
Vi oppfordrer til å gi bud elektronisk via GI BUD-knappen på eiendommens hjemmeside på Krogsveen.no. Da vil samtlige vilkår bli oppfylt.
Eventuelle forhøyelser eller endringer av budet kan bekreftes pr SMS eller på e-post. Vi oppfordrer alltid til å kontakte megler pr. telefon i tillegg da forsinkelser i SMS og e-post kan forekomme.
For at budene skal kunne bli behandlet og videreformidlet skriftlig til alle involverte parter, må alle bud ha en tilstrekkelig lang akseptfrist, jf. eiendomsmeglingsforskriften § 6-3.
Selger må også skriftlig akseptere budet før aksept kan formidles til budgiver. Akseptfrist bør derfor være på minimum 30 minutter, og budforhøyelser må derfor skje i god tid før fristens utløp.
Bud i forbrukerforhold kan uansett ikke settes med kortere frist enn kl. 12.00 første virkedag etter siste annonserte visning. I tillegg kan ikke budet ha forbehold om at det skal holdes hemmelig ovenfor øvrige interessenter. Megler har iht lov om eiendomsmegling ikke anledning til å videreformidle disse budene, og de vil dermed heller ikke bli journalført.
Etter at eiendommen er solgt vil kjøper og selger få tilsendt budjournal. Øvrige budgivere kan få utlevert kopi av budjournalen i anonymisert form.
Hvitvaskingsreglene
I henhold til lov om hvitvasking og terrorfinansiering har megler plikt til å gjennomføre kontrolltiltak overfor kunder, herunder fullmektiger. Dette innebærer bl.a. å bekrefte kunders og reelle rettighetshaveres identitet på bakgrunn av fremvist gyldig legitimasjon eller på annen godkjent måte, samt å innhente opplysninger om kundeforholdets formål og tilsiktede art.
Dersom slike kundetiltak ikke kan gjennomføres, kan megler ikke etablere kundeforholdet eller utføre transaksjonen.
Hvis kjøper ikke bidrar til gjennomføring av kundekontrollen og dette fører til at transaksjonen blir forsinket eller ikke kan gjennomføres, vil dette ansees som mislighold av avtalen og gi selger rettigheter etter avhendingslova kapittel 5. I tilfeller der selger ikke bidrar til gjennomføring av løpende kundekontroll underveis i oppdraget, er det selger som misligholder sine forpliktelser etter avtalen og gi kjøper rettigheter etter avhendingslovens kapittel 4. Partene er selv ansvarlige for eventuelle kostnader og ansvar dette kan medføre. Eiendomsmegleren eller eiendomsmeglingsforetaket kan ikke holdes ansvarlig for de konsekvenser dette vil kunne få for partene eller andre som har interesser i eiendomshandelen.
Kjøper oppfordres til å innbetale kjøpesummen som ikke kommer fra låneinstitusjon i én samlet innbetaling fra egen konto i norsk bank. Megler har plikt til å melde fra til Økokrim om eiendomshandler som fremstår som mistenkelige. Melding sendes Økokrim uten at partene varsles.
Personopplysningsloven
I henhold til personopplysningsloven gjør vi oppmerksom på at interessenter kan bli registrert for videre oppfølging.
Lovanvendelse
Eiendommen er en nyoppført bolig som selges innen 6 måneder etter fullføring. Boligen selges etter avhendingslovens bestemmelser. Selger må stille garanti etter bustadoppf. § 12 dersom avtalen er gjort som ledd i selgers næringsvirksomhet og kjøper er forbruker jf. avhendingslova §2-11 jf. buofl. §12.
Generelle bestemmelser
Salgsoppgaven er basert på de opplysningene selger har gitt til megler og opplysninger innhentet fra kommunen, Kartverket og andre tilgjengelige kilder. Det er viktig at kjøper setter seg grundig inn i alle salgsdokumentene, herunder salgsoppgave og selgers egenerklæring. Kjøper anses kjent med forhold som er tydelig beskrevet i salgsdokumentene, og slike forhold kan ikke påberopes som mangler. Dette gjelder uavhengig av om kjøper har lest dokumentene. Alle interessenter oppfordres til å undersøke eiendommen nøye, gjerne sammen med fagkyndig før bud inngis. Kjøper som velger å kjøpe usett kan ikke gjøre gjeldende som mangel noe han burde blitt kjent med ved undersøkelsen.
Dersom det er behov for avklaringer, anbefaler vi at interessenter rådfører seg med eiendomsmegler eller egne rådgivere før det legges inn bud.
En bolig som har blitt brukt i en viss tid, har vanligvis blitt utsatt for slitasje og skader kan ha oppstått. Slik bruksslitasje må kjøper regne med, og det kan avdekkes enkelte forhold etter overtakelse som nødvendiggjør utbedringer. Normal slitasje og skader som nødvendiggjør utbedring, er innenfor hva kjøper må forvente og vil ikke utgjøre en mangel.
Kjøper og selgers rettigheter og plikter reguleres av avtalen mellom partene, samt informasjonen som har vært tilgjengelig for kjøperen i forbindelse med handelen. Avtalen utfylles av avhendingsloven, og det gjelder ulike avtalevilkår avhengig av om kjøper er forbrukerkjøper eller ikke. Dette er nærmere beskrevet nedenfor.
På grunn av ulike avtalevilkår kan selger vurdere bud fra en som ikke er forbruker, ulikt fra en forbrukers bud. Dersom kjøper ikke er forbruker, er selger sitt mulige mangelsansvar begrenset fordi eiendommen selges "som den er". Selger kan ikke ta «som den er» forbehold ovenfor en forbrukerkjøper. Selv et lavere bud fra en som ikke er forbruker kan foretrekkes fordi begrensningen i mulig mangelsansvar kan ha egenverdi for selger. Selger står fritt til å forkaste eller akseptere ethvert bud, og er for eksempel ikke forpliktet til å akseptere høyeste bud.
Budgiver skal i budskjema avgi egenerklæring om budgiver er forbruker eller næringsdrivende/ person som hovedsakelig handler som ledd i næringsvirksomhet. Budgivere får informasjon dersom andre bud er inngitt av en som ikke er forbruker.
Forbrukerkjøp - definisjon
Med forbrukerkjøp menes kjøp av eiendom når kjøperen er en fysisk person som ikke hovedsakelig handler som ledd i næringsvirksomhet.
Forbruker – avtalevilkår
Eiendommen har en mangel dersom den ikke er i samsvar med kravene som følger av avtalen, eller det foreligger brudd på bestemmelsene i avhendingsloven §§ 3-2 til 3-8. Hvis eiendommen ikke er i samsvar med det kjøperen må kunne forvente ut ifra alder, type og synlig tilstand, kan det være grunnlag for mangelskrav. Det samme gjelder hvis det er holdt tilbake eller gitt uriktige opplysninger om eiendommen. Dette gjelder likevel bare dersom man kan gå ut ifra at det virket inn på avtalen at opplysningen ikke ble gitt eller at mangelskravet ikke blir rettet i tide på en tydelig måte.
Boligen kan ha en mangel etter avhendingsloven § 3-3 andre ledd dersom det er avvik mellom opplyst og faktisk innvendig areal, forutsatt at avviket er på 2% eller mer og minimum 1 kvm.
Ved beregning av et eventuelt prisavslag eller erstatning må kjøper selv dekke tap/kostnader opptil et beløp på kr 10 000 (egenandel).
Ikke-forbruker (næringsdrivende) – definisjon
Hvis kjøper er en juridisk person, eller en fysisk person som hovedsakelig handler som ledd i næringsvirksomhet, vil kjøpet ikke anses som et forbrukerkjøp.
Ikke-forbruker – avtalevilkår
Eiendommen har en mangel dersom den ikke er i samsvar med kravene som følger av avtalen.
Eiendommen selges «som den er», og selgers ansvar utover det konkret avtalte er da begrenset etter avhendingsloven § 3-9, første ledd andre setning.
Avhendingsloven § 3-3 andre ledd fravikes, og hvorvidt boligens arealsvikt utgjør en mangel vurderes etter avhendingsloven § 3-8.
Informasjon om kjøpers undersøkelsesplikt, herunder oppfordringen om å undersøke eiendommen nøye, gjelder også for kjøpere som ikke anses som forbrukere.
Det forutsettes at hjemmel overføres til kjøper. Hvis kjøper ikke ønsker hjemmelsoverføring av eiendommen, må det tas forbehold om dette i budet.
Meglers vederlag
Meglers vederlag betales av selger og er avtalt til:
Fastpris: 37 500,-
Vederlag
Kontroll av hjemmel og heftelser kr 2 900,00
Markedsføringspakke kr 27 400,00
Oppgjør kr 7 500,00
Tilrettelegging kr 17 000,00
Utlegg
Innhenting av offentlig opplysninger kr 4 994,00
Tinglysing sikring kr 545,00
Andre utgifter
Foto kr 5 800,00
Opplysninger om oppdraget
Oppdragsnummer 63-0212/25
Eiendomsmegler Krogsveen AS, avd. Jessheim
Skovly Promenade 10, 2066, JESSHEIM
950 007 613
Oppdragets KR-kode KR63.25212
Dato
Sist oppdatert: 24. februar 2026 kl. 13:32
Dokumenter
Dokumenter
PDF – 744 KB
PDF – 936 KB
PDF – 3 MB
PDF – 312 KB
PDF – 29 KB
PDF – 127 KB
PDF – 392 KB
Område
Legg til steder som er viktige for deg
Visning
For å delta på visning, ber vi om at du melder deg på. Da sikrer vi at du får nødvendig informasjon og at det er satt av tilstrekkelig med tid.
Visning utgår dersom det ikke er noen påmeldte.
Hvis tidspunkt ikke passer, ta kontakt med megler for privatvisning.
Lurer du på noe?
Unngå doble boligrenter
Vi tilbyr gunstig forsikring.
Vurderer du utleie?
Få et tilbud fra Utleie KrogsveenHva koster lånet?
Sjekk estimert lånekostnadVil du varsles om lignende boliger?
Ved å lagre ditt boligsøk hos oss får du beskjed når vi har en bolig som ligner denne, før den legges ut på markedet!

