Vevelstadåsen 4
4 790 000 kr
130 m²
3 soverom
Solgt
Langhus
Lys og innbydende 4-roms selveierleilighet i 2.etasje | Garasjeplass m/elbillader | To store balkonger | Gode solforhold
Prisantydning
4 790 000 krAndel fellesgjeld
31 775 krOmkostninger
131 560 krTotalpris
4 953 335 kr
Pris
Bruksareal
133 m²BRA-I (internt bruksareal)
130 m²BRA-E (eksternt bruksareal)
3 m²TBA (terrasse-balkongareal)
27 m²
Areal
Etasje
2Byggeår
1975Soverom
3 soveromBad
2 badType
EierleilighetEierform
EierseksjonFasiliteter
Garasje/P-plass og Balkong/TerrasseFellesutgifter
4 684 krEnergimerke
Rød E
Nøkkelinfo
Unngå doble boligrenter
Vi tilbyr gunstig forsikring.
Vurderer du utleie?
Få et tilbud fra Utleie KrogsveenHva koster lånet?
Sjekk estimert lånekostnadBeskrivelse
Kort om eiendommen
Velkommen til Vevelstadåsen 4!
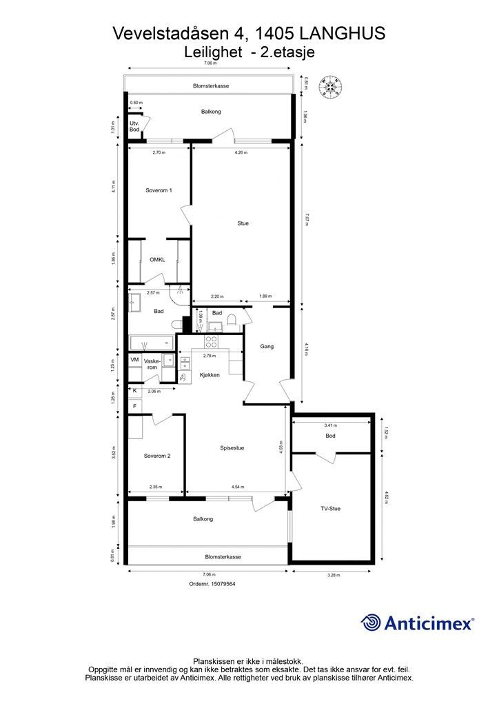
Innholdsrik og innbydende 4-roms selveierleilighet i 2.etasje. Leiligheten består av lys entré, to bad, kjøkken og stue med utgang til balkong, grovkjøkken/vaskerom, tre soverom.
- To romslige balkonger med fint utsyn og gode solforhold
- Parkering i felles garasjeanlegg med elbillader
- Flere boder med oppbevaringsmuligheter
- Veldrevet sameie og hyggelig nabolag
- Vaktmestertjeneste, trappevask og varmtvann inkl. i felleskostnader
- Rikelig med gjesteparkering samt mulighet for leie av p-plass
- Gangavstand til barnehager, skoler og butikker
- Buss i umiddelbar nærhet med avganger til Ski, Drøbak og togstasjon
- Nærhet til turområder, lysløype samt tur- og sykkelstier Velkommen til en hyggelig visning!
Område
Legg til steder som er viktige for deg
På flyttefot? Tenk kjøp og salg samtidig.
Få din egen rådgiver gjennom hele kjøps- og salgsprosessen. Det starter med en verdivurdering.
Unngå doble boligrenter
Vi tilbyr gunstig forsikring.
Vurderer du utleie?
Få et tilbud fra Utleie KrogsveenHva koster lånet?
Sjekk estimert lånekostnadVil du varsles om lignende boliger?
Ved å lagre ditt boligsøk hos oss får du beskjed når vi har en bolig som ligner denne, før den legges ut på markedet!
På flyttefot? Slik gjør vi det enklere for deg
Skreddersydd flyttepakke
Vi fikser håndverkere, vask, pakking, lagring og transport, og legger ut for utgiftene underveis.
Hjelp med både kjøp og salg
Hos oss har du din egen rådgiver gjennom hele kjøps- og salgsprosessen.
Hjelp til finansiering
Vårt samarbeid med BN Bank sikrer deg rask og løsningsorientert hjelp, til konkurransedyktige betingelser.














































