Lilleajervegen 3 C
8 150 000 kr
222 m²
3 soverom
Solgt
Hamar
Familievennlig enebolig med flotte uteområder og svært attraktiv beliggenhet på Ajer – Dobbelgarasje
Prisantydning
8 150 000 krOmkostninger
224 740 krTotalpris
8 374 740 kr
Pris
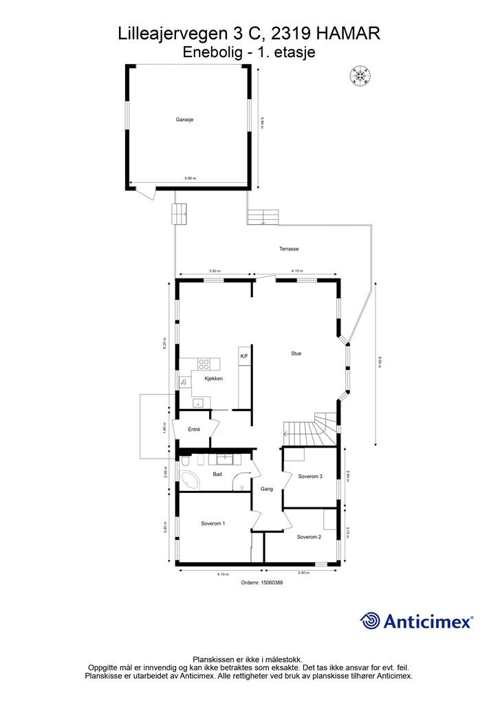
Bruksareal
258 m²BRA-I (internt bruksareal)
222 m²BRA-E (eksternt bruksareal)
36 m²TBA (terrasse-balkongareal)
35 m²
Areal
Etasje
2Byggeår
2006Soverom
3 soveromBad
2 badTomteareal
572 m² (eiet)Type
Enebolig - FrittliggendeEierform
EietFasiliteter
Garasje/P-plass og Balkong/TerrasseEnergimerke
Gul D
Nøkkelinfo
Unngå doble boligrenter
Vi tilbyr gunstig forsikring.
Vurderer du utleie?
Få et tilbud fra Utleie KrogsveenHva koster lånet?
Sjekk estimert lånekostnadBeskrivelse
Kort om eiendommen
Velkommen til Lilleajervegen 3C!
Flott enebolig over to plan med attraktiv og barnevennlig beliggenhet på Ajer. Isolert dobbelgarasje med el-billader.
Boligen holder en gjennomgående god standard og byr på romslige planløsninger og moderne komfort.
Boligen er utstyrt med balansert ventilasjonsanlegg med varmegjenvinning for optimalt inneklima og energieffektiv oppvarming.
Området er svært barnevennlig, med flere lekeplasser og med gangavstand til både barnehager, skoler og matbutikk.
I tillegg ligger eiendommen i en blindveg slik at man ikke får noe særlig gjennomgangstrafikk.
Fine turmuligheter i nærområdet med skogsområdet Klukhagan, samt kort vei til både Furuberget, Mjøsa og Ankerskogen.
Velkommen til en hyggelig visning!
Område
Legg til steder som er viktige for deg
Meglere

Cathrin Nyhus Steen
Eiendomsmegler MNEF
På flyttefot? Tenk kjøp og salg samtidig.
Få din egen rådgiver gjennom hele kjøps- og salgsprosessen. Det starter med en verdivurdering.
Unngå doble boligrenter
Vi tilbyr gunstig forsikring.
Vurderer du utleie?
Få et tilbud fra Utleie KrogsveenHva koster lånet?
Sjekk estimert lånekostnadVil du varsles om lignende boliger?
Ved å lagre ditt boligsøk hos oss får du beskjed når vi har en bolig som ligner denne, før den legges ut på markedet!



