Hammerlia 43
3 190 000 kr
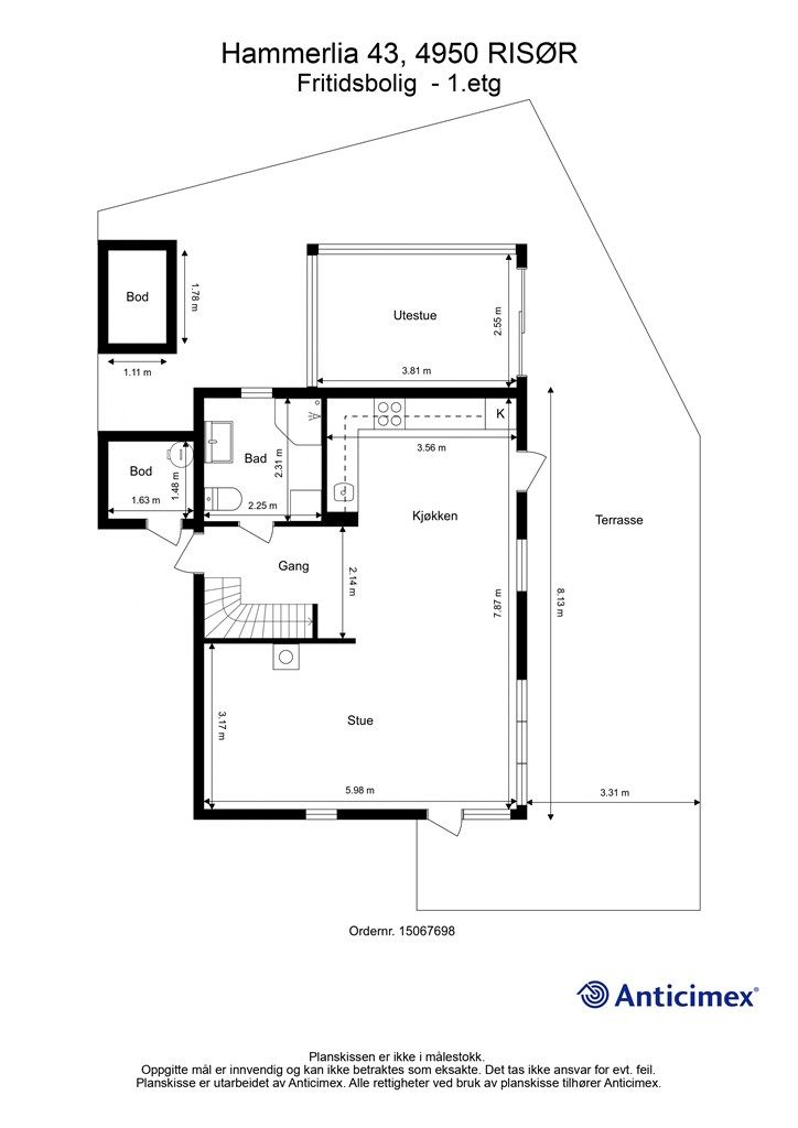
82 m²
4 soverom
Solgt

Risør
Ny pris! Idyllisk helårshytte med to bad, fire sov m.m.! Båtplass medfølger - Sol fra morgen til sent på kveld!
Prisantydning
3 190 000 krOmkostninger
100 740 krTotalpris
3 290 740 kr
Pris
Bruksareal
94 m²BRA-I (internt bruksareal)
82 m²BRA-E (eksternt bruksareal)
12 m²TBA (terrasse-balkongareal)
99 m²
Areal
Etasje
2Byggeår
2007Soverom
4 soveromBad
2 badTomteareal
333 m² (eiet)Type
Fritidseiendom ved sjøenEierform
EietFasiliteter
Balkong/TerrasseÅrlig velavgift
14 000 krEnergimerke
Oransje D
Nøkkelinfo
Vurderer du utleie?
Få et tilbud fra Utleie KrogsveenHva koster lånet?
Sjekk estimert lånekostnadBeskrivelse
Kort om eiendommen
10 minutter utenfor Risør sentrum finner man et idyllisk hyttefelt i klassiske Sørlandsfarger, Hammerlia, like ved Sørfjorden. Hyttefeltet består av fritidsboliger med helårsstandard med innlagt strøm, vann og avløp og meget fine, tilrettelagte fellesområder rundt. Det er både sandstrand, bryggeanlegg og ballbinge på feltet. Her kan man ta seg en tur til fots langs sjøkanten, en tur ut i fjorden med båt, busstur/bil til Risør sentrum eller bare nyte ferien på hytta hvor det er sol fra morgen til kveld. Det er sol på terrassen til ca. kl 21:30 sommertid. Hytta har en stor uteplass, fire soverom, to bad, Det medfølger bryggeplass ca. 350 meter fra eiendommen og det er stor plass til gjester å parkere på fellesområdene. Kjørevei nesten helt frem!
Område
Legg til steder som er viktige for deg
På flyttefot? Tenk kjøp og salg samtidig.
Få din egen rådgiver gjennom hele kjøps- og salgsprosessen. Det starter med en verdivurdering.
Vurderer du utleie?
Få et tilbud fra Utleie KrogsveenHva koster lånet?
Sjekk estimert lånekostnadVil du varsles om lignende boliger?
Ved å lagre ditt boligsøk hos oss får du beskjed når vi har en bolig som ligner denne, før den legges ut på markedet!

