Teglverksgata 7A
3 950 000 kr
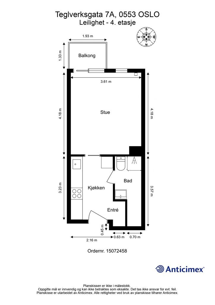
28 m²
1 soverom
Solgt

Presenteres av
Emilie LieGrünerløkka
Lys og lekker leilighet med solrik balkong, heis og felles takterrasse. Attraktiv beliggenhet.
Prisantydning
3 950 000 krOmkostninger
11 040 krTotalpris
3 961 040 kr
Pris
Bruksareal
32 m²BRA-I (internt bruksareal)
28 m²BRA-E (eksternt bruksareal)
4 m²TBA (terrasse-balkongareal)
3 m²
Areal
Etasje
4Byggeår
2007Soverom
1 soveromBad
1 badType
AndelsleilighetEierform
AndelFasiliteter
Heis og Balkong/TerrasseFellesutgifter
1 762 krEnergimerke
Grønn D
Nøkkelinfo
Unngå doble boligrenter
Vi tilbyr gunstig forsikring.
Vurderer du utleie?
Få et tilbud fra Utleie KrogsveenHva koster lånet?
Sjekk estimert lånekostnadDette liker selger best ved boligen
Det beste med å bo her må være den perfekte kombinasjonen av å ha alt rett utenfor døren, samtidig som leiligheten er et rolig fristed å komme hjem til. Grünerløkka har en helt egen sjarm- de små kafeene, parkene, og det yrende livet langs gatene gjør at det alltid er noe å finne på. Likevel er leiligheten min en liten oase midt i alt dette, med lyse rom og en følelse av hjemmekoselighet som gjør at jeg alltid gleder meg til å låse opp døren. Enten det er å ta en kaffe på nydelige steder som Tim Wendelboe eller en spontan tur langs Akerselva, så er alt bare et steinkast unne. For meg er dette stedet der jeg virkelig har funnet balanse mellom byliv og ro - det er noe helt spesielt med å bo akkurat her!
Beskrivelse
Kort om eiendommen
Velkommen til Teglverksgata 7A!
Dette er en sjarmerende og moderne 1-roms leilighet med attraktiv beliggenhet på populære Grünerløkka. Her bor du sentralt, men tilbaketrukket til med alt du måtte trenge i umiddelbar nærhet. Det er gangavstand til meget godt service- og kollektivtilbud samt kort vei til flotte grøntområder som Sofienbergparken og Botanisk hage. Leiligheten har en arealeffektiv planløsning og holder en gjennomgående god standard med pent kjøkken og bad, og balkong. Felles takterrasse i borettslaget med gode solforhold og fantastisk utsikt.
Sørvendt balkong
Felles takterrasse med utsikt
Nye gulv i 2025
Felleskostnader kun kr 1 762,-
Fjernvarme/varmtvann og internett (fiber) 1000/1000 inkl
Heis
Lavt strømforbruk
Velkommen til visning!
Område
Legg til steder som er viktige for deg
På flyttefot? Tenk kjøp og salg samtidig.
Få din egen rådgiver gjennom hele kjøps- og salgsprosessen. Det starter med en verdivurdering.
Unngå doble boligrenter
Vi tilbyr gunstig forsikring.
Vurderer du utleie?
Få et tilbud fra Utleie KrogsveenHva koster lånet?
Sjekk estimert lånekostnadVil du varsles om lignende boliger?
Ved å lagre ditt boligsøk hos oss får du beskjed når vi har en bolig som ligner denne, før den legges ut på markedet!
På flyttefot? Slik gjør vi det enklere for deg
Skreddersydd flyttepakke
Vi fikser håndverkere, vask, pakking, lagring og transport, og legger ut for utgiftene underveis.
Hjelp med både kjøp og salg
Hos oss har du din egen rådgiver gjennom hele kjøps- og salgsprosessen.
Hjelp til finansiering
Vårt samarbeid med BN Bank sikrer deg rask og løsningsorientert hjelp, til konkurransedyktige betingelser.

