Manesjen 6C
5 790 000 kr
115 m²
2 soverom
Solgt

Jessheim sentrum
Innholdsrik endeleilighet med 2 soverom, innglasset balkong (18 kvm) med varmekabler, 2 garasjeplasser | Sentrumsnært
Prisantydning
5 790 000 krAndel fellesgjeld
79 696 krOmkostninger
157 760 krTotalpris
6 027 456 kr
Pris
Bruksareal
144 m²BRA-I (internt bruksareal)
115 m²BRA-E (eksternt bruksareal)
11 m²TBA (terrasse-balkongareal)
2 m²
Areal
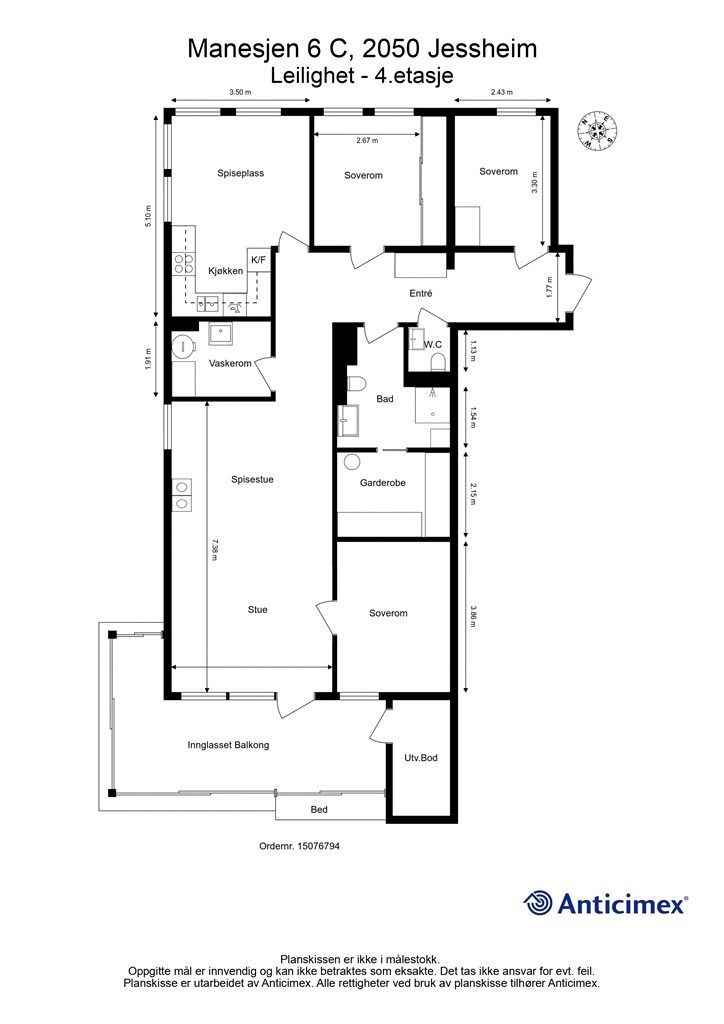
Etasje
4Byggeår
1999Soverom
2 soveromBad
1 badType
EierleilighetEierform
EierseksjonFasiliteter
Garasje/P-plass, Heis og Balkong/TerrasseFellesutgifter
5 971 krEnergimerke
Rød D
Nøkkelinfo
Unngå doble boligrenter
Vi tilbyr gunstig forsikring.
Vurderer du utleie?
Få et tilbud fra Utleie KrogsveenHva koster lånet?
Sjekk estimert lånekostnadBeskrivelse
Kort om eiendommen
Velkommen til Manesjen 6C!
Dette er en romslig endeleilighet i 4. etasje med god planløsning. Leiligheten har 2 soverom (opprinnelig 3), flislagt bad, separat toalett og vaskerom, innvendig og utvendig bod samt kjellerbod, separat kjøkken og en stor innglasset balkong. Balkongen har i tillegg varmekabler i gulv og varmelamper, så her kan man nyte sene høstdager. Det er i tillegg montert utvendig screens i vinterhagen. Leiligheten holder en gjennomgående god standard fra byggeår.
Leiligheten ligger med gangavstand fra Jessheim sentrum - her bor du meget sentralt til med alt du trenger innen rekkevidde! Kort vei til butikker, kjøpesenter, restauranter, turområder, offentlig transport og mye mer.
Område
Legg til steder som er viktige for deg
På flyttefot? Tenk kjøp og salg samtidig.
Få din egen rådgiver gjennom hele kjøps- og salgsprosessen. Det starter med en verdivurdering.
Unngå doble boligrenter
Vi tilbyr gunstig forsikring.
Vurderer du utleie?
Få et tilbud fra Utleie KrogsveenHva koster lånet?
Sjekk estimert lånekostnadVil du varsles om lignende boliger?
Ved å lagre ditt boligsøk hos oss får du beskjed når vi har en bolig som ligner denne, før den legges ut på markedet!

