Smiuvegen 177
4 650 000 kr
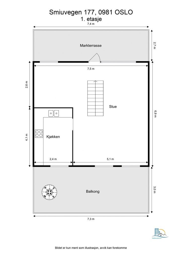
102 m²
3 soverom
Solgt

Presenteres av
Simen Istre GrevskottStovner
Innholdsrikt og familievennlig 3(4)-roms rekkehus - Store, solrike uteplasser m/fantastisk utsikt - Garasjeplass
Prisantydning
4 650 000 krAndel fellesgjeld
197 015 krOmkostninger
20 102 krTotalpris
4 867 117 kr
Pris
Bruksareal
102 m²BRA-I (internt bruksareal)
102 m²TBA (terrasse-balkongareal)
42 m²
Areal
Etasje
1Byggeår
1971Soverom
3 soveromBad
1 badType
RekkehusEierform
AndelFasiliteter
Garasje/P-plass og Balkong/TerrasseFellesutgifter
4 862 krEnergimerke
Rød G
Nøkkelinfo
Unngå doble boligrenter
Vi tilbyr gunstig forsikring.
Vurderer du utleie?
Få et tilbud fra Utleie KrogsveenHva koster lånet?
Sjekk estimert lånekostnadBeskrivelse
Kort om eiendommen
Krogsveen v/Simen Istre Grevskott har gleden av å presentere dette innholdsrike 3(4)-roms rekkehuset med to romslige, solrike uteplasser. Store vindusflater skaper en lys og luftig atmosfære. Boligen har en arealeffektiv og familievennlig planløsning med mulighet for å etablere et ekstra soverom. Denne vil du ikke gå glipp av!
Kvaliteter:
Rekkehus over to plan
Familievennlig og innholdsrik
Mulighet for å re-etablere soverom
Svært romslige uteplasser med fantastisk utsikt
God oppbevaringsplass i innvendige boder
Parkeringsplass i garasjeanlegg
Pent flislagt bad fra 2022
Internett inkl. i felleskostnader
Attraktiv beliggenhet med nærhet til servicetilbud og fasiliteter
Område
Legg til steder som er viktige for deg
På flyttefot? Tenk kjøp og salg samtidig.
Få din egen rådgiver gjennom hele kjøps- og salgsprosessen. Det starter med en verdivurdering.
Unngå doble boligrenter
Vi tilbyr gunstig forsikring.
Vurderer du utleie?
Få et tilbud fra Utleie KrogsveenHva koster lånet?
Sjekk estimert lånekostnadVil du varsles om lignende boliger?
Ved å lagre ditt boligsøk hos oss får du beskjed når vi har en bolig som ligner denne, før den legges ut på markedet!
På flyttefot? Slik gjør vi det enklere for deg
Skreddersydd flyttepakke
Vi fikser håndverkere, vask, pakking, lagring og transport, og legger ut for utgiftene underveis.
Hjelp med både kjøp og salg
Hos oss har du din egen rådgiver gjennom hele kjøps- og salgsprosessen.
Hjelp til finansiering
Vårt samarbeid med BN Bank sikrer deg rask og løsningsorientert hjelp, til konkurransedyktige betingelser.

