Gamle Drammensvei 60
5 990 000 kr
146 m²
5 soverom
Solgt

Presenteres av
Marielle K. Ryberg Lierskogen
Pen og tiltalende enebolig i et barnevennlig område. Solrike uteplasser og hage. Stor tomt (1,2 mål). Garasje og carport
Prisantydning
5 990 000 krOmkostninger
170 740 krTotalpris
6 160 740 kr
Pris
Bruksareal
175 m²BRA-I (internt bruksareal)
146 m²BRA-E (eksternt bruksareal)
29 m²TBA (terrasse-balkongareal)
112 m²
Areal
Etasje
2Byggeår
1965Soverom
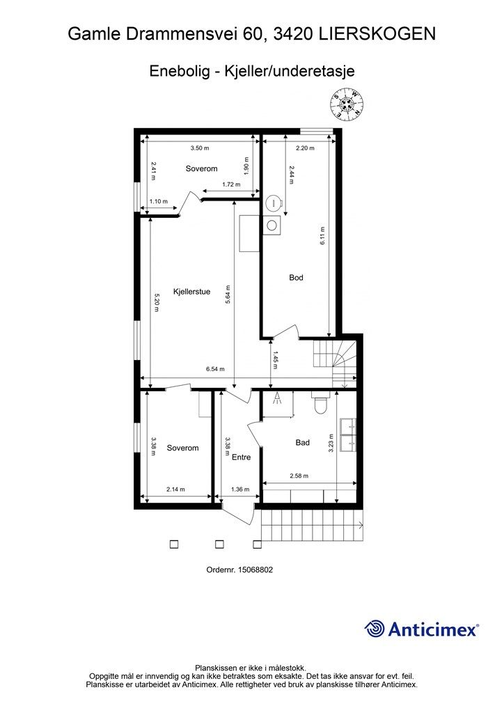
5 soveromBad
2 badTomteareal
1 269 m² (eiet)Type
Enebolig - FrittliggendeEierform
EietFasiliteter
Garasje/P-plass og Balkong/TerrasseEnergimerke
Oransje G
Nøkkelinfo
Unngå doble boligrenter
Vi tilbyr gunstig forsikring.
Vurderer du utleie?
Få et tilbud fra Utleie KrogsveenHva koster lånet?
Sjekk estimert lånekostnadBeskrivelse
Kort om eiendommen
Pen og innholdsrik enebolig i barnevennlig og veletablert boligområde.
Huset i Gamle Drammensvei er en flott familiebolig på en stor og solrik tomt. Huset har en usjenert beliggenhet med lite innsyn. Blindvei (bomvei) med lite trafikk. Kort vei til alt!
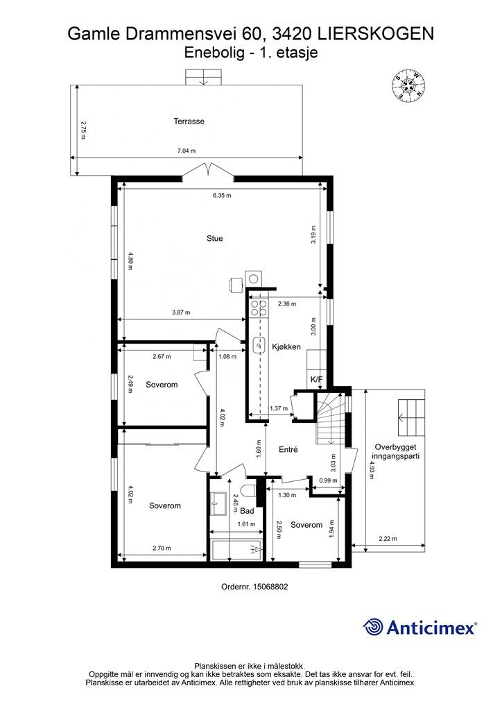
Lys, luftig stue og kjøkken i delåpen løsning
Hyggelig kjellerstue med peis
5 soverom (3 i 1. etg og 2 i u. etg)
2 pene bad fra hhv. 2007 og 2018
Garasje med elbil-lader og tilliggende carport fra ca. 2010
Solrike uteplasser rundt boligen
Stor, velstelt og pent beplantet hage
Romslig, inngjerdet gårdsplass
Gangavstand til flotte turområder
Kort vei til skole, barnehage og kjøpesenter
Bussholdeplass med forbindelser mot Drammen, Asker og Oslo
Kort vei til E-18 (Oslo/Kristiansand)
Område
Legg til steder som er viktige for deg
På flyttefot? Tenk kjøp og salg samtidig.
Få din egen rådgiver gjennom hele kjøps- og salgsprosessen. Det starter med en verdivurdering.
Unngå doble boligrenter
Vi tilbyr gunstig forsikring.
Vurderer du utleie?
Få et tilbud fra Utleie KrogsveenHva koster lånet?
Sjekk estimert lånekostnadVil du varsles om lignende boliger?
Ved å lagre ditt boligsøk hos oss får du beskjed når vi har en bolig som ligner denne, før den legges ut på markedet!
På flyttefot? Slik gjør vi det enklere for deg
Skreddersydd flyttepakke
Vi fikser håndverkere, vask, pakking, lagring og transport, og legger ut for utgiftene underveis.
Hjelp med både kjøp og salg
Hos oss har du din egen rådgiver gjennom hele kjøps- og salgsprosessen.
Hjelp til finansiering
Vårt samarbeid med BN Bank sikrer deg rask og løsningsorientert hjelp, til konkurransedyktige betingelser.

