Vogts gate 49
5 150 000 kr
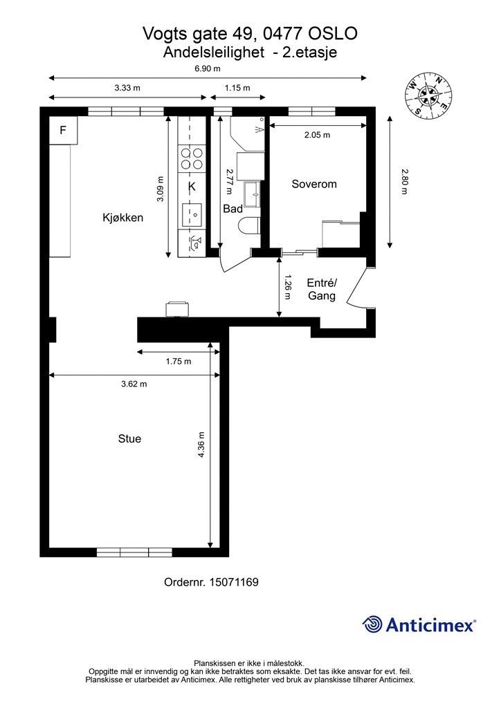
47 m²
1 soverom
Solgt

Torshov
Innbydende og romslig 2-roms i klassisk Torshovgård - Idyllisk bakgård - Lave felleskostnader - Peis
Prisantydning
5 150 000 krAndel fellesgjeld
149 868 krOmkostninger
19 252 krTotalpris
5 319 120 kr
Pris
Bruksareal
57 m²BRA-I (internt bruksareal)
47 m²BRA-E (eksternt bruksareal)
10 m²
Areal
Etasje
2Byggeår
1920Soverom
1 soveromBad
1 badType
AndelsleilighetEierform
AndelFellesutgifter
3 660 krEnergimerke
Rød G
Nøkkelinfo
Unngå doble boligrenter
Vi tilbyr gunstig forsikring.
Vurderer du utleie?
Få et tilbud fra Utleie KrogsveenHva koster lånet?
Sjekk estimert lånekostnadBeskrivelse
Kort om eiendommen
Velkommen til Vogts gate 49, en overflateoppusset leilighet i 2022/2023 med god planløsning og luftige soner, presentert av Marius Dyngeland Iversen. Denne leiligheten tilbyr store og luftige sosiale soner, samt en god takhøyde med vindu på begge sider av boligen som slipper inn mye lys og gjennomtrekk ved lufting. Klassisk ildsted og en murvegg som gir særpreg til leiligheten. Ettertraktet beliggenhet på Torshov i et hyggelig borettslag med stor og frodig bakgård. Dette er en perfekt leilighet for deg som ønsker deg en sentral leilighet, med gode kollektivforbindelser til alle retninger av byen.
Kort fortalt:
- Sosial leilighet med stor stue og romslig separat kjøkken
- Ingen dokumentavgift
- To disponible boder
- HTH kjøkkeninnredning fra 2012
- Bad fra 2012
- Ildsted på kjøkkenet
Område
Legg til steder som er viktige for deg
På flyttefot? Tenk kjøp og salg samtidig.
Få din egen rådgiver gjennom hele kjøps- og salgsprosessen. Det starter med en verdivurdering.
Unngå doble boligrenter
Vi tilbyr gunstig forsikring.
Vurderer du utleie?
Få et tilbud fra Utleie KrogsveenHva koster lånet?
Sjekk estimert lånekostnadVil du varsles om lignende boliger?
Ved å lagre ditt boligsøk hos oss får du beskjed når vi har en bolig som ligner denne, før den legges ut på markedet!

