Stongafjellsvegen 58Y
1 990 000 kr
61 m²
2 soverom
Solgt

Presenteres av
Henriette MuriStongafjellet
Visning Avlyst! Meget sentral 3-roms leilighet med garasjeplass, solrik privat takterrasse og fin utsikt|
Prisantydning
1 990 000 krAndel fellesgjeld
938 217 krOmkostninger
11 040 krTotalpris
2 939 257 kr
Pris
Bruksareal
66 m²BRA-I (internt bruksareal)
61 m²BRA-E (eksternt bruksareal)
5 m²TBA (terrasse-balkongareal)
6 m²
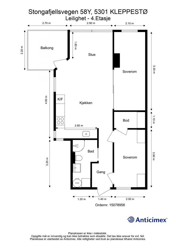
Areal
Etasje
4Byggeår
2008Soverom
2 soveromBad
1 badType
AndelsleilighetEierform
AndelFasiliteter
Garasje/P-plass, Heis og Balkong/TerrasseFellesutgifter
11 666 krEnergimerke
Lysegrønn C
Nøkkelinfo
Unngå doble boligrenter
Vi tilbyr gunstig forsikring.
Vurderer du utleie?
Få et tilbud fra Utleie KrogsveenHva koster lånet?
Sjekk estimert lånekostnadBeskrivelse
Kort om eiendommen
Velkommen til Stongafjellsvegen 58Y - En flott 3-roms leilighet med en meget sentral og attraktiv beliggenhet. Nær alt man trenger i hverdagen!
Høydepunkter:
Fra vestvendt privat takterrasse har man utsikt mot Askøybroen og kan nyte solen til sen kveld midtsommers
Kort vei til Kleppestø senter
Kjøreturen til Bergen sentrum tar kun 10-12 minutter
Fast parkeringsplass i felles garasjeanlegg
Heis
Varmepumpe i stue
Gulvvarme på bad
Kort vei til Storeklubben busstopp hvor nærmest alle avganger til og fra Askøy stopper innom. Det går også egen buss i feltet med nærmeste busstopp like ved
Velkommen til en hyggelig visning - Husk påmelding.
Område
Legg til steder som er viktige for deg
På flyttefot? Tenk kjøp og salg samtidig.
Få din egen rådgiver gjennom hele kjøps- og salgsprosessen. Det starter med en verdivurdering.
Unngå doble boligrenter
Vi tilbyr gunstig forsikring.
Vurderer du utleie?
Få et tilbud fra Utleie KrogsveenHva koster lånet?
Sjekk estimert lånekostnadVil du varsles om lignende boliger?
Ved å lagre ditt boligsøk hos oss får du beskjed når vi har en bolig som ligner denne, før den legges ut på markedet!
På flyttefot? Slik gjør vi det enklere for deg
Skreddersydd flyttepakke
Vi fikser håndverkere, vask, pakking, lagring og transport, og legger ut for utgiftene underveis.
Hjelp med både kjøp og salg
Hos oss har du din egen rådgiver gjennom hele kjøps- og salgsprosessen.
Hjelp til finansiering
Vårt samarbeid med BN Bank sikrer deg rask og løsningsorientert hjelp, til konkurransedyktige betingelser.




























