Travalleen 16
2 850 000 kr
42 m²
1 soverom
Komplett salgsoppgave

Jessheim/Nordby
Tiltalende og attraktiv 2-R eierleilighet i 1. etasje | P-plass | Solrik terrasse | Kort vei til tog og servicetilbud
Prisantydning
2 850 000 krOmkostninger
82 290 krTotalpris
2 932 290 kr
Pris
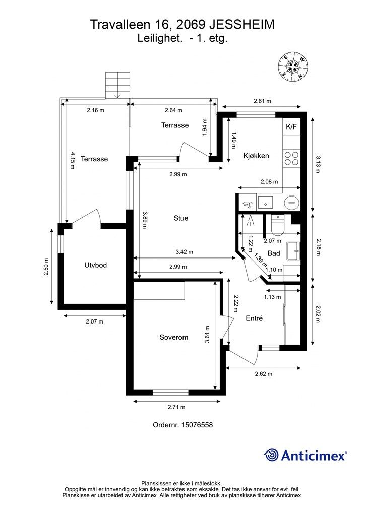
Bruksareal
48 m²BRA-I (internt bruksareal)
42 m²BRA-E (eksternt bruksareal)
6 m²TBA (terrasse-balkongareal)
14 m²
Areal
Etasje
1Byggeår
2007Soverom
1 soveromBad
1 badType
EierleilighetEierform
EierseksjonFasiliteter
Balkong/TerrasseFellesutgifter
1 188 krEnergimerke
Rød C
Nøkkelinfo
Unngå doble boligrenter
Vi tilbyr gunstig forsikring.
Vurderer du utleie?
Få et tilbud fra Utleie KrogsveenHva koster lånet?
Sjekk estimert lånekostnadBeskrivelse
Kort om eiendommen
Rolig og tilbaketrukket beliggenhet på Nordbymoen. Her bor du i gangavstand til togstasjonen og kun en kort sykkeltur unna det sentrum har å tilby.
Tiltalende og attraktiv 2-roms eierleilighet i 1. etasje av firemannsbolig med gjennomgående normalt god standard og mange gode løsninger.
Leiligheten preges av en god planløsning som utnytter plassen godt og som inneholder: entré, åpen kjøkken- og stueløsning, bad og soverom. Kjøkken og stue i åpen løsning gjennomført på en god måte, godt med vinduer og mye naturlig lys gir en god romfølelse. Leiligheten er holdt i lyse, tidsriktige og nøytrale farger på både overflater og innredninger. Fra stuen er det direkte utgang til sørvest-vendt terrasse på ca. 14 kvm. med optimale solforhold.
Sportsbod på ca. 6 kvm og P-plass.
Velkommen!
Innhold og byggemåte
Innhold og byggemåte
Eiendommen
Travalleen 16, 2069 JESSHEIM
Kommunenummer 3209, gårdsnummer 142, bruksnummer 304, seksjonsnummer 1, ideell andel 1/1
Innhold
Totalt bruksareal BRA: 48 kvm
BRA-i:
1. etasje 42 kvm: Entré, bad, stue og kjøkken, soverom.
BRA-e:
1. etasje 6 kvm: Utvendig bod med adkomst fra terrasse. Boden er tinglyst som en tilleggsdel til seksjonen.
Åpent areal:
1. etasje 14 kvm: Terrasse
Vedlagte plantegninger er ikke målbare. De oppgitte arealer er hentet fra rapport med befaringsdato 16.10.2025 utført av Anticimex AS.
Byggemåte
Selger har fått utarbeidet en tilstandsrapport, dvs. en teknisk gjennomgang av boligen hvor eventuelle avvik, risiko for kjøper og prisoverslag for hva som bør gjøres av oppgradering, er skissert. Se særskilt TGIU (tilstandsgrad ikke undersøkt), samt TG2 og TG3 som viser hva som er boligens normale slitasje, alder og type, hva som er avvik fra dette og hva som bør/må utbedres. Rapporten og selgers egenerklæring er en del av salgsoppgaven og må leses nøye før bud inngis. Kjøper overtar ansvaret for de opplysninger som fremkommer av salgsdokumentasjonen, og kan ikke gjøre gjeldende som mangel noe som burde vært kjent eller som ikke kan anses å ha betydning for avtalen.
Bygningen er iht. tilstandsrapporten oppført i tre. Yttervegger av bindingsverk utvendig kledd med liggende trepanel. Etasjeskille av trekonstruksjoner. Yttertak av saltakskonstruksjon utvendig tekket med takstein. Terrassedør og vinduer med karmer av tre og to-lags glass fra byggeår.
Takstmann har gitt følgende tilstandsgrad 2 (TG2):
Bad: Sprekk i servant. Sprekk i flis ved lysbryter. Riss/sprekker i flisfuger i dusjsonen. Hull i dusjsonen etter tidligere innfestinger, bør tettes med egnet tettemasse.
Varmtvannsbereder har ikke fast tilkobling, men er koblet med stikkontakt.
Noe råteskader i panel ved hjørnekasse på bod.
Les for øvrig mer om byggemåte og den tekniske tilstanden i rapporten.
Selger opplyser:
Skiftet dusjarmatur og toalett i 2021. Gjort av fagfolk, har dokumentasjon.
Vannlekkasje fra varmtvannsbereder i 2025. Montert ny bereder og utbedret skadene.
Har opplevd tilbakeslag av vann i avløpsrør tilhørende vaskemaskin når maskinen skyller ut større mengder vann. Ikke gjort ytterligere undersøkelser rundt dette. @
Utelampe på terrassen fungerer ikke.
Standard
Tiltalende og attraktiv 2-roms eierleilighet i 1. etasje av firemannsbolig med gjennomgående normalt god standard - her kan du flytte rett inn. Ny parkett i 2025.
Leiligheten preges av en god planløsning som utnytter plassen godt og som inneholder: entré, åpen kjøkken- og stueløsning, bad, soverom og innvendig bod. Kjøkken og stue i åpen løsning gjennomført på en god måte, godt med vinduer og mye naturlig lys gir en god romfølelse. Leiligheten holdt i lyse, tidsriktige og nøytrale farger på både overflater og innredninger. Fra stuen er det direkte utgang til terrasse på ca. 14 kvm. med optimale solforhold. God plass til grill og sittegruppe på terrassen, perfekt for late sommerdager. Her bor du i gangavstand til togstasjonen og kun en kort sykkeltur unna det sentrum har å tilby.
Leilighetens store samlingspunkt er en kombinert stue- og kjøkkenløsning med plass til mange gjester, store vindusflater og god romfølelse. Åpen løsning mot stuen gjennomført på en god måte og plass til kjøkkenbord. Kjøkkeninnredning med glatte fronter, benkeplate av laminat og nedfelt oppvaskkum med ett-greps kjøkkenarmatur. Benkeskapsbelysning, fliser mellom over- og underskap og stikkontakter over kjøkkenbenk. Integrert stekeovn og platetopp. Frittstående oppvaskmaskin og kjøleskap med fryser. Ventilator i overskap. Varmtvannsbereder på 110L (fra 2025) plassert under kjøkkenbenk. Nytt kjøkkenarmatur og enkelte fronter/skap er byttet i 2025. Det gjøres oppmerksom på at hvitevarene er kjøpt for noen år tilbake, og kjøper må forvente slitasje som følge alder og normal bruk.
Bad med god plassering i boligen med flislagt gulv med gulvvarme og flislagte vegger. Vegghengt servantinnredning med dører, ovenpåliggende servant med ett-greps armatur og speil med overlys og stikkontakt
Dusjnisje med forheng og vegghengt dusjarmatur med hånddusj og regndusj. Gulvstående toalett. Mekanisk avtrekksvifte i vegg. Opplegg for vaskemaskin. Byttet dusjarmatur og nytt toalett i 2021.
Soverom på ca. 10 kvm med garderobeskap.
Leiligheten har god lagringsplass i utvendig bod på ca. 6 kvm. Boden har god lagringsplass og ekstra takhøyde.
Løsøre og tilbehør
Vi viser til liste fra Norges Eiendomsmeglerforbund som gjelder fra 01.01.2020 angående løsøre og tilbehør.
Vaskemaskin medfølger. Hvitevarer på kjøkken medfølger.
Oppvarming
Leiligheten varmes opp med elektrisk oppvarming. Varmekabler på bad og panelovner.
Dersom beboelsesrom ikke har vegg- eller fastmonterte varmekilder ved visning, følger dette heller ikke med.
Ferdigattest/brukstillatelse
Det foreligger ikke ferdigattest på eiendommen, men midlertidig brukstillatelse ble gitt 30.11.2009. Tillatelsen er gitt på følgende vilkår:
- Mindre terrengarbeider som skal utføres av kjøper.
Det er uklart om dette er utført. Kjøper overtar ansvaret for dette.
Tinglyste heftelser og rettigheter
Leiligheten overdras fri for pengeheftelser.
Sameiet har legalpant for krav mot sameieren som følger av sameieforholdet iht. eierseksjonsloven § 31. Pantet er begrenset oppad til 2G, (G = folketrygdens grunnbeløp).
Det er tinglyst følgende servitutter på sameiets eiendom. Dagboknr 505519, tinglyst 22.06.2007, type heftelse:
Pliktig medlemskap i Nordbyhagen velforening.
Servituttene vil følge eiendommen. Kjøpers bank vil få pant etter ovennevnte heftelse og servitutter.
Eventuell adgang til utleie
Leiligheten kan leies ut såfremt leiligheten har forsvarlige radonverdier. Leietaker må følge sameiets vedtekter og ordensregler på lik linje som eier.
Diverse
Tilbud av produkter og tjenester fra våre samarbeidspartnere
Vi er opptatt av verdiskapning, og har knyttet til oss samarbeidspartnere som skal sikre våre kunder de beste produkter og tjenester;
• Gjensidige leverer boligselgerforsikring og tilbyr bygningsforsikring
• Boligkjøperforsikring leveres av Hiscox og med Sedgwick som skadebehandler, og er formidlet gjennom Gjensidige.
• BN bank tilbyr finansieringsløsninger
• Vår avdeling Krogsveen Pluss tilbyr flyttetjenester som utvask, visningsvask, lager, tømming og transport av flyttelass, i tillegg til å formidle kontakt med Flip for overflateoppussing.
• I forbindelse med overtagelse av eiendommen tilbyr Overo avtale om strøm, alarm og bredbånd.
• Krogsveen er, sammen med øvrige bransjeaktører, medeier i den digitale annonseringsplattformen Hjem som eies av Bomega AS.
Beliggenhet og tomteforhold
Beliggenhet og tomteforhold
Beliggenhet
Nordbymoen er et populært, rolig og veletablert boligfelt i barnevennlig omgivelser. Her bor du stille og skjermet til i akkurat passe avstand fra sentrum. Gangavstand til togstasjonen og Joker-butikk.
Boligen har en sentral beliggenhet med nærhet til sentrum og alt av fasiliteter. Her bor du rolig med kort vei til mye!
Kort sykkeltur til Jessheim med alt av bymessige fasiliteter - Jessheim har et rikt og godt utvalg av ulike servicetilbud. Her er det mange spennende spisesteder, utesteder, kaféer, kulturhus med blant annet forestillinger og tre kinosaler og et godt utvalg av shopping- og handlemuligheter. Gangavstand til Nordby stasjon med meget god offentlig kommunikasjon til Oslo med togavgang hver halvtime, reisetid inn til hovedstaden på ca. 43 min. Videre er det ekspressavgang fra Jessheim stasjon i ukedager kl. 07:50 med reisetid på ca. 24 min. til Oslo S. Parkering prioritert for pendlere på Jessheim stasjon.
Kort vei til Gystadmarka med flotte tur- og sykkelstier, samt oppkjørte skiløyper på vinterstid. I tillegg kan gystadmarka tilby nyere friidrettsbane, skatepark, fotballstadion, svømmehall
og flerbrukshall -kun en kort gåtur unna. For mer info om friluftsliv i kommunen, se: https://www.ullensaker.kommune.no/virksomheter/opplevullensaker/friluftsliv/
Nordbytjernet er et av de flotteste friluftsområdene i Ullensaker med beliggenhet med kort vei fra Jessheim sentrum. Rundt tjernet er det godt tilrettelagt med flotte turveier. Nordbytjernet har flotte badeplasser med strender, volleyballbaner, bade- og fiskebrygger.
Det er ca. 20 min. til Romeriksåsen som byr på gode tur- og rekreasjonsmuligheter både sommer og vinter. Romeriksåsen som er et av Romerikes mest varierte friluftsområder; som byr på alt fra tur- og sykkelstier, oppkjørte skiløyper, badeplasser, skiannlegg og mange gode fiskevann.
Tidsavstander med bil
Oslo Lufthavn: ca. 10 minutter
Lillestrøm: ca. 22 minutter
Oslo sentrum: ca. 35 minutter
Barnehager, skoler og fritid
Dersom skole- og barnehagetilbud er av betydning for kjøpet, ber vi om at det rettes en særskilt henvendelse til kommunen for oppdatert informasjon.
Beskrivelse av tomt
Eiertomt på 2 198 kvm som tilhører sameiet. Tomten er fellesareal opparbeidet med gruslagt innkjørsel og plenareal.
Parkering
Fast biloppstillingsplass på sameiets eiendom.
Vei, vann og avløp
Eiendommen har adkomst via privat vei med felles vedlikeholdsansvar.
Eiendommen er tilknyttet kommunalt vann, avløp og ledningsnett via private stikkledninger. Eier er selv ansvarlig for private stikkledninger til boligen.
Regulerings-og arealplaner
Eiendommen er regulert til bolig i mindre vesentlige endring av delfeltene B3, B4 og B5 innenfor reguleringsplanen for "Ullensaker travbane" vedtatt 27.06.2006.
Utsnitt av plan med tilhørende bestemmelser kan fås ved henvendelse til megler.
Økonomi
Økonomi
Boligens kostnader
Kommunale avgifter er kr 8 242,- for inneværende år. I dette inngår gebyr for vann, avløp, renovasjon og feiing/tilsyn.
Fellesutgiftene er kr 1 188,- pr. mnd. og inkluderer: Bygningsforsikring, ytre vedlikehold, brøyting, gressklipping etc.
Fellesutgiftene justeres normalt en til to ganger årlig. Neste økning er planlagt 01.07.2026. Felleskostnader blir da 1.283,-.
Nåværende eier har et strømforbruk som tilsvarer ca. kr 16 000,- pr. år. Det er ikke tegnet Norgespris.
Boligen er tilknyttet Telia som leverandør av kabel-tv/Internett og har avgift på kr 829,- pr. mnd. Tv-tuner/dekoder medfølger ikke.
Utgiftene er basert på nåværende eiers forbruk. Kjøper må selv tegne innboforsikring.
Formuesverdi
Formuesverdi for 2023 var kr 733 201,- ifølge skatteetaten. Beløpet forutsetter at eier bor fast i boligen (primærbolig).
Ved eventuell øvrig bruk av eiendommen (f.eks. fritidsbolig, pendlerbolig, utleieobjekt) var formuesverdien for 2023 kr 2 932 804,-.
Formuesverdien justeres normalt årlig. Se skatteetaten.no for mer informasjon om fastsettelse av formuesverdien.
Eiendomsskatt
Det er p.t ikke vedtatt eiendomsskatt for eiendommer i kommunen.
Opplysninger om fellesgjeld
Det er ikke felles lån i sameiet.
Omkostninger
2 850 000,00 Prisantydning
Omkostninger
71 250,00 Dokumentavgift til staten (2,5% av kjøpesum)
9 950,00 Gjensidige Boligkjøperpakke (valgfri)
545,00 Tinglysing panterettsdokument
545,00 Tinglysing skjøte
--------------------------------------------------------
82 290,00 Omkostninger totalt
--------------------------------------------------------
2 932 290,00 Totalpris inkl. omkostninger
--------------------------------------------------------
Totalpris inkl. omkostninger forutsetter kjøp til prisantydning. Det tas forbehold om endringer i avgifter og gebyrer.
Tilbud om lånefinansiering
Megler formidler gjerne kontakt med rådgiver hos vår samarbeidspartner BN Bank. De har konkurransedyktige betingelser samt rask og løsningsorientert behandling av din lånesøknad. Krogsveen mottar et honorar for denne formidlingen.
Betalingsbetingelser
Kjøpesum inkludert omkostninger, samt pantedokument tilknyttet eventuelt lån, skal være disponibelt hos megler 2 virkedager før overtagelsen.
Annen viktig informasjon
Annen viktig informasjon
Eier
Atle Buer Jørgensen
Informasjon om sameiet
Eiendommen er seksjonert, og leiligheten er tilknyttet Sameiet Travalleen 12-14-16 sameie, med sameiebrøk 1/12
Sameiet består av 12 leiligheter.
Forretningsfører er Ocon Regnskap AS.
Dugnad må påregnes.
Dyrehold må godkjennes av styret.
Foretatt påkostninger de senere år: Løpende vedlikehold
Planlagte påkostninger: Løpende vedlikehold.
Vi gjør videre oppmerksom på at det iht. eierseksjonsloven ikke er anledning å erverve mer enn 2 seksjoner i sameiet, her teller også eierskap via. firma, nærstående og familie. Kjøper har risikoen for at overskjøting på denne bakgrunn kan nektes av Statens Kartverk. I så fall vil kjøper uansett være forpliktet til å gjennomføre handelen, og oppgjør til selger vil finne sted tross manglende overskjøting.
Konferer med megler for mer informasjon.
Overtakelse
Etter nærmere avtale.
Boligselgerforsikring
Selger har i forbindelse med salget tegnet boligselgerforsikring levert av Gjensidige.
Boligselgerforsikringen dekker selgers ansvar etter avhendingsloven begrenset oppad til kr 14 millioner. Dersom kjøper oppdager forhold ved eiendommen som hen mener utgjør en mangel ved eiendommen, vil Gjensidige behandle reklamasjonen på vegne av selger. Forsikringsvilkår kan fås ved henvendelse til megler.
Vedlagt salgsoppgaven følger selgers egenerklæringsskjema og tilstandsrapport. Interessenter må sette seg inn i dokumentene før bud inngis.
Boligkjøperforsikring
Innen kontraktsmøtet må kjøper ta stilling til om det ønskes å bestille Boligkjøperpakken gjennom Gjensidige. I denne gunstige pakken er boligen ferdig forsikret og inkluderer rettshjelpsforsikring, også kalt Boligkjøperforsikring. Rettshjelpsforsikring gir trygghet og tilgang på profesjonell juridisk hjelp dersom det oppdages uventede feil eller mangler det første året etter overtagelse. Forsikringsselskapet behandler i så fall ethvert mangelskrav kjøper måtte ha overfor selger.
Boligkjøperpakken inkluderer bygningsforsikring for hus og hytte, innboforsikring, flytteforsikring og dobbel rentedekning - i situasjoner hvor kjøper ikke får solgt nåværende primærbolig.
Kjøper mottar ingen særskilt faktura for Boligkjøperpakken da kostnaden det første året legges til kjøpesummen for boligen. Det gjøres oppmerksom på Krogsveen mottar et honorar for denne formidlingen.
Produktark for Boligkjøperpakken ligger vedlagt i salgsoppgaven.
Dersom ikke boligkjøperpakke ønskes kan kun rettshjelpsforsikring, også kalt boligkjøperforsikring, tegnes særskilt via megler. Rettshjelpsforsikringen varer i 5 år fra overtagelse og leveres gjennom Gjensidige. Ta kontakt med megler for ytterligere informasjon.
Selskap og privatpersoner som driver med kjøp/salg/utvikling som ledd i egen næringsvirksomhet kan ikke tegne boligkjøperpakke eller rettshjelpsforsikring.
Budgivning
Forbrukerinformasjon om budgivning er vedlagt denne salgsoppgaven og er også på vår hjemmeside Krogsveen.no. Alle bud og budforhøyelser må inngis skriftlig. I tillegg må legitimasjon være fremlagt sammen med signatur fra budgiver.
Vi oppfordrer til å gi bud elektronisk via GI BUD-knappen på eiendommens hjemmeside på Krogsveen.no. Da vil samtlige vilkår bli oppfylt.
Eventuelle forhøyelser eller endringer av budet kan bekreftes pr SMS eller på e-post. Vi oppfordrer alltid til å kontakte megler pr. telefon i tillegg da forsinkelser i SMS og e-post kan forekomme.
For at budene skal kunne bli behandlet og videreformidlet skriftlig til alle involverte parter, må alle bud ha en tilstrekkelig lang akseptfrist, jf. eiendomsmeglingsforskriften § 6-3.
Selger må også skriftlig akseptere budet før aksept kan formidles til budgiver. Akseptfrist bør derfor være på minimum 30 minutter, og budforhøyelser må derfor skje i god tid før fristens utløp.
Bud i forbrukerforhold kan uansett ikke settes med kortere frist enn kl. 12.00 første virkedag etter siste annonserte visning. I tillegg kan ikke budet ha forbehold om at det skal holdes hemmelig ovenfor øvrige interessenter. Megler har iht lov om eiendomsmegling ikke anledning til å videreformidle disse budene, og de vil dermed heller ikke bli journalført.
Etter at eiendommen er solgt vil kjøper og selger få tilsendt budjournal. Øvrige budgivere kan få utlevert kopi av budjournalen i anonymisert form.
Hvitvaskingsreglene
I henhold til lov om hvitvasking og terrorfinansiering har megler plikt til å gjennomføre kontrolltiltak overfor kunder, herunder fullmektiger. Dette innebærer bl.a. å bekrefte kunders og reelle rettighetshaveres identitet på bakgrunn av fremvist gyldig legitimasjon eller på annen godkjent måte, samt å innhente opplysninger om kundeforholdets formål og tilsiktede art.
Dersom slike kundetiltak ikke kan gjennomføres, kan megler ikke etablere kundeforholdet eller utføre transaksjonen.
Hvis kjøper ikke bidrar til gjennomføring av kundekontrollen og dette fører til at transaksjonen blir forsinket eller ikke kan gjennomføres, vil dette ansees som mislighold av avtalen og gi selger rettigheter etter avhendingslova kapittel 5. I tilfeller der selger ikke bidrar til gjennomføring av løpende kundekontroll underveis i oppdraget, er det selger som misligholder sine forpliktelser etter avtalen og gi kjøper rettigheter etter avhendingslovens kapittel 4. Partene er selv ansvarlige for eventuelle kostnader og ansvar dette kan medføre. Eiendomsmegleren eller eiendomsmeglingsforetaket kan ikke holdes ansvarlig for de konsekvenser dette vil kunne få for partene eller andre som har interesser i eiendomshandelen.
Kjøper oppfordres til å innbetale kjøpesummen som ikke kommer fra låneinstitusjon i én samlet innbetaling fra egen konto i norsk bank. Megler har plikt til å melde fra til Økokrim om eiendomshandler som fremstår som mistenkelige. Melding sendes Økokrim uten at partene varsles.
Personopplysningsloven
I henhold til personopplysningsloven gjør vi oppmerksom på at interessenter kan bli registrert for videre oppfølging.
Lovanvendelse
Generelle bestemmelser
Salgsoppgaven er basert på de opplysningene selger har gitt til megler, den bygningssakyndiges tilstandsrapport, samt opplysninger innhentet fra kommunen, Kartverket og andre tilgjengelige kilder. Det er viktig at kjøper setter seg grundig inn i alle salgsdokumentene, herunder salgsoppgave, tilstandsrapport og selgers egenerklæring. Kjøper anses kjent med forhold som er tydelig beskrevet i salgsdokumentene, og slike forhold kan ikke påberopes som mangler. Dette gjelder uavhengig av om kjøper har lest dokumentene. Alle interessenter oppfordres til å undersøke eiendommen nøye, gjerne sammen med fagkyndig før bud inngis. Kjøper som velger å kjøpe usett kan ikke gjøre gjeldende som mangel noe han burde blitt kjent med ved undersøkelsen.
Dersom det er behov for avklaringer, anbefaler vi at interessenter rådfører seg med eiendomsmegler eller egne rådgivere før det legges inn bud.
En bolig som har blitt brukt i en viss tid, har vanligvis blitt utsatt for slitasje og skader kan ha oppstått. Slik bruksslitasje må kjøper regne med, og det kan avdekkes enkelte forhold etter overtakelse som nødvendiggjør utbedringer. Normal slitasje og skader som nødvendiggjør utbedring, er innenfor hva kjøper må forvente og vil ikke utgjøre en mangel.
Kjøper og selgers rettigheter og plikter reguleres av avtalen mellom partene, samt informasjonen som har vært tilgjengelig for kjøperen i forbindelse med handelen. Avtalen utfylles av avhendingsloven, og det gjelder ulike avtalevilkår avhengig av om kjøper er forbrukerkjøper eller ikke. Dette er nærmere beskrevet nedenfor.
På grunn av ulike avtalevilkår kan selger vurdere bud fra en som ikke er forbruker, ulikt fra en forbrukers bud. Dersom kjøper ikke er forbruker, er selger sitt mulige mangelsansvar begrenset fordi eiendommen selges "som den er". Selger kan ikke ta «som den er»- forbehold overfor en forbrukerkjøper. Selv et lavere bud fra en som ikke er forbruker kan foretrekkes fordi begrensningen i mulig mangelsansvar kan ha egenverdi for selger. Selger står fritt til å forkaste eller akseptere ethvert bud, og er for eksempel ikke forpliktet til å akseptere høyeste bud.
Budgiver skal i budskjema avgi egenerklæring om budgiver er forbruker eller næringsdrivende/ person som hovedsakelig handler som ledd i næringsvirksomhet. Budgivere får informasjon dersom andre bud er inngitt av en som ikke er forbruker.
Forbrukerkjøp - definisjon
Med forbrukerkjøp menes kjøp av eiendom når kjøperen er en fysisk person som ikke hovedsakelig handler som ledd i næringsvirksomhet.
Forbruker – avtalevilkår
Eiendommen har en mangel dersom den ikke er i samsvar med kravene som følger av avtalen, eller det foreligger brudd på bestemmelsene i avhendingsloven §§ 3-2 til 3-8. Hvis eiendommen ikke er i samsvar med det kjøperen må kunne forvente ut ifra alder, type og synlig tilstand, kan det være grunnlag for mangelskrav. Det samme gjelder hvis det er holdt tilbake eller gitt uriktige opplysninger om eiendommen. Dette gjelder likevel bare dersom man kan gå ut ifra at det virket inn på avtalen at opplysningen ikke ble gitt eller at mangelskravet ikke blir rettet i tide på en tydelig måte.
Boligen kan ha en mangel etter avhendingsloven § 3-3 andre ledd, dersom det er avvik mellom opplyst og faktisk innvendig areal, forutsatt at avviket er på 2% eller mer og minimum 1 kvm.
Ved beregning av et eventuelt prisavslag eller erstatning må kjøper selv dekke tap/kostnader opptil et beløp på kr 10 000 (egenandel).
Ikke-forbruker (næringsdrivende) – definisjon
Hvis kjøper er en juridisk person, eller en fysisk person som hovedsakelig handler som ledd i næringsvirksomhet, vil kjøpet ikke anses som et forbrukerkjøp.
Ikke-forbruker – avtalevilkår
Eiendommen har en mangel dersom den ikke er i samsvar med kravene som følger av avtalen.
Eiendommen selges «som den er», og selgers ansvar utover det konkret avtalte er da begrenset etter avhendingsloven § 3-9, første ledd andre setning.
Avhendingsloven § 3-3 andre ledd fravikes, og hvorvidt boligens arealsvikt utgjør en mangel vurderes etter avhendingsloven § 3-8.
Informasjon om kjøpers undersøkelsesplikt, herunder oppfordringen om å undersøke eiendommen nøye, gjelder også for kjøpere som ikke anses som forbrukere.
Det forutsettes at hjemmel overføres til kjøper. Hvis kjøper ikke ønsker hjemmelsoverføring av eiendommen, må det tas forbehold om dette i budet.
Meglers vederlag
Meglers vederlag betales av selger og er avtalt til:
Fastpris: 30 000,-
Vederlag:
Kontroll av hjemmel og heftelser kr 2 900,-
Markedsføringspakke kr 27 400,-
Oppgjør kr 7 500,-
Tilrettelegging kr 17 000,-
Utlegg:
Eierskiftegebyr Ocon kr 1 500,-
Innhenting av informasjon forretningsfører Ocon kr 1 500,-
Tinglysing sikring kr 545,-
Andre utgifter:
AX tilstandsrapport leilighet kr 7 950,-
Foto kr 4 000,-
Opplysninger om oppdraget
Oppdragsnummer 63-0243/25
Eiendomsmegler Krogsveen AS, avd. Jessheim
Skovly Promenade 10, 2066, JESSHEIM
950 007 613
Oppdragets KR-kode KR63.25243
Dato
Sist oppdatert: 14. april 2026 kl. 14:15
Dokumenter
Dokumenter
PDF – 743 KB
PDF – 438 KB
PDF – 938 KB
PDF – 7 MB
PDF – 312 KB
PDF – 29 KB
PDF – 127 KB
PDF – 392 KB
Område
Legg til steder som er viktige for deg
Visning
For å delta på visning, ber vi om at du melder deg på. Da sikrer vi at du får nødvendig informasjon og at det er satt av tilstrekkelig med tid. Kontakt megler dersom annet tidspunkt ønskes. Husk å lese salgsoppgaven før visningen, så du stiller forberedt. NB. Visning utgår dersom det ikke er noen påmeldte.
Ønsker du kun å bli holdt orientert, kan du fra eiendommens hjemmeside få varsel om solgtpris, eller kontakte megler.
Lurer du på noe?
Unngå doble boligrenter
Vi tilbyr gunstig forsikring.
Vurderer du utleie?
Få et tilbud fra Utleie KrogsveenHva koster lånet?
Sjekk estimert lånekostnadVil du varsles om lignende boliger?
Ved å lagre ditt boligsøk hos oss får du beskjed når vi har en bolig som ligner denne, før den legges ut på markedet!

