Sølvbunkeveien 9B
5 590 000 kr
140 m²
3 soverom
Komplett salgsoppgave
Kristianlyst
Usjenert og romslig rekkehus med 3 soverom | Solrik terrasse/balkong | Grønt, rolig og sentralt
Prisantydning
5 590 000 krOmkostninger
160 740 krTotalpris
5 750 740 kr
Pris
Bruksareal
140 m²BRA-I (internt bruksareal)
140 m²TBA (terrasse-balkongareal)
49 m²
Areal
Byggeår
1969Soverom
3 soveromBad
1 badTomteareal
140 m² (eiet)Type
RekkehusEierform
EietFasiliteter
Garasje/P-plass og Balkong/Terrasse
Nøkkelinfo
Unngå doble boligrenter
Vi tilbyr gunstig forsikring.
Vurderer du utleie?
Få et tilbud fra Utleie KrogsveenHva koster lånet?
Sjekk estimert lånekostnadBeskrivelse
Kort om eiendommen
Innhold og byggemåte
Innhold og byggemåte
Eiendommen
Sølvbunkeveien 9B, 4017 STAVANGER
Kommunenummer 1103, gårdsnummer 20, bruksnummer 510, ideell andel 1/1
Kommunenummer 1103, gårdsnummer 20, bruksnummer 400, ideell andel 1/4
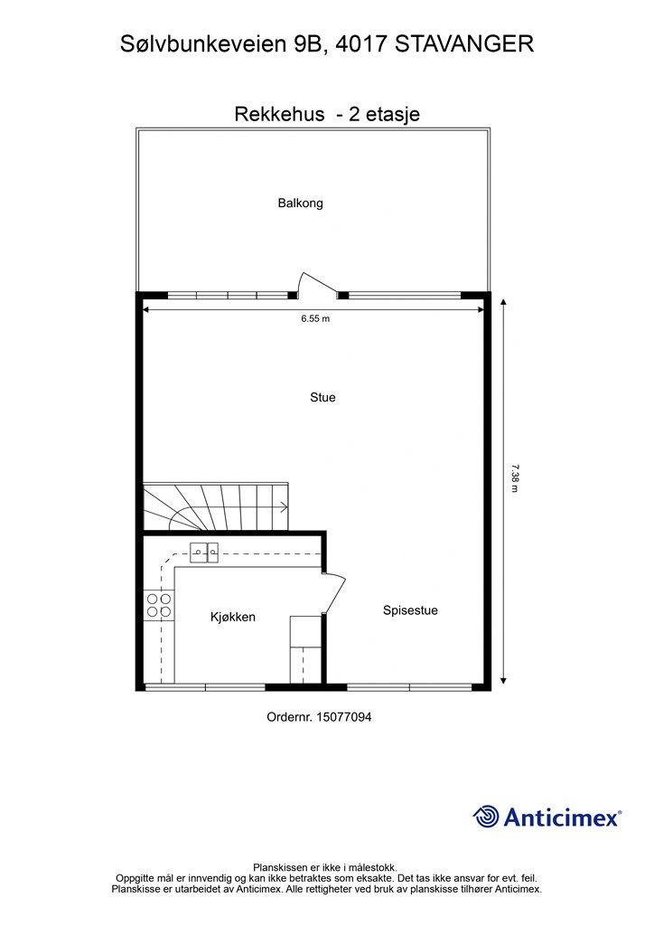
Innhold
Totalt bruksareal BRA: 140 kvm
BRA-i:
Rekkehus:
Kjeller 44 kvm: Gang, bad, bod, stue/soverom.
1. etasje 48 kvm: Entre, gang, bad, 3 soverom.
2. etasje 48 kvm: Kjøkken, stue.
Åpent areal:
1. etasje 29 kvm: Terrasse.
2. etasje 20 kvm: Balkong.
I kjeller er det følgende avvik fra originale byggetegninger:
- Rom benevnt som stue/soverom og bad i kjeller har takhøyde under kravet på 2,20 meter.
Rommene nevnt ovenfor er ikke godkjent til varig opphold, se pkt. ferdigattest for utfyllende informasjon.
Vedlagte plantegninger er ikke målbare. De oppgitte arealer er hentet fra rapport med befaringsdato 13.11.2025 utført av Anticimex AS v/Yngve Paulsen. Arealene er beregnet og rom er definert etter dagens faktiske bruk, uavhengig av hva som er godkjent av bygningsmyndighetene.
Byggemåte
Moderniseringer og påkostninger
Følgende moderniseringer er foretatt de senere år:
2021:
- Nye dimmere installert av Kreatel AS.
2017:
- Downlights oppgradert av Elektrospesialisten AS.
2015:
- Elektrisk arbeid utført, samsvarserklæring foreligger.
2014:
- Bad i kjeller oppgradert.
2013:
- Varmtvannsbereder på 200 L installert.
- Kjellerdør skiftet.
2012:
- Balkongdør skiftet.
2011:
- Bad i 1. etasje oppgradert, utført av Baderomseliten.
- Vinduer skiftet.
2024:
- Nye terrassebord på balkong i 2.etg ved egeninnsats.
2025:
- Ny ytterdør og sidefelt, samt overflateoppussing i gang 1.etg med egeninnsats.
Ukjent årstall:
- El-bil lader montert ved inngang.
Ifølge selgers egenerklæring er følgende arbeid utført:
Ukjent årstall:
- Ildsted fjernet.
Standard
Dette er et innholdsrikt og familievennlig rekkehus over tre plan, med en gjennomtenkt planløsning som skiller godt mellom private og sosiale soner. Boligen ligger usjenert til i et rolig og barnevennlig nabolag uten gjennomgangstrafikk, og har to romslige uteplasser som vender mot et grønt, felles hageområde.
Ved ankomst ønskes du velkommen inn i en nylig oppgradert entré med blant annet ny ytterdør. Her er det flislagt gulv med varmekabler som gir en behagelig start på dagen. Fra gangen er det adkomst til boligens tre soverom, bad og trappeforbindelse til de øvrige etasjene. Første etasje rommer alle tre soverommene, noe som gir en praktisk og skjermet sone for hvile og privatliv. Hovedsoverommet har direkte utgang til en romslig markterrasse med videre adkomst til hage. Boligen disponerer en naturlig avgrenset del av hagen i tilknytning til terrassen, før den går over i fellesareal. De øvrige soverommene har gode møbleringsmuligheter med plass til både seng, skrivebord og garderobe.
Badet i denne etasjen fremstår funksjonelt og lettstelt, med badekar, vegghengt toalett og servantinnredning. Flislagt gulv med varmekabler og downlights i taket bidrar til en komfortabel atmosfære.
Fra hovedsoverommet er det utgang til en flott markterrasse på ca. 29 m², hvor det er rikelig med plass til utemøbler og beplantning i integrerte blomsterkasser. Terrassen glir naturlig over i et stort, grønt fellesareal og har gode solforhold som gir en lang og hyggelig utesesong.
I andre etasje finner du boligens sosiale hoveddel. Stuen er lys og romslig, med god plass til både sofagruppe og spisebord. Store vindusflater slipper inn rikelig med dagslys, og fra stuen er det utgang til en romslig balkong på ca. 20 m² med fin utsikt over grønne omgivelser. En varmepumpe sørger for energieffektiv oppvarming.
Kjøkkenet ligger i åpen tilknytning til stuen og har en klassisk innredning med profilerte fronter og benkeplate i tre. Det er godt utstyrt med integrerte hvitevarer som stekeovn, platetopp, oppvaskmaskin og kjøleskap, samt en fritthengende ventilator over kokesonen.
Underetasjen byr på en praktisk kjellerstue som gir ekstra fleksibilitet i hverdagen. Rommet har gulvvarme og egner seg godt som TV-stue, hjemmekontor eller lekerom (ikke godkjent for varig opphold). I denne etasjen finner du også et helfliset bad oppgradert i 2014, med dusjhjørne, vegghengt toalett, servantinnredning og opplegg for vaskemaskin – en praktisk kombinasjon av bad og vaskerom. Rommet er originalt byggemeldt vaskerom og ikke bruksendret.
Boligen har gjennomgående gode overflater med gulv i parkett, fliser og laminat, vegger i malte flater, veggplater og fliser, samt himlinger i malte flater med innslag av downlights.
Gode oppbevaringsmuligheter finnes i bod i kjeller, i tillegg til smarte løsninger som innebygde benkekasser på markterrassen.
For fullstendig teknisk informasjon om boligen henvises det til punktet "Byggemåte" i salgsoppgaven.
Løsøre og tilbehør
Vi viser til liste fra Norges Eiendomsmeglerforbund som gjelder fra 01.01.2020 angående løsøre og tilbehør.
Løsøre som ikke medfølger salget:
- En vær-stasjon, fastmontert (grått) skap i garasje, samt seksjon med oppbevaringsbokser.
Følgende medfølger i tillegg:
- Integrerte hvitevarer
Det gjøres oppmerksom på at kjøper må forvente slitasje som følge alder og normal bruk på hvitevarer som medfølger.
Oppvarming
Boligen varmes opp med varmepumpe plassert i stue, samt elektrisk oppvarming med panelovner og varmekabler. Det er gulvvarme på bad i kjeller og bad i 1. etasje, samt i gang og i alle rom i underetasjen unntatt bod.
Dersom beboelsesrom ikke har vegg- eller fastmonterte varmekilder ved visning, følger dette heller ikke med.
Ferdigattest/brukstillatelse
Det foreligger ikke ferdigattest på eiendommen, men midlertidig brukstillatelse ble gitt 22.08.1968.
Tillatelsen er gitt på følgende vilkår:
1. Attest fra ingeniørvesenet
2. Innhegning og tørkestativ
Det er uklart om dette er utført. Kjøper overtar ansvaret for dette.
Det foreligger godkjente byggetegninger på utvidelse av veranda i 2. etasje datert 27.06.2001. Det foreligger ikke midlertidig brukstillatelse eller ferdigattest på tiltaket. Kjøper overtar alt ansvar, kostnad og risiko for dette vider
Det gjøres oppmerksom på at badet i 1. etasje ikke stemmer overens med godkjente bygningstegninger, der det er godkjent to separate rom (toalettrom og bad).
Kjellerstue/soverom er opprinnelig byggemeldt som diverse jf. byggetegninger og er ikke godkjent til varig opphold. Innredning av rommene til bruk for varig opphold er ikke bruksendret/omsøkt og er heller ikke godkjent av kommunen. Konsekvensen ved søknad kan være at rommet ikke godkjennes som varig opphold og at rommet da må brukes som bod/midlertidig oppbevaring. Bad i kjelleretasjen er opprinnelig byggemeldt som vaskerom og er ikke bruksendret eller godkjent som bad av kommunen.
Kjøper overtar alt ansvar, kostnad og risiko for dette videre.
Tinglyste heftelser og rettigheter
Eiendommen overdras fri for pengeheftelser.
Kommunen har legalpant i eiendommen for forfalte krav på eiendomsskatt og kommunale avgifter/gebyrer.
Det er ingen tinglyste servitutter på eiendommen.
Eiendommens rettigheter:
1969/2908-1/102 20.03.1969 BESTEMMELSE OM VEG
Rettighet hefter i: KNR: 1103 GNR: 20 BNR: 509
Eiendommen (gnr. 20, bnr. 510) har rett til gangvei over naboeiendommen (gnr. 20, bnr. 509). Gangveien skal gå i tomtegrensen ved opparbeidet gate og inntil 1 meter inn fra denne.
Servituttene vil følge eiendommen. Kjøpers bank vil få prioritet etter ovennevnte heftelser og servitutter.
Eventuell adgang til utleie
Eiendommen har ikke separat utleieenhet. Det vil normalt være anledning til utleie av hele eiendommen eller enkeltrom, såfremt utleiearealet er bygningsmessig godkjent for varig opphold og har forsvarlige radonnivåer.
Energimerking
Denne boligen er energimerket. På en skala fra A til G, der A er best, har denne boligen oppnådd F (en normalbolig vil gjerne ligge i området C-F). Kopi av energiattest ligger vedlagt i salgsoppgaven eller kan fås ved henvendelse til megler.
Beliggenhet og tomteforhold
Beliggenhet og tomteforhold
Beliggenhet
Sølvbunkeveien 9B har en attraktiv beliggenhet i rolige og veletablerte omgivelser på Kristianlyst. Området byr på et bredt og lett tilgjengelig servicetilbud med dagligvarebutikker, legesenter, tannlegesenter og flere takeaway-tilbud i nærområdet.
Boligen har meget gode kollektivforbindelser med buss som tar deg enkelt til både Stavanger sentrum og Sandnes. Mariero togstasjon ligger kun en kort spasertur unna, og det er også rask og enkel adkomst til E39.
I umiddelbar nærhet finner man barnehager, skoler for alle alderstrinn, idrettsanlegg og lekeplasser, noe som gjør området svært familievennlig. Det finnes et rikt tilbud av fritidsaktiviteter for både store og små. For den turglade er det kort vei til flotte tur- og friområder som Sørmarka og Vannassen. Ønsker man maritime omgivelser, kan man nyte fine spaserturer langs Gandsfjorden eller tilbringe solfylte dager på populære Vaulen badeplass
Adkomst
Veibeskrivelse: Se Google maps - det er enkelt å finne frem i kartet.
Det vil bli skiltet med Krogsveen visningsskilt ved fellesvisninger.
Barnehager, skoler og fritid
Barnehager:
- Steinerbarnehagen Bukkene Bruse (1–5 år) 0,4 km
- Vannassen barnehage (1–5 år) 0,7 km
- Tyrihans barnehage (1–5 år) 0,9 km
Skoler:
- Steinerskolen Stavanger (1–10 kl.) 0,4 km
- Vaulen skole (1–7 kl.) 1,2 km
- Kvaleberg skole (1–7 kl.) 1,2 km
- Kristianslyst skole (8–10 kl.) 0,3 km
- Ullandhaug skole (8–10 kl.) 1,9 km
- Hetland videregående skole, 0,6 km
- Godalen videregående skole, 3,1 km
Informasjon om tilhørende skolekretser er hentet fra Prognosesenteret som dataleverandør, og tilhørigheten kan årlig endres av kommunen. Dersom skole- og barnehagetilbud er av betydning for kjøpet, ber vi om at det rettes en særskilt henvendelse til kommunen for oppdatert informasjon.
Beskrivelse av tomt
Eiertomt på ca. 140 kvm.
Det medfølger eierandel (1/4) i realsameie på gnr/bnr 20/400, tomten er oppgitt å være ca. 140 kvm.
Tomt opparbeidet med belegningsstein, steinheller, diverse beplantninger og plenareal. El-bil lader montert ved inngang.
Oppgitt tomteareal er hentet fra digitalt eiendomskart fra Stavanger kommune. Oppgitt/anslått areal kan derfor avvike fra nøyaktig areal.
Parkering
Boligen disponerer egen garasjeplass tilknyttet velforeningen Garasjer i Sølvbunkeveien. Garasjeanlegget ligger på kommunal grunn og det betales en årlig leie på ca kr. 3.500,-. Ny leieavtale må inngås med ny kjøper og vedtekter for velforeningen "garasjer i Sølvbunkeveien" er vedlagt i salgsoppgaven.
Ellers gateparkering etter områdets bestemmelser.
Vei, vann og avløp
Eiendommen har adkomst via kommunal og privat vei.
Eiendommen er tilknyttet kommunalt ledningsnett via private stikkledninger. Eier er selv ansvarlig for private stikkledninger til boligen.
Regulerings-og arealplaner
Eiendommen er regulert til boligbebyggelse.- konsentrerte småhus i henhold til reguleringsplan ID 2548 "Detaljregulering for boligområdet ved Finntoppveien, Blåtoppveien og Sølvbunkeveien" datert 26.05.2025 med tilhørende reguleringsbestemmelser.
Eiendommen følger kommuneplan id: KP 2023-2040, navn: Kommuneplanens arealdel 2023-2040, og er regulert til boligbebyggelse.
Det er pågående regulering og planarbeid i nærområdet. Blant annet gjelder detaljregulering 2618P (Zetlitzveien vest, Hillevåg), som ligger ca. 100–300 meter fra boligen og plan Id: 2896 - Timoteiveien 6
I tillegg foreligger planforslag 2695 for Langflåtveien 1–3, som innebærer innregulering av konsentrert boligbebyggelse med rundt 65–80 nye boenheter, tilhørende uteoppholdsarealer, tjenesteyting/bevertning i første etasje mot Marieroveien, samt mulighet for handel i form av en kiosk (maks 150 m²). Mot Marieroveien og Zetlitzveien vil det vurderes bolig og/eller kontorformål, og mot Langflåtveien planlegges bolig i alle etasjer. Boligen ligger utenfor planområdet, men reguleringsaktiviteten vil kunne merkes i nærområdet.
Utsnitt av plan med tilhørende bestemmelser kan fås ved henvendelse til megler.
Økonomi
Økonomi
Kommunale utgifter
Kommunale avgifter er kr 18 754,- for inneværende år. I dette inngår gebyr for vann, avløp, renovasjon og eiendomsskatt. Det tas forbehold om at kommunen kan justere gebyrene i løpet av året.
Eiendomsskatt utgjør kr 1 613,- pr. år.
Nåværende eier har et strømforbruk som tilsvarer ca. kr 25 000,- pr. år, som utgjør ca. 23 000 kWh.
Selger har avtalt Norgespris på strøm på eiendommen fra november 2025, og denne er pt på kr 50 øre inkl mva. Nettleie, avgifter og påslag fra kraftleverandøren kommer i tillegg.
Denne avtalen vil følge eiendommen i den avtalte perioden.
Les mer om Norgespris her: https://www.regjeringen.no/no/aktuelt/legg-fram-lov-om-norgespris-pa-straum-og-fjernvarme/id3102642/
Boligen er tilknyttet Fiber via Altibox som leverandør av internett (500/500) og koster kr 1 069,- pr. mnd. Modem/router medfølger.
Eiendommen er ikke tilknyttet alarm.
Utgiftene er basert på nåværende eiers forbruk og avtaler.
Formuesverdi
Formuesverdi for 2024 var kr 1.002.879,- ifølge Skatteetaten. Beløpet forutsetter at eier bor fast i boligen (primærbolig).
Ved eventuell øvrig bruk av eiendommen (f.eks. fritidsbolig, pendlerbolig, utleieobjekt) var formuesverdien for 2024 kr 4.011.514,-.
Fra 2026 har Stortinget vedtatt en oppdatert modell for beregning av formuesverdi for primærbolig, så avvik kan forekomme.
For mer informasjon se skatteetaten.no
Omkostninger
5 590 000,00 Prisantydning
Omkostninger
139 750,00 Dokumentavgift til staten (2,5% av kjøpesum)
19 900,00 Gjensidige Boligkjøperpakke* (valgfritt)
545,00 Tinglysing panterettsdokument
545,00 Tinglysing skjøte
--------------------------------------------------------
140 840,00 Omkostninger totalt (uten Gjensidige Boligkjøperpakke)
160 740,00 Omkostninger totalt (med Gjensidige Boligkjøperpakke)
--------------------------------------------------------
5 730 840,00 Totalpris inkl. omkostninger
5 750 740,00 Totalpris inkl. omkostninger (med Gjensidige Boligkjøperpakke)
--------------------------------------------------------
Totalpris inkl. omkostninger forutsetter kjøp til prisantydning.
Det tas forbehold om endringer i avgifter og gebyrer.
Tilbud om lånefinansiering
Megler formidler gjerne kontakt med rådgiver hos vår samarbeidspartner BN Bank. De har konkurransedyktige betingelser samt rask og løsningsorientert behandling av din lånesøknad. Krogsveen mottar et honorar dersom lån opprettes.
Betalingsbetingelser
Kjøpesum inkludert omkostninger, samt pantedokument tilknyttet eventuelt lån, skal være disponibelt hos megler 2 virkedager før overtagelsen.
Annen viktig informasjon
Annen viktig informasjon
Eier
Jone Skjefstad Lode og Nina Lode
Konsesjon
Eiendommen er en ubebygd tomt, dette gjelder for deler av hagen som er realsameie 1/4 (Gnr: 20, Bnr: 400). For at eiendommen skal kunne overskjøtes, må kjøper signere på egenerklæring om konsesjonsfrihet.
Erklæringen må godkjennes av kommunen før eiendommen kan overskjøtes til kjøper.
Overtakelse
Etter nærmere avtale.
Boligselgerforsikring
Selger har i forbindelse med salget tegnet boligselgerforsikring levert av Gjensidige.
Boligselgerforsikringen dekker selgers ansvar etter avhendingsloven begrenset oppad til kr 14 millioner. Dersom kjøper oppdager forhold ved eiendommen som hen mener utgjør en mangel ved eiendommen, vil Gjensidige behandle reklamasjonen på vegne av selger. Forsikringsvilkår kan fås ved henvendelse til megler.
Vedlagt salgsoppgaven følger selgers egenerklæringsskjema og tilstandsrapport. Interessenter må sette seg inn i dokumentene før bud inngis.
Boligkjøperforsikring
Innen kontraktsmøtet må kjøper ta stilling til om det ønskes å bestille Boligkjøperpakken gjennom Gjensidige. I denne gunstige pakken er boligen ferdig forsikret og inkluderer rettshjelpsforsikring, også kalt Boligkjøperforsikring. Rettshjelpsforsikring gir trygghet og tilgang på profesjonell juridisk hjelp dersom det oppdages uventede feil eller mangler det første året etter overtagelse. Forsikringsselskapet behandler i så fall ethvert mangelskrav kjøper måtte ha overfor selger.
Boligkjøperpakken inkluderer bygningsforsikring for hus og hytte, innboforsikring, flytteforsikring og dobbel rentedekning - i situasjoner hvor kjøper ikke får solgt nåværende primærbolig.
Kjøper mottar ingen særskilt faktura for Boligkjøperpakken da kostnaden det første året legges til kjøpesummen for boligen. Det gjøres oppmerksom på Krogsveen mottar et honorar for denne formidlingen.
Produktark for Boligkjøperpakken ligger vedlagt i salgsoppgaven.
Dersom ikke boligkjøperpakke ønskes kan kun rettshjelpsforsikring, også kalt boligkjøperforsikring, tegnes særskilt via megler. Rettshjelpsforsikringen varer i 5 år fra overtagelse og leveres gjennom Gjensidige. Ta kontakt med megler for ytterligere informasjon.
Selskap og privatpersoner som driver med kjøp/salg/utvikling som ledd i egen næringsvirksomhet kan ikke tegne boligkjøperpakke eller rettshjelpsforsikring.
Budgivning
Forbrukerinformasjon om budgivning er vedlagt denne salgsoppgaven og er også på vår hjemmeside Krogsveen.no. Alle bud og budforhøyelser må inngis skriftlig. I tillegg må legitimasjon være fremlagt sammen med signatur fra budgiver.
Vi oppfordrer til å gi bud elektronisk via GI BUD-knappen på eiendommens hjemmeside på Krogsveen.no. Da vil samtlige vilkår bli oppfylt.
Eventuelle forhøyelser eller endringer av budet kan bekreftes pr SMS eller på e-post. Vi oppfordrer alltid til å kontakte megler pr. telefon i tillegg da forsinkelser i SMS og e-post kan forekomme.
For at budene skal kunne bli behandlet og videreformidlet skriftlig til alle involverte parter, må alle bud ha en tilstrekkelig lang akseptfrist, jf. eiendomsmeglingsforskriften § 6-3.
Selger må også skriftlig akseptere budet før aksept kan formidles til budgiver. Akseptfrist bør derfor være på minimum 30 minutter, og budforhøyelser må derfor skje i god tid før fristens utløp.
Bud i forbrukerforhold kan uansett ikke settes med kortere frist enn kl. 12.00 første virkedag etter siste annonserte visning. I tillegg kan ikke budet ha forbehold om at det skal holdes hemmelig ovenfor øvrige interessenter. Megler har iht lov om eiendomsmegling ikke anledning til å videreformidle disse budene, og de vil dermed heller ikke bli journalført.
Etter at eiendommen er solgt vil kjøper og selger få tilsendt budjournal. Øvrige budgivere kan få utlevert kopi av budjournalen i anonymisert form.
Hvitvaskingsreglene
I henhold til lov om hvitvasking og terrorfinansiering har megler plikt til å gjennomføre kontrolltiltak overfor kunder, herunder fullmektiger. Dette innebærer bl.a. å bekrefte kunders og reelle rettighetshaveres identitet på bakgrunn av fremvist gyldig legitimasjon eller på annen godkjent måte, samt å innhente opplysninger om kundeforholdets formål og tilsiktede art.
Dersom slike kundetiltak ikke kan gjennomføres, kan megler ikke etablere kundeforholdet eller utføre transaksjonen.
Hvis kjøper ikke bidrar til gjennomføring av kundekontrollen og dette fører til at transaksjonen blir forsinket eller ikke kan gjennomføres, vil dette ansees som mislighold av avtalen og gi selger rettigheter etter avhendingslova kapittel 5. I tilfeller der selger ikke bidrar til gjennomføring av løpende kundekontroll underveis i oppdraget, er det selger som misligholder sine forpliktelser etter avtalen og gi kjøper rettigheter etter avhendingslovens kapittel 4. Partene er selv ansvarlige for eventuelle kostnader og ansvar dette kan medføre. Eiendomsmegleren eller eiendomsmeglingsforetaket kan ikke holdes ansvarlig for de konsekvenser dette vil kunne få for partene eller andre som har interesser i eiendomshandelen.
Kjøper oppfordres til å innbetale kjøpesummen som ikke kommer fra låneinstitusjon i én samlet innbetaling fra egen konto i norsk bank. Megler har plikt til å melde fra til Økokrim om eiendomshandler som fremstår som mistenkelige. Melding sendes Økokrim uten at partene varsles.
Personopplysningsloven
I henhold til personopplysningsloven gjør vi oppmerksom på at interessenter kan bli registrert for videre oppfølging.
Lovanvendelse
Generelle bestemmelser
Salgsoppgaven er basert på de opplysningene selger har gitt til megler, den bygningssakyndiges tilstandsrapport, samt opplysninger innhentet fra kommunen, Kartverket og andre tilgjengelige kilder. Det er viktig at kjøper setter seg grundig inn i alle salgsdokumentene, herunder salgsoppgave, tilstandsrapport og selgers egenerklæring. Kjøper anses kjent med forhold som er tydelig beskrevet i salgsdokumentene, og slike forhold kan ikke påberopes som mangler. Dette gjelder uavhengig av om kjøper har lest dokumentene. Alle interessenter oppfordres til å undersøke eiendommen nøye, gjerne sammen med fagkyndig før bud inngis. Kjøper som velger å kjøpe usett kan ikke gjøre gjeldende som mangel noe han burde blitt kjent med ved undersøkelsen.
Dersom det er behov for avklaringer, anbefaler vi at interessenter rådfører seg med eiendomsmegler eller egne rådgivere før det legges inn bud.
En bolig som har blitt brukt i en viss tid, har vanligvis blitt utsatt for slitasje og skader kan ha oppstått. Slik bruksslitasje må kjøper regne med, og det kan avdekkes enkelte forhold etter overtakelse som nødvendiggjør utbedringer. Normal slitasje og skader som nødvendiggjør utbedring, er innenfor hva kjøper må forvente og vil ikke utgjøre en mangel.
Kjøper og selgers rettigheter og plikter reguleres av avtalen mellom partene, samt informasjonen som har vært tilgjengelig for kjøperen i forbindelse med handelen. Avtalen utfylles av avhendingsloven, og det gjelder ulike avtalevilkår avhengig av om kjøper er forbrukerkjøper eller ikke. Dette er nærmere beskrevet nedenfor.
På grunn av ulike avtalevilkår kan selger vurdere bud fra en som ikke er forbruker, ulikt fra en forbrukers bud. Dersom kjøper ikke er forbruker, er selger sitt mulige mangelsansvar begrenset fordi eiendommen selges "som den er". Selger kan ikke ta «som den er»- forbehold overfor en forbrukerkjøper. Selv et lavere bud fra en som ikke er forbruker kan foretrekkes fordi begrensningen i mulig mangelsansvar kan ha egenverdi for selger. Selger står fritt til å forkaste eller akseptere ethvert bud, og er for eksempel ikke forpliktet til å akseptere høyeste bud.
Budgiver skal i budskjema avgi egenerklæring om budgiver er forbruker eller næringsdrivende/ person som hovedsakelig handler som ledd i næringsvirksomhet. Budgivere får informasjon dersom andre bud er inngitt av en som ikke er forbruker.
Forbrukerkjøp - definisjon
Med forbrukerkjøp menes kjøp av eiendom når kjøperen er en fysisk person som ikke hovedsakelig handler som ledd i næringsvirksomhet.
Forbruker – avtalevilkår
Eiendommen har en mangel dersom den ikke er i samsvar med kravene som følger av avtalen, eller det foreligger brudd på bestemmelsene i avhendingsloven §§ 3-2 til 3-8. Hvis eiendommen ikke er i samsvar med det kjøperen må kunne forvente ut ifra alder, type og synlig tilstand, kan det være grunnlag for mangelskrav. Det samme gjelder hvis det er holdt tilbake eller gitt uriktige opplysninger om eiendommen. Dette gjelder likevel bare dersom man kan gå ut ifra at det virket inn på avtalen at opplysningen ikke ble gitt eller at mangelskravet ikke blir rettet i tide på en tydelig måte.
Boligen kan ha en mangel etter avhendingsloven § 3-3 andre ledd, dersom det er avvik mellom opplyst og faktisk innvendig areal, forutsatt at avviket er på 2% eller mer og minimum 1 kvm.
Ved beregning av et eventuelt prisavslag eller erstatning må kjøper selv dekke tap/kostnader opptil et beløp på kr 10 000 (egenandel).
Ikke-forbruker (næringsdrivende) – definisjon
Hvis kjøper er en juridisk person, eller en fysisk person som hovedsakelig handler som ledd i næringsvirksomhet, vil kjøpet ikke anses som et forbrukerkjøp.
Ikke-forbruker – avtalevilkår
Eiendommen har en mangel dersom den ikke er i samsvar med kravene som følger av avtalen.
Eiendommen selges «som den er», og selgers ansvar utover det konkret avtalte er da begrenset etter avhendingsloven § 3-9, første ledd andre setning.
Avhendingsloven § 3-3 andre ledd fravikes, og hvorvidt boligens arealsvikt utgjør en mangel vurderes etter avhendingsloven § 3-8.
Informasjon om kjøpers undersøkelsesplikt, herunder oppfordringen om å undersøke eiendommen nøye, gjelder også for kjøpere som ikke anses som forbrukere.
Det forutsettes at hjemmel overføres til kjøper. Hvis kjøper ikke ønsker hjemmelsoverføring av eiendommen, må det tas forbehold om dette i budet.
Meglers vederlag
Meglers vederlag betales av selger og er avtalt til:
Vederlag: 1,30 % av salgssummen inkl. eventuell fellesgjeld. Minimumsprovisjon er kr 60 000,00
Vederlag:
Kontroll av hjemmel og heftelser kr 2 900,00
Markedsføringspakke kr 26 900,00
Oppgjør kr 7 500,00
Start smart - Kjøpsrådgivning kr 6 000,00
Tilrettelegging kr 14 000,00
Visninger pr stk / Overtagelse kr 2 000,00
Utlegg:
Innhenting av offentlig opplysninger Stavanger kommune kr 3 166,02
Tinglysing sikring kr 545,00
Andre utgifter:
AX tilstandsrapport rekkehus/tomannsbolig kr 17 500,00
Boligselgerforsikring Gjensidige Snr - regnes av prisantydning kr 0,00
Foto kr 4 200,00
Interiørrådgiving - kr 1 650,00
Vi er opptatt av verdiskapning, og har knyttet til oss samarbeidspartnere som skal sikre våre kunder de beste produkter og tjenester;
• I forbindelse med forberedelse av salget, innhenter vi informasjon om eiendommen hovedsakelig fra vår samarbeidspartner Ambita.
• Gjensidige leverer boligselgerforsikring og tilbyr bygningsforsikring
• Boligkjøperforsikring leveres av Hiscox og med Sedgwick som skadebehandler, og er formidlet gjennom Gjensidige.
• BN bank tilbyr finansieringsløsninger
• Vår avdeling Krogsveen Pluss tilbyr flyttetjenester som utvask, visningsvask, lager, tømming og transport av flyttelass, i tillegg til å formidle kontakt med Flip for overflateoppussing.
• I forbindelse med overtagelse av eiendommen tilbyr Overo avtale om strøm, alarm og bredbånd.
• Krogsveen er, sammen med øvrige bransjeaktører, medeier i Bomega AS som tilbyr den digitale annonseringsplattformen Hjem.
Opplysninger om oppdraget
Oppdragsnummer 33-0062/25
Eiendomsmegler Krogsveen AS, avd. Mariero
Langflåtveien 29, 4017, STAVANGER
950 007 613
Oppdragets KR-kode KR33.2562
Dato
Sist oppdatert: 29. april 2026 kl. 21:13
Dokumenter
Dokumenter
PDF – 1007 KB
PDF – 3 MB
PDF – 681 KB
PDF – 629 KB
PDF – 904 KB
PDF – 1011 KB
PDF – 862 KB
PDF – 1 MB
PDF – 1 MB
PDF – 488 KB
PDF – 1 MB
PDF – 312 KB
PDF – 29 KB
PDF – 127 KB
PDF – 392 KB
Område
Legg til steder som er viktige for deg
Visning
Unngå doble boligrenter
Vi tilbyr gunstig forsikring.
Vurderer du utleie?
Få et tilbud fra Utleie KrogsveenHva koster lånet?
Sjekk estimert lånekostnadVil du varsles om lignende boliger?
Ved å lagre ditt boligsøk hos oss får du beskjed når vi har en bolig som ligner denne, før den legges ut på markedet!






















































