Ødegårdsveien 17
2 890 000 kr
72 m²
1 soverom
Solgt

Flateby
Enebolig med stort potensial | Tomt på hele 2334 kvm | Skap ditt drømmehjem - her er rom for kreativ renovering!
Prisantydning
2 890 000 krOmkostninger
93 240 krTotalpris
2 983 240 kr
Pris
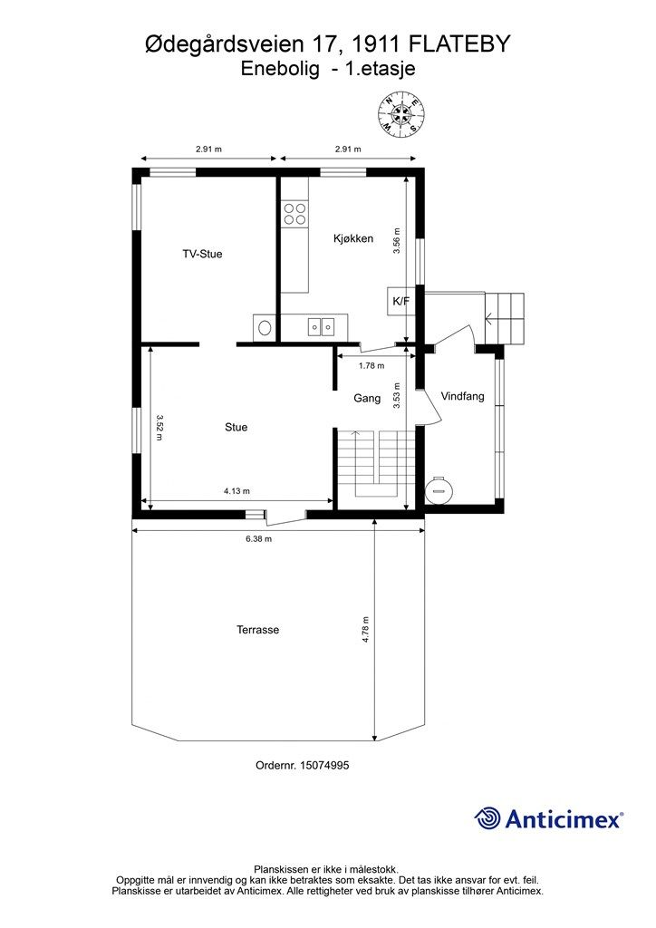
Bruksareal
115 m²BRA-I (internt bruksareal)
72 m²BRA-E (eksternt bruksareal)
43 m²TBA (terrasse-balkongareal)
29 m²
Areal
Etasje
2Byggeår
1917Soverom
1 soveromTomteareal
2 334 m² (eiet)Type
Enebolig - FrittliggendeEierform
EietFasiliteter
Balkong/TerrasseEnergimerke
Rød G
Nøkkelinfo
Unngå doble boligrenter
Vi tilbyr gunstig forsikring.
Vurderer du utleie?
Få et tilbud fra Utleie KrogsveenHva koster lånet?
Sjekk estimert lånekostnadBeskrivelse
Kort om eiendommen
Sjarmerende enebolig med behov for total oppgradering – perfekt for deg som ønsker å forme ditt eget drømmehjem!
Boligen har eldre standard og trenger omfattende oppgradering, men her får du en sjelden mulighet til å skape noe unikt.
Eiendommen ligger på en romslig og frodig tomt med god plass til hage, lek og uteområder.
Merk at det ikke er bad i boligen – her må våtrom etableres.
* Kjøkkenet har tilkomst til krypekjeller
* Oppvarming via elektriske ovner og vedovn.
* Kort vei til Østmarka
* Bussholdeplass kun 200 m fra boligen
Kontakt megler og bli med på en hyggelig visning!
Område
Legg til steder som er viktige for deg
På flyttefot? Tenk kjøp og salg samtidig.
Få din egen rådgiver gjennom hele kjøps- og salgsprosessen. Det starter med en verdivurdering.
Unngå doble boligrenter
Vi tilbyr gunstig forsikring.
Vurderer du utleie?
Få et tilbud fra Utleie KrogsveenHva koster lånet?
Sjekk estimert lånekostnadVil du varsles om lignende boliger?
Ved å lagre ditt boligsøk hos oss får du beskjed når vi har en bolig som ligner denne, før den legges ut på markedet!

