Johan Fastings gate 11
6 700 000 kr
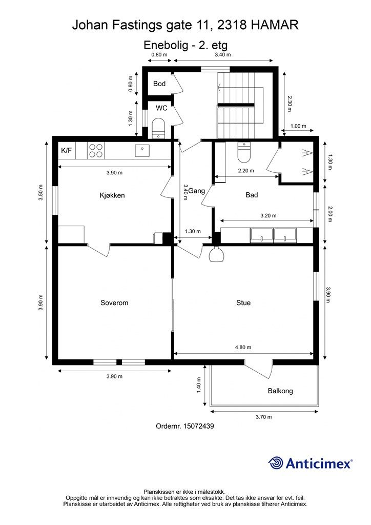
204 m²
2 soverom
Solgt
Hamar
Sjarmerende eiendom med modernisert enebolig, flott hage og dobbelgarasje. Populær beliggenhet rett ved Hamar sentrum.
Prisantydning
6 700 000 krOmkostninger
188 490 krTotalpris
6 888 490 kr
Pris
Bruksareal
259 m²BRA-I (internt bruksareal)
204 m²BRA-E (eksternt bruksareal)
55 m²TBA (terrasse-balkongareal)
10 m²
Areal
Byggeår
1912Soverom
2 soveromBad
2 badTomteareal
797 m² (eiet)Type
Enebolig - FrittliggendeEierform
EietFasiliteter
Garasje/P-plassEnergimerke
Oransje G
Nøkkelinfo
Unngå doble boligrenter
Vi tilbyr gunstig forsikring.
Vurderer du utleie?
Få et tilbud fra Utleie KrogsveenHva koster lånet?
Sjekk estimert lånekostnadBeskrivelse
Kort om eiendommen
Johan Fastings gate 11 er en sjarmerende villaeiendom med en attraktiv og sentral beliggenhet i Hamar, kun få minutters gange til sentrum og byens mange fasiliteter. Stor enebolig som er modernisert i delikate og tidsriktige farger og materialer, dette kombinert med eiendommens mange flotte detaljer som rause vinder, tregulv og gode takhøyde. God og praktisk rominndeling med kjøkken i egen sone, to romslige stuer i 1. etasje med fine innredningsmuligheter, to baderom og hyggelige uteplasser. Hjørnetomt med flott opparbeidet hage med plen, hekk som skjermer for innsyn, diverse trær og beplantning og innkjøring med belegningsstein. Parkering i dobbelgarasje. En eiendom med sjel og atmosfære i godt samspill med moderne og komfortabel standard.
Velkommen til en hyggelig visning!
Område
Legg til steder som er viktige for deg
På flyttefot? Tenk kjøp og salg samtidig.
Få din egen rådgiver gjennom hele kjøps- og salgsprosessen. Det starter med en verdivurdering.
Unngå doble boligrenter
Vi tilbyr gunstig forsikring.
Vurderer du utleie?
Få et tilbud fra Utleie KrogsveenHva koster lånet?
Sjekk estimert lånekostnadVil du varsles om lignende boliger?
Ved å lagre ditt boligsøk hos oss får du beskjed når vi har en bolig som ligner denne, før den legges ut på markedet!




