Åkåvegen 7B
3 450 000 kr
80 m²
2 soverom
Solgt

Spjelkavik
Lys og populær 3-roms selveierleilighet | Carport | Familievennlig område | Kort vei til Moa med alle fasiliteter
Prisantydning
3 450 000 krOmkostninger
97 290 krTotalpris
3 547 290 kr
Pris
Bruksareal
91 m²BRA-I (internt bruksareal)
80 m²BRA-E (eksternt bruksareal)
11 m²TBA (terrasse-balkongareal)
16 m²
Areal
Etasje
2Byggeår
2007Soverom
2 soveromBad
1 badType
EierleilighetEierform
EierseksjonFasiliteter
Garasje/P-plass og Balkong/TerrasseFellesutgifter
1 200 krEnergimerke
Oransje D
Nøkkelinfo
Unngå doble boligrenter
Vi tilbyr gunstig forsikring.
Vurderer du utleie?
Få et tilbud fra Utleie KrogsveenHva koster lånet?
Sjekk estimert lånekostnadBeskrivelse
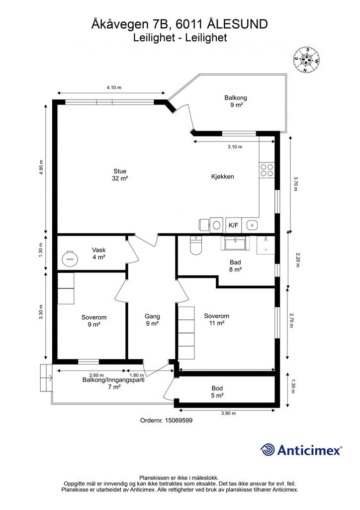
Kort om eiendommen
Sentral og innholdsrik 3-roms eierleilighet i 2 etasje i korsdelt firemannsbolig.
* Stue og kjøkken i åpen løsning.
* 2 soverom.
* Sydvendt balkong på 16 kvm.
* Sportsbod og loft med gode lagringsmuligheter.
* Familievennlig boligområde med lekeplass.
* Carport .
* Kort vei til Moa med alle fasiliteter.
* Flotte turmuligheter i nærområdet.
Velkommen til påmeldingsvisning!
Område
Legg til steder som er viktige for deg
På flyttefot? Tenk kjøp og salg samtidig.
Få din egen rådgiver gjennom hele kjøps- og salgsprosessen. Det starter med en verdivurdering.
Unngå doble boligrenter
Vi tilbyr gunstig forsikring.
Vurderer du utleie?
Få et tilbud fra Utleie KrogsveenHva koster lånet?
Sjekk estimert lånekostnadVil du varsles om lignende boliger?
Ved å lagre ditt boligsøk hos oss får du beskjed når vi har en bolig som ligner denne, før den legges ut på markedet!

