Bølerlia 141
4 200 000 kr
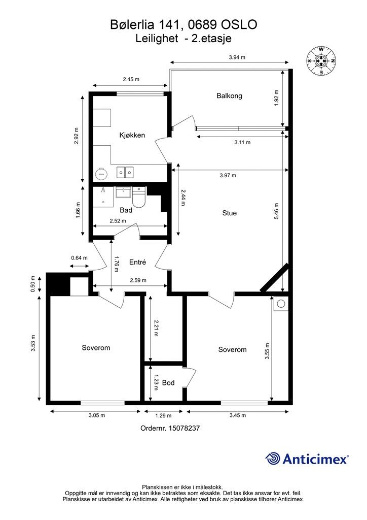
69 m²
2 soverom
Solgt
Bøler v/marka
3-roms oppussingsobjekt rett v/Østmarka | Beste interne beliggenhet? | Vestvendt balkong | Pipeløp | Ingen forkjøpsrett
Prisantydning
4 200 000 krAndel fellesgjeld
151 682 krOmkostninger
11 040 krTotalpris
4 362 722 kr
Pris
Bruksareal
77 m²BRA-I (internt bruksareal)
69 m²BRA-E (eksternt bruksareal)
8 m²TBA (terrasse-balkongareal)
7 m²
Areal
Etasje
2Byggeår
1960Soverom
2 soveromBad
1 badType
AndelsleilighetEierform
AndelFasiliteter
Balkong/TerrasseFellesutgifter
3 627 krEnergimerke
Gul D
Nøkkelinfo
Unngå doble boligrenter
Vi tilbyr gunstig forsikring.
Vurderer du utleie?
Få et tilbud fra Utleie KrogsveenHva koster lånet?
Sjekk estimert lånekostnadDette liker selger best ved boligen
God planløsning, godt med oppbevaring (to kott i leiligheten og to boder i kjelleren). Stille og rolig oppgang med hyggelige naboer. Vært kun en eier siden leiligheten var ny. Stor og deilig veranda med mye sol. Gode lysforhold med store stuevinduer. Soverom vender mot skogen/Haraløkka parkeringsplass. Svært god intern beliggenhet. Kort vei til barne- og ungdomsskole og flere barnehager. Veldig barnevennlig beliggenhet. Lov med husdyr, hundevennlig borettslag. Inngang til Østmarka rett bak blokken. Umiddelbar nærhet til badevann (Nøklevann og Ulsrudvann), oppkjørte skiløyper vinterstid, idrettsanlegg og matbutikker. Kort vei til Bøler Senter, t-bane og buss (ca. 10 min gåtid). Mulig å kjøpe garasje hvis ledig og parkeringsplass etter ansiennitet.
Beskrivelse
Kort om eiendommen
Gjennomgående 3-roms andelsleilighet med super beliggenhet rett ved Østmarka – fantastiske muligheter for aktiv utfoldelse sommer som vinter!
Buldring og klatring, fiske, Nøklevann m/bading og roklubb, gang- og sykkelturer, ski og skøyter – alt rett utenfor døren. Her får du en sjelden kombinasjon av natur, ro og nærhet til byen.
Verdt å fremheve:
- Oppussingsobjekt - her kan du sette ditt eget preg!
- God planløsning - Brl.s beste beliggenhet?
- Vestvendt balkong på 7 kvm med luftig utsyn
- Lys stue m/pipeløp
- Sep. kjøkken m/spiseplass ved vindu
- Bad gitt TG3
- To romslige soverom - begge vender ut mot marka
- To innvendig boder (ca. 4,4 kvm til sammen) + to kjellerboder (4 kvm hver)
- 290 m til Rema 1000
- Kort vei til barnehager, skole, Bøler Senter og T-bane
- Ingen forkjøpsrett
Område
Legg til steder som er viktige for deg
På flyttefot? Tenk kjøp og salg samtidig.
Få din egen rådgiver gjennom hele kjøps- og salgsprosessen. Det starter med en verdivurdering.
Unngå doble boligrenter
Vi tilbyr gunstig forsikring.
Vurderer du utleie?
Få et tilbud fra Utleie KrogsveenHva koster lånet?
Sjekk estimert lånekostnadVil du varsles om lignende boliger?
Ved å lagre ditt boligsøk hos oss får du beskjed når vi har en bolig som ligner denne, før den legges ut på markedet!




