Hakkespettlia 18
8 800 000 kr
230 m²
7 soverom
Solgt

Hellvik
Særdeles innholdsrik enebolig med potensiale, innehar bl.a 7 soverom og 2 bad hvorav 3 soverom + 1 bad i u.etg.
Prisantydning
8 800 000 krOmkostninger
240 900 krTotalpris
9 040 900 kr
Pris
Bruksareal
274 m²BRA-I (internt bruksareal)
230 m²BRA-E (eksternt bruksareal)
44 m²TBA (terrasse-balkongareal)
83 m²
Areal
Byggeår
2001Soverom
7 soveromBad
2 badTomteareal
1 120 m² (eiet)Type
Enebolig - FrittliggendeEierform
EietFasiliteter
Garasje/P-plass og Balkong/TerrasseEnergimerke
Gul C
Nøkkelinfo
Unngå doble boligrenter
Vi tilbyr gunstig forsikring.
Vurderer du utleie?
Få et tilbud fra Utleie KrogsveenHva koster lånet?
Sjekk estimert lånekostnadDette liker selger best ved boligen
Fantastisk beliggenhet, nærhet til barnehage/skole, rolig, skjermet fra vei og naboer, stor inn og ute plass, god isolert, energi effektivt, mye lys, lagrings plass, romslig baderom med badekar, mulighet å bygge hybel, nærhet til sjøen, god knytting til byen (bussholdeplass 10 min fra huset)
Beskrivelse
Kort om eiendommen
Flott eiendom med meget innholdsrik enebolig, garasje og stor vakker tomt.
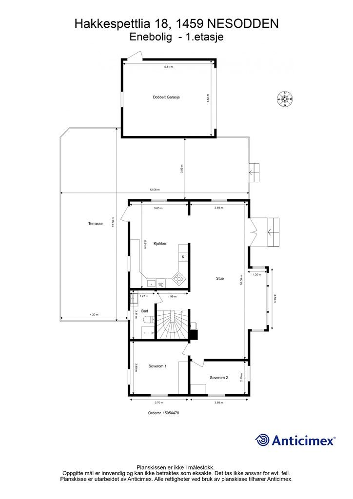
Eiendommen er ideell for barnefamilier, med en god planløsning. 1.etg gir muligheten til å leve komfortabelt med alt på ett plan med stue, kjøkken, bad og to soverom. Loftsetg har ytterligere to soverom samt et eget te-kjøkken.
U.etg har Inngangsparti, stor entrè, tre soverom, et stort bad, vaskerom og boder.
Eiendommen ligger i et populært og barnevennlig boområde med kort vei til bl.a. skoler, barnehager, offentlig kommunikasjon og flotte badestrender.
Område
Legg til steder som er viktige for deg
På flyttefot? Tenk kjøp og salg samtidig.
Få din egen rådgiver gjennom hele kjøps- og salgsprosessen. Det starter med en verdivurdering.
Unngå doble boligrenter
Vi tilbyr gunstig forsikring.
Vurderer du utleie?
Få et tilbud fra Utleie KrogsveenHva koster lånet?
Sjekk estimert lånekostnadVil du varsles om lignende boliger?
Ved å lagre ditt boligsøk hos oss får du beskjed når vi har en bolig som ligner denne, før den legges ut på markedet!

