Torjusbakken 20G
12 500 000 kr
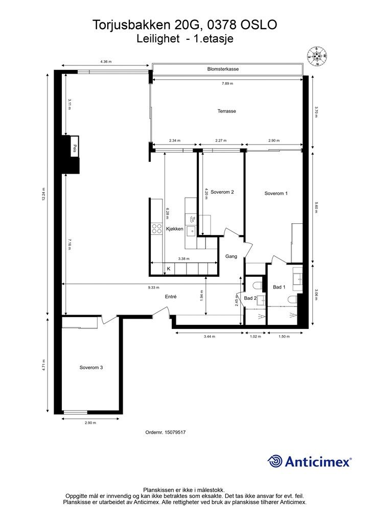
139 m²
3 soverom
Solgt

Presenteres av
Kristian GjerdingenHusebybakken
Rålekker 4-roms terrasseleilighet m/attraktiv beliggenhet| 29 m² sydvestvendt terrasse med fjordutsikt | Peis og garasje
Prisantydning
12 500 000 krOmkostninger
323 540 krTotalpris
12 823 540 kr
Pris
Bruksareal
156 m²BRA-I (internt bruksareal)
139 m²BRA-E (eksternt bruksareal)
17 m²TBA (terrasse-balkongareal)
29 m²
Areal
Etasje
1Byggeår
1972Soverom
3 soveromBad
2 badType
EierleilighetEierform
EierseksjonFasiliteter
Garasje/P-plass og Balkong/TerrasseFellesutgifter
4 944 krEnergimerke
Gul D
Nøkkelinfo
Unngå doble boligrenter
Vi tilbyr gunstig forsikring.
Vurderer du utleie?
Få et tilbud fra Utleie KrogsveenHva koster lånet?
Sjekk estimert lånekostnadBeskrivelse
Kort om eiendommen
Velkommen til Torjusbakken 20G!
En rålekker og romslig terrasseleilighet med intern og svært attraktiv beliggenhet i populære Husebyåsen/Montebello. Her bor du stille og tilbaketrukket med kort vei til flotte grøntområder, turmuligheter og gode servicetilbud. Leiligheten har en gjennomtenkt planløsning og store vindusflater som gir rikelig med lys og en luftig romfølelse. Fra stuen er det utgang til en fantastisk sydvestvendt terrasse på hele 29 m² med flott utsikt mot fjorden – perfekt for lange, solrike dager. Peisovnen skaper en lun og hyggelig atmosfære på kjølige kvelder.
Høydepunkter:
• Stor 4-roms selveierleilighet på 139 m²
• 29 m² sydvestvendt terrasse m/ fjordutsikt
• Peis i stuen
• To bad og moderne kjøkken
• Garasjeplass i felles anlegg
• Attraktiv og rolig beliggenhet
Område
Legg til steder som er viktige for deg
På flyttefot? Tenk kjøp og salg samtidig.
Få din egen rådgiver gjennom hele kjøps- og salgsprosessen. Det starter med en verdivurdering.
Unngå doble boligrenter
Vi tilbyr gunstig forsikring.
Vurderer du utleie?
Få et tilbud fra Utleie KrogsveenHva koster lånet?
Sjekk estimert lånekostnadVil du varsles om lignende boliger?
Ved å lagre ditt boligsøk hos oss får du beskjed når vi har en bolig som ligner denne, før den legges ut på markedet!
På flyttefot? Slik gjør vi det enklere for deg
Skreddersydd flyttepakke
Vi fikser håndverkere, vask, pakking, lagring og transport, og legger ut for utgiftene underveis.
Hjelp med både kjøp og salg
Hos oss har du din egen rådgiver gjennom hele kjøps- og salgsprosessen.
Hjelp til finansiering
Vårt samarbeid med BN Bank sikrer deg rask og løsningsorientert hjelp, til konkurransedyktige betingelser.












































