Teiealleen 12
3 100 000 kr
60 m²
2 soverom
Solgt

Nannestad
Lys og moderne 3-roms leilighet fra 2021 i Nannestad sentrum | God planløsning | Balkong | Heis | Garasjeplass
Prisantydning
3 100 000 krOmkostninger
88 540 krTotalpris
3 188 540 kr
Pris
Bruksareal
60 m²BRA-I (internt bruksareal)
60 m²TBA (terrasse-balkongareal)
9 m²
Areal
Etasje
2Byggeår
2021Soverom
2 soveromBad
1 badType
EierleilighetEierform
EierseksjonFasiliteter
Garasje/P-plass og HeisFellesutgifter
4 970 krEnergimerke
Lysegrønn B
Nøkkelinfo
Unngå doble boligrenter
Vi tilbyr gunstig forsikring.
Vurderer du utleie?
Få et tilbud fra Utleie KrogsveenHva koster lånet?
Sjekk estimert lånekostnadBeskrivelse
Kort om eiendommen
Velkommen til Teiealleen 12 - en lys og moderne leilighet midt i sentrum av Nannestad. Her kan du flytte rett inn i bygg oppført i 2021 og ha gangavstand til alt du trenger som butikker og servicetilbud. Det er gangavstand til Preståsen barneskole, Nannestad videregående og barnehage. Nærhet til flotte tur- og friluftsområder i Romeriksåsen.
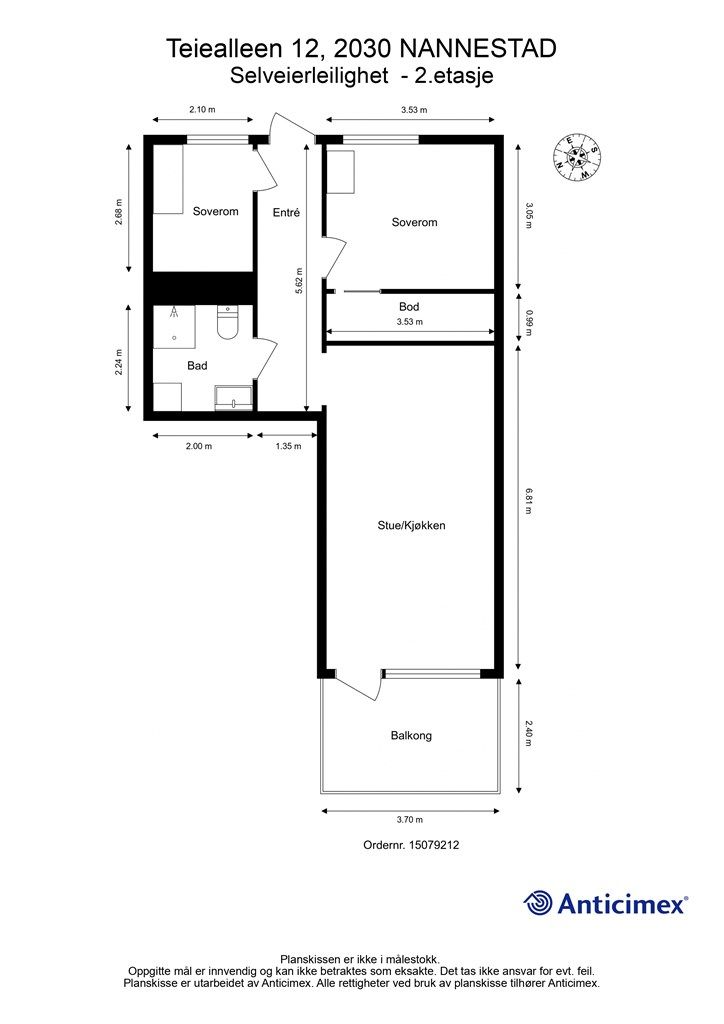
Leiligheten ligger i 2. etg. og inneholder entré, to soverom, bad, stue/kjøkken, bod. Det er åpen kjøkken- og stueløsning med god plass til både sofagruppe og spisebord. Fra stuen er det utgang til balkong på 9 kvm. Soverommene har garderobeskap. Delikat baderom og innbydende entré med god oppbevaringsplass. Leiligheten har malte veggflater og himlingsflater. Laminat på gulv. Boligen disponerer en kjellerbod på 5 kvm. og en garasjeplass.
Område
Legg til steder som er viktige for deg
På flyttefot? Tenk kjøp og salg samtidig.
Få din egen rådgiver gjennom hele kjøps- og salgsprosessen. Det starter med en verdivurdering.
Unngå doble boligrenter
Vi tilbyr gunstig forsikring.
Vurderer du utleie?
Få et tilbud fra Utleie KrogsveenHva koster lånet?
Sjekk estimert lånekostnadVil du varsles om lignende boliger?
Ved å lagre ditt boligsøk hos oss får du beskjed når vi har en bolig som ligner denne, før den legges ut på markedet!

