Vibes gate 26A
6 600 000 kr
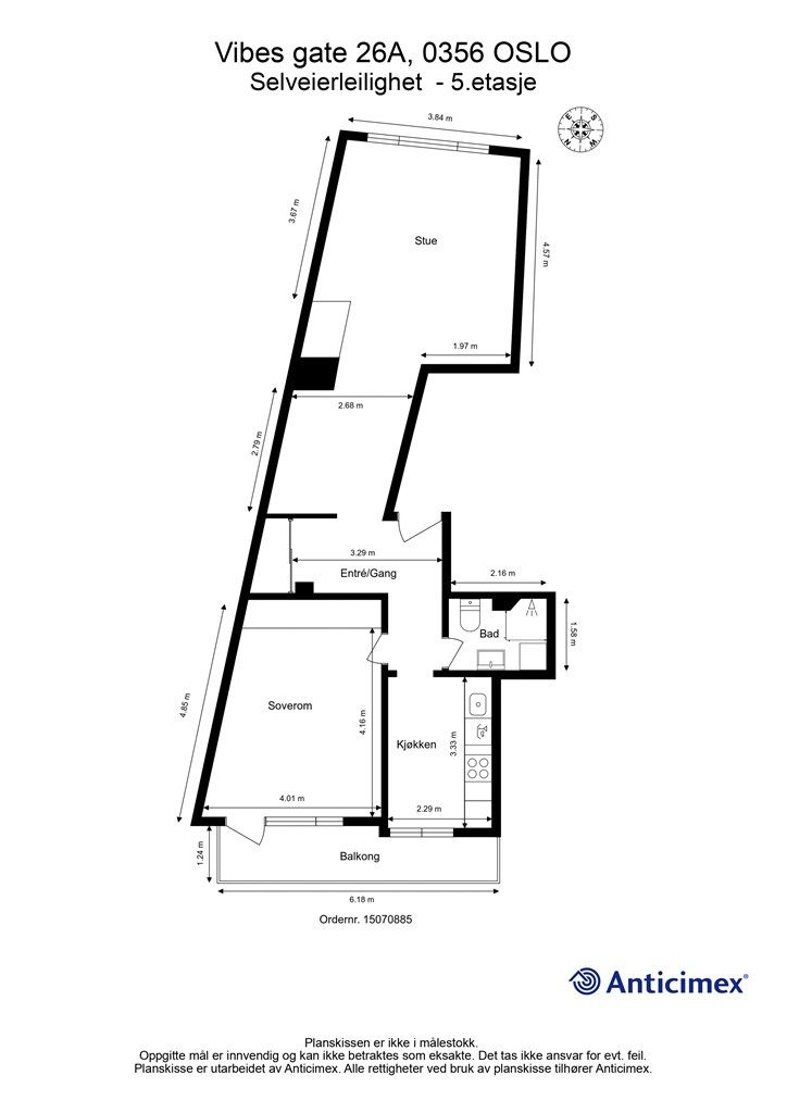
67 m²
1 soverom
Solgt

Majorstuen
Stor, lys & gjennomgående eierseksjon m/peis - Solrik balkong mot rolig bakgård - Potensiale for omgjøring til 3-roms.
Prisantydning
6 600 000 krAndel fellesgjeld
187 228 krOmkostninger
180 710 krTotalpris
6 967 938 kr
Pris
Bruksareal
71 m²BRA-I (internt bruksareal)
67 m²BRA-E (eksternt bruksareal)
4 m²TBA (terrasse-balkongareal)
7 m²
Areal
Etasje
5Byggeår
1935Soverom
1 soveromBad
1 badType
EierleilighetEierform
EierseksjonFasiliteter
Balkong/TerrasseFellesutgifter
6 476 krEnergimerke
Grønn F
Nøkkelinfo
Unngå doble boligrenter
Vi tilbyr gunstig forsikring.
Vurderer du utleie?
Få et tilbud fra Utleie KrogsveenHva koster lånet?
Sjekk estimert lånekostnadBeskrivelse
Kort om eiendommen
Velkommen til Vibes gate 26A, en attraktiv og gjennomgående 2-roms m/peis og solrik balkong. Leiligheten er omfattende oppusset i 2015, malt opp i 2020 og fremstår som pen og stilfull. Mulighet for omgjøring til 3-roms ved å flytte kjøkken ut i mellomstuen. Flere seksjoner i sameiet har gjort dette. Boligen ligger sentralt og meget attraktivt på Majorstuen, like ved den populære handlegaten Bogstadveien. Vibes gate er en stille og lite trafikkert gate med gangavstand til "alt" byen har å by på.
Kort fortalt:
- Solrik balkong på 7 m2 vendt mot bakgård
- Romslig soverom med rikelig garderobeplass
- Potensial for to soverom - se alternativ planløsning
- Varmtvann, fyring, TV & internett inkl. i felleskostnadene
- God takhøyde på opp til 2,66 m
- Veldrevet sameie med godt naboskap
Område
Legg til steder som er viktige for deg
På flyttefot? Tenk kjøp og salg samtidig.
Få din egen rådgiver gjennom hele kjøps- og salgsprosessen. Det starter med en verdivurdering.
Unngå doble boligrenter
Vi tilbyr gunstig forsikring.
Vurderer du utleie?
Få et tilbud fra Utleie KrogsveenHva koster lånet?
Sjekk estimert lånekostnadVil du varsles om lignende boliger?
Ved å lagre ditt boligsøk hos oss får du beskjed når vi har en bolig som ligner denne, før den legges ut på markedet!

