Bjørn Bondes vei 73
3 200 000 kr
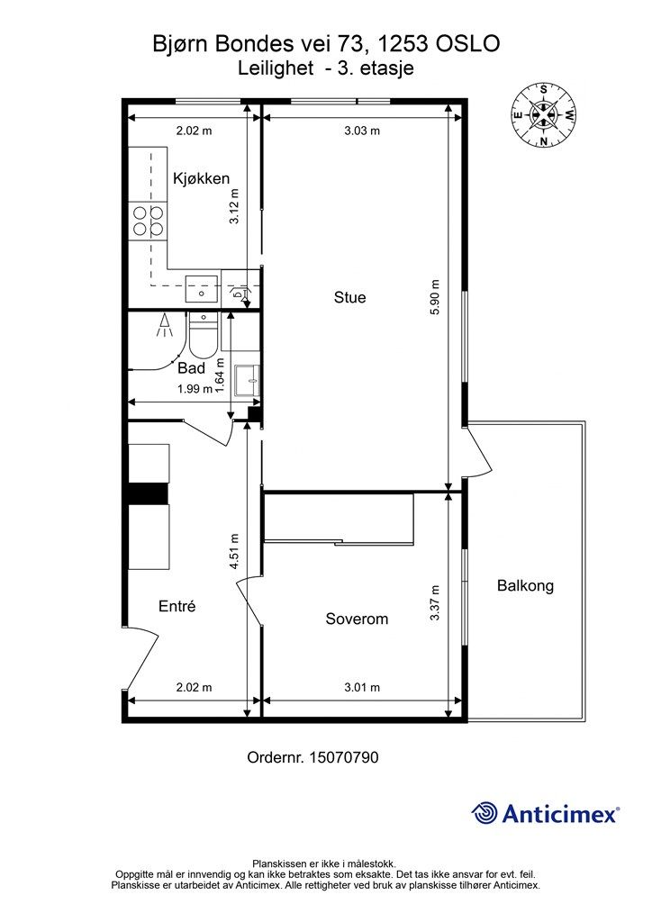
49 m²
1 soverom
Solgt
Holmlia
Lys, romslig 2-roms hjørneleil.|Vestvendt balkong m/luftig utsyn|A konto oppv./v.vann inkl.|Nær marka, sjøen og off.komm
Prisantydning
3 200 000 krAndel fellesgjeld
6 000 krOmkostninger
19 252 krTotalpris
3 225 252 kr
Pris
Bruksareal
55 m²BRA-I (internt bruksareal)
49 m²BRA-E (eksternt bruksareal)
6 m²TBA (terrasse-balkongareal)
8 m²
Areal
Etasje
3Byggeår
1987Soverom
1 soveromBad
1 badType
AndelsleilighetEierform
AndelFasiliteter
Balkong/TerrasseFellesutgifter
5 048 krEnergimerke
Lysegrønn E
Nøkkelinfo
Unngå doble boligrenter
Vi tilbyr gunstig forsikring.
Vurderer du utleie?
Få et tilbud fra Utleie KrogsveenHva koster lånet?
Sjekk estimert lånekostnadDette liker selger best ved boligen
Veldig varm leilighet, lave strømutgifter. Bra lysforhold.
Beskrivelse
Kort om eiendommen
Lys og romslig 2-roms, i idylliske omgivelser tett på naturen!
Verdt å nevne:
- Hjørneleilighet vendt mot sydvest gjør leiligheten spesielt lys - luftig utsyn.
- Vestvendt balkong på 8 kvm, med gode solforhold og ingen innsyn
- Pent, flislagt bad fra 2009, og medfølgende vaskemaskin og tørketrommel.
- Separat kjøkken med god skap- og benkeplass
- Lys og innbydende hjørnestue
- Romslig soverom med skyvedørsgarderobe
- Stor entré med garderobeskap
- Disp. loftsbod, med gulvareal på 9 kvm (skråtak/lav takhøyde)
- Felles sykkelbod, og gode parkeringsmulighet for bil
- Kort vei til turområder, butikker og kollektivtilbud
- A konto oppvarming/varmtvann inkl. i felleskostnadene => lave strømkostnader
- Gjesteparkering
Til info. Merkbare skjevheter i stue og soverom
Område
Legg til steder som er viktige for deg
På flyttefot? Tenk kjøp og salg samtidig.
Få din egen rådgiver gjennom hele kjøps- og salgsprosessen. Det starter med en verdivurdering.
Unngå doble boligrenter
Vi tilbyr gunstig forsikring.
Vurderer du utleie?
Få et tilbud fra Utleie KrogsveenHva koster lånet?
Sjekk estimert lånekostnadVil du varsles om lignende boliger?
Ved å lagre ditt boligsøk hos oss får du beskjed når vi har en bolig som ligner denne, før den legges ut på markedet!




