Solsidevegen 78B
4 290 000 kr
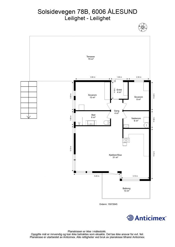
92 m²
2 soverom
Solgt

"Hessa Syd"
Flott sydvendt toppleilighet med flott utsikt og gode solforhold |2 soverom| |Garasjeplass| |Oppgradert bad fra 2019|
Prisantydning
4 290 000 krOmkostninger
118 290 krTotalpris
4 408 290 kr
Pris
Bruksareal
120 m²BRA-I (internt bruksareal)
92 m²BRA-E (eksternt bruksareal)
28 m²TBA (terrasse-balkongareal)
83 m²
Areal
Etasje
2Byggeår
2012Soverom
2 soveromBad
1 badType
EierleilighetEierform
EierseksjonFasiliteter
Garasje/P-plass og Balkong/TerrasseFellesutgifter
700 krEnergimerke
Oransje B
Nøkkelinfo
Unngå doble boligrenter
Vi tilbyr gunstig forsikring.
Vurderer du utleie?
Få et tilbud fra Utleie KrogsveenHva koster lånet?
Sjekk estimert lånekostnadBeskrivelse
Kort om eiendommen
Flott leilighet beliggende på Hessa Syd i øverste etasje med garasje. Leiligheten fremstår som lys og tiltalende med gode solforhold og flott utsikt
* Utvidet stue
* 2 soverom
* Lekkert bad som er oppgradert fra 2019
* Sydvendt balkong på 13m2
* Nordvendt terrasse på 70 m2
* Garasjeplass
* Mulighet for montering av ladeboks
Fra boligen er det gangavstand til både Hessa skole, Norlandia barnehage, Slinningen barnehage, Osane idrettshall m.m. For friluftsinteresserte er det flotte turmuligheter både langs sjøen og på Sukkertoppen, som ligger på midten av øya. I tillegg er Atlanterhavsparken, et av Nord-Europas største saltvannsakvarier, lett tilgjengelig fra området. I nærområdet finner man også dagligvarebutikk og treningss
Område
Legg til steder som er viktige for deg
På flyttefot? Tenk kjøp og salg samtidig.
Få din egen rådgiver gjennom hele kjøps- og salgsprosessen. Det starter med en verdivurdering.
Unngå doble boligrenter
Vi tilbyr gunstig forsikring.
Vurderer du utleie?
Få et tilbud fra Utleie KrogsveenHva koster lånet?
Sjekk estimert lånekostnadVil du varsles om lignende boliger?
Ved å lagre ditt boligsøk hos oss får du beskjed når vi har en bolig som ligner denne, før den legges ut på markedet!

