Skarpetegvegen 1
4 890 000 kr
109 m²
3 soverom
Solgt

Blindheim
Velholdt 4-roms leilighet i attraktivt område | Garasje og heis i bygget| Balkong med gode sol- og utsiktsforhold
Prisantydning
4 890 000 krAndel fellesgjeld
57 810 krOmkostninger
134 710 krTotalpris
5 082 520 kr
Pris
Bruksareal
116 m²BRA-I (internt bruksareal)
109 m²BRA-E (eksternt bruksareal)
7 m²TBA (terrasse-balkongareal)
13 m²
Areal
Etasje
2Byggeår
2002Soverom
3 soveromBad
2 badType
EierleilighetEierform
EierseksjonFasiliteter
Garasje/P-plass, Heis og Balkong/TerrasseFellesutgifter
4 270 krEnergimerke
Rød D
Nøkkelinfo
Unngå doble boligrenter
Vi tilbyr gunstig forsikring.
Vurderer du utleie?
Få et tilbud fra Utleie KrogsveenHva koster lånet?
Sjekk estimert lånekostnadBeskrivelse
Kort om eiendommen
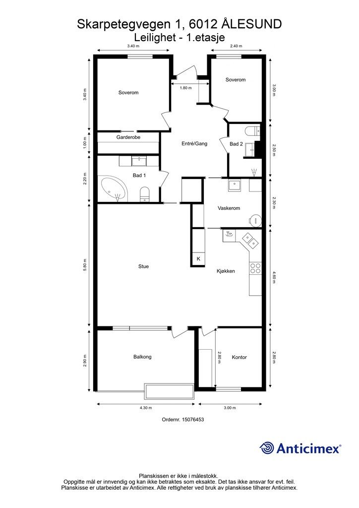
Velkommen til Skarpetegvegen 1 - en romslig og velholdt 4-roms eierleilighet beliggende i en høy førsteetasje i et populært og sentralt område.
Leiligheten har en gjennomtenkt planløsning med entré med skyvedørsgarderobe, to flislagte bad, vaskerom, åpen stue/kjøkkenløsning med naturlig soneinndeling og tre soverom. Fra stuen er det utgang til en solrik balkong på 13 kvm med fin utsikt. Garasjeplass med elbillader og bod følger med.
Her bor du i gangavstand til Blindheim Butikksenter med dagligvarebutikk, apotek, legekontor og tannlege. I nærområdet finner du også Rema 1000, spisesteder, treningssenter, barnehager og både barne- og ungdomsskole. Moa ligger kun ca. 7 minutter unna med bil. Fine turmuligheter rett utenfor døren med sti til Emblemsfjellet.
Velkommen til visning!
Område
Legg til steder som er viktige for deg
På flyttefot? Tenk kjøp og salg samtidig.
Få din egen rådgiver gjennom hele kjøps- og salgsprosessen. Det starter med en verdivurdering.
Unngå doble boligrenter
Vi tilbyr gunstig forsikring.
Vurderer du utleie?
Få et tilbud fra Utleie KrogsveenHva koster lånet?
Sjekk estimert lånekostnadVil du varsles om lignende boliger?
Ved å lagre ditt boligsøk hos oss får du beskjed når vi har en bolig som ligner denne, før den legges ut på markedet!

