Skøyenåsveien 19
5 400 000 kr
74 m²
2 soverom
Solgt

Oppsal
Attraktiv 3-roms (oppr. 4-roms) | Balkong | Oppgradert 2022/23 | Fjernvarme inkl. | Nær Østensjøvannet, marka og T-bane
Prisantydning
5 400 000 krAndel fellesgjeld
119 437 krOmkostninger
19 252 krTotalpris
5 538 689 kr
Pris
Bruksareal
77 m²BRA-I (internt bruksareal)
74 m²BRA-E (eksternt bruksareal)
3 m²TBA (terrasse-balkongareal)
11 m²
Areal
Etasje
3Byggeår
1955Soverom
2 soveromBad
1 badType
AndelsleilighetEierform
AndelFasiliteter
Balkong/TerrasseFellesutgifter
5 031 krEnergimerke
Lysegrønn G
Nøkkelinfo
Unngå doble boligrenter
Vi tilbyr gunstig forsikring.
Vurderer du utleie?
Få et tilbud fra Utleie KrogsveenHva koster lånet?
Sjekk estimert lånekostnadDette liker selger best ved boligen
Leiligheten er lys og luftig med mange vinduer som gir godt lysinnslipp, samtidig som den kjennes varm og hjemmekoselig. Jeg liker veldig godt det store soverommet som jeg har benyttet som multirom til gjesterom, kontor og trening. Dette kan også enkelt gjøres om til 2 soverom. Det er badekar på badet som har blitt brukt flittig. Den sørvendte balkongen med sol hele dagen og til langt ut på kvelden, har også blitt flittig brukt. Det er god utsikt fra 3. etg, og man kan trygt invitere på nyttårsfest hvor gjestene kan nyte fyrverkeri fra store deler av området og ned mot gamlebyen. Det er stille og rolig i blokka, og det er bare hyggelige naboer. Det har vært viktig for meg at leiligheten ligger veldig sentralt i forhold til t-bane (6 min til Oppsal og 6 min til Skøyenåsen) og buss, og til Oppsal senter for dagligvarer og ulike take aways'. Det er også godt tilrettelagt for oppbevaring i 2 boder, og med mulighet for parkeringsplass for bil med el-lader og sykkelskur til el-sykkel med fast skal til lading av batteri. Borettslaget er tilknyttet vaktmestertjenester som raskt hjelper til å fikse ting og det er mulighet til å bli med i bl.a. hagelag i regi av borettslaget. Ellers er Oppsal et veldig trygt og familievennlig nabolag hvor barn kan bevege seg trygt rundt. Det er kort og trygg vei til gode skoler, barnehager og idrettsanlegg i nærheten. Og sist men ikke minst - kort vei til marka! Det er bare å ta skiene i handa og gå opp til løypene.
Beskrivelse
Kort om eiendommen
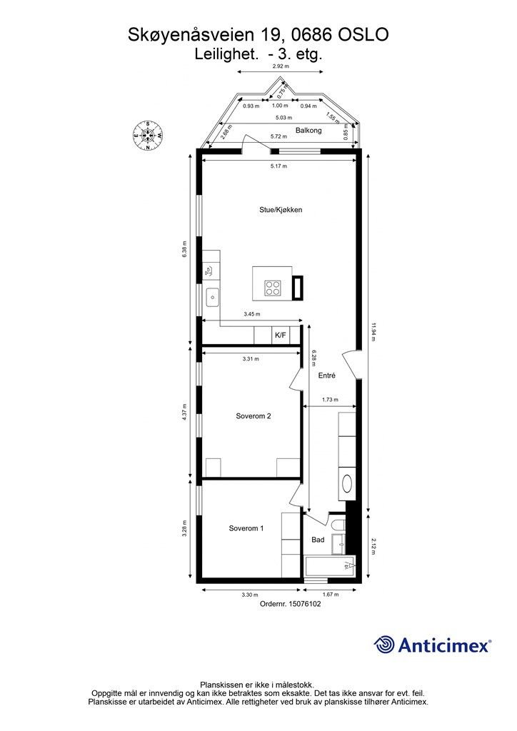
Innbydende 3-roms (opprinnelig 4-roms) på populære Oppsal – oppgradert i 2022/23.
Verdt å fremheve:
- Sydvendt balkong på 11 kvm
- Fjernvarme og TV/Internett inkl. i felleskostnadene
- Vinduer og balkongdør fra 2018
- Parkett, harmoniske fargevalg og teglsteinsdetaljer
- Lys og åpen stue-/kjøkkenløsning
- Kjøkken fra 2023 (medfølgende hvitevarer)
- Pent bad fra 2002, oppgradert i 2022 med flis på flis, innredning og badekar
- To romslige soverom (kan tilbakeføres til original løsning med tre soverom)
- Smart løsning i entré: skap med varmtvannsbereder (190 L, 2022) og vaskemaskin
- Disp. kjellerbod (2 kvm) og loftsbod (gulvareal 13 kvm, skråtak)
- Barnevennlige fellesarealer
- Busstopp rett ved. Ca. 6 min. til T-bane, ~15 min. til sentrum
- Kort vei til Østensjøvannet, marka og nærsenter.
Område
Legg til steder som er viktige for deg
På flyttefot? Tenk kjøp og salg samtidig.
Få din egen rådgiver gjennom hele kjøps- og salgsprosessen. Det starter med en verdivurdering.
Unngå doble boligrenter
Vi tilbyr gunstig forsikring.
Vurderer du utleie?
Få et tilbud fra Utleie KrogsveenHva koster lånet?
Sjekk estimert lånekostnadVil du varsles om lignende boliger?
Ved å lagre ditt boligsøk hos oss får du beskjed når vi har en bolig som ligner denne, før den legges ut på markedet!

