Finholtvegen 20A
5 990 000 kr
183 m²
5 soverom
Komplett salgsoppgave

Jessheim
Stor halvpart vertikaldelt tomannsbolig med hybel|5 soverom|3 bad|2 kjøkken|2 innganger|Dobbelgarasje|Barnevennlig
Prisantydning
5 990 000 krTotalpris
5 990 000 kr
Pris
Bruksareal
216 m²BRA-I (internt bruksareal)
183 m²BRA-E (eksternt bruksareal)
33 m²TBA (terrasse-balkongareal)
19 m²
Areal
Byggeår
2004Soverom
5 soveromBad
3 badType
Halvpart vertikaldelt boligEierform
EierseksjonFasiliteter
Garasje/P-plass og Balkong/TerrasseEnergimerke
Gul D
Nøkkelinfo
Unngå doble boligrenter
Vi tilbyr gunstig forsikring.
Vurderer du utleie?
Få et tilbud fra Utleie KrogsveenHva koster lånet?
Sjekk estimert lånekostnadDette liker selger best ved boligen
Nært bussholdeplass, flyplass og sentrum, familievennlig område, nært marka
Beskrivelse
Kort om eiendommen
Stor bolig med mange rom, og det er inngang til boenheten både fra 1. etasje og kjeller. Boligens hovedetasje inneholder entré, stue med åpen kjøkkenløsning, bad og soverom. Det er utgang fra stue til terrasse, og adkomst via innvendig trapp til kjeller fra denne etasjen. 2. etasje består av gang, bad og tre soverom. Kjelleren inneholder entré, kjellerstue, kjøkken, bad, kontor og soverom. Kjelleren er ikke en selvstendig enhet, men det er egen inngang i kjeller. Eiendommen har dobbelgarasje.
Fra eiendommen er det kort avstand til skoler, barnehager, offentlig kommunikasjon og flotte servicetilbud. Boligen ligger i gangavstand fra Jessheim sentrum med alt av fasiliteter. Her finner du et stort kjøpesenter med 140 butikker.
Innhold og byggemåte
Innhold og byggemåte
Eiendommen
Finholtvegen 20A, 2067 JESSHEIM
Kommunenummer 3209, gårdsnummer 136, bruksnummer 127, seksjonsnummer 1, ideell andel 1/1
Kommunenummer 3209, gårdsnummer 136, bruksnummer 44, ideell andel 1/11
Innhold
Totalt bruksareal BRA: 216 kvm
Boligen BRA-i:
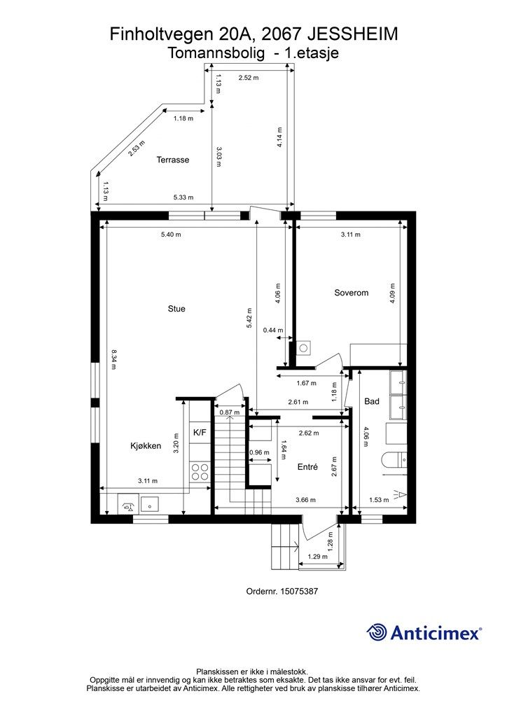
-1. etasje 68 kvm: Entré, bad, stue, kjøkken, kontor og 1 soverom
1. etasje 75 kvm: Entré, bad, stue, kjøkken og 1 soverom
2. etasje 40 kvm: Gang, bad og 3 soverom
BRA-e:
1. etasje 33 kvm: Garasje
Åpent areal:
1. etasje 19 kvm: Terrasse
Loftsetasjen har et totalt gulvareal (GUA) på 50 m2, men grunnet skråtak/lav takhøyde er kun 40 m2 av arealet måleverdig som bruksareal. De delene av arealene som har lav himlingshøyde (ALH) utgjør 10 m2.
Arealer bak knevegger og lignende (som ikke er måleverdige) er ikke medtatt som areal med lav himlingshøyde (ALH). Se mer utfyllende
informasjon i takstrapportens premisser om areal.
Vedlagte plantegninger er ikke målbare. De oppgitte arealer er hentet fra rapport med befaringsdato 10.09.2025 utført av Anticimex v/Thomas André Nordby.
Byggemåte
Selger har fått utarbeidet en tilstandsrapport, dvs. en teknisk gjennomgang av boligen hvor eventuelle avvik, risiko for kjøper og prisoverslag for hva som bør gjøres av oppgradering, er skissert. Se særskilt TGIU (tilstandsgrad ikke undersøkt), samt TG2 og TG3 som viser hva som er boligens normale slitasje, alder og type, hva som er avvik fra dette og hva som bør/må utbedres. Rapporten og selgers egenerklæring er en del av salgsoppgaven og må leses nøye før bud inngis. Kjøper overtar ansvaret for de opplysninger som fremkommer av salgsdokumentasjonen, og kan ikke gjøre gjeldende som mangel noe som burde vært kjent eller som ikke kan anses å ha betydning for avtalen.
Bygningen er iht. tilstandsrapporten oppført:
Boligen har støpt gulv mot grunn. Grunnmur i lettklinkerelementer. Yttervegger av bindingsverk utvendig kledd med liggende trepanel. Etasjeskillere av trekonstruksjoner. Yttertak av saltakskonstruksjon utvendig tekket med takplater av metall.
Det gjøres spesielt oppmerksom på:
Følgende har tilstandsgrad 2:
- Bad i 1 etg.: Slukets plassering, vindues plassering, bomlyd under enkelte fliser, tettesjiktet pga alder, og fallforhold på gulv.
- Bad i 2 etg.: Tilluftsspalte bør etableres, avtrekksvifte er defekt, det er eldre tettesjikt, og stedvis motfall rundt sluk.
- Bad i underetg: Drenering fra innebygget sisterne er ikke registrert, noe gjenstående arbeider i nisje ved varmtvannsberedere, tettesjiktet pga alder, og fallforhold på gulv.
- Kjøkken i 1 etg: Vannrørene er ikke plugget mot varerør.
- Kjøkken i underetg: Det er kun kullfilter, og vannrørene er ikke plugget mot varerør.
- Innredet loft: Konstruksjonen er lukket.
- Innvendig trapp har ingen håndløpere.
- Varmvannsbereder pga alder.
- Stakeluke er ikke lokalisert.
- Det er ikke foretatt radonmåling i boligen.
- Det er ikke fremlagt samsvarserklæring på utførte arbeider på det elektriske anlegget (tilstandsgrad settes i henhold til NS3600).
- Noe svertesopp på utvendig kledning samt vindskier.
- Tekking (undertak, lekter og yttertekking) pga alder.
- Det mangler rekkverk/håndløper i begge trapper.
- Det er gjenstående arbeider rundt enkelte vinduer.
- Manglende fuktsikring på grunnmuren, og dreneringen pga alder.
- Vann fra yttertaket er ikke ledet vekk fra bygningen/grunnmuren i tilstrekkelig grad.
- Det er høy slitasjegrad på garasjen.
Følgende har tilstandsgrad 3:
- Det er innkledd elementpipe i kjeller. Konstruksjonen må åpnes slik at minimum to sider blir synliggjort. Sjablongmessig prisanslag: kr 0 - 10 000
Følgende er ikke undersøkt:
- Det er ikke foretatt hulltaking på bad i underetasjen.
- Uinnredet loft pga at det ikke er adkomst.
- Fundamenter og byggegrunn.
Øvrig kommentar fra rapporten:
- Kommentar til brannskillende konstruksjoner: Det er ukjent om døren mellom kjeller og første etasje oppfyller branntekniske egenskaper etter krav i dagens byggtekniske forskrift. Det var på befaringsdagen lagret gjenstander slik at dette ikke lot seg undersøke.
Les for øvrig mer om byggemåte og den tekniske tilstanden i rapporten.
Opplysning fra selger:
- Bortsett fra elektroarbeid og rørlegger arbeidet, så er det meste annet grovarbeid utført av meg og ufaglærte (sette gipsplater, maling og diverse)
- Garasjeporten på venstre side kan komme ut av spor av og til.
Moderniseringer og påkostninger
Bruksendring/ombygging av kjeller til hoveddel 2020-2021.
Eiendommen er seksjonert av nåværende eier.
Standard
Stor bolig med mange rom, og det er inngang til boenheten både fra 1. etasje og kjeller. Boligens hovedetasje inneholder entré, stue med åpen kjøkkenløsning, bad og soverom. Det er utgang fra stue til terrasse, og adkomst via innvendig trapp til kjeller fra denne etasjen. 2. etasje består av gang, bad og tre soverom. Kjelleren inneholder entré, kjellerstue, kjøkken, bad, kontor og soverom.
Det er egen gårdsplass med plass til biloppstillinger, og eiendommen har i tillegg dobbelgarasje med el bil lader.
1. etasje:
Boligen har lys entré med god plass til garderobeskap, og det er gulvvarme og downlights i entré.
Stuen er lys og romslig med god plass til sittegruppe og spisebord. Himlingen har downlights, og det er adkomst fra stue til egen stor terrasseplatting på 26 kvm.
Det er stor åpen kjøkkenløsning fra byggeår. Kjøkkeninnredningen er med slette fronter og laminert benkeplate, fliser på vegg mellom kjøkkenbenk og overskap, stikkontakter på vegg under overskap, nedfelt oppvaskkum av rustfritt stål med ett-greps armatur, integrert komfyr med nedfelt induksjonstopp, komfyrvakt er montert, integrert kjøleskap og fryser, og oppvaskmaskin.
Det er kun de hvitevarene som er listet opp som følger med. Det gjøres oppmerksom på at hvitevarene er godt brukte, og kjøper må forvente slitasje som følge alder og normal bruk.
Badet er fra byggeår. Det er flislagt gulv med elektrisk gulvvarme og flislagte vegger, himling med takessplater, vegghengt servantskap med heldekkende servanter og ett-greps armaturer, speil med overlys på vegg over servanter, dusjnisje med vegg av glassbyggerstein og dusjarmatur, og gulvmontert toalett. Det er opplegg for vaskemaskin, og det er plastsluk i gulv.
2 etasje:
Etasjen har tre gode soverom, og praktisk gang. Hovedsoverommet har god plass til dobbeltseng.
Badet er fra byggeår. Det er flislagt gulv med elektrisk gulvvarme og flislagte vegger, himling med takessplater, vegghengt servantskap med heldekkende servant og ett-greps armatur, speil med overlys på vegg over servant, dusjkabinett med glassdører, og plastsluk i gulv.
Underetasje:
Etasjen består av entré, kjellerstue, kjøkken, bad, kontor og soverom. Det er varme i gulv i hele kjelleretasjen.
Entreen er lys og pen med god plass til skohylle og løsninger til klesheng, og i kjellerstuen kan det innredes på flere måter.
Etasjen har pen åpen kjøkkenløsning fra 2021 med kjøkkeninnredning med slette fronter og laminert benkeplate, trefiberplater på vegg mellom kjøkkenbenk og overskap, nedfelt oppvaskkum av rustfritt stål med ett-greps armatur, integrert komfyr med nedfelt induksjonstopp, komfyrvakt er montert, mekanisk kjøkkenventilator med kullfilter, frittstående kjøleskap og fryser, og oppvaskmaskin. Det er kun de hvitevarene som er listet opp som følger med. Det gjøres oppmerksom på at hvitevarene er brukte, og kjøper må forvente slitasje som følge alder og normal bruk.
Pent bad fra byggeår, oppgradert med nye fliser og inventar i 2021. Badet har flislagt gulv med elektrisk gulvvarme og flislagte vegger, malt himling med downlights, vegghengt servantskap med heldekkende servant og ett-greps armatur, overskap med speildører og overlys på vegg over servant, dusjnisje med innfellbare glassdører, regnfallsdusj og dusjarmatur, innebygget sisterne med vegghengt toalett, opplegg for vaskemaskin, plastsluk i gulv, og det er mekanisk avtrekksvifte.
Soverommet er lyst og har god plass til seng, skap og øvrig møblement.
Eiendommen har frittstående garasje med to leddporter, og det er elbil-lader montert i garasje.
Løsøre og tilbehør
Vi viser til liste fra Norges Eiendomsmeglerforbund som gjelder fra 01.01.2020 angående løsøre og tilbehør.
Vaskemaskin kan medfølge.
Oppvarming
Boligen har elektrisitet som oppvarming. Dersom beboelsesrom ikke har vegg- eller fastmonterte varmekilder ved visning, følger dette heller ikke med.
Ferdigattest/brukstillatelse
Det foreligger ferdigattest på eiendommen datert 08.03.2022. Denne kan fås ved henvendelse til megler.
Det foreligger ferdigattest ang. bruksendring fra tillegssdel til hoveddel av kjeller datert 21.10.2021.
Hovedbygning ble byggemeldt 2002.
Garasje ble byggemeldt 2004.
Terrasse ble byggemeldt 2007.
Ved installasjon av ildsted må dette meldes til kommunens feiermester.
Vedrørende takoverbygg ned til kjelleren så er dette søknadspliktig. Det må innsendes en komplett søknad om fasadeendring. Kjøper overtar alt ansvar, kostnad og risiko for dette videre.
Tidligere eier har satt opp vegg og laget mellomgang mellom 2 soverom i 2 etasje. Det avviker derfor noe fra opprinnelige byggetegninger.
Byggetegning ifbm seksjoneringen viser vegg og dør i entré i kjeller. Det er ikke satt inn dør i entré i kjeller. Dør inn til badet i kjelleretasjen er satt på venstre side, og ikke høyre som anvist i byggetegning. Det avviker derfor noe i fra de godkjente tegningene/bruksendringen.
Kjøper overtar eiendommen slik den framstår på visning.
Tinglyste heftelser og rettigheter
Eiendommen overdras fri for pengeheftelser.
Det er tinglyst følgende servitutter på eiendommen:
Dagboknr 9887, tinglyst 23.08.2001, type heftelse: Bestemmelse iflg skjøte/Hjemmel til eiendomsrett.
Det er pliktig medlemskap i egen huseierforening for området. Fellesareal FL1, FV2 og FV3, innenfor utbyggingsområdet/boligområdet, vedlikeholdes/bekostes av kjøpere av eiendommene/tomtene med lik andel. Kjøper/eier av eiendommen er forpliktet til å dekke sin andel av drift og vedlikehold av Finholtvegen, som er felles adkomstvei til området.
Det er ikke tillatt å foreta seg noe på eiendommene som kan føre til at støyvollen mot E6 blir skadet eller opphører å fungere i samsvar med forutsetningene.
Boligen er seksjonert: 27.11.2023
Opprettet seksjoner:
SNR: 1
Formål: Bolig
Tilleggsdel: Bygning
Sameiebrøk: 1/2
Servituttene vil følge eiendommen. Kjøpers bank vil få pant etter ovennevnte heftelser og servitutter.
Eventuell adgang til utleie
Eiendommen har ikke separat utleieenhet. Det vil normalt være anledning til utleie av hele eiendommen eller enkeltrom, såfremt utleiearealet er bygningsmessig godkjent for varig opphold og har forsvarlige radonnivåer. Det gjøres oppmerksom på at det er krav til forsvarlige radonnivåer ved utleie. Det er ikke gjennomført radonmåling på denne boligen.
Hovedboligen leies for tiden ut for kr 18.900- pr, mnd. inkl. internett og kommunale avgifter. Dersom vann og avløp blir skilt ut og avlest etter forbruk, vil leietaker måtte betale for eget forbruk. Strøm og personlige abonnementer kommer i tillegg.
* Selger informerer: leietaker er sagt opp, med utflytting senest 31.03.26
Leietid: Fra 16.07.24, og tidsbestemt avtale på 3 år. Bindingstiden er på 9 måneder og deretter 3 måneder gjensidig oppsigelse (dvs. at minste leietid er 12 mnd).
Leietaker plikter å ha vanlig innbo - og løsøreforsikring.
Leies ut umøblert.
Frittstående hvitevarer medfølger så lenge de virker, reperasjon eller utskiftning inngår ikke i leieavtalen.
Depositum kr 75.600 - tilsvarende fire mnd leie.
Fremleie er ikke tillatt uten utleiers samtykke.
Røyking er ikke tillatt uten tillatelse.
Ikke tillatt med husdyr ute samtykke.
Diverse
Selger har ikke bebodd eiendommen og har derfor ikke kunnskap om eiendommens tilstand. Kjøper må derfor kunne påregne at det kan være flere feil og mangler som normalt oppdages ved bruk av boligen, men som selger ikke har mulighet å vite.
Tilbud av produkter og tjenester fra våre samarbeidspartnere:
Vi er opptatt av verdiskapning, og har knyttet til oss samarbeidspartnere som skal sikre våre kunder de beste produkter og tjenester;
• Gjensidige leverer boligselgerforsikring og tilbyr bygningsforsikring
• Boligkjøperforsikring leveres av Hiscox og med Sedgwick som skadebehandler, og er formidlet gjennom Gjensidige.
• BN bank tilbyr finansieringsløsninger
• Vår avdeling Krogsveen Pluss tilbyr flyttetjenester som utvask, visningsvask, lager, tømming og transport av flyttelass, i tillegg til å formidle kontakt med Flip for overflateoppussing.
• I forbindelse med overtagelse av eiendommen tilbyr Overo avtale om strøm, alarm og bredbånd.
• Krogsveen er, sammen med øvrige bransjeaktører, medeier i den digitale annonseringsplattformen Hjem.
Beliggenhet og tomteforhold
Beliggenhet og tomteforhold
Beliggenhet
Boligen ligger i Finholtvegen, som er et barnevennlig og veletablert boområde med kort vei til det meste.
Fra eiendommen er det kort avstand til skoler, barnehager, offentlig kommunikasjon og flotte servicetilbud. Boligen ligger i gangavstand fra Jessheim sentrum med alt av fasiliteter. Her finner du et stort kjøpesenter med 140 butikker, koselige kafeer og restauranter. Ved siden av senteret ligger Kulturhuset med flere kinosaler og bibliotek. Kulturskole med dans, musikk og teater for barna. Jessheim fikk bystatus i september 2012, og er en by i stor vekst. Kulturhuset byr i tillegg på konserter, teater, revyer og kunstutstillinger.
Det er flotte tur- og friluftsmuligheter i nærområdet, og boligen har nærhet til Nordbytjernet, som er et attraktivt rekreasjonsområde på Jessheim. Idylliske omgivelser sommer som vinter i nærhet av eiendommen. Man har tilgang til fine løpeturer, treningsapparater, bading og skøytemuligheter på vinteren. I tillegg er det flere turstier og turløper på Langelandsfjellet og i Jessheimmarka.
Togstasjonen ligger kun ca. 5 min. med bil unna eiendommen, med gode togforbindelser til Lillestrøm og Oslo Sentralstasjon. Det er kort vei til busstopp som har flere avganger i timen til blant annet Oslo Lufthavn, Maura og Nordkisa.
Nordbytjernet er Ullensakers mest populære badeplass som er tilrettelagt med blant annet brygge og volleyballbane. Tjernet er en naturperle som er meget populært på fine sommerdager. Her finner du flotte turstier rundt tjernet samt et yrende badeliv om sommeren. Ellers kan Jessheims skoger tilby turstier, sykkelstier, skiløyper og lysløype. Jessheimmarka har gode vintertilbud hvor det blir kjørt opp flotte skiløyper. Jessheim stadion med fotball, friidrett og ny flerbrukshall/skøytehall ligger kort kjøretur unna boligen, og flere treningssenter ligger etablert i nye lokaler sentralt på Jessheim. I tillegg ble Jessheim svømmehall ferdigstilt i 2022 - et moderne anlegg med treningsbasseng og mye rom for lek og moro. Området har flere gode treningssentre, med blant annet Fresh Fitness, samt Spenst, Evo og Sats som også er innen kort avstand. For friluftsmosjonisten er det treningsapparater på Nordbytjernet, samt på Jessheim VGS.
Gangavstand.
- Kverndalen bussholdeplass kun ca. 4 min.
- Jessheim skole og ressurssenter (1-7 kl.) ca. 24 min.
- Jessheim videregående skole ca. 17 min.
- Kiwi Meierigården ca. 17 min.
- Barnehager ca. 17 - 24 min.
Med bil:
- Oslo Gardermoen ca. 11 min.
Adkomst
Det vil bli skiltet med Krogsveen visningsskilt ved fellesvisninger. Se evt. google maps - det er enkelt å finne frem i kartet.
Barnehager, skoler og fritid
Informasjon om tilhørende skolekretser er hentet fra Prognosesenteret som dataleverandør, og tilhørigheten kan årlig endres av kommunen. Dersom skole- og barnehagetilbud er av betydning for kjøpet, ber vi om at det rettes en særskilt henvendelse til kommunen for oppdatert informasjon.
Beskrivelse av tomt
Det er felles eiertomt med nabo på 838 kvm. opparbeidet med blandt annet gressplen, hekk, prydbusker og diverse beplantninger. Gårdsplass er opparbeidet med belegningstein.
Se vedlagt kart i annonsen over eiendommens areal.
Eiendommen har garasjen som tilleggsareal.
Eiendommen har 1/11 ideell andel i KNR: 3209 GNR: 136 BNR: 44 som er vei og en fellestomt med naboer på 1708,1 kvm.
Parkering
Dobbelgarasje med fastmontert lader for EL-bil, samt biloppstillinger på gårdsplass.
Vei, vann og avløp
Eiendommen har adkomst via privat vei med felles vedlikeholdsansvar.
Eiendommen er tilknyttet kommunalt ledningsnett via private stikkledninger. Eier er selv ansvarlig for private stikkledninger til boligen.
Vannmåler er ikke innstallert.
Regulerings-og arealplaner
Eiendommen er regulert til bolig i mindre vesentlig endring av reguleringsplan for "Gnr. 136, nr 44 m.fl" m/best vedtatt 14.10.1998.
Avsatt i kommunedelplan for: Jessheim til: boligbebyggelse - nåværende. Sikringssone - Byggeforbud rundt veg, bane og flyplass vedtatt 17.06.2025.
Eiendommen er berørt av veg/jernbanestøy.
Bakre del av garasjen står noe over tomtegrense. Ny eier overtar ansvaret for dette.
Hekk bak garasjen mot veien, og hekk foran inngangspartiet står noe utenfor tomtegrense. Ny eier overtar ansvaret for dette.
Utdrag fra reguleringsplan: Vegvesenet har rett til adkomst over eiendommene i området for ettersyn og vedlikehold av støyvollen i nabolaget mot E-6.
Eiendommen ligger i område under marin grense. Det forutsettes at grunnforholdene hensyntas ved prosjektering og utførelse av bygging, og at tiltaket kan følge NVEs veileder for små inngrep i kvikkleiresoner.
Utsnitt av plan med tilhørende bestemmelser kan fås ved henvendelse til megler.
Økonomi
Økonomi
Kommunale utgifter
Kommunale avgifter er kr. 22 995,- for inneværende år. I dette inngår gebyr for vann, avløp, og renovasjon
Bilveien til eiendommen er privat og vedlikeholdes av huseierforening for området. Eiendommen har pliktig medlemskap, og årlig kontigent er for tiden kr. 2000,- pr år. Selger opplyser at dette for tiden dekker snømåking og vedlikehold av lys og vei.
Boligen har en årlig forsikringspremie på kr 13.500. Selger opplyser: Strømforbruket gjelder for hele boligen. Kjelleren har bimåler som viser strømforbruket for etasjen.
Boligen er tilknyttet Telia fiber med avgift ca. kr. 1.000,- pr. mnd. Tv-tuner/dekoder medfølger ikke.
Boligen er tilknyttet Verisure alarmselskap med avgift kr 418 pr. mnd. Ny eier kan overta dette etter de til enhver gjeldende priser og betingelser hos selskapet. * Ny eier må gi selger beskjed i god tid før overtagelsen om det er ønskelig å overta.
Selger har ikke bebodd eiendommen. Utgiftene er basert på nåværende leietakers forbruk og selgers avtaler.
Formuesverdi
Formuesverdi for 2023 var kr 1 820 713,- ifølge skatteetaten. Beløpet forutsetter at eier bor fast i boligen (primærbolig).
Ved eventuell øvrig bruk av eiendommen (f.eks. fritidsbolig, pendlerbolig, utleieobjekt) var formuesverdien for 2023 kr 7 282 852,-.
Formuesverdien justeres normalt årlig. Se skatteetaten.no for mer informasjon om fastsettelse av formuesverdien.
Eiendomsskatt
Det er p.t ikke vedtatt eiendomsskatt for eiendommer i kommunen.
Tilbud om lånefinansiering
Megler formidler gjerne kontakt med rådgiver hos vår samarbeidspartner BN Bank. De har konkurransedyktige betingelser samt rask og løsningsorientert behandling av din lånesøknad. Krogsveen mottar et honorar dersom lån opprettes.
Betalingsbetingelser
Kjøpesum inkludert omkostninger, samt pantedokument tilknyttet eventuelt lån, skal være disponibelt hos megler 2 virkedager før overtagelsen.
Annen viktig informasjon
Annen viktig informasjon
Eier
Ahmad Khalid Faizi og Orbal Laho
Informasjon om sameiet
Eiendommen er seksjonert, og boligen er tilknyttet Sameiet Finholtvegen 20 A & B sameie, med sameiebrøk 1/2.
Sameiet har ikke forretningsfører eller styre, og det føres ikke regnskap eller budsjett. Dersom det mottas felles regninger til sameiet vil kostnader bli fordelt etter nærmere regler angitt av sameiet, vanligvis etter sameiebrøk eller vedtekter. Vedtekter finner du i salgsoppgavevedlegg.
Utdrag fra vedtekter:
- Hver seksjon har enerett til å bruke hver sin bestemte del av fellesarealet i 30 år i henhold til vedlagte situasjonskart. Hver seksjon plikter å vedlikeholde sin del av arealet den har enerett på. Sameierne er ansvarlig for utgiftene som hører til den delen av arealet de har enerett på.
- Alt areal som ikke inngår i seksjonenes eksklusive areal og tilleggsareal med midlertidig enerett er fellesareal.
- Sameierne er innbyrdes ansvarlig for fellesutgiftene, og kostnaden fordeles i henhold til sameiebrøken. Når det gjelder kommunale kostnader så deles disse kostandene likt
på de to seksjonene. Større vedlikeholdsarbeider på fellesarealene skal godkjennes av sameierstyret.
- Den enkelte sameier skal fullt ut og for egen regning vedlikeholde sin egen seksjon, innvendig og utvendig, inklusive tilleggsarealer slik at det ikke oppstår skade eller ulempe for de andre sameierne. Innvendige vann- og avløpsledninger omfattes av vedlikeholdsplikten til og med forgreiningspunktet inn til seksjonen, og elektriske ledninger fra Hafslund nett sitt fordelingsskap.
- Sameierne er innbyrdes ansvarlig for fellesutgiftene etter fordeling i henhold til bestemmelsene ovenfor. Sameierne er selv ansvarlig for stell og snømåking av den delen av fellesarealet som de grenser til felles adkomstvei, gårdsplass og søppelstativ er felles ansvar å vedlikeholde. Ovenfor tredjemann er sameierne solidarisk ansvarlig og kostnaden fordeles i henhold til sameiebrøken.
Dokumenter for sameiet og kopi av seksjonsbegjæringen kan fås ved henvendelse til megler.
Overtakelse
Etter nærmere avtale.
Boligselgerforsikring
Selger har i forbindelse med salget tegnet boligselgerforsikring levert av Gjensidige.
Boligselgerforsikringen dekker selgers ansvar etter avhendingsloven begrenset oppad til kr 14 millioner. Dersom kjøper oppdager forhold ved eiendommen som hen mener utgjør en mangel ved eiendommen, vil Gjensidige behandle reklamasjonen på vegne av selger. Forsikringsvilkår kan fås ved henvendelse til megler.
Vedlagt salgsoppgaven følger selgers egenerklæringsskjema og tilstandsrapport. Interessenter må sette seg inn i dokumentene før bud inngis.
Boligkjøperforsikring
Innen kontraktsmøtet må kjøper ta stilling til om det ønskes å bestille Boligkjøperpakken gjennom Gjensidige. I denne gunstige pakken er boligen ferdig forsikret og inkluderer rettshjelpsforsikring, også kalt Boligkjøperforsikring. Rettshjelpsforsikring gir trygghet og tilgang på profesjonell juridisk hjelp dersom det oppdages uventede feil eller mangler det første året etter overtagelse. Forsikringsselskapet behandler i så fall ethvert mangelskrav kjøper måtte ha overfor selger.
Boligkjøperpakken inkluderer bygningsforsikring for hus og hytte, innboforsikring, flytteforsikring og dobbel rentedekning - i situasjoner hvor kjøper ikke får solgt nåværende primærbolig.
Kjøper mottar ingen særskilt faktura for Boligkjøperpakken da kostnaden det første året legges til kjøpesummen for boligen. Det gjøres oppmerksom på Krogsveen mottar et honorar for denne formidlingen.
Produktark for Boligkjøperpakken ligger vedlagt i salgsoppgaven.
Dersom ikke boligkjøperpakke ønskes kan kun rettshjelpsforsikring, også kalt boligkjøperforsikring, tegnes særskilt via megler. Rettshjelpsforsikringen varer i 5 år fra overtagelse og leveres gjennom Gjensidige. Ta kontakt med megler for ytterligere informasjon.
Selskap og privatpersoner som driver med kjøp/salg/utvikling som ledd i egen næringsvirksomhet kan ikke tegne boligkjøperpakke eller rettshjelpsforsikring.
Budgivning
Forbrukerinformasjon om budgivning er vedlagt denne salgsoppgaven og er også på vår hjemmeside Krogsveen.no. Alle bud og budforhøyelser må inngis skriftlig. I tillegg må legitimasjon være fremlagt sammen med signatur fra budgiver.
Vi oppfordrer til å gi bud elektronisk via GI BUD-knappen på eiendommens hjemmeside på Krogsveen.no. Da vil samtlige vilkår bli oppfylt.
Eventuelle forhøyelser eller endringer av budet kan bekreftes pr SMS eller på e-post. Vi oppfordrer alltid til å kontakte megler pr. telefon i tillegg da forsinkelser i SMS og e-post kan forekomme.
For at budene skal kunne bli behandlet og videreformidlet skriftlig til alle involverte parter, må alle bud ha en tilstrekkelig lang akseptfrist, jf. eiendomsmeglingsforskriften § 6-3.
Selger må også skriftlig akseptere budet før aksept kan formidles til budgiver. Akseptfrist bør derfor være på minimum 30 minutter, og budforhøyelser må derfor skje i god tid før fristens utløp.
Bud i forbrukerforhold kan uansett ikke settes med kortere frist enn kl. 12.00 første virkedag etter siste annonserte visning. I tillegg kan ikke budet ha forbehold om at det skal holdes hemmelig ovenfor øvrige interessenter. Megler har iht lov om eiendomsmegling ikke anledning til å videreformidle disse budene, og de vil dermed heller ikke bli journalført.
Etter at eiendommen er solgt vil kjøper og selger få tilsendt budjournal. Øvrige budgivere kan få utlevert kopi av budjournalen i anonymisert form.
Hvitvaskingsreglene
I henhold til lov om hvitvasking og terrorfinansiering har megler plikt til å gjennomføre kontrolltiltak overfor kunder, herunder fullmektiger. Dette innebærer bl.a. å bekrefte kunders og reelle rettighetshaveres identitet på bakgrunn av fremvist gyldig legitimasjon eller på annen godkjent måte, samt å innhente opplysninger om kundeforholdets formål og tilsiktede art.
Dersom slike kundetiltak ikke kan gjennomføres, kan megler ikke etablere kundeforholdet eller utføre transaksjonen.
Hvis kjøper ikke bidrar til gjennomføring av kundekontrollen og dette fører til at transaksjonen blir forsinket eller ikke kan gjennomføres, vil dette ansees som mislighold av avtalen og gi selger rettigheter etter avhendingslova kapittel 5. I tilfeller der selger ikke bidrar til gjennomføring av løpende kundekontroll underveis i oppdraget, er det selger som misligholder sine forpliktelser etter avtalen og gi kjøper rettigheter etter avhendingslovens kapittel 4. Partene er selv ansvarlige for eventuelle kostnader og ansvar dette kan medføre. Eiendomsmegleren eller eiendomsmeglingsforetaket kan ikke holdes ansvarlig for de konsekvenser dette vil kunne få for partene eller andre som har interesser i eiendomshandelen.
Kjøper oppfordres til å innbetale kjøpesummen som ikke kommer fra låneinstitusjon i én samlet innbetaling fra egen konto i norsk bank. Megler har plikt til å melde fra til Økokrim om eiendomshandler som fremstår som mistenkelige. Melding sendes Økokrim uten at partene varsles.
Personopplysningsloven
I henhold til personopplysningsloven gjør vi oppmerksom på at interessenter kan bli registrert for videre oppfølging.
Lovanvendelse
Generelle bestemmelser
Salgsoppgaven er basert på de opplysningene selger har gitt til megler, den bygningssakyndiges tilstandsrapport, samt opplysninger innhentet fra kommunen, Kartverket og andre tilgjengelige kilder. Det er viktig at kjøper setter seg grundig inn i alle salgsdokumentene, herunder salgsoppgave, tilstandsrapport og selgers egenerklæring. Kjøper anses kjent med forhold som er tydelig beskrevet i salgsdokumentene, og slike forhold kan ikke påberopes som mangler. Dette gjelder uavhengig av om kjøper har lest dokumentene. Alle interessenter oppfordres til å undersøke eiendommen nøye, gjerne sammen med fagkyndig før bud inngis. Kjøper som velger å kjøpe usett kan ikke gjøre gjeldende som mangel noe han burde blitt kjent med ved undersøkelsen.
Dersom det er behov for avklaringer, anbefaler vi at interessenter rådfører seg med eiendomsmegler eller egne rådgivere før det legges inn bud.
En bolig som har blitt brukt i en viss tid, har vanligvis blitt utsatt for slitasje og skader kan ha oppstått. Slik bruksslitasje må kjøper regne med, og det kan avdekkes enkelte forhold etter overtakelse som nødvendiggjør utbedringer. Normal slitasje og skader som nødvendiggjør utbedring, er innenfor hva kjøper må forvente og vil ikke utgjøre en mangel.
Kjøper og selgers rettigheter og plikter reguleres av avtalen mellom partene, samt informasjonen som har vært tilgjengelig for kjøperen i forbindelse med handelen. Avtalen utfylles av avhendingsloven, og det gjelder ulike avtalevilkår avhengig av om kjøper er forbrukerkjøper eller ikke. Dette er nærmere beskrevet nedenfor.
På grunn av ulike avtalevilkår kan selger vurdere bud fra en som ikke er forbruker, ulikt fra en forbrukers bud. Dersom kjøper ikke er forbruker, er selger sitt mulige mangelsansvar begrenset fordi eiendommen selges "som den er". Selger kan ikke ta «som den er»- forbehold overfor en forbrukerkjøper. Selv et lavere bud fra en som ikke er forbruker kan foretrekkes fordi begrensningen i mulig mangelsansvar kan ha egenverdi for selger. Selger står fritt til å forkaste eller akseptere ethvert bud, og er for eksempel ikke forpliktet til å akseptere høyeste bud.
Budgiver skal i budskjema avgi egenerklæring om budgiver er forbruker eller næringsdrivende/ person som hovedsakelig handler som ledd i næringsvirksomhet. Budgivere får informasjon dersom andre bud er inngitt av en som ikke er forbruker.
Forbrukerkjøp - definisjon
Med forbrukerkjøp menes kjøp av eiendom når kjøperen er en fysisk person som ikke hovedsakelig handler som ledd i næringsvirksomhet.
Forbruker – avtalevilkår
Eiendommen har en mangel dersom den ikke er i samsvar med kravene som følger av avtalen, eller det foreligger brudd på bestemmelsene i avhendingsloven §§ 3-2 til 3-8. Hvis eiendommen ikke er i samsvar med det kjøperen må kunne forvente ut ifra alder, type og synlig tilstand, kan det være grunnlag for mangelskrav. Det samme gjelder hvis det er holdt tilbake eller gitt uriktige opplysninger om eiendommen. Dette gjelder likevel bare dersom man kan gå ut ifra at det virket inn på avtalen at opplysningen ikke ble gitt eller at mangelskravet ikke blir rettet i tide på en tydelig måte.
Boligen kan ha en mangel etter avhendingsloven § 3-3 andre ledd, dersom det er avvik mellom opplyst og faktisk innvendig areal, forutsatt at avviket er på 2% eller mer og minimum 1 kvm.
Ved beregning av et eventuelt prisavslag eller erstatning må kjøper selv dekke tap/kostnader opptil et beløp på kr 10 000 (egenandel).
Ikke-forbruker (næringsdrivende) – definisjon
Hvis kjøper er en juridisk person, eller en fysisk person som hovedsakelig handler som ledd i næringsvirksomhet, vil kjøpet ikke anses som et forbrukerkjøp.
Ikke-forbruker – avtalevilkår
Eiendommen har en mangel dersom den ikke er i samsvar med kravene som følger av avtalen.
Eiendommen selges «som den er», og selgers ansvar utover det konkret avtalte er da begrenset etter avhendingsloven § 3-9, første ledd andre setning.
Avhendingsloven § 3-3 andre ledd fravikes, og hvorvidt boligens arealsvikt utgjør en mangel vurderes etter avhendingsloven § 3-8.
Informasjon om kjøpers undersøkelsesplikt, herunder oppfordringen om å undersøke eiendommen nøye, gjelder også for kjøpere som ikke anses som forbrukere.
Det forutsettes at hjemmel overføres til kjøper. Hvis kjøper ikke ønsker hjemmelsoverføring av eiendommen, må det tas forbehold om dette i budet.
Opplysninger om oppdraget
Oppdragsnummer 63-0195/25
Eiendomsmegler Krogsveen AS, avd. Jessheim
Skovly Promenade 10, 2066, JESSHEIM
950 007 613
Oppdragets KR-kode KR63.25195
Dato
Sist oppdatert: 15. januar 2026 kl. 16:27
Dokumenter
Dokumenter
PDF – 1009 KB
PDF – 664 KB
PDF – 90 KB
PDF – 137 KB
PDF – 4 MB
PDF – 312 KB
PDF – 29 KB
PDF – 127 KB
PDF – 392 KB
Område
Legg til steder som er viktige for deg
Visning
Unngå doble boligrenter
Vi tilbyr gunstig forsikring.
Vurderer du utleie?
Få et tilbud fra Utleie KrogsveenHva koster lånet?
Sjekk estimert lånekostnadVil du varsles om lignende boliger?
Ved å lagre ditt boligsøk hos oss får du beskjed når vi har en bolig som ligner denne, før den legges ut på markedet!

