Skjetnemarkvegen 66
4 790 000 kr
164 m²
4 soverom
Solgt

Sjetnmarka
Velholdt del av tomannsbolig med lun og solrik beliggenhet. Flott utsikt, stor veranda, hage og skjermet terrasse.
Prisantydning
4 790 000 krOmkostninger
140 740 krTotalpris
4 930 740 kr
Pris
Bruksareal
196 m²BRA-I (internt bruksareal)
164 m²BRA-E (eksternt bruksareal)
32 m²TBA (terrasse-balkongareal)
72 m²
Areal
Etasje
2Byggeår
1968Soverom
4 soveromBad
1 badTomteareal
593 m² (eiet)Type
Halvpart vertikaldelt boligEierform
EietFasiliteter
Garasje/P-plass og Balkong/TerrasseEnergimerke
Gul F
Nøkkelinfo
Unngå doble boligrenter
Vi tilbyr gunstig forsikring.
Vurderer du utleie?
Få et tilbud fra Utleie KrogsveenHva koster lånet?
Sjekk estimert lånekostnadBeskrivelse
Kort om eiendommen
Boligen ligger i skrånende terreng, med flott, vidstrakt utsikt som rekker helt fra Granåsen til sentrum via Gråkallen. Ingenting skjermer for utsikten, og sola kan følges gjennom hele dagen fra lune og fine utendørsområder. En stor veranda langs hele fasaden tar vare på både sol- og utsiktsforhold. Terrassen på baksiden er skjermet for innsyn, og ligger særlig lunt i terrenget med en solvegg som blir ekstra god og varm.
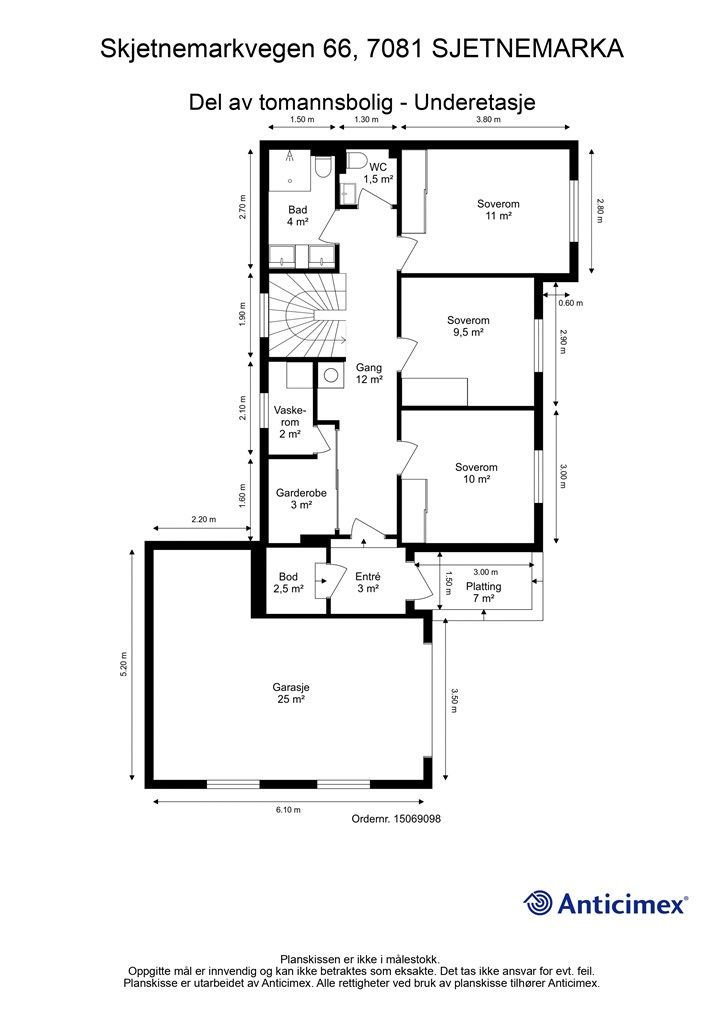
Huset er velholdt og innholdsrikt. Flere gode oppussinger ble gjort i perioden 2015/2016, og arealet fordeler seg på to etasjer med til sammen fire gode soverom. Planløsningen er praktisk og god, med stor oppholdssone på øverste plan og bad-/soveromsavdeling i sokkelen.
Nabolaget er rolig og familievennlig, med kort vei til skole, barnehage, butikk og bussholdeplasser.

Område
Legg til steder som er viktige for deg
På flyttefot? Tenk kjøp og salg samtidig.
Få din egen rådgiver gjennom hele kjøps- og salgsprosessen. Det starter med en verdivurdering.
Unngå doble boligrenter
Vi tilbyr gunstig forsikring.
Vurderer du utleie?
Få et tilbud fra Utleie KrogsveenHva koster lånet?
Sjekk estimert lånekostnadVil du varsles om lignende boliger?
Ved å lagre ditt boligsøk hos oss får du beskjed når vi har en bolig som ligner denne, før den legges ut på markedet!

