Sørbøveien 258
8 750 000 kr
288 m²
3 soverom
Komplett salgsoppgave

Rennesøy
Enebolig med nydelig sjøutsikt og store uteplasser | Innglasset utestue og garasje | Vannbåren gulvvarme
Prisantydning
8 750 000 krOmkostninger
239 740 krTotalpris
8 989 740 kr
Pris
Bruksareal
411 m²BRA-I (internt bruksareal)
288 m²BRA-E (eksternt bruksareal)
104 m²TBA (terrasse-balkongareal)
269 m²
Areal
Byggeår
2012Soverom
3 soveromBad
2 badTomteareal
1 477 m² (eiet)Type
Enebolig - FrittliggendeEierform
EietFasiliteter
Garasje/P-plass og Balkong/Terrasse
Nøkkelinfo
Unngå doble boligrenter
Vi tilbyr gunstig forsikring.
Vurderer du utleie?
Få et tilbud fra Utleie KrogsveenHva koster lånet?
Sjekk estimert lånekostnadBeskrivelse
Kort om eiendommen
Innhold og byggemåte
Innhold og byggemåte
Eiendommen
Sørbøveien 258, 4150 RENNESØY
Kommunenummer 1103, gårdsnummer 213, bruksnummer 10, ideell andel 1/1
Innhold
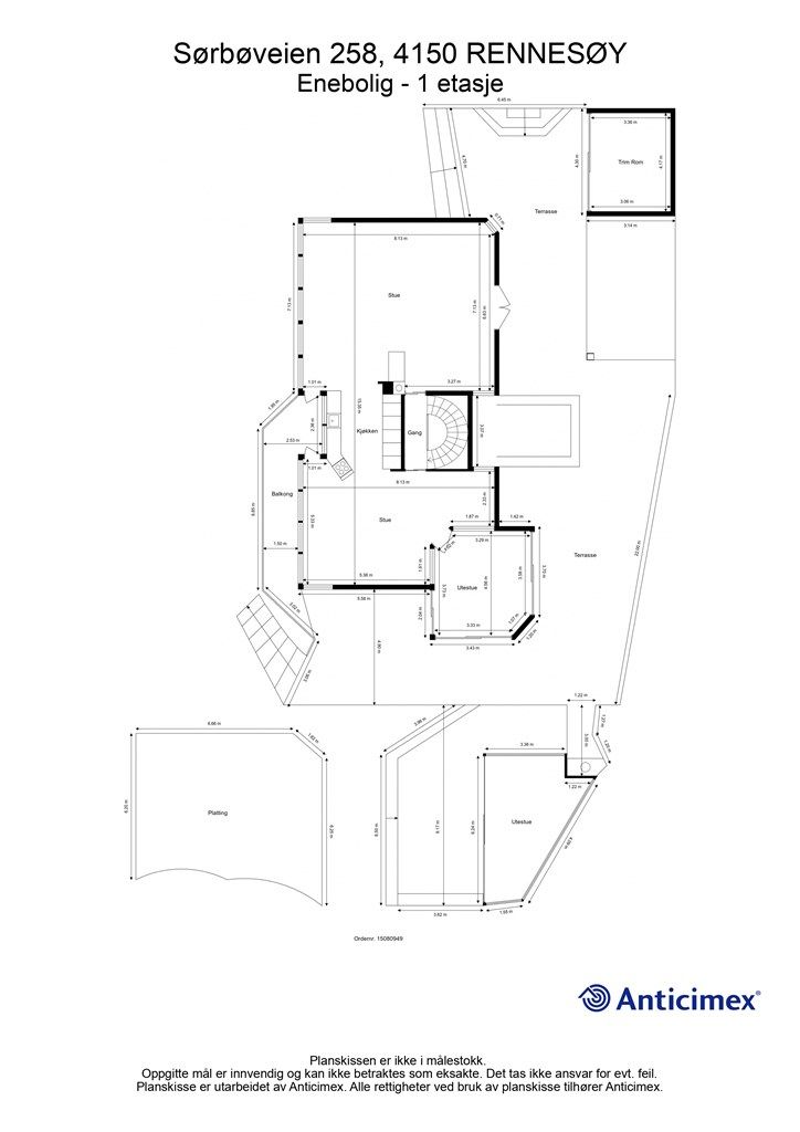
Totalt bruksareal BRA: 411 kvm
BRA-i:
Enebolig:
Kjeller 75 kvm: Gang, bad, stue, soverom og boder.
1. etasje 113 kvm: Gang, stue, spisestue og kjøkken.
2. etasje 100 kvm: Gang, bad, garderoberom og to soverom.
BRA-e:
Enebolig:
Kjeller 66 kvm: Garasje, verksted og bod.
Sportsbod:
1. etasje 14 kvm: Sportsbod.
Uthus:
1. etasje 24 kvm: Uthus. Bygningen er isolert og inneholder en dusjsone og et tekjøkken.
BRA-b:
1. etasje 19 kvm: Innglasset utestue.
Åpent areal:
1. etasje 267 kvm: Terrasse, balkong og plattinger.
2. etasje 2 kvm: Balkong.
2. etasje har et totalt gulvareal (GUA) på 111 kvm, men grunnet skråtak/lav takhøyde er kun 100 kvm av arealet måleverdig som bruksareal. De delene av arealene som har lav himlingshøyde (ALH) utgjør 11 kvm.
Det står et drivhus på eiendommen på 9 kvm.
Frittstående uthus, sportsbod og drivhus er ikke omsøkt, les mer under punkt om ferdigattest.
Vedlagte plantegninger er ikke målbare. De oppgitte arealer er hentet fra rapport med befaringsdato 15.04.2026 utført av Anticimex AS v/Yngve Paulsen. Arealene er beregnet og rom er definert etter dagens faktiske bruk, uavhengig av hva som er godkjent av bygningsmyndighetene.
Byggemåte
Moderniseringer og påkostninger
Følgende moderniseringer er foretatt de senere år:
2020:
- Varmtvannsbereder skiftet.
Standard
KJØKKEN:
Innredning fra IKEA fra byggeår med glatte fronter og benkeplate i stein. Utstyrt med nedfelt kjøkkenvask med armatur. Integrerte hvitevarer omfatter stekeovn, platetopp, oppvaskmaskin, mikrobølgeovn, kjøleskap, fryser og kaffemaskin. Fritthengende ventilator over kokesone.
BAD 2. ETASJE:
Baderom fra byggeår. Flislagt gulv med gulvvarme og flislagte vegger i dusjsonen, for øvrig malte flater. Innredning fra Duravit med gulvstående møbel, dobbel ovenpåliggende servant og speil med overlys. Utstyrt med dusjnisje med glassvegg, badekar med gulvstående armatur og vegghengt toalett. Vannrør av type rør-i-rør. Mekanisk avtrekk.
BAD KJELLER:
Baderom fra byggeår. Flislagt gulv med gulvvarme. Vegger med fliser og betong. Utstyrt med dusjhjørne, vegghengt servant og vegghengt toalett. Mekanisk avtrekk. Badet har et oppgraderingsbehov.
Overflater:
Gulv: Laminat er gjennomgående. Fliser på badene og i deler av kjelleren. Teppe på ett soverom i 2. etasje.
Vegger: Hovedsakelig malte flater. Betongvegger i deler av kjelleren.
Himling: Panelbord.
Lagring:
Boligen har god lagringsplass med to boder, verksted og en stor integrert garasje i kjelleren. I 2. etasje er det et garderoberom. I tillegg er det en frittstående sportsbod på 14 m² og et uthus på 24 m² på eiendommen.
For fullstendig teknisk informasjon om boligen, se punktet Byggemåte i salgsoppgaven.
Løsøre og tilbehør
Vi viser til liste fra Norges Eiendomsmeglerforbund som gjelder fra 01.01.2020 angående løsøre og tilbehør.
Utehøytalere, pizzaovn og robotplenklipper medfølger ikke i handelen.
Det gjøres oppmerksom på at det kun er de integrerte hvitevarene på kjøkkenet som medfølger i kjøpet. Hvitevarene leveres uten noen form for garantier, utover eventuelle gjenværende leverandørgaranti.
Oppvarming
Boligen varmes i hovedsak opp med vannbåren gulvvarme. Det er gulvvarme/varmekabler i enkelte rom. I stuen er det installert peisovn med glassdør.
Dersom beboelsesrom ikke har vegg- eller fastmonterte varmekilder ved visning, følger dette heller ikke med.
Ferdigattest/brukstillatelse
Boligen er oppført i 2012. Det foreligger ferdigattest for riving/nybygg bolig, datert 01.12.2016. Denne kan fås ved henvendelse til megler.
Deler av boligen er oppført på grunnmur fra tidligere bolig som stod på eiendommen. Basert på historiske flyfoto og kart fra tillatelse til riving/nybygg bolig er dette en grunnmur fra før 1959, som er øst for den integrerte garasjen, og som da omkranser soverom/boder/kjellerstue/gang/bad.
Det er avvik mellom godkjente tegninger og dagens situasjon på eiendommen, samt forhold som bør bemerkes:
- Kjeller: Det minste rommet som av bygningssakkyndig er betegnet som soverom, i bakkant av boligen, er på godkjente tegninger oppført som 2 boder, og derfor ikke godkjent til rom for varig opphold.
- Arealavvik: Byggetillatelsen fra 2009 gjelder for et tiltak med BRA på 230 m². Boligen er i dag registrert i matrikkelen med en BRA på 390 m². Ferdigattesten fra 2016 bekrefter at tiltaket er utført i samsvar med byggetillatelsen, men det er et betydelig avvik mellom omsøkt og registrert areal.
- Uthus, sportsbod og drivhus: Det er oppført et frittstående uthus på ca. 24 m², en sportsbod på ca. 14 m² og et drivhus på ca. 9 m². Det foreligger ikke dokumentasjon på at disse bygningene er omsøkt og godkjent. Uthuset er innredet med dusjsone og tekjøkken, noe som kan ha betydning for søknadsplikten.
Det tas spesifikt forbehold om ikke-godkjent uthus, sportsbod og drivhus, samt arealavvik. Dette er en risiko da det ikke foreligger godkjente byggemeldte tegninger eller samsvar med areal.
Kommunen kan kreve at bygget/rives til originale tegninger.
Kjøper overtar alt ansvar, kostnad og risiko for dette videre.
Tinglyste heftelser og rettigheter
Eiendommen overdras fri for pengeheftelser.
Kommunen har legalpant i eiendommen for forfalte krav på eiendomsskatt og kommunale avgifter/gebyrer.
Følgende servitutt er tinglyst på eiendommen:
2011/794579-1/200 03.10.2011 BEST. OM VANN/KLOAKKLEDN.
Rettighetshaver: STATENS VEGVESEN
ORG.NR: 971 032 081
Bestemmelse om anlegg og vedlikehold av ledninger m.m.
Denne erklæringen gir Statens vegvesen rett til å legge overvanns- og spillvannsledninger fra renseanlegg langs fv 572. Eier av eiendommen er ansvarlig for all skade som måtte påføres vegområdet eller tredjemann som følge av ledningsanlegget, og forplikter seg til å utføre istandsetting av gravearbeider i henhold til spesifikke krav. Rørene skal legges minimum 3 meter fra vegkant, eller 2 meter der dette ikke er mulig, og ha minst 0,80 meter overdekning. Tillatelsen er midlertidig, og eier er forpliktet til å foreta endringer eller fjerne anlegget for egen regning dersom Vegvesenet finner det nødvendig.
Servituttene vil følge eiendommen. Kjøpers bank vil få prioritet etter ovennevnte heftelser og servitutter.
Eventuell adgang til utleie
Eiendommen har ikke separat utleieenhet. Det vil normalt være anledning til utleie av hele eiendommen eller enkeltrom, såfremt utleiearealet er bygningsmessig godkjent for varig opphold og har forsvarlige radonnivåer.
Diverse
Boligens selges ved fullmektig. Fullmektigen har ikke selv bebodd eiendommen og har derfor ikke kunnskap om eiendommens tilstand utover det som fremkommer i salgsoppgave og tilstandsrapport. Hjemmelshaver har fylt ut egenerklæringsskjema.
Energimerking
Selger er ansvarlig for at boligen har energiattest. Det foreligger imidlertid ikke energiattest for denne boligen, men hvis kjøper krever det kan energiattest innhentes for selgers regning.
Beliggenhet og tomteforhold
Beliggenhet og tomteforhold
Beliggenhet
Velkommen til Sørbøveien 258, en eiendom med en landlig og tilbaketrukket beliggenhet på Rennesøy. Her bor du i fredelige omgivelser med kort avstand til sjøen, samtidig som du har alle hverdagens nødvendigheter innen rekkevidde. Nærmeste busstopp, Ertenstein, ligger kun et par minutters gange fra døren.
Hverdagslogistikken er enkel med Vikevåg sentrum en kort kjøretur unna. Her finner du blant annet Coop Extra for dagligvarehandelen, apotek og andre servicetilbud. For familier er det praktisk med flere barnehager i nærheten, som Rennesøy og Vikevåg barnehage, begge omtrent tre minutter unna med bil. Skolebarna har en kort reise til Vikevåg skule for 1. til 7. trinn og Rennesøy skule for ungdomstrinnet.
Området byr på gode muligheter for en aktiv fritid. Rennesøyhallen og ballbingen ved skolen ligger kun tre minutters kjøring unna, og gir et godt tilbud for idrett og lek. Den naturskjønne beliggenheten innbyr også til turer langs kysten og i det åpne kulturlandskapet som preger øya. For et større utvalg av butikker og tjenester er Alti Tasta kjøpesenter en kjøretur på omtrent 25 minutter unna, mens Stavanger sentrum er tilgjengelig på under en halvtime.
Adkomst
Veibeskrivelse: Se Google maps - det er enkelt å finne frem i kartet.
Det vil bli skiltet med Krogsveen visningsskilt ved fellesvisninger.
Barnehager, skoler og fritid
Barnehager:
- Rennesøy barnehage (1-5 år) 2,8 km
- Vikevåg barnehage (1-5 år) 2,9 km
- Østhusvik barnehage (1-5 år) 8,2 km
Skoler:
- Vikevåg skule (1-7 kl.) 3,6 km
- Rennesøy skule (8-10 kl.) 2,6 km
- Randaberg videregående skole 19,1 km
- Bergeland vgs - Tanke Svilandsgate 23,7 km
Informasjon om tilhørende skolekretser er hentet fra Prognosesenteret som dataleverandør, og tilhørigheten kan årlig endres av kommunen. Dersom skole- og barnehagetilbud er av betydning for kjøpet, ber vi om at det rettes en særskilt henvendelse til kommunen/bydelsadministrasjonen for oppdatert informasjon.
Beskrivelse av tomt
Eiertomt på 1477,3 kvm. Tomten er opparbeidet med belegningsstein, grus, terrasse på terreng, diverse støttemurer, plenarealer og forskjellige beplantninger.
Det gjøres oppmerksom på at tomten er opparbeidet utover tomtegrensen mot vest og sør.
Oppgitt tomteareal er hentet fra digitalt eiendomskart fra Stavanger kommune. Oppgitt/anslått areal kan derfor avvike fra nøyaktig areal.
Parkering
Eneboligen har integrert garasje i kjelleren. I tillegg er det gode parkeringsmuligheter på egen tomt, både på belegningsstein og gruset gårdsplass. Det er mulighet for montering av ladeboks for elbil på vegg.
Vei, vann og avløp
Eiendommen har adkomst via kommunal vei. Eiendommen har privat minirenseanlegg. Kommunen har slamtømming hvert 2. år.
Kommunen har en generell hjemmel til å kreve at eiendommer med privat avløpsanlegg kobler seg til det offentlige avløpsnettet. Kontakt megler for ytterligere informasjon.
Regulerings-og arealplaner
Eiendommen ligger i et uregulert område, men er i Kommuneplanens arealdel 2023-2040 (ID: KP 2023-2040), vedtatt 28.06.2024, avsatt til LNRF-areal for nødvendige tiltak for stedbunden næring (feltnavn: LNFR44). Dette gjelder hele eiendommen.
Eiendommen ligger i et LNFR-område (Landbruks-, natur-, frilufts- og reindriftsområde).
I LNFR-områder gjelder strenge restriksjoner for utbygging og bruksendring. Det kan bety at det ikke er tillatt å gjenoppbygge eiendommen ved total skade, og kan innebære begrensninger for utvikling og påbygging. I LNFR-område kan det være bygge- og deleforbud, i tillegg er det ikke sannsynlig at man får godkjent bruksendring av eksisterende bygninger eller godkjent oppføring av nye bygninger i strid med hovedregelen. Reguleringen gjelder fremtidige tiltak, dvs. eksisterende hus og fritidsboliger kan brukes i tråd med gitte kommunale tillatelser, men reguleringen kan få konsekvenser ved eventuell gjenreisning av bygning, for eksempel etter brann.
For LNF-a områder (gardsbruk/stadbunden næring) gjelder blant annet følgende bestemmelser i kommuneplanen (§ 2.18):
- I LNF-a områdene er det ikke tillatt med annen bygge- og anleggsvirksomhet enn det som er nødvendige tiltak for drift av landbruk og gårdsdrifttilknyttet næringsvirksomhet basert på gårdens ressursgrunnlag.
- Bolighus nr. 1 på gårdsbruk kan ha inntil 250 m2 BYA inkludert evt. tilhørende garasje. Dersom det er driftsgrunnlag på garden kan det tillates bolig nr. 2 på inntil 200 m2 BYA inkludert evt. tilhørende garasje. Bolighus nr. 3 tillates ikke. Det tillates kun en boenhet pr bolighus.
Det er per d.d. ingen kjente plan- eller byggesaker med direkte innvirkning på eiendommen.
Utsnitt av plan med tilhørende bestemmelser kan fås ved henvendelse til megler.
Økonomi
Økonomi
Kommunale utgifter
Kommunale avgifter er estimert til kr 12.697,94,- for 2026. I dette inngår gebyr for vann, renovasjon og tømming av minirenseanlegg.
Eiendommen har et privat minirenseanlegg for avløp. De kommunale avgiftene inkluderer gebyr for tømming av anlegget.
Det er installert vannmåler på eiendommen og kostnadene betales etter forbruk. Forbruk avleses etter henvendelse fra kommunen. Forbruk betales à konto basert på siste avlesning. Avregning foretas i forbindelse med neste forfall på kommunale avgifter.
Nåværende eier har et strømforbruk som tilsvarer ca. kr 77.017,- pr. år / 45.000 kWh pr. år.
Boligen har en årlig forsikringspremie på kr 9 000,-.
Boligen er tilknyttet NextGenTel (100 Mbps) som leverandør av internett og koster kr 799,- pr. mnd. Ny eier må tegne eget abonnement, Tv-tuner/dekoder medfølger ikke.
Utgiftene er basert på nåværende eiers forbruk og avtaler.
Formuesverdi
Formuesverdi for 2024 var kr 2.501.926,- ifølge Skatteetaten. Beløpet forutsetter at eier bor fast i boligen (primærbolig).
Ved eventuell øvrig bruk av eiendommen (f.eks. fritidsbolig, pendlerbolig, utleieobjekt) var formuesverdien for 2024 kr 10.002.752,-.
Fra 2026 har Stortinget vedtatt en oppdatert modell for beregning av formuesverdi for primærbolig, så avvik kan forekomme.
For mer informasjon se skatteetaten.no
Eiendomsskatt
Eiendomsskatten for 2026 er kr 3.837,-.
Omkostninger
8 750 000,00 Prisantydning
Omkostninger
218 750,00 Dokumentavgift til staten (2,5% av kjøpesum)
19 900,00 Gjensidige Boligkjøperpakke (valgfri)
545,00 Tinglysing panterettsdokument
545,00 Tinglysing skjøte
--------------------------------------------------------
239 740,00 Omkostninger totalt
--------------------------------------------------------
8 989 740,00 Totalpris inkl. omkostninger
--------------------------------------------------------
Totalpris inkl. omkostninger forutsetter kjøp til prisantydning.
Det tas forbehold om endringer i avgifter og gebyrer.
Tilbud om lånefinansiering
Megler formidler gjerne kontakt med rådgiver hos vår samarbeidspartner BN Bank. De har konkurransedyktige betingelser samt rask og løsningsorientert behandling av din lånesøknad. Krogsveen mottar et honorar dersom lån opprettes.
Betalingsbetingelser
Kjøpesum inkludert omkostninger, samt pantedokument tilknyttet eventuelt lån, skal være disponibelt hos megler 2 virkedager før overtagelsen.
Annen viktig informasjon
Annen viktig informasjon
Eier
Ivan Nådland
Overtakelse
Etter nærmere avtale.
Boligselgerforsikring
Selger har i forbindelse med salget tegnet boligselgerforsikring levert av Gjensidige.
Boligselgerforsikringen dekker selgers ansvar etter avhendingsloven begrenset oppad til kr 14 millioner. Dersom kjøper oppdager forhold ved eiendommen som hen mener utgjør en mangel ved eiendommen, vil Gjensidige behandle reklamasjonen på vegne av selger. Forsikringsvilkår kan fås ved henvendelse til megler.
Vedlagt salgsoppgaven følger selgers egenerklæringsskjema og tilstandsrapport. Interessenter må sette seg inn i dokumentene før bud inngis.
Boligkjøperforsikring
Innen kontraktsmøtet må kjøper ta stilling til om det ønskes å bestille Boligkjøperpakken gjennom Gjensidige. I denne gunstige pakken er boligen ferdig forsikret og inkluderer rettshjelpsforsikring, også kalt Boligkjøperforsikring. Rettshjelpsforsikring gir trygghet og tilgang på profesjonell juridisk hjelp dersom det oppdages uventede feil eller mangler det første året etter overtagelse. Forsikringsselskapet behandler i så fall ethvert mangelskrav kjøper måtte ha overfor selger.
Boligkjøperpakken inkluderer bygningsforsikring for hus og hytte, innboforsikring, flytteforsikring og dobbel rentedekning - i situasjoner hvor kjøper ikke får solgt nåværende primærbolig.
Kjøper mottar ingen særskilt faktura for Boligkjøperpakken da kostnaden det første året legges til kjøpesummen for boligen. Det gjøres oppmerksom på Krogsveen mottar et honorar for denne formidlingen.
Produktark for Boligkjøperpakken ligger vedlagt i salgsoppgaven.
Dersom ikke boligkjøperpakke ønskes kan kun rettshjelpsforsikring, også kalt boligkjøperforsikring, tegnes særskilt via megler. Rettshjelpsforsikringen varer i 5 år fra overtagelse og leveres gjennom Gjensidige. Ta kontakt med megler for ytterligere informasjon.
Selskap og privatpersoner som driver med kjøp/salg/utvikling som ledd i egen næringsvirksomhet kan ikke tegne boligkjøperpakke eller rettshjelpsforsikring.
Budgivning
Forbrukerinformasjon om budgivning er vedlagt denne salgsoppgaven og er også på vår hjemmeside Krogsveen.no. Alle bud og budforhøyelser må inngis skriftlig. I tillegg må legitimasjon være fremlagt sammen med signatur fra budgiver.
Vi oppfordrer til å gi bud elektronisk via GI BUD-knappen på eiendommens hjemmeside på Krogsveen.no. Da vil samtlige vilkår bli oppfylt.
Eventuelle forhøyelser eller endringer av budet kan bekreftes pr SMS eller på e-post. Vi oppfordrer alltid til å kontakte megler pr. telefon i tillegg da forsinkelser i SMS og e-post kan forekomme.
For at budene skal kunne bli behandlet og videreformidlet skriftlig til alle involverte parter, må alle bud ha en tilstrekkelig lang akseptfrist, jf. eiendomsmeglingsforskriften § 6-3.
Selger må også skriftlig akseptere budet før aksept kan formidles til budgiver. Akseptfrist bør derfor være på minimum 30 minutter, og budforhøyelser må derfor skje i god tid før fristens utløp.
Bud i forbrukerforhold kan uansett ikke settes med kortere frist enn kl. 12.00 første virkedag etter siste annonserte visning. I tillegg kan ikke budet ha forbehold om at det skal holdes hemmelig ovenfor øvrige interessenter. Megler har iht lov om eiendomsmegling ikke anledning til å videreformidle disse budene, og de vil dermed heller ikke bli journalført.
Etter at eiendommen er solgt vil kjøper og selger få tilsendt budjournal. Øvrige budgivere kan få utlevert kopi av budjournalen i anonymisert form.
Hvitvaskingsreglene
I henhold til lov om hvitvasking og terrorfinansiering har megler plikt til å gjennomføre kontrolltiltak overfor kunder, herunder fullmektiger. Dette innebærer bl.a. å bekrefte kunders og reelle rettighetshaveres identitet på bakgrunn av fremvist gyldig legitimasjon eller på annen godkjent måte, samt å innhente opplysninger om kundeforholdets formål og tilsiktede art.
Dersom slike kundetiltak ikke kan gjennomføres, kan megler ikke etablere kundeforholdet eller utføre transaksjonen.
Hvis kjøper ikke bidrar til gjennomføring av kundekontrollen og dette fører til at transaksjonen blir forsinket eller ikke kan gjennomføres, vil dette ansees som mislighold av avtalen og gi selger rettigheter etter avhendingslova kapittel 5. I tilfeller der selger ikke bidrar til gjennomføring av løpende kundekontroll underveis i oppdraget, er det selger som misligholder sine forpliktelser etter avtalen og gi kjøper rettigheter etter avhendingslovens kapittel 4. Partene er selv ansvarlige for eventuelle kostnader og ansvar dette kan medføre. Eiendomsmegleren eller eiendomsmeglingsforetaket kan ikke holdes ansvarlig for de konsekvenser dette vil kunne få for partene eller andre som har interesser i eiendomshandelen.
Kjøper oppfordres til å innbetale kjøpesummen som ikke kommer fra låneinstitusjon i én samlet innbetaling fra egen konto i norsk bank. Megler har plikt til å melde fra til Økokrim om eiendomshandler som fremstår som mistenkelige. Melding sendes Økokrim uten at partene varsles.
Personopplysningsloven
I henhold til personopplysningsloven gjør vi oppmerksom på at interessenter kan bli registrert for videre oppfølging.
Lovanvendelse
Generelle bestemmelser
Salgsoppgaven er basert på de opplysningene selger har gitt til megler, den bygningssakyndiges tilstandsrapport, samt opplysninger innhentet fra kommunen, Kartverket og andre tilgjengelige kilder. Det er viktig at kjøper setter seg grundig inn i alle salgsdokumentene, herunder salgsoppgave, tilstandsrapport og selgers egenerklæring. Kjøper anses kjent med forhold som er tydelig beskrevet i salgsdokumentene, og slike forhold kan ikke påberopes som mangler. Dette gjelder uavhengig av om kjøper har lest dokumentene. Alle interessenter oppfordres til å undersøke eiendommen nøye, gjerne sammen med fagkyndig før bud inngis. Kjøper som velger å kjøpe usett kan ikke gjøre gjeldende som mangel noe han burde blitt kjent med ved undersøkelsen.
Dersom det er behov for avklaringer, anbefaler vi at interessenter rådfører seg med eiendomsmegler eller egne rådgivere før det legges inn bud.
En bolig som har blitt brukt i en viss tid, har vanligvis blitt utsatt for slitasje og skader kan ha oppstått. Slik bruksslitasje må kjøper regne med, og det kan avdekkes enkelte forhold etter overtakelse som nødvendiggjør utbedringer. Normal slitasje og skader som nødvendiggjør utbedring, er innenfor hva kjøper må forvente og vil ikke utgjøre en mangel.
Kjøper og selgers rettigheter og plikter reguleres av avtalen mellom partene, samt informasjonen som har vært tilgjengelig for kjøperen i forbindelse med handelen. Avtalen utfylles av avhendingsloven, og det gjelder ulike avtalevilkår avhengig av om kjøper er forbrukerkjøper eller ikke. Dette er nærmere beskrevet nedenfor.
På grunn av ulike avtalevilkår kan selger vurdere bud fra en som ikke er forbruker, ulikt fra en forbrukers bud. Dersom kjøper ikke er forbruker, er selger sitt mulige mangelsansvar begrenset fordi eiendommen selges "som den er". Selger kan ikke ta «som den er»- forbehold overfor en forbrukerkjøper. Selv et lavere bud fra en som ikke er forbruker kan foretrekkes fordi begrensningen i mulig mangelsansvar kan ha egenverdi for selger. Selger står fritt til å forkaste eller akseptere ethvert bud, og er for eksempel ikke forpliktet til å akseptere høyeste bud.
Budgiver skal i budskjema avgi egenerklæring om budgiver er forbruker eller næringsdrivende/ person som hovedsakelig handler som ledd i næringsvirksomhet. Budgivere får informasjon dersom andre bud er inngitt av en som ikke er forbruker.
Forbrukerkjøp - definisjon
Med forbrukerkjøp menes kjøp av eiendom når kjøperen er en fysisk person som ikke hovedsakelig handler som ledd i næringsvirksomhet.
Forbruker – avtalevilkår
Eiendommen har en mangel dersom den ikke er i samsvar med kravene som følger av avtalen, eller det foreligger brudd på bestemmelsene i avhendingsloven §§ 3-2 til 3-8. Hvis eiendommen ikke er i samsvar med det kjøperen må kunne forvente ut ifra alder, type og synlig tilstand, kan det være grunnlag for mangelskrav. Det samme gjelder hvis det er holdt tilbake eller gitt uriktige opplysninger om eiendommen. Dette gjelder likevel bare dersom man kan gå ut ifra at det virket inn på avtalen at opplysningen ikke ble gitt eller at mangelskravet ikke blir rettet i tide på en tydelig måte.
Boligen kan ha en mangel etter avhendingsloven § 3-3 andre ledd, dersom det er avvik mellom opplyst og faktisk innvendig areal, forutsatt at avviket er på 2% eller mer og minimum 1 kvm.
Ved beregning av et eventuelt prisavslag eller erstatning må kjøper selv dekke tap/kostnader opptil et beløp på kr 10 000 (egenandel).
Ikke-forbruker (næringsdrivende) – definisjon
Hvis kjøper er en juridisk person, eller en fysisk person som hovedsakelig handler som ledd i næringsvirksomhet, vil kjøpet ikke anses som et forbrukerkjøp.
Ikke-forbruker – avtalevilkår
Eiendommen har en mangel dersom den ikke er i samsvar med kravene som følger av avtalen.
Eiendommen selges «som den er», og selgers ansvar utover det konkret avtalte er da begrenset etter avhendingsloven § 3-9, første ledd andre setning.
Avhendingsloven § 3-3 andre ledd fravikes, og hvorvidt boligens arealsvikt utgjør en mangel vurderes etter avhendingsloven § 3-8.
Informasjon om kjøpers undersøkelsesplikt, herunder oppfordringen om å undersøke eiendommen nøye, gjelder også for kjøpere som ikke anses som forbrukere.
Det forutsettes at hjemmel overføres til kjøper. Hvis kjøper ikke ønsker hjemmelsoverføring av eiendommen, må det tas forbehold om dette i budet.
Meglers vederlag
Meglers vederlag betales av selger og er avtalt til:
Vederlag: 1,50 % av salgssummen.
Vederlag:
Kontroll av hjemmel og heftelser kr 2 450,00
Markedsføringspakke kr 28 900,00
Oppgjør kr 8 900,00
Tilrettelegging kr 9 950,00
Utlegg:
Innhenting av offentlig opplysninger Stavanger kommune kr 3 135,82
Tinglysing sikring kr 545,00
Andre utgifter:
AX tilstandsrapport enebolig over 250kvm/småbruk/landbruk kr 24 688,00
Boligselgerforsikring Gjensidige Eiet - regnes av prisantydning kr 49 962,50
Foto kr 7 000,00
Vi er opptatt av verdiskapning, og har knyttet til oss samarbeidspartnere som skal sikre våre kunder de beste produkter og tjenester;
• I forbindelse med forberedelse av salget, innhenter vi informasjon om eiendommen hovedsakelig fra vår samarbeidspartner Ambita.
• Gjensidige leverer boligselgerforsikring og tilbyr bygningsforsikring
• Boligkjøperforsikring leveres av Hiscox og med Sedgwick som skadebehandler, og er formidlet gjennom Gjensidige.
• BN bank tilbyr finansieringsløsninger
• Vår avdeling Krogsveen Pluss tilbyr flyttetjenester som utvask, visningsvask, lager, tømming og transport av flyttelass, i tillegg til å formidle kontakt med Flip for overflateoppussing.
• I forbindelse med overtagelse av eiendommen tilbyr Overo avtale om strøm, alarm og bredbånd.
• Krogsveen er, sammen med øvrige bransjeaktører, medeier i Bomega AS som tilbyr den digitale annonseringsplattformen Hjem.
Opplysninger om oppdraget
Oppdragsnummer 35-0151/26
Eiendomsmegler Krogsveen AS, avd. Stavanger
Nedre Strandgate 41, 4005, STAVANGER
950007613
Oppdragets KR-kode KR35.26151
Dato
Sist oppdatert: 22. april 2026 kl. 11:32
Dokumenter
Dokumenter
PDF – 914 KB
PDF – 5 MB
PDF – 905 KB
PDF – 352 KB
PDF – 711 KB
PDF – 1 MB
PDF – 312 KB
PDF – 29 KB
PDF – 127 KB
PDF – 392 KB
Område
Legg til steder som er viktige for deg
Visning
Unngå doble boligrenter
Vi tilbyr gunstig forsikring.
Vurderer du utleie?
Få et tilbud fra Utleie KrogsveenHva koster lånet?
Sjekk estimert lånekostnadVil du varsles om lignende boliger?
Ved å lagre ditt boligsøk hos oss får du beskjed når vi har en bolig som ligner denne, før den legges ut på markedet!












































